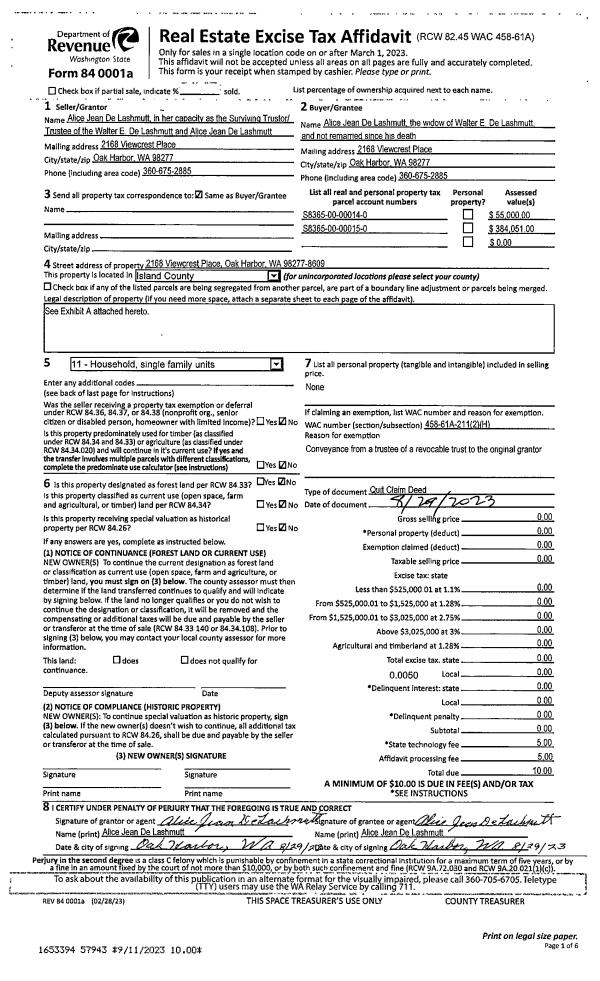
Property
Account |
| Property ID: | 589786 | Abbreviated Legal Description: | SEGD FOR TAX PURPOSES ONLY W/2 OF: SW NE SE FR 170 4330 U |
| Geographic ID: | R23226-170-4331 | Agent Code: | |
| Type: | Real | | |
| Tax Area: | 519 - APPRAISER-Stan/Cam Schl Dist, vacant & 50 acres or less | Land Use Code | 91 |
| Open Space: | N | DFL | N |
| Historic Property: | N | Remodel Property: | N |
| Multi-Family Redevelopment: | N | | |
| Township: | 32 | Section: | 26 |
| Range: | R2 |
Location |
| Address: | CAMANO ISLAND, WA 98282 | Mapsco: | |
| Neighborhood: | North Camano | Map ID: | 567 |
| Neighborhood CD: | 06-C |
Owner |
| Name: | ALBERG, DAVID | Owner ID: | 203070 |
| Mailing Address: | PO BOX 70368 SEATTLE, WA 98127 | % Ownership: | 100.0000000000% |
| | | Exemptions: | |
Taxes and Assessment Details
Values
| (+) Improvement Homesite Value: | + | $0 | |
| (+) Improvement Non-Homesite Value: | + | $0 | |
| (+) Land Homesite Value: | + | $0 | |
| (+) Land Non-Homesite Value: | + | $130,000 | |
| (+) Curr Use (HS): | + | $0 | $0 |
| (+) Curr Use (NHS): | + | $0 | $0 |
| | | -------------------------- | |
| (=) Market Value: | = | $130,000 | |
| (–) Productivity Loss: | – | $0 | |
| | | -------------------------- | |
| (=) Subtotal: | = | $130,000 | |
| (+) Senior Appraised Value: | + | $0 | |
| (+) Non-Senior Appraised Value: | + | $130,000 | |
| | | -------------------------- | |
| (=) Total Appraised Value: | = | $130,000 | |
| (–) Senior Exemption Loss: | – | $0 | |
| (–) Exemption Loss: | – | $0 | |
| | | -------------------------- | |
| (=) Taxable Value: | = | $130,000 | |
Taxing Jurisdiction
| Owner: | ALBERG, DAVID | | |
| % Ownership: | 100.0000000000% | | |
| Total Value: | $130,000 | | |
| Tax Area: | 519 - APPRAISER-Stan/Cam Schl Dist, vacant & 50 acres or less |
| CF | Conservation Futures | 0.0316035091 | $130,000 | $130,000 | $4.11 | | |
| EMS1 | Fire & Rescue Dist #1 Camano GEN (EMS) | 0.3677864386 | $130,000 | $130,000 | $47.81 | | |
| CE | County Current Expense | 0.3708482477 | $130,000 | $130,000 | $48.21 | | |
| CR | County Roads | 0.4584763726 | $130,000 | $130,000 | $59.60 | | |
| LCIB | Library Sno-Isle BOND (Camano Island) | 0.0396325772 | $130,000 | $130,000 | $5.15 | | |
| LIB | Library Sno-Isle GEN | 0.3153421757 | $130,000 | $130,000 | $40.99 | | |
| SCH205_401 | School 205-401 Enrichment | 1.2698420524 | $130,000 | $130,000 | $165.08 | | |
| SCH205BOND | School 205-401 BOND | 0.9396497583 | $130,000 | $130,000 | $122.15 | | |
| ST | State School | 1.3035497053 | $130,000 | $130,000 | $169.46 | | |
| ST2 | State School Part 2 | 0.8169543533 | $130,000 | $130,000 | $106.20 | | |
| | Total Tax Rate: | 5.9136851902 | | | | | |
| | | | | Taxes w/Current Exemptions: | $768.76 | | |
| | | | | Taxes w/o Exemptions: | $768.76 | | |
Improvement / Building
Sketch
| No sketches available for this property. |
Property Image
Land
| 1 | 32 | AC (03.01-09.99) | 0.0000 | 0.00 | 0.00 | 0.00 | 1.00 | $130,000 | $0 |
Roll Value History
| 2026 | N/A | N/A | N/A | N/A | N/A |
| 2025 | $0 | $130,000 | $0 | $130,000 | $130,000 |
| 2024 | $0 | $120,000 | $0 | $120,000 | $120,000 |
| 2023 | $0 | $100,000 | $0 | $100,000 | $100,000 |
| 2022 | $0 | $90,000 | $0 | $90,000 | $90,000 |
| 2021 | $0 | $80,000 | $0 | $80,000 | $80,000 |
| 2020 | $0 | $65,000 | $0 | $65,000 | $65,000 |
| 2019 | $0 | $70,000 | $0 | $70,000 | $70,000 |
| 2018 | $0 | $60,000 | $0 | $60,000 | $60,000 |
| 2017 | $0 | $45,000 | $0 | $45,000 | $45,000 |
| 2016 | $0 | $90,000 | $0 | $90,000 | $90,000 |
| 2015 | $0 | $79,360 | $0 | $79,360 | $79,360 |
| 2014 | $0 | $79,360 | $0 | $79,360 | $79,360 |
| 2013 | $0 | $79,360 | $0 | $79,360 | $79,360 |
| 2012 | $0 | $79,360 | $0 | $79,360 | $79,360 |
| 2011 | $0 | $79,360 | $0 | $79,360 | $79,360 |
| 2010 | $0 | $79,360 | $0 | $79,360 | $79,360 |
Deed and Sales History
| 1 | 04/27/2010 | QCD | Quit Claim Deed | ALBORG, ANNE | ALBORG, DAVID | | | $18,252.00 | 1218 | 4274207 |
| 2 | 04/27/2010 | PRD | Personal Representatives Deed | ALBORG, THOMAS A | ALBORG, ANNE | | | $0.00 | 1217 | 4274206 |
| 3 | 03/09/2004 | QCD | Quit Claim Deed | WIBORG, JAMES & | ALBORG, THOMAS A | | | $0.00 | 42475 | 4103091 |
| 4 | 09/01/1987 | EXECUTORD | Executor Deed | WIBORG, MYRA J | WIBORG, JAMES & | | | $0.00 | 72779 | 87012497 |
| 5 | 01/01/1985 | OTHER | Other - Misc. Documents | WIBORG, MYRA J | WIBORG, MYRA J | | | $0.00 | 61013 | 0 |
| 6 | 03/01/1961 | PACD | Purchaser's Assignment | Unknown | WIBORG, MYRA J | | | $0.00 | 59235 | 0 |
Payout Agreement
| No payout information available.. |