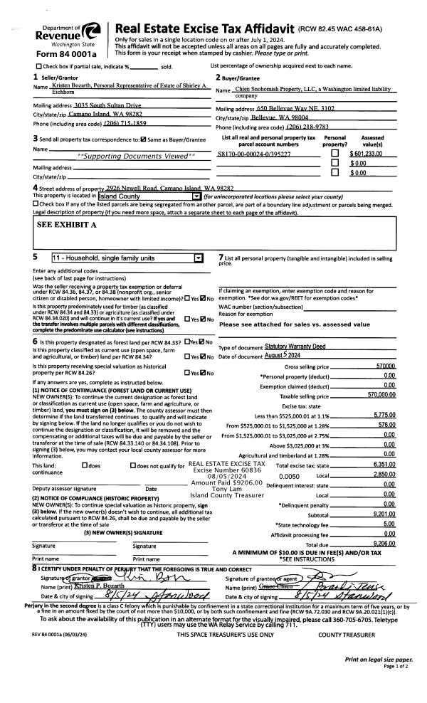
Property
Account |
| Property ID: | 590827 | Abbreviated Legal Description: | TIMBERLANE #1 LOT 3 |
| Geographic ID: | S8322-00-00003-0 | Agent Code: | |
| Type: | Real | | |
| Tax Area: | 100 - APPRAISER-OH Schl Dist, in OH | Land Use Code | 11 |
| Open Space: | N | DFL | N |
| Historic Property: | N | Remodel Property: | N |
| Multi-Family Redevelopment: | N | | |
| Township: | | Section: | |
| Range: | |
Location |
| Address: | 1046 NE TAFTSON ST OAK HARBOR, WA 98277 | Mapsco: | |
| Neighborhood: | Cycle 1 | Map ID: | 262 |
| Neighborhood CD: | 1 |
Owner |
| Name: | HARNED, SEAN | Owner ID: | 308708 |
| Mailing Address: | MEGAN DAVIS 1046 NE TAFTSON ST OAK HARBOR, WA 98277 | % Ownership: | 100.0000000000% |
| | | Exemptions: | |
Taxes and Assessment Details
Values
| (+) Improvement Homesite Value: | + | $0 | |
| (+) Improvement Non-Homesite Value: | + | $304,586 | |
| (+) Land Homesite Value: | + | $0 | |
| (+) Land Non-Homesite Value: | + | $180,000 | |
| (+) Curr Use (HS): | + | $0 | $0 |
| (+) Curr Use (NHS): | + | $0 | $0 |
| | | -------------------------- | |
| (=) Market Value: | = | $484,586 | |
| (–) Productivity Loss: | – | $0 | |
| | | -------------------------- | |
| (=) Subtotal: | = | $484,586 | |
| (+) Senior Appraised Value: | + | $0 | |
| (+) Non-Senior Appraised Value: | + | $484,586 | |
| | | -------------------------- | |
| (=) Total Appraised Value: | = | $484,586 | |
| (–) Senior Exemption Loss: | – | $0 | |
| (–) Exemption Loss: | – | $0 | |
| | | -------------------------- | |
| (=) Taxable Value: | = | $484,586 | |
Taxing Jurisdiction
| Owner: | HARNED, SEAN | | |
| % Ownership: | 100.0000000000% | | |
| Total Value: | $484,586 | | |
| Tax Area: | 100 - APPRAISER-OH Schl Dist, in OH |
| CF | Conservation Futures | 0.0316035091 | $484,586 | $484,586 | $15.31 | | |
| CEM1 | Cemetery #1 | 0.0040320932 | $484,586 | $484,586 | $1.95 | | |
| COH | City of Oak Harbor | 2.3001546061 | $484,586 | $484,586 | $1,114.62 | | |
| OAKBOND | City of Oak Harbor BOND | 0.1926904192 | $484,586 | $484,586 | $93.38 | | |
| HOBOND | Hospital BOND | 0.1910887512 | $484,586 | $484,586 | $92.60 | | |
| HOGEN | Hospital GEN | 0.3902502903 | $484,586 | $484,586 | $189.11 | | |
| CE | County Current Expense | 0.3708482477 | $484,586 | $484,586 | $179.71 | | |
| ISLANDEMS | Hospital GEN (EMS) | 0.5000000000 | $484,586 | $484,586 | $242.29 | | |
| LIB | Library Sno-Isle GEN | 0.3153421757 | $484,586 | $484,586 | $152.81 | | |
| NWHIDPRMT | P & R N Whidbey GEN | 0.2004466701 | $484,586 | $484,586 | $97.13 | | |
| SCH201MO | School 201 Enrichment | 1.8559231640 | $484,586 | $484,586 | $899.35 | | |
| ST | State School | 1.3035497053 | $484,586 | $484,586 | $631.68 | | |
| ST2 | State School Part 2 | 0.8169543533 | $484,586 | $484,586 | $395.88 | | |
| | Total Tax Rate: | 8.4728839852 | | | | | |
| | | | | Taxes w/Current Exemptions: | $4,105.82 | | |
| | | | | Taxes w/o Exemptions: | $4,105.82 | | |
Improvement / Building
| Improvement #1: | RESIDENTIAL | State Code: | Y | 1324.1 sqft | Value: | $304,586 |
| Bathrooms: | 2.5 | Bedrooms: | 3 | | Ceiling: | DRYWALL PAINTED | Exterior Wall/Cover: | CEMENT FIBER | | Floor Covering: | CARPET/VINYL 60-40 | Floor Structure: | WOOD W/SUBFLOOR | | Foundation: | CONCRETE | Heating: | FHA GAS | | Interior Finish: | DRYWALL PAINT | Plumbing Fixture Cnt: | 12 | | Roof Slope: | 8" IN 12" | Roof Structure/Cover: | CJ WOOD SHAKES |
|
| | Type | Description | Class CD | Sub Class CD | Year Built | Area |
| | BAS | BASE/MAIN FLOOR | 4 | 0 | 1990 | 668.0 |
| | BIG | BUILT IN GARAGE | 4 | 0 | 1990 | 594.0 |
| | UPS | UPPER STORY | 4 | 0 | 1990 | 656.1 |
| | OWP | OPEN WOOD PORCH W/STEPS | 4 | 0 | 1990 | 36.0 |
Sketch
Property Image
Land
| 1 | 14 | SQ (08001-12000) | 0.0000 | 0.00 | 0.00 | 0.00 | 1.00 | $180,000 | $0 |
Roll Value History
| 2026 | N/A | N/A | N/A | N/A | N/A |
| 2025 | $304,586 | $180,000 | $0 | $484,586 | $484,586 |
| 2024 | $308,335 | $170,000 | $0 | $478,335 | $478,335 |
| 2023 | $276,492 | $170,000 | $0 | $446,492 | $446,492 |
| 2022 | $253,406 | $160,000 | $0 | $413,406 | $413,406 |
| 2021 | $223,006 | $125,000 | $0 | $348,006 | $348,006 |
| 2020 | $216,491 | $100,000 | $0 | $316,491 | $316,491 |
| 2019 | $152,532 | $140,000 | $0 | $292,532 | $292,532 |
| 2018 | $152,975 | $125,000 | $0 | $277,975 | $277,975 |
| 2017 | $154,054 | $110,000 | $0 | $264,054 | $264,054 |
| 2016 | $126,960 | $90,000 | $0 | $216,960 | $216,960 |
| 2015 | $128,699 | $80,000 | $0 | $208,699 | $208,699 |
| 2014 | $130,440 | $80,000 | $0 | $210,440 | $210,440 |
| 2013 | $132,177 | $80,000 | $0 | $212,177 | $212,177 |
| 2012 | $133,917 | $70,000 | $0 | $203,917 | $203,917 |
| 2011 | $138,854 | $80,000 | $0 | $218,854 | $218,854 |
| 2010 | $146,256 | $80,000 | $0 | $226,256 | $226,256 |
| 2009 | $152,642 | $97,000 | $0 | $249,642 | $249,642 |
| 2008 | $154,657 | $97,000 | $0 | $251,657 | $251,657 |
| 2007 | $156,725 | $97,000 | $0 | $253,725 | $253,725 |
Deed and Sales History
| 1 | 05/19/2023 | WD | Warranty Deed | MCCOY, DARREN | HARNED, SEAN | | | $470,000.00 | 56783 | 4560212 |
| 2 | 02/21/2017 | WD | Warranty Deed | WINDISCH, DANIEL | MCCOY, DARREN | | | $283,000.00 | 28219 | 4417840 |
| 3 | 12/18/2012 | DECREE | Divorce Decree/Legal Separation | SPROUSE, BILLIE J | WINDISCH, DANIEL | | | $0.00 | 10498 | 4334310 |
| 4 | 05/10/2007 | WD | Warranty Deed | SMITH, MICHELLE L | SPROUSE, BILLIE J | | | $268,500.00 | 71661 | 4202561 |
| 5 | 11/28/2006 | WD | Warranty Deed | STEGMAIER, SETH A | SMITH, MICHELLE L | | | $254,500.00 | 4188967 | 65146 |
| 6 | 04/16/2004 | WD | Warranty Deed | SEXTON, MICHAEL B | STEGMAIER, SETH A | | | $175,900.00 | 41632 | 4098031 |
| 7 | 12/12/2002 | WD | Warranty Deed | MACNICHOLL, MICHAEL D | SEXTON, MICHAEL B | | | $158,000.00 | 25012 | 4040649 |
| 8 | 06/08/1998 | WD | Warranty Deed | MACNICHOLL, MICHAEL D | MACNICHOLL, MICHAEL D | | | $130,000.00 | 82274 | 98011862 |
| 9 | 06/01/1990 | WD | Warranty Deed | BODIN, ROBERT C | MARTIN, ERNEST W | | | $92,100.00 | 3575 | 90011581 |
| 10 | 02/01/1990 | WD | Warranty Deed | KOETJE, GORDON | BODIN, ROBERT C | | | $20,000.00 | 779 | 90002514 |
| 11 | 01/01/1900 | OTHER | Other - Misc. Documents | Unknown | KOETJE, GORDON | | | $0.00 | 94109 | 357608 |
Payout Agreement
| No payout information available.. |