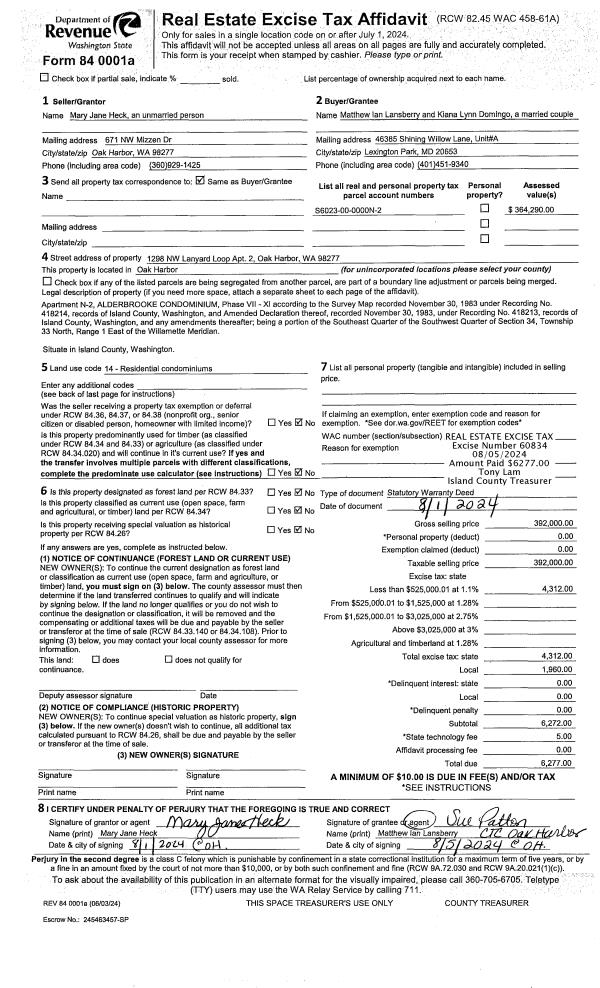
Property
Account |
| Property ID: | 590854 | Abbreviated Legal Description: | TIMBERLANE #1 LOT 6 |
| Geographic ID: | S8322-00-00006-0 | Agent Code: | |
| Type: | Real | | |
| Tax Area: | 100 - APPRAISER-OH Schl Dist, in OH | Land Use Code | 11 |
| Open Space: | N | DFL | N |
| Historic Property: | N | Remodel Property: | N |
| Multi-Family Redevelopment: | N | | |
| Township: | | Section: | |
| Range: | |
Location |
| Address: | 1035 NE TAFTSON ST OAK HARBOR, WA 98277 | Mapsco: | |
| Neighborhood: | Cycle 1 | Map ID: | 262 |
| Neighborhood CD: | 1 |
Owner |
| Name: | NEUMANN, ANDREW F | Owner ID: | 80804 |
| Mailing Address: | MARY A NEUMANN 1035 NE TAFTSON ST OAK HARBOR, WA 98277-4855 | % Ownership: | 100.0000000000% |
| | | Exemptions: | |
Taxes and Assessment Details
Values
| (+) Improvement Homesite Value: | + | $0 | |
| (+) Improvement Non-Homesite Value: | + | $287,965 | |
| (+) Land Homesite Value: | + | $0 | |
| (+) Land Non-Homesite Value: | + | $180,000 | |
| (+) Curr Use (HS): | + | $0 | $0 |
| (+) Curr Use (NHS): | + | $0 | $0 |
| | | -------------------------- | |
| (=) Market Value: | = | $467,965 | |
| (–) Productivity Loss: | – | $0 | |
| | | -------------------------- | |
| (=) Subtotal: | = | $467,965 | |
| (+) Senior Appraised Value: | + | $0 | |
| (+) Non-Senior Appraised Value: | + | $467,965 | |
| | | -------------------------- | |
| (=) Total Appraised Value: | = | $467,965 | |
| (–) Senior Exemption Loss: | – | $0 | |
| (–) Exemption Loss: | – | $0 | |
| | | -------------------------- | |
| (=) Taxable Value: | = | $467,965 | |
Taxing Jurisdiction
| Owner: | NEUMANN, ANDREW F | | |
| % Ownership: | 100.0000000000% | | |
| Total Value: | $467,965 | | |
| Tax Area: | 100 - APPRAISER-OH Schl Dist, in OH |
| CF | Conservation Futures | 0.0316035091 | $467,965 | $467,965 | $14.79 | | |
| CEM1 | Cemetery #1 | 0.0040320932 | $467,965 | $467,965 | $1.89 | | |
| COH | City of Oak Harbor | 2.3001546061 | $467,965 | $467,965 | $1,076.39 | | |
| OAKBOND | City of Oak Harbor BOND | 0.1926904192 | $467,965 | $467,965 | $90.17 | | |
| HOBOND | Hospital BOND | 0.1910887512 | $467,965 | $467,965 | $89.42 | | |
| HOGEN | Hospital GEN | 0.3902502903 | $467,965 | $467,965 | $182.62 | | |
| CE | County Current Expense | 0.3708482477 | $467,965 | $467,965 | $173.54 | | |
| ISLANDEMS | Hospital GEN (EMS) | 0.5000000000 | $467,965 | $467,965 | $233.98 | | |
| LIB | Library Sno-Isle GEN | 0.3153421757 | $467,965 | $467,965 | $147.57 | | |
| NWHIDPRMT | P & R N Whidbey GEN | 0.2004466701 | $467,965 | $467,965 | $93.80 | | |
| SCH201MO | School 201 Enrichment | 1.8559231640 | $467,965 | $467,965 | $868.51 | | |
| ST | State School | 1.3035497053 | $467,965 | $467,965 | $610.02 | | |
| ST2 | State School Part 2 | 0.8169543533 | $467,965 | $467,965 | $382.31 | | |
| | Total Tax Rate: | 8.4728839852 | | | | | |
| | | | | Taxes w/Current Exemptions: | $3,965.01 | | |
| | | | | Taxes w/o Exemptions: | $3,965.01 | | |
Improvement / Building
| Improvement #1: | RESIDENTIAL | State Code: | Y | 1503.5 sqft | Value: | $287,965 |
| Bathrooms: | 2 | Bedrooms: | 3 | | Ceiling: | DRYWALL PAINTED | Exterior Wall/Cover: | PLY/HARDBOARD T-111 | | Floor Covering: | VINYL TILE/CARP 20-80 | Floor Structure: | WOOD W/SUBFLOOR | | Foundation: | CONCRETE | Heating: | FHA GAS | | Interior Finish: | DRYWALL PAINT | Plumbing Fixture Cnt: | 10 | | Roof Slope: | 6" IN 12" | Roof Structure/Cover: | CJ ASPHALT |
|
| | Type | Description | Class CD | Sub Class CD | Year Built | Area |
| | BAS | BASE/MAIN FLOOR | 3 | 0 | 1989 | 1503.5 |
| | AGR | ATTACHED GARAGE | 3 | 0 | 1989 | 552.0 |
| | OWP | OPEN WOOD PORCH W/STEPS | 3 | 0 | 1989 | 60.0 |
| | OWP | OPEN WOOD PORCH W/STEPS | 3 | 0 | 1989 | 271.2 |
| | OWC | OPEN WOOD PORCH W/STEPS/ROOF/C | 3 | 0 | 1989 | 165.6 |
Sketch
Property Image
Land
| 1 | 14 | SQ (08001-12000) | 0.0000 | 0.00 | 0.00 | 0.00 | 1.00 | $180,000 | $0 |
Roll Value History
| 2026 | N/A | N/A | N/A | N/A | N/A |
| 2025 | $287,965 | $180,000 | $0 | $467,965 | $467,965 |
| 2024 | $291,694 | $170,000 | $0 | $461,694 | $461,694 |
| 2023 | $272,376 | $170,000 | $0 | $442,376 | $442,376 |
| 2022 | $250,047 | $160,000 | $0 | $410,047 | $410,047 |
| 2021 | $220,405 | $125,000 | $0 | $345,405 | $345,405 |
| 2020 | $214,924 | $100,000 | $0 | $314,924 | $314,924 |
| 2019 | $155,892 | $140,000 | $0 | $295,892 | $295,892 |
| 2018 | $156,403 | $125,000 | $0 | $281,403 | $281,403 |
| 2017 | $148,488 | $110,000 | $0 | $258,488 | $258,488 |
| 2016 | $150,479 | $90,000 | $0 | $240,479 | $240,479 |
| 2015 | $152,466 | $80,000 | $0 | $232,466 | $232,466 |
| 2014 | $154,456 | $80,000 | $0 | $234,456 | $234,456 |
| 2013 | $156,446 | $80,000 | $0 | $236,446 | $236,446 |
| 2012 | $158,435 | $70,000 | $0 | $228,435 | $228,435 |
| 2011 | $160,424 | $80,000 | $0 | $240,424 | $240,424 |
| 2010 | $166,000 | $80,000 | $0 | $246,000 | $246,000 |
| 2009 | $173,273 | $97,000 | $0 | $270,273 | $270,273 |
| 2008 | $175,517 | $97,000 | $0 | $272,517 | $272,517 |
| 2007 | $177,761 | $97,000 | $0 | $274,761 | $274,761 |
Deed and Sales History
| 1 | 08/30/2007 | WD | Warranty Deed | BRISTOW, CYNTHIA M | NEUMANN, ANDREW F | | | $274,500.00 | 73090 | 4211702 |
| 2 | 02/23/2004 | WD | Warranty Deed | HIRSCHFELD, JAN S | BRISTOW, CYNTHIA M | | | $187,900.00 | 40744 | 4092580 |
| 3 | 03/03/2000 | WD | Warranty Deed | ZUBKA, GERARD R | HIRSCHFELD, JAN S | | | $148,900.00 | 8884 | 20004456 |
| 4 | 06/01/1989 | WD | Warranty Deed | LINN, CLAUDE O | ZUBKA, GERARD R | | | $92,400.00 | 92172 | 89007437 |
| 5 | 02/01/1989 | WD | Warranty Deed | KOETJE, GORDON | LINN, CLAUDE O | | | $20,000.00 | 90450 | 89001539 |
| 6 | 01/01/1900 | OTHER | Other - Misc. Documents | Unknown | KOETJE, GORDON | | | $0.00 | 94109 | 357608 |
| 7 | 01/01/1900 | OTHER | Other - Misc. Documents | HIRSCHFELD, JAN S | HIRSCHFELD, JAN S | | | $0.00 | 0 | 0 |
| 8 | 01/01/1900 | OTHER | Other - Misc. Documents | ZUBKA, GERARD R | ZUBKA, GERARD R | | | $0.00 | 0 | 0 |
Payout Agreement
| No payout information available.. |