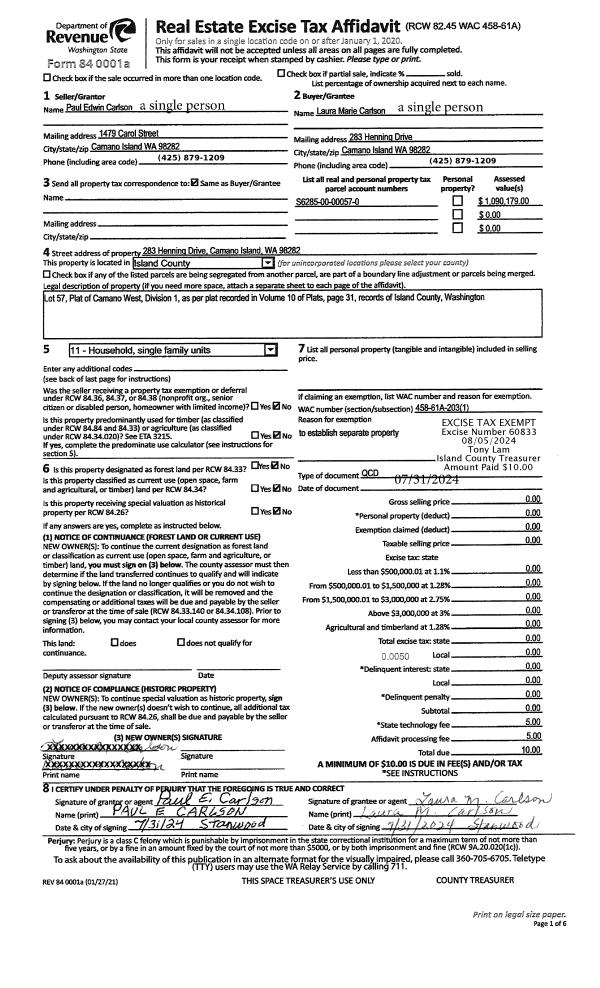
Property
Account |
| Property ID: | 590863 | Abbreviated Legal Description: | TIMBERLANE #1 LOT 7 |
| Geographic ID: | S8322-00-00007-0 | Agent Code: | |
| Type: | Real | | |
| Tax Area: | 100 - APPRAISER-OH Schl Dist, in OH | Land Use Code | 11 |
| Open Space: | N | DFL | N |
| Historic Property: | N | Remodel Property: | N |
| Multi-Family Redevelopment: | N | | |
| Township: | | Section: | |
| Range: | |
Location |
| Address: | 1055 NE TAFTSON ST OAK HARBOR, WA 98277 | Mapsco: | |
| Neighborhood: | Cycle 1 | Map ID: | 262 |
| Neighborhood CD: | 1 |
Owner |
| Name: | MERRILL, ROBERT E | Owner ID: | 80805 |
| Mailing Address: | VICTORIA L MERRILL 1055 NE TAFTSON ST OAK HARBOR, WA 98277-4855 | % Ownership: | 100.0000000000% |
| | | Exemptions: | |
Taxes and Assessment Details
Values
| (+) Improvement Homesite Value: | + | $0 | |
| (+) Improvement Non-Homesite Value: | + | $284,779 | |
| (+) Land Homesite Value: | + | $0 | |
| (+) Land Non-Homesite Value: | + | $180,000 | |
| (+) Curr Use (HS): | + | $0 | $0 |
| (+) Curr Use (NHS): | + | $0 | $0 |
| | | -------------------------- | |
| (=) Market Value: | = | $464,779 | |
| (–) Productivity Loss: | – | $0 | |
| | | -------------------------- | |
| (=) Subtotal: | = | $464,779 | |
| (+) Senior Appraised Value: | + | $0 | |
| (+) Non-Senior Appraised Value: | + | $464,779 | |
| | | -------------------------- | |
| (=) Total Appraised Value: | = | $464,779 | |
| (–) Senior Exemption Loss: | – | $0 | |
| (–) Exemption Loss: | – | $0 | |
| | | -------------------------- | |
| (=) Taxable Value: | = | $464,779 | |
Taxing Jurisdiction
| Owner: | MERRILL, ROBERT E | | |
| % Ownership: | 100.0000000000% | | |
| Total Value: | $464,779 | | |
| Tax Area: | 100 - APPRAISER-OH Schl Dist, in OH |
| CF | Conservation Futures | 0.0316035091 | $464,779 | $464,779 | $14.69 | | |
| CEM1 | Cemetery #1 | 0.0040320932 | $464,779 | $464,779 | $1.87 | | |
| COH | City of Oak Harbor | 2.3001546061 | $464,779 | $464,779 | $1,069.06 | | |
| OAKBOND | City of Oak Harbor BOND | 0.1926904192 | $464,779 | $464,779 | $89.56 | | |
| HOBOND | Hospital BOND | 0.1910887512 | $464,779 | $464,779 | $88.81 | | |
| HOGEN | Hospital GEN | 0.3902502903 | $464,779 | $464,779 | $181.38 | | |
| CE | County Current Expense | 0.3708482477 | $464,779 | $464,779 | $172.36 | | |
| ISLANDEMS | Hospital GEN (EMS) | 0.5000000000 | $464,779 | $464,779 | $232.39 | | |
| LIB | Library Sno-Isle GEN | 0.3153421757 | $464,779 | $464,779 | $146.56 | | |
| NWHIDPRMT | P & R N Whidbey GEN | 0.2004466701 | $464,779 | $464,779 | $93.16 | | |
| SCH201MO | School 201 Enrichment | 1.8559231640 | $464,779 | $464,779 | $862.59 | | |
| ST | State School | 1.3035497053 | $464,779 | $464,779 | $605.86 | | |
| ST2 | State School Part 2 | 0.8169543533 | $464,779 | $464,779 | $379.70 | | |
| | Total Tax Rate: | 8.4728839852 | | | | | |
| | | | | Taxes w/Current Exemptions: | $3,937.99 | | |
| | | | | Taxes w/o Exemptions: | $3,937.99 | | |
Improvement / Building
| Improvement #1: | RESIDENTIAL | State Code: | Y | 1608.0 sqft | Value: | $284,779 |
| Bathrooms: | 2 | Bedrooms: | 3 | | Ceiling: | DRYWALL PAINTED | Exterior Wall/Cover: | WOOD SIDING | | Floor Covering: | CARPET/VINYL 80-20 | Floor Structure: | WOOD W/SUBFLOOR | | Foundation: | CONCRETE | Heating: | FHA GAS | | Interior Finish: | DRYWALL PAINT | Plumbing Fixture Cnt: | 9 | | Roof Slope: | 4" IN 12" | Roof Structure/Cover: | CJ WOOD SHAKES |
|
| | Type | Description | Class CD | Sub Class CD | Year Built | Area |
| | BAS | BASE/MAIN FLOOR | 3 | 0 | 1987 | 1608.0 |
| | OP4 | OPEN PORCH W/CEILING-ROOF | 3 | 0 | 1987 | 56.0 |
| | AGR | ATTACHED GARAGE | 3 | 0 | 1987 | 480.0 |
| | OWP | OPEN WOOD PORCH W/STEPS | 3 | 0 | 1987 | 16.0 |
| | OWP | OPEN WOOD PORCH W/STEPS | 3 | 0 | 1987 | 180.0 |
| | OWR | OPEN WOOD PORCH W/STEPS/ROOF | 3 | 0 | 1987 | 180.0 |
| | OWC | OPEN WOOD PORCH W/STEPS/ROOF/C | 3 | 0 | 1987 | 24.0 |
Sketch
Property Image
Land
| 1 | 13 | SQ (06001-08000) | 0.0000 | 0.00 | 0.00 | 0.00 | 1.00 | $180,000 | $0 |
Roll Value History
| 2026 | N/A | N/A | N/A | N/A | N/A |
| 2025 | $284,779 | $180,000 | $0 | $464,779 | $464,779 |
| 2024 | $288,562 | $170,000 | $0 | $458,562 | $458,562 |
| 2023 | $272,433 | $170,000 | $0 | $442,433 | $442,433 |
| 2022 | $250,106 | $160,000 | $0 | $410,106 | $410,106 |
| 2021 | $220,451 | $120,000 | $0 | $340,451 | $340,451 |
| 2020 | $215,239 | $100,000 | $0 | $315,239 | $315,239 |
| 2019 | $157,910 | $140,000 | $0 | $297,910 | $297,910 |
| 2018 | $158,429 | $125,000 | $0 | $283,429 | $283,429 |
| 2017 | $145,046 | $110,000 | $0 | $255,046 | $255,046 |
| 2016 | $147,006 | $90,000 | $0 | $237,006 | $237,006 |
| 2015 | $148,965 | $80,000 | $0 | $228,965 | $228,965 |
| 2014 | $150,925 | $80,000 | $0 | $230,925 | $230,925 |
| 2013 | $152,885 | $80,000 | $0 | $232,885 | $232,885 |
| 2012 | $154,846 | $70,000 | $0 | $224,846 | $224,846 |
| 2011 | $163,463 | $80,000 | $0 | $243,463 | $243,463 |
| 2010 | $169,019 | $80,000 | $0 | $249,019 | $249,019 |
| 2009 | $176,209 | $97,000 | $0 | $273,209 | $273,209 |
| 2008 | $178,307 | $97,000 | $0 | $275,307 | $275,307 |
| 2007 | $180,429 | $97,000 | $0 | $277,429 | $277,429 |
Deed and Sales History
| 1 | 11/07/2005 | WD | Warranty Deed | ARNOLD, GORDON D | MERRILL, ROBERT E | | | $275,000.00 | 55655 | 4153649 |
| 2 | 10/01/1991 | WD | Warranty Deed | WALKER, MICHAEL L | ARNOLD, GORDON D | | | $128,000.00 | 13873 | 91016524 |
| 3 | 07/01/1987 | WD | Warranty Deed | VANDERVOET, LESLIE R | WALKER, MICHAEL L | | | $86,160.00 | 72014 | 87009191 |
| 4 | 02/01/1987 | WD | Warranty Deed | KOETJE, GORDON | VANDERVOET, LESLIE R | | | $19,500.00 | 70345 | 87002196 |
| 5 | 01/01/1900 | OTHER | Other - Misc. Documents | Unknown | KOETJE, GORDON | | | $0.00 | 94109 | 357608 |
Payout Agreement
| No payout information available.. |