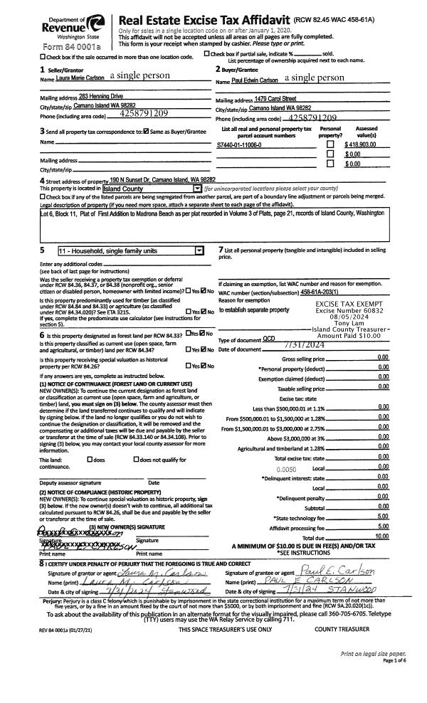
Property
Account |
| Property ID: | 590872 | Abbreviated Legal Description: | TIMBERLANE #1 LOT 8 |
| Geographic ID: | S8322-00-00008-0 | Agent Code: | |
| Type: | Real | | |
| Tax Area: | 100 - APPRAISER-OH Schl Dist, in OH | Land Use Code | 11 |
| Open Space: | N | DFL | N |
| Historic Property: | N | Remodel Property: | N |
| Multi-Family Redevelopment: | N | | |
| Township: | | Section: | |
| Range: | |
Location |
| Address: | 1981 NE 11TH AVE OAK HARBOR, WA 98277 | Mapsco: | |
| Neighborhood: | Cycle 1 | Map ID: | 262 |
| Neighborhood CD: | 1 |
Owner |
| Name: | REYNOSO, RAUL A & MARY E | Owner ID: | 80806 |
| Mailing Address: | 1981 NE 11TH AVE OAK HARBOR, WA 98277-4823 | % Ownership: | 100.0000000000% |
| | | Exemptions: | |
Taxes and Assessment Details
Values
| (+) Improvement Homesite Value: | + | $0 | |
| (+) Improvement Non-Homesite Value: | + | $264,124 | |
| (+) Land Homesite Value: | + | $0 | |
| (+) Land Non-Homesite Value: | + | $180,000 | |
| (+) Curr Use (HS): | + | $0 | $0 |
| (+) Curr Use (NHS): | + | $0 | $0 |
| | | -------------------------- | |
| (=) Market Value: | = | $444,124 | |
| (–) Productivity Loss: | – | $0 | |
| | | -------------------------- | |
| (=) Subtotal: | = | $444,124 | |
| (+) Senior Appraised Value: | + | $0 | |
| (+) Non-Senior Appraised Value: | + | $444,124 | |
| | | -------------------------- | |
| (=) Total Appraised Value: | = | $444,124 | |
| (–) Senior Exemption Loss: | – | $0 | |
| (–) Exemption Loss: | – | $0 | |
| | | -------------------------- | |
| (=) Taxable Value: | = | $444,124 | |
Taxing Jurisdiction
| Owner: | REYNOSO, RAUL A & MARY E | | |
| % Ownership: | 100.0000000000% | | |
| Total Value: | $444,124 | | |
| Tax Area: | 100 - APPRAISER-OH Schl Dist, in OH |
| CF | Conservation Futures | 0.0316035091 | $444,124 | $444,124 | $14.04 | | |
| CEM1 | Cemetery #1 | 0.0040320932 | $444,124 | $444,124 | $1.79 | | |
| COH | City of Oak Harbor | 2.3001546061 | $444,124 | $444,124 | $1,021.55 | | |
| OAKBOND | City of Oak Harbor BOND | 0.1926904192 | $444,124 | $444,124 | $85.58 | | |
| HOBOND | Hospital BOND | 0.1910887512 | $444,124 | $444,124 | $84.87 | | |
| HOGEN | Hospital GEN | 0.3902502903 | $444,124 | $444,124 | $173.32 | | |
| CE | County Current Expense | 0.3708482477 | $444,124 | $444,124 | $164.70 | | |
| ISLANDEMS | Hospital GEN (EMS) | 0.5000000000 | $444,124 | $444,124 | $222.06 | | |
| LIB | Library Sno-Isle GEN | 0.3153421757 | $444,124 | $444,124 | $140.05 | | |
| NWHIDPRMT | P & R N Whidbey GEN | 0.2004466701 | $444,124 | $444,124 | $89.02 | | |
| SCH201MO | School 201 Enrichment | 1.8559231640 | $444,124 | $444,124 | $824.26 | | |
| ST | State School | 1.3035497053 | $444,124 | $444,124 | $578.94 | | |
| ST2 | State School Part 2 | 0.8169543533 | $444,124 | $444,124 | $362.83 | | |
| | Total Tax Rate: | 8.4728839852 | | | | | |
| | | | | Taxes w/Current Exemptions: | $3,763.01 | | |
| | | | | Taxes w/o Exemptions: | $3,763.01 | | |
Improvement / Building
| Improvement #1: | RESIDENTIAL | State Code: | Y | 1642.0 sqft | Value: | $264,124 |
| Bathrooms: | 2.5 | Bedrooms: | 3 | | Ceiling: | DRY WALL SPRAYED | Cooling: | HEAT PUMP/CONV/V | | Exterior Wall/Cover: | WOOD SIDING | Floor Covering: | CARPET/VINYL 80-20 | | Floor Structure: | WOOD W/SUBFLOOR | Foundation: | CONCRETE | | Interior Finish: | DRYWALL PAINT | Plumbing Fixture Cnt: | 11 | | Roof Slope: | 4" IN 12" | Roof Structure/Cover: | CJ ASPHALT |
|
| | Type | Description | Class CD | Sub Class CD | Year Built | Area |
| | BAS | BASE/MAIN FLOOR | 3 | 0 | 1985 | 1026.0 |
| | OP3 | OPEN PORCH W/ROOF | 3 | 0 | 1985 | 32.0 |
| | AGR | ATTACHED GARAGE | 3 | 0 | 1985 | 462.0 |
| | UPS | UPPER STORY | 3 | 0 | 1985 | 616.0 |
Sketch
Property Image
Land
| 1 | 14 | SQ (08001-12000) | 0.0000 | 0.00 | 0.00 | 0.00 | 1.00 | $180,000 | $0 |
Roll Value History
| 2026 | N/A | N/A | N/A | N/A | N/A |
| 2025 | $264,124 | $180,000 | $0 | $444,124 | $444,124 |
| 2024 | $267,588 | $170,000 | $0 | $437,588 | $437,588 |
| 2023 | $256,491 | $170,000 | $0 | $426,491 | $426,491 |
| 2022 | $235,386 | $160,000 | $0 | $395,386 | $395,386 |
| 2021 | $207,401 | $125,000 | $0 | $332,401 | $332,401 |
| 2020 | $198,661 | $100,000 | $0 | $298,661 | $298,661 |
| 2019 | $144,394 | $140,000 | $0 | $284,394 | $284,394 |
| 2018 | $144,855 | $125,000 | $0 | $269,855 | $269,855 |
| 2017 | $135,843 | $110,000 | $0 | $245,843 | $245,843 |
| 2016 | $137,653 | $90,000 | $0 | $227,653 | $227,653 |
| 2015 | $139,466 | $80,000 | $0 | $219,466 | $219,466 |
| 2014 | $141,276 | $80,000 | $0 | $221,276 | $221,276 |
| 2013 | $143,088 | $80,000 | $0 | $223,088 | $223,088 |
| 2012 | $144,899 | $70,000 | $0 | $214,899 | $214,899 |
| 2011 | $144,449 | $80,000 | $0 | $224,449 | $224,449 |
| 2010 | $154,178 | $80,000 | $0 | $234,178 | $234,178 |
| 2009 | $158,612 | $97,000 | $0 | $255,612 | $255,612 |
| 2008 | $160,496 | $97,000 | $0 | $257,496 | $257,496 |
| 2007 | $162,381 | $97,000 | $0 | $259,381 | $259,381 |
Deed and Sales History
| 1 | 02/01/1992 | WD | Warranty Deed | MAYER, FRANKLIN W | REYNOSO, RAUL A | | | $124,500.00 | 20683 | 92003421 |
| 2 | 08/01/1984 | WD | Warranty Deed | KOETJE, GORDON | MAYER, FRANKLIN W | | | $79,225.00 | 42374 | 84001877 |
| 3 | 01/01/1900 | OTHER | Other - Misc. Documents | Unknown | KOETJE, GORDON | | | $0.00 | 94109 | 357608 |
Payout Agreement
| No payout information available.. |