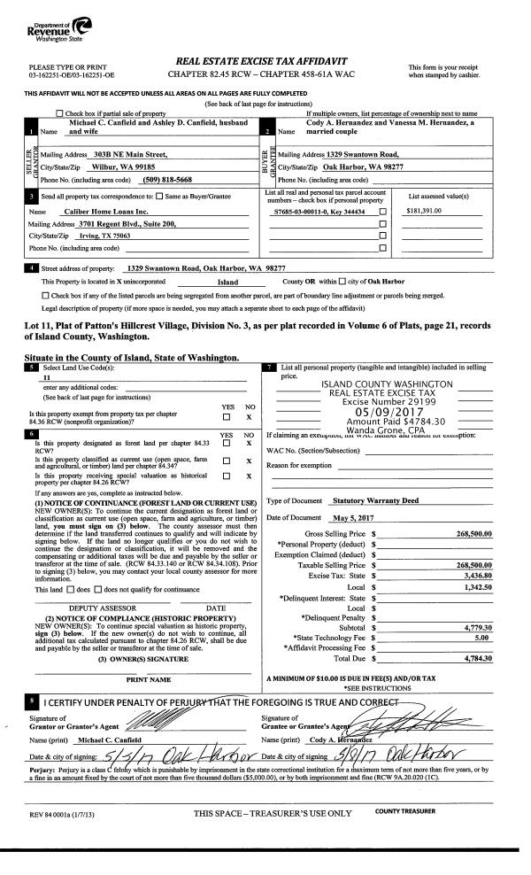
Property
Account |
| Property ID: | 590881 | Abbreviated Legal Description: | TIMBERLANE #1 LOT 9 |
| Geographic ID: | S8322-00-00009-0 | Agent Code: | |
| Type: | Real | | |
| Tax Area: | 100 - APPRAISER-OH Schl Dist, in OH | Land Use Code | 11 |
| Open Space: | N | DFL | N |
| Historic Property: | N | Remodel Property: | N |
| Multi-Family Redevelopment: | N | | |
| Township: | | Section: | |
| Range: | |
Location |
| Address: | 1969 NE 11TH AVE OAK HARBOR, WA 98277 | Mapsco: | |
| Neighborhood: | Cycle 1 | Map ID: | 262 |
| Neighborhood CD: | 1 |
Owner |
| Name: | HOLMES, TROY D | Owner ID: | 80807 |
| Mailing Address: | 1969 NE 11TH AVE OAK HARBOR, WA 98277-4823 | % Ownership: | 100.0000000000% |
| | | Exemptions: | |
Taxes and Assessment Details
Values
| (+) Improvement Homesite Value: | + | $0 | |
| (+) Improvement Non-Homesite Value: | + | $292,956 | |
| (+) Land Homesite Value: | + | $0 | |
| (+) Land Non-Homesite Value: | + | $180,000 | |
| (+) Curr Use (HS): | + | $0 | $0 |
| (+) Curr Use (NHS): | + | $0 | $0 |
| | | -------------------------- | |
| (=) Market Value: | = | $472,956 | |
| (–) Productivity Loss: | – | $0 | |
| | | -------------------------- | |
| (=) Subtotal: | = | $472,956 | |
| (+) Senior Appraised Value: | + | $0 | |
| (+) Non-Senior Appraised Value: | + | $472,956 | |
| | | -------------------------- | |
| (=) Total Appraised Value: | = | $472,956 | |
| (–) Senior Exemption Loss: | – | $0 | |
| (–) Exemption Loss: | – | $0 | |
| | | -------------------------- | |
| (=) Taxable Value: | = | $472,956 | |
Taxing Jurisdiction
| Owner: | HOLMES, TROY D | | |
| % Ownership: | 100.0000000000% | | |
| Total Value: | $472,956 | | |
| Tax Area: | 100 - APPRAISER-OH Schl Dist, in OH |
| CF | Conservation Futures | 0.0316035091 | $472,956 | $472,956 | $14.95 | | |
| CEM1 | Cemetery #1 | 0.0040320932 | $472,956 | $472,956 | $1.91 | | |
| COH | City of Oak Harbor | 2.3001546061 | $472,956 | $472,956 | $1,087.87 | | |
| OAKBOND | City of Oak Harbor BOND | 0.1926904192 | $472,956 | $472,956 | $91.13 | | |
| HOBOND | Hospital BOND | 0.1910887512 | $472,956 | $472,956 | $90.38 | | |
| HOGEN | Hospital GEN | 0.3902502903 | $472,956 | $472,956 | $184.57 | | |
| CE | County Current Expense | 0.3708482477 | $472,956 | $472,956 | $175.39 | | |
| ISLANDEMS | Hospital GEN (EMS) | 0.5000000000 | $472,956 | $472,956 | $236.48 | | |
| LIB | Library Sno-Isle GEN | 0.3153421757 | $472,956 | $472,956 | $149.14 | | |
| NWHIDPRMT | P & R N Whidbey GEN | 0.2004466701 | $472,956 | $472,956 | $94.80 | | |
| SCH201MO | School 201 Enrichment | 1.8559231640 | $472,956 | $472,956 | $877.77 | | |
| ST | State School | 1.3035497053 | $472,956 | $472,956 | $616.52 | | |
| ST2 | State School Part 2 | 0.8169543533 | $472,956 | $472,956 | $386.38 | | |
| | Total Tax Rate: | 8.4728839852 | | | | | |
| | | | | Taxes w/Current Exemptions: | $4,007.29 | | |
| | | | | Taxes w/o Exemptions: | $4,007.29 | | |
Improvement / Building
| Improvement #1: | RESIDENTIAL | State Code: | Y | 1904.9 sqft | Value: | $292,956 |
| Bathrooms: | 3 | Bedrooms: | 3 | | Ceiling: | DRYWALL PAINTED | Exterior Wall/Cover: | WOOD SIDING | | Floor Covering: | CARPET/VINYL 60-40 | Floor Structure: | WOOD W/SUBFLOOR | | Foundation: | CONCRETE | Heating: | FHA GAS | | Interior Finish: | DRYWALL PAINT | Plumbing Fixture Cnt: | 12 | | Roof Slope: | 4" IN 12" | Roof Structure/Cover: | CJ ASPHALT |
|
| | Type | Description | Class CD | Sub Class CD | Year Built | Area |
| | BAS | BASE/MAIN FLOOR | 3 | 0 | 1985 | 1145.9 |
| | AGR | ATTACHED GARAGE | 3 | 0 | 1985 | 396.0 |
| | BIG | BUILT IN GARAGE | 3 | 0 | 1985 | 156.0 |
| | UPS | UPPER STORY | 3 | 0 | 1985 | 759.0 |
| | OWP | OPEN WOOD PORCH W/STEPS | 3 | 0 | 1985 | 36.0 |
| | OWP | OPEN WOOD PORCH W/STEPS | 3 | 0 | 1985 | 140.0 |
Sketch
Property Image
Land
| 1 | 14 | SQ (08001-12000) | 0.0000 | 0.00 | 0.00 | 0.00 | 1.00 | $180,000 | $0 |
Roll Value History
| 2026 | N/A | N/A | N/A | N/A | N/A |
| 2025 | $292,956 | $180,000 | $0 | $472,956 | $472,956 |
| 2024 | $296,850 | $170,000 | $0 | $466,850 | $466,850 |
| 2023 | $284,315 | $170,000 | $0 | $454,315 | $454,315 |
| 2022 | $261,015 | $160,000 | $0 | $421,015 | $421,015 |
| 2021 | $230,058 | $125,000 | $0 | $355,058 | $355,058 |
| 2020 | $224,415 | $100,000 | $0 | $324,415 | $324,415 |
| 2019 | $168,186 | $140,000 | $0 | $308,186 | $308,186 |
| 2018 | $168,738 | $125,000 | $0 | $293,738 | $293,738 |
| 2017 | $142,242 | $110,000 | $0 | $252,242 | $252,242 |
| 2016 | $144,273 | $90,000 | $0 | $234,273 | $234,273 |
| 2015 | $146,306 | $80,000 | $0 | $226,306 | $226,306 |
| 2014 | $148,336 | $80,000 | $0 | $228,336 | $228,336 |
| 2013 | $150,370 | $80,000 | $0 | $230,370 | $230,370 |
| 2012 | $152,401 | $70,000 | $0 | $222,401 | $222,401 |
| 2011 | $151,929 | $80,000 | $0 | $231,929 | $231,929 |
| 2010 | $162,180 | $80,000 | $0 | $242,180 | $242,180 |
| 2009 | $169,152 | $97,000 | $0 | $266,152 | $266,152 |
| 2008 | $171,311 | $97,000 | $0 | $268,311 | $268,311 |
| 2007 | $173,470 | $97,000 | $0 | $270,470 | $270,470 |
Deed and Sales History
| 1 | 02/01/1986 | WD | Warranty Deed | KOETJE, GORDON | HOLMES, TROY D | | | $90,350.00 | 60302 | 86001492 |
| 2 | 01/01/1900 | OTHER | Other - Misc. Documents | Unknown | KOETJE, GORDON | | | $0.00 | 94109 | 357608 |
Payout Agreement
| No payout information available.. |