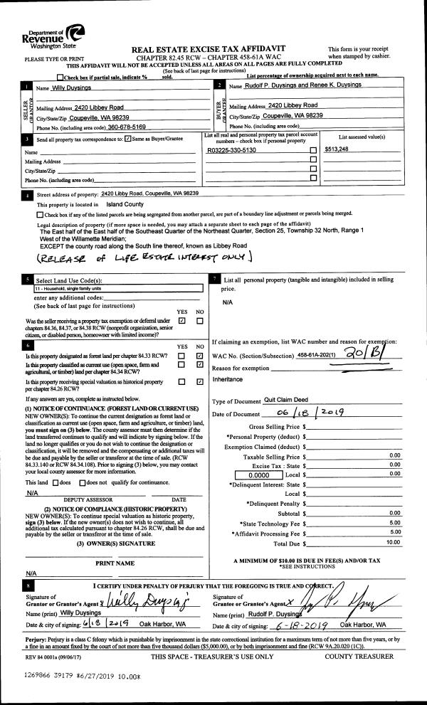
Property
Account |
| Property ID: | 591942 | Abbreviated Legal Description: | 1984 RIDGEWOOD 14X66 VIN# 09L19568 TPO %98623 |
| Geographic ID: | M914000000730 | Agent Code: | |
| Type: | Mobile Home | | |
| Tax Area: | 110 - APPRAISER-OH Schl Dist, outside OH, improved & 1 acre or less | Land Use Code | 11 |
| Open Space: | N | DFL | N |
| Historic Property: | N | Remodel Property: | N |
| Multi-Family Redevelopment: | N | | |
| Township: | | Section: | |
| Range: | |
Location |
| Address: | 34938 SR20 # 73 OAK HARBOR, WA 98277 | Mapsco: | |
| Neighborhood: | Cycle 6 | Map ID: | |
| Neighborhood CD: | 6 |
Owner |
| Name: | SMITH, AMBERRE | Owner ID: | 299371 |
| Mailing Address: | 34938 SR20 #74 OAK HARBOR, WA 98277 | % Ownership: | 100.0000000000% |
| | | Exemptions: | |
Taxes and Assessment Details
Values
| (+) Improvement Homesite Value: | + | $0 | |
| (+) Improvement Non-Homesite Value: | + | $3,689 | |
| (+) Land Homesite Value: | + | $0 | |
| (+) Land Non-Homesite Value: | + | $0 | |
| (+) Curr Use (HS): | + | $0 | $0 |
| (+) Curr Use (NHS): | + | $0 | $0 |
| | | -------------------------- | |
| (=) Market Value: | = | $3,689 | |
| (–) Productivity Loss: | – | $0 | |
| | | -------------------------- | |
| (=) Subtotal: | = | $3,689 | |
| (+) Senior Appraised Value: | + | $0 | |
| (+) Non-Senior Appraised Value: | + | $3,689 | |
| | | -------------------------- | |
| (=) Total Appraised Value: | = | $3,689 | |
| (–) Senior Exemption Loss: | – | $0 | |
| (–) Exemption Loss: | – | $0 | |
| | | -------------------------- | |
| (=) Taxable Value: | = | $3,689 | |
Taxing Jurisdiction
| Owner: | SMITH, AMBERRE | | |
| % Ownership: | 100.0000000000% | | |
| Total Value: | $3,689 | | |
| Tax Area: | 110 - APPRAISER-OH Schl Dist, outside OH, improved & 1 acre or less |
| CF | Conservation Futures | 0.0316035091 | $3,689 | $3,689 | $0.12 | | |
| CEM1 | Cemetery #1 | 0.0040320932 | $3,689 | $3,689 | $0.01 | | |
| FIRE2 | Fire & Rescue Dist #2 N Whidbey GEN | 0.5475949600 | $3,689 | $3,689 | $2.02 | | |
| HOBOND | Hospital BOND | 0.1910887512 | $3,689 | $3,689 | $0.70 | | |
| HOGEN | Hospital GEN | 0.3902502903 | $3,689 | $3,689 | $1.44 | | |
| CE | County Current Expense | 0.3708482477 | $3,689 | $3,689 | $1.37 | | |
| CR | County Roads | 0.4584763726 | $3,689 | $3,689 | $1.69 | | |
| ISLANDEMS | Hospital GEN (EMS) | 0.5000000000 | $3,689 | $3,689 | $1.84 | | |
| LIB | Library Sno-Isle GEN | 0.3153421757 | $3,689 | $3,689 | $1.16 | | |
| NWHIDPRMT | P & R N Whidbey GEN | 0.2004466701 | $3,689 | $3,689 | $0.74 | | |
| SCH201MO | School 201 Enrichment | 1.8559231640 | $3,689 | $3,689 | $6.85 | | |
| ST | State School | 1.3035497053 | $3,689 | $3,689 | $4.81 | | |
| ST2 | State School Part 2 | 0.8169543533 | $3,689 | $3,689 | $3.01 | | |
| | Total Tax Rate: | 6.9861102925 | | | | | |
| | | | | Taxes w/Current Exemptions: | $25.76 | | |
| | | | | Taxes w/o Exemptions: | $25.76 | | |
Improvement / Building
| Improvement #1: | MANUFACTURED HOME | State Code: | Y | 996.0 sqft | Value: | $3,689 |
| Bathrooms: | 0 | Bedrooms: | 0 | | Ceiling: | PLASTER PAINTED | Cooling: | EVAP NO DUCT | | Exterior Wall/Cover: | VINYL | Floor Covering: | CARPET 100% | | Floor Structure: | SLAB ON GRADE | Foundation: | SLAB | | Heating: | FHA ELECTRIC | Interior Finish: | PLASTER | | Plumbing Fixture Cnt: | 1 | Roof Slope: | FLAT | | Roof Structure/Cover: | CJ ALUMINIUM HEAVY |   |   |
|
Sketch
Property Image
Land
No land segments exist for this property.
Roll Value History
| 2026 | N/A | N/A | N/A | N/A | N/A |
| 2025 | $3,689 | $0 | $0 | $3,689 | $3,689 |
| 2024 | $3,812 | $0 | $0 | $3,812 | $3,812 |
| 2023 | $6,763 | $0 | $0 | $6,763 | $6,763 |
| 2022 | $5,696 | $0 | $0 | $5,696 | $5,696 |
| 2021 | $5,376 | $0 | $0 | $5,376 | $5,376 |
| 2020 | $5,494 | $0 | $0 | $5,494 | $5,494 |
| 2019 | $4,545 | $0 | $0 | $4,545 | $4,545 |
| 2018 | $4,761 | $0 | $0 | $4,761 | $4,761 |
| 2017 | $4,978 | $0 | $0 | $4,978 | $4,978 |
| 2016 | $2,373 | $0 | $0 | $2,373 | $2,373 |
| 2015 | $2,481 | $0 | $0 | $2,481 | $2,481 |
| 2014 | $2,589 | $0 | $0 | $2,589 | $2,589 |
| 2013 | $2,751 | $0 | $0 | $2,751 | $2,751 |
| 2012 | $2,859 | $0 | $0 | $2,859 | $2,859 |
| 2011 | $2,967 | $0 | $0 | $2,967 | $2,967 |
| 2010 | $6,932 | $0 | $0 | $6,932 | $6,932 |
| 2009 | $7,356 | $0 | $0 | $7,356 | $7,356 |
| 2008 | $7,699 | $0 | $0 | $7,699 | $7,699 |
| 2007 | $8,052 | $0 | $0 | $8,052 | $8,052 |
Deed and Sales History
| 1 | 04/29/2021 | MANHOME | Manufactured Home | SMITH, STEVE | SMITH, AMBERRE | | | $0.00 | 48239 | |
| 2 | 06/14/2019 | MANHOME | Manufactured Home | CORTES, NURI | SMITH, STEVE | | | $15,000.00 | 40117 | 4470737 |
| 3 | 07/17/2008 | OTHER | Other - Misc. Documents | MORRISON, LOREN | CORTES, NURI | | | $20,000.00 | 81879 | 0 |
| 4 | 01/29/2004 | OTHER | Other - Misc. Documents | BURRIS, SCOTT A | MORRISON, LOREN | | | $12,500.00 | 40323 | 0 |
| 5 | 02/01/1997 | OTHER | Other - Misc. Documents | TERRILL, JON M | BURRIS, SCOTT A | | | $17,000.00 | 70587 | 0 |
| 6 | 08/01/1988 | OTHER | Other - Misc. Documents | MILLER, ROBIN J | TERRILL, JON M | | | $15,362.00 | 82699 | 0 |
| 7 | 06/01/1984 | OTHER | Other - Misc. Documents | MILLER, ROBIN J | MILLER, ROBIN J | | | $14,995.00 | 11111111 | 0 |
| 8 | 01/01/1900 | OTHER | Other - Misc. Documents | Unknown | MILLER, ROBIN J | | | $0.00 | 0 | 0 |
Payout Agreement
| No payout information available.. |