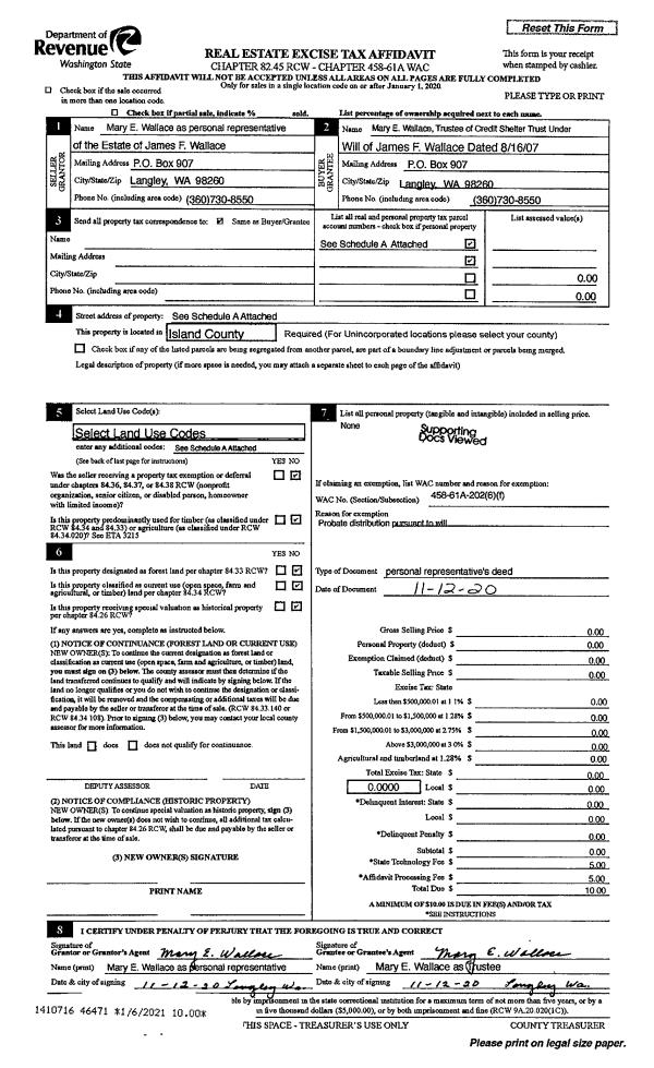
Property
Account |
| Property ID: | 592460 | Abbreviated Legal Description: | TRACT F IN GL 1 INCL ADJ TIDES V6 SURVEYS P43/44 TGW & SUB EZS EX E25' FR 410-2580 |
| Geographic ID: | R22922-400-2300 | Agent Code: | |
| Type: | Real | | |
| Tax Area: | 710 - APPRAISER-S Whid Schl Dist, outside Langley, improved & 1 acre or less | Land Use Code | 11 |
| Open Space: | N | DFL | N |
| Historic Property: | N | Remodel Property: | N |
| Multi-Family Redevelopment: | N | | |
| Township: | 29 | Section: | 22 |
| Range: | R2 |
Location |
| Address: | 6090 ROBINSON RD FREELAND, WA 98249 | Mapsco: | |
| Neighborhood: | Cycle 3 | Map ID: | 336 |
| Neighborhood CD: | 3 |
Owner |
| Name: | MUTINY BAY TRUST | Owner ID: | 14403 |
| Mailing Address: | % FRANK ROBINSON TRUSTEE 321 ROCKY POINT RD PALOS VERDES ESTATES, CA 90274 | % Ownership: | 100.0000000000% |
| | | Exemptions: | |
Taxes and Assessment Details
Values
| (+) Improvement Homesite Value: | + | $0 | |
| (+) Improvement Non-Homesite Value: | + | $1,020,575 | |
| (+) Land Homesite Value: | + | $0 | |
| (+) Land Non-Homesite Value: | + | $2,550,000 | |
| (+) Curr Use (HS): | + | $0 | $0 |
| (+) Curr Use (NHS): | + | $0 | $0 |
| | | -------------------------- | |
| (=) Market Value: | = | $3,570,575 | |
| (–) Productivity Loss: | – | $0 | |
| | | -------------------------- | |
| (=) Subtotal: | = | $3,570,575 | |
| (+) Senior Appraised Value: | + | $0 | |
| (+) Non-Senior Appraised Value: | + | $3,570,575 | |
| | | -------------------------- | |
| (=) Total Appraised Value: | = | $3,570,575 | |
| (–) Senior Exemption Loss: | – | $0 | |
| (–) Exemption Loss: | – | $0 | |
| | | -------------------------- | |
| (=) Taxable Value: | = | $3,570,575 | |
Taxing Jurisdiction
| Owner: | MUTINY BAY TRUST | | |
| % Ownership: | 100.0000000000% | | |
| Total Value: | $3,570,575 | | |
| Tax Area: | 710 - APPRAISER-S Whid Schl Dist, outside Langley, improved & 1 acre or less |
| CF | Conservation Futures | 0.0316035091 | $3,570,575 | $3,570,575 | $112.84 | | |
| FIRE3 | Fire & Rescue Dist #3 S Whidbey GEN | 1.2004855531 | $3,570,575 | $3,570,575 | $4,286.42 | | |
| HOBOND | Hospital BOND | 0.1910887512 | $3,570,575 | $3,570,575 | $682.30 | | |
| HOGEN | Hospital GEN | 0.3902502903 | $3,570,575 | $3,570,575 | $1,393.42 | | |
| CE | County Current Expense | 0.3708482477 | $3,570,575 | $3,570,575 | $1,324.14 | | |
| CR | County Roads | 0.4584763726 | $3,570,575 | $3,570,575 | $1,637.02 | | |
| ISLANDEMS | Hospital GEN (EMS) | 0.5000000000 | $3,570,575 | $3,570,575 | $1,785.29 | | |
| LIB | Library Sno-Isle GEN | 0.3153421757 | $3,570,575 | $3,570,575 | $1,125.95 | | |
| PORTWHID | Port of S Whidbey GEN | 0.1094540357 | $3,570,575 | $3,570,575 | $390.81 | | |
| SCH206BOND | School 206 BOND | 0.3161759235 | $3,570,575 | $3,570,575 | $1,128.93 | | |
| SCH206MO | School 206 Enrichment | 0.4547169547 | $3,570,575 | $3,570,575 | $1,623.60 | | |
| ST | State School | 1.3035497053 | $3,570,575 | $3,570,575 | $4,654.42 | | |
| ST2 | State School Part 2 | 0.8169543533 | $3,570,575 | $3,570,575 | $2,917.00 | | |
| SWHIDPRBD | P & R S Whidbey BOND | 0.0152817568 | $3,570,575 | $3,570,575 | $54.56 | | |
| SWHIDPRBD2 | P & R S Whidbey BOND2 | 0.0138911264 | $3,570,575 | $3,570,575 | $49.60 | | |
| SWHIDPRMT | P & R S Whidbey GEN | 0.2053334452 | $3,570,575 | $3,570,575 | $733.16 | | |
| | Total Tax Rate: | 6.6934522006 | | | | | |
| | | | | Taxes w/Current Exemptions: | $23,899.46 | | |
| | | | | Taxes w/o Exemptions: | $23,899.46 | | |
Improvement / Building
| Improvement #1: | RESIDENTIAL | State Code: | Y | 4689.1 sqft | Value: | $1,020,575 |
| Bathrooms: | 6.5 | Bedrooms: | 7 | | Ceiling: | PLASTER PAINTED | Exterior Wall/Cover: | WOOD SIDING | | Floor Covering: | HARDWOOD/CARP 60-40 | Floor Structure: | WOOD W/SUBFLOOR | | Foundation: | CONCRETE | Heating: | FHA ELECTRIC | | Interior Finish: | DRYWALL PAINT | Plumbing Fixture Cnt: | 24 | | Roof Slope: | 4" IN 12" | Roof Structure/Cover: | BEAM CONCRETE TILE |
|
| | Type | Description | Class CD | Sub Class CD | Year Built | Area |
| | BAS | BASE/MAIN FLOOR | 5 | 0 | 1987 | 2359.0 |
| | OP2 | OPEN PORCH W/STEPS | 5 | 0 | 1987 | 116.0 |
| | OP4 | OPEN PORCH W/CEILING-ROOF | 5 | 0 | 1987 | 60.8 |
| | AGR | ATTACHED GARAGE | 5 | 0 | 1987 | 807.5 |
| | UPS | UPPER STORY | 5 | 0 | 1987 | 1206.5 |
| | OWP | OPEN WOOD PORCH W/STEPS | 5 | 0 | 1987 | 837.0 |
| | OWC | OPEN WOOD PORCH W/STEPS/ROOF/C | 5 | 0 | 1987 | 554.5 |
| | oOBD | Out Buildings | 5 | 0 | 1987 | 0.0 |
| | BAS | BASE/MAIN FLOOR | 5 | 0 | 1987 | 1123.6 |
| | OWP | OPEN WOOD PORCH W/STEPS | 5 | 0 | 1987 | 50.8 |
| | OWP | OPEN WOOD PORCH W/STEPS | 5 | 0 | 1987 | 325.1 |
| | OWC | OPEN WOOD PORCH W/STEPS/ROOF/C | 5 | 0 | 1987 | 87.3 |
Sketch
Property Image
Land
| 1 | LB | LOW BANK | 0.6400 | 27878.40 | 135.00 | 0.00 | 1.00 | $2,550,000 | $0 |
Roll Value History
| 2026 | N/A | N/A | N/A | N/A | N/A |
| 2025 | $1,020,575 | $2,550,000 | $0 | $3,570,575 | $3,570,575 |
| 2024 | $1,032,517 | $2,550,000 | $0 | $3,582,517 | $3,582,517 |
| 2023 | $1,044,461 | $2,550,000 | $0 | $3,594,461 | $3,594,461 |
| 2022 | $956,794 | $2,500,000 | $0 | $3,456,794 | $3,456,794 |
| 2021 | $841,704 | $2,275,000 | $0 | $3,116,704 | $3,116,704 |
| 2020 | $818,403 | $2,080,000 | $0 | $2,898,403 | $2,898,403 |
| 2019 | $661,415 | $2,100,000 | $0 | $2,761,415 | $2,761,415 |
| 2018 | $663,395 | $2,000,000 | $0 | $2,663,395 | $2,663,395 |
| 2017 | $667,215 | $2,000,000 | $0 | $2,667,215 | $2,667,215 |
| 2016 | $675,128 | $2,000,000 | $0 | $2,675,128 | $2,675,128 |
| 2015 | $683,043 | $2,000,000 | $0 | $2,683,043 | $2,683,043 |
| 2014 | $690,957 | $1,800,000 | $0 | $2,490,957 | $2,490,957 |
| 2013 | $694,474 | $1,804,341 | $0 | $2,498,815 | $2,498,815 |
| 2012 | $702,900 | $1,804,341 | $0 | $2,507,241 | $2,507,241 |
| 2011 | $711,322 | $1,804,341 | $0 | $2,515,663 | $2,515,663 |
| 2010 | $720,736 | $1,804,341 | $0 | $2,525,077 | $2,525,077 |
| 2009 | $751,848 | $2,157,041 | $0 | $2,908,889 | $2,908,889 |
| 2008 | $693,052 | $2,468,903 | $0 | $3,161,955 | $3,161,955 |
| 2007 | $700,461 | $2,468,903 | $0 | $3,169,364 | $3,169,364 |
Deed and Sales History
| 1 | 03/01/1989 | OTHER | Other - Misc. Documents | MUTINY, BAY T | MUTINY, BAY T | | | $0.00 | 63059 | 89003070 |
| 2 | 12/01/1987 | TRUSTEED | Trustee's Deed | ROBINSON, KURT L | MUTINY, BAY T | | | $0.00 | 80926 | 88003619 |
| 3 | 07/01/1985 | REC | Real Estate Contract | ROBINSON, FRANK | ROBINSON, KURT L | | | $0.00 | 51986 | 85007774 |
| 4 | 03/01/1985 | OTHER | Other - Misc. Documents | ROBINSON, ELIZABETH M | ROBINSON, FRANK | | | $0.00 | 61067 | 0 |
| 5 | 12/01/1980 | CD | DNU - Correction Deed | , | ROBINSON, ELIZABETH M | | | $0.00 | 10069 | 378226 |
| 6 | 05/01/1976 | QCD | Quit Claim Deed | Unknown | , | | | $0.00 | 61531 | 0 |
Payout Agreement
| No payout information available.. |