Property
Account |
| Property ID: | 592512 | Abbreviated Legal Description: | LOT 1 SP81-57.32902.317.445 V1 SP P186 AF#404201 EX:BG SW CR SD L1 N159' N89*E175' N592.49' S82*E108.67' S757. .15' N86*W283.35' TPB TGW: BG E/4 CR N86*W669.8' N1* E1350' N214.3' N82*W679' TPB S71*W79.68' S262.77' S84*E57.11' N3*E TPB TGW: BG E/4 CR N86*W |
| Geographic ID: | R32902-366-4400 | Agent Code: | |
| Type: | Real | | |
| Tax Area: | 712 - APPRAISER-S Whid Schl Dist, outside Langley, improved, greater than 1 acre | Land Use Code | 11 |
| Open Space: | N | DFL | N |
| Historic Property: | N | Remodel Property: | N |
| Multi-Family Redevelopment: | N | | |
| Township: | 29 | Section: | 02 |
| Range: | R3 |
Location |
| Address: | 4308 CLYDE RD LANGLEY, WA 98260 | Mapsco: | |
| Neighborhood: | Cycle 4 | Map ID: | 722 |
| Neighborhood CD: | 4 |
Owner |
| Name: | HERRERA, NEVA B | Owner ID: | 281416 |
| Mailing Address: | ALFREDO HERRERA 4308 CLYDE RD LANGLEY, WA 98260 | % Ownership: | 100.0000000000% |
| | | Exemptions: | |
Taxes and Assessment Details
Values
| (+) Improvement Homesite Value: | + | $0 | |
| (+) Improvement Non-Homesite Value: | + | $297,720 | |
| (+) Land Homesite Value: | + | $0 | |
| (+) Land Non-Homesite Value: | + | $380,000 | |
| (+) Curr Use (HS): | + | $0 | $0 |
| (+) Curr Use (NHS): | + | $0 | $0 |
| | | -------------------------- | |
| (=) Market Value: | = | $677,720 | |
| (–) Productivity Loss: | – | $0 | |
| | | -------------------------- | |
| (=) Subtotal: | = | $677,720 | |
| (+) Senior Appraised Value: | + | $0 | |
| (+) Non-Senior Appraised Value: | + | $677,720 | |
| | | -------------------------- | |
| (=) Total Appraised Value: | = | $677,720 | |
| (–) Senior Exemption Loss: | – | $0 | |
| (–) Exemption Loss: | – | $0 | |
| | | -------------------------- | |
| (=) Taxable Value: | = | $677,720 | |
Taxing Jurisdiction
| Owner: | HERRERA, NEVA B | | |
| % Ownership: | 100.0000000000% | | |
| Total Value: | $677,720 | | |
| Tax Area: | 712 - APPRAISER-S Whid Schl Dist, outside Langley, improved, greater than 1 acre |
| CF | Conservation Futures | 0.0316035091 | $677,720 | $677,720 | $21.42 | | |
| FIRE3 | Fire & Rescue Dist #3 S Whidbey GEN | 1.2004855531 | $677,720 | $677,720 | $813.59 | | |
| HOBOND | Hospital BOND | 0.1910887512 | $677,720 | $677,720 | $129.50 | | |
| HOGEN | Hospital GEN | 0.3902502903 | $677,720 | $677,720 | $264.48 | | |
| CE | County Current Expense | 0.3708482477 | $677,720 | $677,720 | $251.33 | | |
| CR | County Roads | 0.4584763726 | $677,720 | $677,720 | $310.72 | | |
| ISLANDEMS | Hospital GEN (EMS) | 0.5000000000 | $677,720 | $677,720 | $338.86 | | |
| LIB | Library Sno-Isle GEN | 0.3153421757 | $677,720 | $677,720 | $213.71 | | |
| PORTWHID | Port of S Whidbey GEN | 0.1094540357 | $677,720 | $677,720 | $74.18 | | |
| SCH206BOND | School 206 BOND | 0.3161759235 | $677,720 | $677,720 | $214.28 | | |
| SCH206MO | School 206 Enrichment | 0.4547169547 | $677,720 | $677,720 | $308.17 | | |
| ST | State School | 1.3035497053 | $677,720 | $677,720 | $883.44 | | |
| ST2 | State School Part 2 | 0.8169543533 | $677,720 | $677,720 | $553.67 | | |
| SWHIDPRBD | P & R S Whidbey BOND | 0.0152817568 | $677,720 | $677,720 | $10.36 | | |
| SWHIDPRBD2 | P & R S Whidbey BOND2 | 0.0138911264 | $677,720 | $677,720 | $9.41 | | |
| SWHIDPRMT | P & R S Whidbey GEN | 0.2053334452 | $677,720 | $677,720 | $139.16 | | |
| | Total Tax Rate: | 6.6934522006 | | | | | |
| | | | | Taxes w/Current Exemptions: | $4,536.28 | | |
| | | | | Taxes w/o Exemptions: | $4,536.28 | | |
Improvement / Building
| Improvement #1: | RESIDENTIAL | State Code: | Y | 2095.0 sqft | Value: | $297,720 |
| Bathrooms: | 2.5 | Bedrooms: | 3 | | Ceiling: | DRYWALL PAINTED | Exterior Wall/Cover: | PLY/HARDBOARD T-111 | | Floor Covering: | SOFTWOOD/VINYL 80-20 | Floor Structure: | WOOD W/SUBFLOOR | | Foundation: | CONCRETE | Heating: | FHA OIL | | Interior Finish: | DRYWALL PAINT | Plumbing Fixture Cnt: | 11 | | Roof Slope: | 4" IN 12" | Roof Structure/Cover: | CJ ASPHALT |
|
| | Type | Description | Class CD | Sub Class CD | Year Built | Area |
| | BAS | BASE/MAIN FLOOR | 3 | 0 | 1925 | 2095.0 |
| | ATF | ATTIC FINISHED | 3 | 0 | 1925 | 240.0 |
| | OWR | OPEN WOOD PORCH W/STEPS/ROOF | 3 | 0 | 1925 | 52.0 |
| | DGR | DETACHED GARAGE | 3 | 0 | 1925 | 800.0 |
| | OWP | OPEN WOOD PORCH W/STEPS | 3 | 0 | 1925 | 263.0 |
| | OCP | OPEN CARPORT | 3 | 0 | 1925 | 400.0 |
Sketch
Property Image
Land
| 1 | 18 | AC (02.01-03.00) | 0.0000 | 0.00 | 0.00 | 0.00 | 1.00 | $380,000 | $0 |
Roll Value History
| 2026 | N/A | N/A | N/A | N/A | N/A |
| 2025 | $297,720 | $380,000 | $0 | $677,720 | $677,720 |
| 2024 | $302,147 | $360,000 | $0 | $662,147 | $662,147 |
| 2023 | $306,574 | $360,000 | $0 | $666,574 | $666,574 |
| 2022 | $281,604 | $280,000 | $0 | $561,604 | $561,604 |
| 2021 | $248,363 | $260,000 | $0 | $508,363 | $508,363 |
| 2020 | $182,766 | $270,000 | $0 | $452,766 | $452,766 |
| 2019 | $138,710 | $300,000 | $0 | $438,710 | $438,710 |
| 2018 | $139,198 | $260,000 | $0 | $399,198 | $399,198 |
| 2017 | $140,172 | $190,000 | $0 | $330,172 | $330,172 |
| 2016 | $142,118 | $180,000 | $0 | $322,118 | $322,118 |
| 2015 | $144,064 | $180,000 | $0 | $324,064 | $324,064 |
| 2014 | $88,954 | $180,000 | $0 | $268,954 | $268,954 |
| 2013 | $90,842 | $180,000 | $0 | $270,842 | $270,842 |
| 2012 | $92,733 | $180,000 | $0 | $272,733 | $272,733 |
| 2011 | $94,000 | $200,000 | $0 | $294,000 | $294,000 |
| 2010 | $97,247 | $200,000 | $0 | $297,247 | $297,247 |
| 2009 | $99,779 | $225,000 | $0 | $324,779 | $324,779 |
| 2008 | $140,207 | $377,000 | $0 | $517,207 | $517,207 |
| 2007 | $142,631 | $377,000 | $0 | $519,631 | $519,631 |
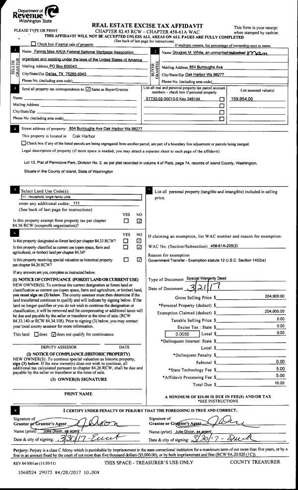
Deed and Sales History
| 1 | 08/11/2017 | QCD | Quit Claim Deed | HERRERA, NEVA B | HERRERA, NEVA B | | | $0.00 | 30632 | 4428154 |
| 2 | 05/25/2017 | SPWARDEED | Special Warranty Deed | BATCHELOR, FRANKLIN W / BETTY | HERRERA, NEVA B | | | $0.00 | 29872 | 4424808 |
| 3 | 01/01/1997 | WD | Warranty Deed | BATCHELOR, FRANKLIN W | BATCHELOR, FRANKLIN W | | | $0.00 | 70554 | 97002573 |
| 4 | 03/01/1985 | OTHER | Other - Misc. Documents | REDFORD, RONALD G | REDFORD, RONALD G | | | $0.00 | 61075 | 84006940 |
| 5 | 03/01/1985 | WD | Warranty Deed | REDFORD, RONALD G | BATCHELOR, FRANKLIN W | | | $89,500.00 | 50665 | 85002869 |
| 6 | 04/01/1981 | CD | DNU - Correction Deed | Unknown | REDFORD, RONALD G | | | $1.00 | 11296 | 382373 |
Payout Agreement
| No payout information available.. |