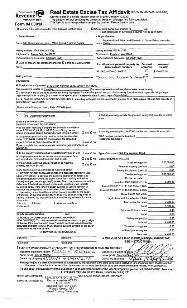
Property
Account |
| Property ID: | 592549 | Abbreviated Legal Description: | REPLACES PT P# 315-5210 ASSESSED/W 32813-282-0150 & 280-0150 PT OF N50' OF S303' OF SE NE LY E OF MOST ELY PT OF POSSESSION RD AC & VAL CHG 3/26/85 |
| Geographic ID: | R32814-317-5450 | Agent Code: | |
| Type: | Real | | |
| Tax Area: | 719 - APPRAISER-S Whid Schl Dist, outside Langley, vacant & 50 acres or less | Land Use Code | 91 |
| Open Space: | N | DFL | N |
| Historic Property: | N | Remodel Property: | N |
| Multi-Family Redevelopment: | N | | |
| Township: | 28 | Section: | 14 |
| Range: | R3 |
Location |
| Address: | | Mapsco: | |
| Neighborhood: | Cycle 4 | Map ID: | 711 |
| Neighborhood CD: | 4 |
Owner |
| Name: | VADNAIS, DIANE H | Owner ID: | 191509 |
| Mailing Address: | 2518 HILLIS DR LANGLEY, WA 98260 | % Ownership: | 100.0000000000% |
| | | Exemptions: | EX |
Taxes and Assessment Details
Values
| (+) Improvement Homesite Value: | + | $0 | |
| (+) Improvement Non-Homesite Value: | + | $0 | |
| (+) Land Homesite Value: | + | $0 | |
| (+) Land Non-Homesite Value: | + | $17,000 | |
| (+) Curr Use (HS): | + | $0 | $0 |
| (+) Curr Use (NHS): | + | $0 | $0 |
| | | -------------------------- | |
| (=) Market Value: | = | $17,000 | |
| (–) Productivity Loss: | – | $0 | |
| | | -------------------------- | |
| (=) Subtotal: | = | $17,000 | |
| (+) Senior Appraised Value: | + | $0 | |
| (+) Non-Senior Appraised Value: | + | $17,000 | |
| | | -------------------------- | |
| (=) Total Appraised Value: | = | $17,000 | |
| (–) Senior Exemption Loss: | – | $0 | |
| (–) Exemption Loss: | – | $17,000 | |
| | | -------------------------- | |
| (=) Taxable Value: | = | $0 | |
Taxing Jurisdiction
| Owner: | VADNAIS, DIANE H | | |
| % Ownership: | 100.0000000000% | | |
| Total Value: | $17,000 | | |
| Tax Area: | 719 - APPRAISER-S Whid Schl Dist, outside Langley, vacant & 50 acres or less |
| CF | Conservation Futures | 0.0316035091 | $17,000 | $0 | $0.00 | | |
| HOBOND | Hospital BOND | 0.1910887512 | $17,000 | $0 | $0.00 | | |
| HOGEN | Hospital GEN | 0.3902502903 | $17,000 | $0 | $0.00 | | |
| CE | County Current Expense | 0.3708482477 | $17,000 | $0 | $0.00 | | |
| CR | County Roads | 0.4584763726 | $17,000 | $0 | $0.00 | | |
| ISLANDEMS | Hospital GEN (EMS) | 0.5000000000 | $17,000 | $0 | $0.00 | | |
| LIB | Library Sno-Isle GEN | 0.3153421757 | $17,000 | $0 | $0.00 | | |
| PORTWHID | Port of S Whidbey GEN | 0.1094540357 | $17,000 | $0 | $0.00 | | |
| SCH206BOND | School 206 BOND | 0.3161759235 | $17,000 | $0 | $0.00 | | |
| SCH206MO | School 206 Enrichment | 0.4547169547 | $17,000 | $0 | $0.00 | | |
| ST | State School | 1.3035497053 | $17,000 | $0 | $0.00 | | |
| ST2 | State School Part 2 | 0.8169543533 | $17,000 | $0 | $0.00 | | |
| SWHIDPRBD | P & R S Whidbey BOND | 0.0152817568 | $17,000 | $0 | $0.00 | | |
| SWHIDPRBD2 | P & R S Whidbey BOND2 | 0.0138911264 | $17,000 | $0 | $0.00 | | |
| SWHIDPRMT | P & R S Whidbey GEN | 0.2053334452 | $17,000 | $0 | $0.00 | | |
| | Total Tax Rate: | 5.4929666475 | | | | | |
| | | | | Taxes w/Current Exemptions: | $0.00 | | |
| | | | | Taxes w/o Exemptions: | $93.37 | | |
Improvement / Building
Sketch
| No sketches available for this property. |
Property Image
Land
| 1 | 12 | SQ (00000-06000) | 0.0900 | 3920.40 | 0.00 | 0.00 | 1.00 | $17,000 | $0 |
Roll Value History
| 2026 | N/A | N/A | N/A | N/A | N/A |
| 2025 | $0 | $17,000 | $0 | $17,000 | $0 |
| 2024 | $0 | $17,000 | $0 | $17,000 | $0 |
| 2023 | $0 | $15,000 | $0 | $15,000 | $0 |
| 2022 | $0 | $15,000 | $0 | $15,000 | $0 |
| 2021 | $0 | $15,000 | $0 | $15,000 | $0 |
| 2020 | $0 | $15,000 | $0 | $15,000 | $0 |
| 2019 | $0 | $15,000 | $0 | $15,000 | $0 |
| 2018 | $0 | $100,000 | $0 | $100,000 | $0 |
| 2017 | $0 | $85,000 | $0 | $85,000 | $0 |
| 2016 | $0 | $85,000 | $0 | $85,000 | $0 |
| 2015 | $0 | $85,000 | $0 | $85,000 | $0 |
| 2014 | $0 | $5,305 | $0 | $5,305 | $0 |
| 2013 | $0 | $5,305 | $0 | $5,305 | $0 |
| 2012 | $0 | $5,305 | $0 | $5,305 | $0 |
| 2011 | $0 | $5,305 | $0 | $5,305 | $0 |
| 2010 | $0 | $5,305 | $0 | $5,305 | $0 |
| 2009 | $0 | $5,305 | $0 | $5,305 | $0 |
| 2008 | $0 | $5,305 | $0 | $5,305 | $0 |
| 2007 | $0 | $5,305 | $0 | $5,305 | $0 |
Deed and Sales History
| 1 | 10/30/2003 | WD | Warranty Deed | ROGERS, ALBERTA S | VADNAIS, DIANE H | | | $900.00 | 35017 | 4081850 |
| 2 | 12/01/1988 | TRUSTEED | Trustee's Deed | CELIGOY, JOHN | ROGERS, ALBERTA S | | | $0.00 | 84423 | 88016422 |
| 3 | 04/01/1987 | DECREE | Divorce Decree/Legal Separation | CELIGOY, JOHN | CELIGOY, JOHN | | | $0.00 | 71021 | 87005204 |
| 4 | 03/01/1985 | OTHER | Other - Misc. Documents | CELIGOY, JOHN | CELIGOY, JOHN | | | $0.00 | 61080 | 0 |
| 5 | 05/01/1984 | OTHER | Other - Misc. Documents | Unknown | CELIGOY, JOHN | | | $0.00 | 60598 | 0 |
Payout Agreement
| No payout information available.. |