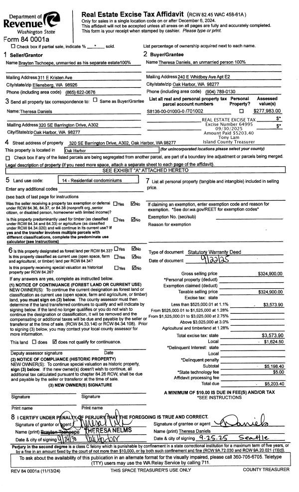
Property
Account |
| Property ID: | 593012 | Abbreviated Legal Description: | LOT A SP 84-33.32927.170-2430 V1 SP P319 AF#85001342 TGW & SUB EZ AF#90018592 |
| Geographic ID: | R32927-189-2400 | Agent Code: | |
| Type: | Real | | |
| Tax Area: | 712 - APPRAISER-S Whid Schl Dist, outside Langley, improved, greater than 1 acre | Land Use Code | 11 |
| Open Space: | N | DFL | N |
| Historic Property: | N | Remodel Property: | N |
| Multi-Family Redevelopment: | N | | |
| Township: | 29 | Section: | 27 |
| Range: | R3 |
Location |
| Address: | 3800 LOG CABIN RD CLINTON, WA 98236 | Mapsco: | |
| Neighborhood: | Cycle 4 | Map ID: | 820 |
| Neighborhood CD: | 4 |
Owner |
| Name: | KLASSEN TTEE, BRANDON MICHAEL | Owner ID: | 302349 |
| Mailing Address: | ELIZABETH ANN SHANTZ KLASSEN 3800 LOG CABIN RD CLINTON, WA 98236 | % Ownership: | 100.0000000000% |
| | | Exemptions: | |
Taxes and Assessment Details
Values
| (+) Improvement Homesite Value: | + | $0 | |
| (+) Improvement Non-Homesite Value: | + | $566,050 | |
| (+) Land Homesite Value: | + | $0 | |
| (+) Land Non-Homesite Value: | + | $420,000 | |
| (+) Curr Use (HS): | + | $0 | $0 |
| (+) Curr Use (NHS): | + | $0 | $0 |
| | | -------------------------- | |
| (=) Market Value: | = | $986,050 | |
| (–) Productivity Loss: | – | $0 | |
| | | -------------------------- | |
| (=) Subtotal: | = | $986,050 | |
| (+) Senior Appraised Value: | + | $0 | |
| (+) Non-Senior Appraised Value: | + | $986,050 | |
| | | -------------------------- | |
| (=) Total Appraised Value: | = | $986,050 | |
| (–) Senior Exemption Loss: | – | $0 | |
| (–) Exemption Loss: | – | $0 | |
| | | -------------------------- | |
| (=) Taxable Value: | = | $986,050 | |
Taxing Jurisdiction
| Owner: | KLASSEN TTEE, BRANDON MICHAEL | | |
| % Ownership: | 100.0000000000% | | |
| Total Value: | $986,050 | | |
| Tax Area: | 712 - APPRAISER-S Whid Schl Dist, outside Langley, improved, greater than 1 acre |
| CF | Conservation Futures | 0.0316035091 | $986,050 | $986,050 | $31.16 | | |
| FIRE3 | Fire & Rescue Dist #3 S Whidbey GEN | 1.2004855531 | $986,050 | $986,050 | $1,183.74 | | |
| HOBOND | Hospital BOND | 0.1910887512 | $986,050 | $986,050 | $188.42 | | |
| HOGEN | Hospital GEN | 0.3902502903 | $986,050 | $986,050 | $384.81 | | |
| CE | County Current Expense | 0.3708482477 | $986,050 | $986,050 | $365.67 | | |
| CR | County Roads | 0.4584763726 | $986,050 | $986,050 | $452.08 | | |
| ISLANDEMS | Hospital GEN (EMS) | 0.5000000000 | $986,050 | $986,050 | $493.03 | | |
| LIB | Library Sno-Isle GEN | 0.3153421757 | $986,050 | $986,050 | $310.94 | | |
| PORTWHID | Port of S Whidbey GEN | 0.1094540357 | $986,050 | $986,050 | $107.93 | | |
| SCH206BOND | School 206 BOND | 0.3161759235 | $986,050 | $986,050 | $311.77 | | |
| SCH206MO | School 206 Enrichment | 0.4547169547 | $986,050 | $986,050 | $448.37 | | |
| ST | State School | 1.3035497053 | $986,050 | $986,050 | $1,285.37 | | |
| ST2 | State School Part 2 | 0.8169543533 | $986,050 | $986,050 | $805.56 | | |
| SWHIDPRBD | P & R S Whidbey BOND | 0.0152817568 | $986,050 | $986,050 | $15.07 | | |
| SWHIDPRBD2 | P & R S Whidbey BOND2 | 0.0138911264 | $986,050 | $986,050 | $13.70 | | |
| SWHIDPRMT | P & R S Whidbey GEN | 0.2053334452 | $986,050 | $986,050 | $202.47 | | |
| | Total Tax Rate: | 6.6934522006 | | | | | |
| | | | | Taxes w/Current Exemptions: | $6,600.09 | | |
| | | | | Taxes w/o Exemptions: | $6,600.09 | | |
Improvement / Building
| Improvement #1: | RESIDENTIAL | State Code: | Y | 4402.0 sqft | Value: | $288,237 |
| Bathrooms: | 4.5 | Bedrooms: | 4 | | Ceiling: | DRYWALL PAINTED | Cooling: | HEAT PUMP/CONV/V | | Exterior Wall/Cover: | PLY/HARDBOARD T-111 | Floor Covering: | (NONE) | | Floor Structure: | SLAB ON GRADE | Foundation: | CONCRETE | | Interior Finish: | DRYWALL PAINT | Plumbing Fixture Cnt: | 19 | | Roof Slope: | 4" IN 12" | Roof Structure/Cover: | CJ ASPHALT |
|
| | Type | Description | Class CD | Sub Class CD | Year Built | Area |
| | BAS | BASE/MAIN FLOOR | 3 | 0 | 1976 | 1398.5 |
| | OWP | OPEN WOOD PORCH W/STEPS | 3 | 0 | 1976 | 55.0 |
| | BIG | BUILT IN GARAGE | 3 | 0 | 1976 | 528.7 |
| | UPS | UPPER STORY | 3 | 0 | 1976 | 2083.5 |
| | OWP | OPEN WOOD PORCH W/STEPS | 3 | 0 | 1976 | 548.0 |
| | OWC | OPEN WOOD PORCH W/STEPS/ROOF/C | 3 | 0 | 1976 | 132.0 |
| | DWN | DOWNSTAIRS LIVING AREA | 3 | 0 | 1976 | 920.0 |
| | oPOL | POLE BARN | 3 | 0 | 1976 | 768.0 |
| Improvement #2: | RESIDENTIAL | State Code: | Y | 990.0 sqft | Value: | $277,813 |
| Bathrooms: | 0.75 | Bedrooms: | 1 | | Ceiling: | DRYWALL PAINTED | Cooling: | HEAT PUMP/CONV/V | | Exterior Wall/Cover: | CEMENT FIBER | Floor Covering: | VINYL 100% | | Floor Structure: | WOOD W/SUBFLOOR | Foundation: | CONCRETE | | Interior Finish: | DRYWALL PAINT | Plumbing Fixture Cnt: | 6 | | Roof Slope: | 5" IN 12" | Roof Structure/Cover: | CJ ASPHALT |
|
| | Type | Description | Class CD | Sub Class CD | Year Built | Area |
| | BAS | BASE/MAIN FLOOR | 3 | 0 | 2020 | 990.0 |
| | AGR | ATTACHED GARAGE | 3 | 0 | 2020 | 748.0 |
| | OWC | OPEN WOOD PORCH W/STEPS/ROOF/C | 3 | 0 | 2020 | 20.0 |
| | OWC | OPEN WOOD PORCH W/STEPS/ROOF/C | 3 | 0 | 2020 | 144.0 |
| | oPOL | POLE BARN | 3 | 0 | 2020 | 576.0 |
Sketch
Property Image
Land
| 1 | 32 | AC (03.01-09.99) | 5.9600 | 0.00 | 0.00 | 0.00 | 1.00 | $420,000 | $0 |
Roll Value History
| 2026 | N/A | N/A | N/A | N/A | N/A |
| 2025 | $566,050 | $420,000 | $0 | $986,050 | $986,050 |
| 2024 | $572,127 | $390,000 | $0 | $962,127 | $962,127 |
| 2023 | $578,204 | $350,000 | $0 | $928,204 | $928,204 |
| 2022 | $462,335 | $350,000 | $0 | $812,335 | $812,335 |
| 2021 | $444,741 | $280,000 | $0 | $724,741 | $724,741 |
| 2020 | $223,336 | $260,000 | $0 | $483,336 | $483,336 |
| 2019 | $151,103 | $300,000 | $0 | $451,103 | $451,103 |
| 2018 | $147,252 | $250,000 | $0 | $397,252 | $397,252 |
| 2017 | $148,227 | $200,000 | $0 | $348,227 | $348,227 |
| 2016 | $247,594 | $165,000 | $0 | $412,594 | $412,594 |
| 2015 | $251,148 | $165,000 | $0 | $416,148 | $416,148 |
| 2014 | $253,529 | $208,280 | $0 | $461,809 | $461,809 |
| 2013 | $256,911 | $208,280 | $0 | $465,191 | $465,191 |
| 2012 | $260,296 | $208,280 | $0 | $468,576 | $468,576 |
| 2011 | $263,679 | $208,280 | $0 | $471,959 | $471,959 |
| 2010 | $243,478 | $208,280 | $0 | $451,758 | $451,758 |
| 2009 | $251,151 | $267,880 | $0 | $519,031 | $519,031 |
| 2008 | $263,853 | $267,880 | $0 | $531,733 | $531,733 |
| 2007 | $268,312 | $267,880 | $0 | $536,192 | $536,192 |
Deed and Sales History
| 1 | 05/27/2021 | QCD | Quit Claim Deed | KLASSEN, BRANDON M | KLASSEN TTEE, BRANDON MICHAEL | | | $0.00 | 51317 | 4535917 |
| 2 | 07/26/2016 | WD | Warranty Deed | DANIEL, SHERYL B | KLASSEN, BRANDON M | | | $340,000.00 | 25437 | 4404054 |
| 3 | 07/01/1995 | WD | Warranty Deed | WATERMAN, DIANA L | DANIEL, SHERYL B | | | $294,500.00 | 52364 | 95010924 |
| 4 | 07/01/1993 | DECREE | Divorce Decree/Legal Separation | WATERMAN, DANIEL L | WATERMAN, DIANA L | | | $0.00 | 32749 | 93014223 |
| 5 | 12/01/1987 | QCD | Quit Claim Deed | WATERMAN, DANIEL L | WATERMAN, DANIEL L | | | $0.00 | 80252 | 88001128 |
| 6 | 04/01/1986 | QCD | Quit Claim Deed | WATERMAN, DANIEL L | WATERMAN, DANIEL L | | | $0.00 | 60896 | 86004186 |
| 7 | 06/01/1985 | QCD | Quit Claim Deed | Unknown | WATERMAN, DANIEL L | | | $0.00 | 51665 | 0 |
Payout Agreement
| No payout information available.. |