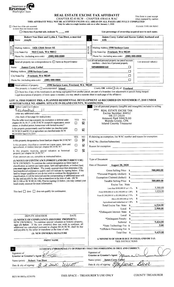
Property
Account |
| Property ID: | 59322 | Abbreviated Legal Description: | 36 - IN GL4: BG NWCR GL4 S88*E239.62' TPB S179.71' E60' N179.24' W60' TPB TGW EZ |
| Geographic ID: | R23004-495-1580 | Agent Code: | |
| Type: | Real | | |
| Tax Area: | 310 - APPRAISER-Cpvl Schl Dist, outside Cpvl, improved & 1 acre or less | Land Use Code | 11 |
| Open Space: | N | DFL | N |
| Historic Property: | N | Remodel Property: | N |
| Multi-Family Redevelopment: | N | | |
| Township: | 30 | Section: | 04 |
| Range: | R2 |
Location |
| Address: | 2432 NORTH BLUFF RD GREENBANK, WA 98253 | Mapsco: | |
| Neighborhood: | Cycle 3 | Map ID: | 354 |
| Neighborhood CD: | 3 |
Owner |
| Name: | JURICA, MILAN F | Owner ID: | 52295 |
| Mailing Address: | LAB 285 MALACKY 90067 | % Ownership: | 100.0000000000% |
| | | Exemptions: | |
Taxes and Assessment Details
Values
| (+) Improvement Homesite Value: | + | $0 | |
| (+) Improvement Non-Homesite Value: | + | $1,800 | |
| (+) Land Homesite Value: | + | $0 | |
| (+) Land Non-Homesite Value: | + | $12,000 | |
| (+) Curr Use (HS): | + | $0 | $0 |
| (+) Curr Use (NHS): | + | $0 | $0 |
| | | -------------------------- | |
| (=) Market Value: | = | $13,800 | |
| (–) Productivity Loss: | – | $0 | |
| | | -------------------------- | |
| (=) Subtotal: | = | $13,800 | |
| (+) Senior Appraised Value: | + | $0 | |
| (+) Non-Senior Appraised Value: | + | $13,800 | |
| | | -------------------------- | |
| (=) Total Appraised Value: | = | $13,800 | |
| (–) Senior Exemption Loss: | – | $0 | |
| (–) Exemption Loss: | – | $0 | |
| | | -------------------------- | |
| (=) Taxable Value: | = | $13,800 | |
Taxing Jurisdiction
| Owner: | JURICA, MILAN F | | |
| % Ownership: | 100.0000000000% | | |
| Total Value: | $13,800 | | |
| Tax Area: | 310 - APPRAISER-Cpvl Schl Dist, outside Cpvl, improved & 1 acre or less |
| CF | Conservation Futures | 0.0316035091 | $13,800 | $13,800 | $0.44 | | |
| CEM2 | Cemetery #2 | 0.0095056933 | $13,800 | $13,800 | $0.13 | | |
| FIRE5 | Fire & Rescue Dist #5 C Whidbey GEN | 1.2008080668 | $13,800 | $13,800 | $16.57 | | |
| FIRE5BOND | Fire & Rescue Dist #5 C Whidbey BOND | 0.1400090713 | $13,800 | $13,800 | $1.93 | | |
| HOBOND | Hospital BOND | 0.1910887512 | $13,800 | $13,800 | $2.64 | | |
| HOGEN | Hospital GEN | 0.3902502903 | $13,800 | $13,800 | $5.39 | | |
| CE | County Current Expense | 0.3708482477 | $13,800 | $13,800 | $5.12 | | |
| CR | County Roads | 0.4584763726 | $13,800 | $13,800 | $6.33 | | |
| ISLANDEMS | Hospital GEN (EMS) | 0.5000000000 | $13,800 | $13,800 | $6.90 | | |
| LIB | Library Sno-Isle GEN | 0.3153421757 | $13,800 | $13,800 | $4.35 | | |
| LIBCAP | Library Sno-Isle BOND (Cap Fac Imp Area) | 0.0543427938 | $13,800 | $13,800 | $0.75 | | |
| POCOUP | Port of Coupeville GEN | 0.1093371703 | $13,800 | $13,800 | $1.51 | | |
| POCOUPIDD | Port of Coupeville IDD | 0.3409740022 | $13,800 | $13,800 | $4.71 | | |
| COUPSDTECH | School 204 CP (TECH) | 0.7545480007 | $13,800 | $13,800 | $10.41 | | |
| SCH204MO | School 204 Enrichment | 0.6716186034 | $13,800 | $13,800 | $9.27 | | |
| ST | State School | 1.3035497053 | $13,800 | $13,800 | $17.99 | | |
| ST2 | State School Part 2 | 0.8169543533 | $13,800 | $13,800 | $11.27 | | |
| | Total Tax Rate: | 7.6592568070 | | | | | |
| | | | | Taxes w/Current Exemptions: | $105.71 | | |
| | | | | Taxes w/o Exemptions: | $105.71 | | |
Improvement / Building
| Improvement #1: | RESIDENTIAL | State Code: | Y | 0.0 sqft | Value: | $1,800 |
Sketch
Property Image
Land
| 1 | 14 | SQ (08001-12000) | 0.2500 | 10890.00 | 0.00 | 0.00 | 1.00 | $12,000 | $0 |
Roll Value History
| 2026 | N/A | N/A | N/A | N/A | N/A |
| 2025 | $1,800 | $12,000 | $0 | $13,800 | $13,800 |
| 2024 | $1,800 | $12,000 | $0 | $13,800 | $13,800 |
| 2023 | $1,800 | $9,000 | $0 | $10,800 | $10,800 |
| 2022 | $1,800 | $9,000 | $0 | $10,800 | $10,800 |
| 2021 | $1,800 | $7,000 | $0 | $8,800 | $8,800 |
| 2020 | $1,800 | $7,000 | $0 | $8,800 | $8,800 |
| 2019 | $0 | $5,000 | $0 | $5,000 | $5,000 |
| 2018 | $0 | $5,000 | $0 | $5,000 | $5,000 |
| 2017 | $0 | $5,000 | $0 | $5,000 | $5,000 |
| 2016 | $0 | $2,000 | $0 | $2,000 | $2,000 |
| 2015 | $0 | $2,000 | $0 | $2,000 | $2,000 |
| 2014 | $0 | $2,000 | $0 | $2,000 | $2,000 |
| 2013 | $0 | $2,000 | $0 | $2,000 | $2,000 |
| 2012 | $0 | $2,000 | $0 | $2,000 | $2,000 |
| 2011 | $0 | $2,000 | $0 | $2,000 | $2,000 |
| 2010 | $0 | $2,000 | $0 | $2,000 | $2,000 |
| 2009 | $0 | $2,400 | $0 | $2,400 | $2,400 |
| 2008 | $0 | $2,400 | $0 | $2,400 | $2,400 |
| 2007 | $0 | $6,700 | $0 | $6,700 | $6,700 |
Deed and Sales History
| 1 | 10/01/1994 | WD | Warranty Deed | BENNETT, MURIEL I | JURICA, MILAN F | | | $500.00 | 44432 | 94022855 |
| 2 | 08/01/1979 | CD | DNU - Correction Deed | LETT, RUTH ( | BENNETT, MURIEL I | | | $0.00 | 93865 | 356870 |
| 3 | 01/01/1900 | OTHER | Other - Misc. Documents | Unknown | LETT, RUTH ( | | | $0.00 | 0 | 0 |
Payout Agreement
| No payout information available.. |