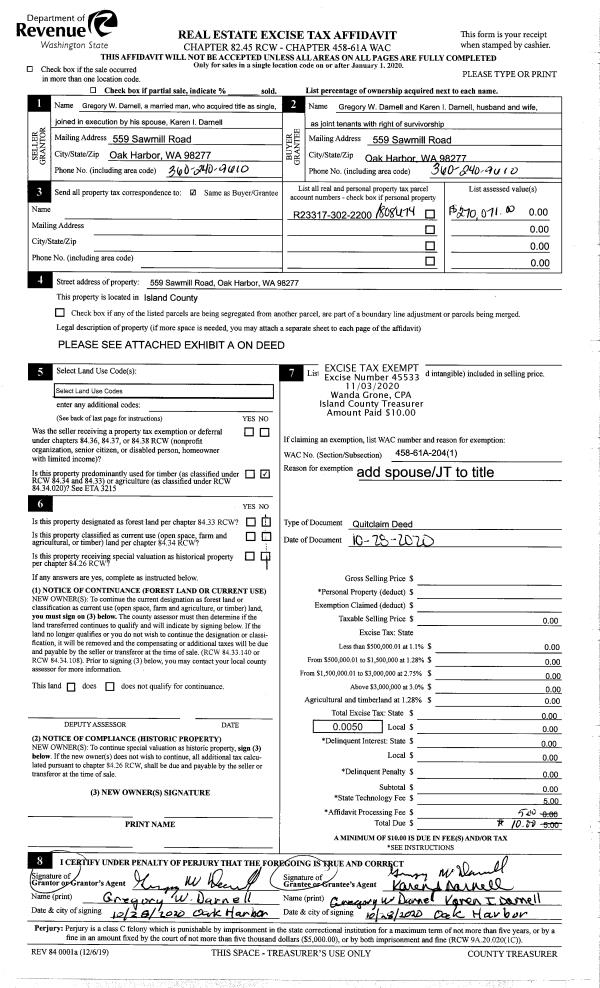
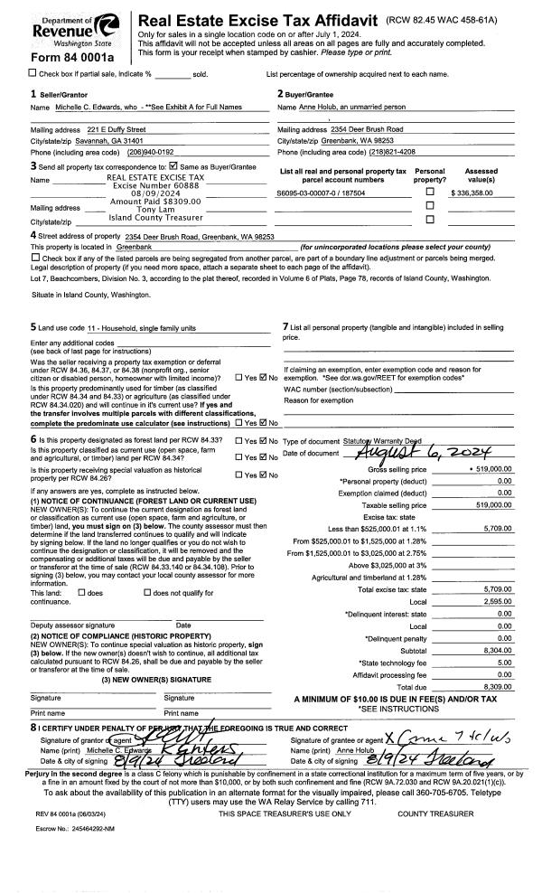
Property
Account |
| Property ID: | 593290 | Abbreviated Legal Description: | SOUTHWOOD LOT 18 |
| Geographic ID: | S8194-00-00018-0 | Agent Code: | |
| Type: | Real | | |
| Tax Area: | 100 - APPRAISER-OH Schl Dist, in OH | Land Use Code | 11 |
| Open Space: | N | DFL | N |
| Historic Property: | N | Remodel Property: | N |
| Multi-Family Redevelopment: | N | | |
| Township: | | Section: | |
| Range: | |
Location |
| Address: | 1450 SW ISLANDER LN OAK HARBOR, WA 98277 | Mapsco: | |
| Neighborhood: | Cycle 1 | Map ID: | 91 |
| Neighborhood CD: | 1 |
Owner |
| Name: | SHETLEY, BRIAN | Owner ID: | 311043 |
| Mailing Address: | VIVIANA ORTEGA 1450 SW ISLANDER LN OAK HARBOR, WA 98277 | % Ownership: | 100.0000000000% |
| | | Exemptions: | |
Taxes and Assessment Details
Values
| (+) Improvement Homesite Value: | + | $0 | |
| (+) Improvement Non-Homesite Value: | + | $317,625 | |
| (+) Land Homesite Value: | + | $0 | |
| (+) Land Non-Homesite Value: | + | $200,000 | |
| (+) Curr Use (HS): | + | $0 | $0 |
| (+) Curr Use (NHS): | + | $0 | $0 |
| | | -------------------------- | |
| (=) Market Value: | = | $517,625 | |
| (–) Productivity Loss: | – | $0 | |
| | | -------------------------- | |
| (=) Subtotal: | = | $517,625 | |
| (+) Senior Appraised Value: | + | $0 | |
| (+) Non-Senior Appraised Value: | + | $517,625 | |
| | | -------------------------- | |
| (=) Total Appraised Value: | = | $517,625 | |
| (–) Senior Exemption Loss: | – | $0 | |
| (–) Exemption Loss: | – | $0 | |
| | | -------------------------- | |
| (=) Taxable Value: | = | $517,625 | |
Taxing Jurisdiction
| Owner: | SHETLEY, BRIAN | | |
| % Ownership: | 100.0000000000% | | |
| Total Value: | $517,625 | | |
| Tax Area: | 100 - APPRAISER-OH Schl Dist, in OH |
| CF | Conservation Futures | 0.0316035091 | $517,625 | $517,625 | $16.36 | | |
| CEM1 | Cemetery #1 | 0.0040320932 | $517,625 | $517,625 | $2.09 | | |
| COH | City of Oak Harbor | 2.3001546061 | $517,625 | $517,625 | $1,190.62 | | |
| OAKBOND | City of Oak Harbor BOND | 0.1926904192 | $517,625 | $517,625 | $99.74 | | |
| HOBOND | Hospital BOND | 0.1910887512 | $517,625 | $517,625 | $98.91 | | |
| HOGEN | Hospital GEN | 0.3902502903 | $517,625 | $517,625 | $202.00 | | |
| CE | County Current Expense | 0.3708482477 | $517,625 | $517,625 | $191.96 | | |
| ISLANDEMS | Hospital GEN (EMS) | 0.5000000000 | $517,625 | $517,625 | $258.81 | | |
| LIB | Library Sno-Isle GEN | 0.3153421757 | $517,625 | $517,625 | $163.23 | | |
| NWHIDPRMT | P & R N Whidbey GEN | 0.2004466701 | $517,625 | $517,625 | $103.76 | | |
| SCH201MO | School 201 Enrichment | 1.8559231640 | $517,625 | $517,625 | $960.67 | | |
| ST | State School | 1.3035497053 | $517,625 | $517,625 | $674.75 | | |
| ST2 | State School Part 2 | 0.8169543533 | $517,625 | $517,625 | $422.88 | | |
| | Total Tax Rate: | 8.4728839852 | | | | | |
| | | | | Taxes w/Current Exemptions: | $4,385.78 | | |
| | | | | Taxes w/o Exemptions: | $4,385.78 | | |
Improvement / Building
| Improvement #1: | RESIDENTIAL | State Code: | Y | 1870.0 sqft | Value: | $317,625 |
| Bathrooms: | 2 | Bedrooms: | 3 | | Ceiling: | DRYWALL PAINTED | Exterior Wall/Cover: | WOOD SIDING | | Floor Covering: | HARDWOOD/CARP 20-80 | Floor Structure: | WOOD W/SUBFLOOR | | Foundation: | CONCRETE | Heating: | FHA GAS | | Interior Finish: | DRYWALL PAINT | Plumbing Fixture Cnt: | 10 | | Roof Slope: | 6" IN 12" | Roof Structure/Cover: | CJ ASPHALT |
|
| | Type | Description | Class CD | Sub Class CD | Year Built | Area |
| | BAS | BASE/MAIN FLOOR | 3 | 0 | 1988 | 1870.0 |
| | AGR | ATTACHED GARAGE | 3 | 0 | 1988 | 460.0 |
| | OWP | OPEN WOOD PORCH W/STEPS | 3 | 0 | 1988 | 140.0 |
| | OWR | OPEN WOOD PORCH W/STEPS/ROOF | 3 | 0 | 1988 | 60.0 |
Sketch
Property Image
Land
| 1 | 14 | SQ (08001-12000) | 0.0000 | 0.00 | 0.00 | 0.00 | 1.00 | $200,000 | $0 |
Roll Value History
| 2026 | N/A | N/A | N/A | N/A | N/A |
| 2025 | $317,625 | $200,000 | $0 | $517,625 | $517,625 |
| 2024 | $321,352 | $200,000 | $0 | $521,352 | $521,352 |
| 2023 | $298,743 | $200,000 | $0 | $498,743 | $498,743 |
| 2022 | $273,858 | $190,000 | $0 | $463,858 | $463,858 |
| 2021 | $241,032 | $130,000 | $0 | $371,032 | $371,032 |
| 2020 | $235,242 | $100,000 | $0 | $335,242 | $335,242 |
| 2019 | $185,510 | $150,000 | $0 | $335,510 | $335,510 |
| 2018 | $186,053 | $130,000 | $0 | $316,053 | $316,053 |
| 2017 | $187,484 | $110,000 | $0 | $297,484 | $297,484 |
| 2016 | $189,716 | $90,000 | $0 | $279,716 | $279,716 |
| 2015 | $191,948 | $70,000 | $0 | $261,948 | $261,948 |
| 2014 | $194,180 | $55,000 | $0 | $249,180 | $249,180 |
| 2013 | $196,413 | $55,000 | $0 | $251,413 | $251,413 |
| 2012 | $198,644 | $60,000 | $0 | $258,644 | $258,644 |
| 2011 | $197,508 | $50,000 | $0 | $247,508 | $247,508 |
| 2010 | $212,864 | $50,000 | $0 | $262,864 | $262,864 |
| 2009 | $221,932 | $60,000 | $0 | $281,932 | $281,932 |
| 2008 | $224,684 | $73,000 | $0 | $297,684 | $297,684 |
| 2007 | $227,506 | $73,000 | $0 | $300,506 | $300,506 |
Deed and Sales History
| 1 | 12/14/2023 | WD | Warranty Deed | WAGNER, MARTIE N | SHETLEY, BRIAN | | | $550,000.00 | 58871 | 4568031 |
| 2 | 01/21/2020 | WD | Warranty Deed | JENSEN, BRIAN D | WAGNER, MARTIE N | | | $365,000.00 | 41904 | 4480057 |
| 3 | 08/09/2012 | WD | Warranty Deed | MURPHY, ELOISA R | JENSEN, BRIAN D | | | $263,000.00 | 8489 | 4320902 |
| 4 | 06/06/2000 | WD | Warranty Deed | COCHRAN, CURTIS C | MURPHY, ELOISA R | | | $167,500.00 | 2162 | 20010331 |
| 5 | 07/01/1988 | WD | Warranty Deed | ISLAND, SAVINGS & | COCHRAN, CURTIS C | | | $107,000.00 | 82238 | 88008276 |
| 6 | 08/01/1983 | WD | Warranty Deed | Unknown | ISLAND, SAVINGS & | | | $0.00 | 32362 | 413851 |
Payout Agreement
| No payout information available.. |