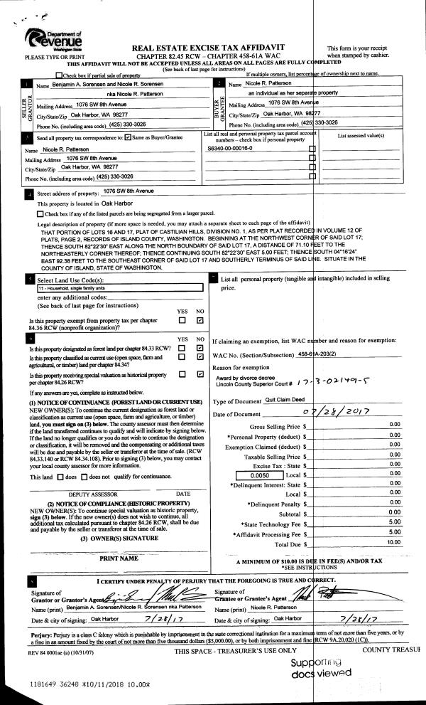
Property
Account |
| Property ID: | 593389 | Abbreviated Legal Description: | SOUTHWOOD LOT 27 |
| Geographic ID: | S8194-00-00027-0 | Agent Code: | |
| Type: | Real | | |
| Tax Area: | 100 - APPRAISER-OH Schl Dist, in OH | Land Use Code | 11 |
| Open Space: | N | DFL | N |
| Historic Property: | N | Remodel Property: | N |
| Multi-Family Redevelopment: | N | | |
| Township: | | Section: | |
| Range: | |
Location |
| Address: | 1365 SW FAIRHAVEN DR OAK HARBOR, WA 98277 | Mapsco: | |
| Neighborhood: | Cycle 1 | Map ID: | 91 |
| Neighborhood CD: | 1 |
Owner |
| Name: | HARRIS, MICHAEL | Owner ID: | 302708 |
| Mailing Address: | STEPHANIE HARRIS 1365 SW FAIRHAVEN DR OAK HARBOR, WA 98277 | % Ownership: | 100.0000000000% |
| | | Exemptions: | |
Taxes and Assessment Details
Values
| (+) Improvement Homesite Value: | + | $0 | |
| (+) Improvement Non-Homesite Value: | + | $361,416 | |
| (+) Land Homesite Value: | + | $0 | |
| (+) Land Non-Homesite Value: | + | $240,000 | |
| (+) Curr Use (HS): | + | $0 | $0 |
| (+) Curr Use (NHS): | + | $0 | $0 |
| | | -------------------------- | |
| (=) Market Value: | = | $601,416 | |
| (–) Productivity Loss: | – | $0 | |
| | | -------------------------- | |
| (=) Subtotal: | = | $601,416 | |
| (+) Senior Appraised Value: | + | $0 | |
| (+) Non-Senior Appraised Value: | + | $601,416 | |
| | | -------------------------- | |
| (=) Total Appraised Value: | = | $601,416 | |
| (–) Senior Exemption Loss: | – | $0 | |
| (–) Exemption Loss: | – | $0 | |
| | | -------------------------- | |
| (=) Taxable Value: | = | $601,416 | |
Taxing Jurisdiction
| Owner: | HARRIS, MICHAEL | | |
| % Ownership: | 100.0000000000% | | |
| Total Value: | $601,416 | | |
| Tax Area: | 100 - APPRAISER-OH Schl Dist, in OH |
| CF | Conservation Futures | 0.0316035091 | $601,416 | $601,416 | $19.01 | | |
| CEM1 | Cemetery #1 | 0.0040320932 | $601,416 | $601,416 | $2.42 | | |
| COH | City of Oak Harbor | 2.3001546061 | $601,416 | $601,416 | $1,383.35 | | |
| OAKBOND | City of Oak Harbor BOND | 0.1926904192 | $601,416 | $601,416 | $115.89 | | |
| HOBOND | Hospital BOND | 0.1910887512 | $601,416 | $601,416 | $114.92 | | |
| HOGEN | Hospital GEN | 0.3902502903 | $601,416 | $601,416 | $234.70 | | |
| CE | County Current Expense | 0.3708482477 | $601,416 | $601,416 | $223.03 | | |
| ISLANDEMS | Hospital GEN (EMS) | 0.5000000000 | $601,416 | $601,416 | $300.71 | | |
| LIB | Library Sno-Isle GEN | 0.3153421757 | $601,416 | $601,416 | $189.65 | | |
| NWHIDPRMT | P & R N Whidbey GEN | 0.2004466701 | $601,416 | $601,416 | $120.55 | | |
| SCH201MO | School 201 Enrichment | 1.8559231640 | $601,416 | $601,416 | $1,116.18 | | |
| ST | State School | 1.3035497053 | $601,416 | $601,416 | $783.98 | | |
| ST2 | State School Part 2 | 0.8169543533 | $601,416 | $601,416 | $491.33 | | |
| | Total Tax Rate: | 8.4728839852 | | | | | |
| | | | | Taxes w/Current Exemptions: | $5,095.72 | | |
| | | | | Taxes w/o Exemptions: | $5,095.72 | | |
Improvement / Building
| Improvement #1: | RESIDENTIAL | State Code: | Y | 2100.8 sqft | Value: | $361,416 |
| Bathrooms: | 2.5 | Bedrooms: | 3 | | Ceiling: | DRYWALL PAINTED | Exterior Wall/Cover: | WOOD SIDING | | Floor Covering: | CARPET/VINYL 80-20 | Floor Structure: | WOOD W/SUBFLOOR | | Foundation: | CONCRETE | Heating: | FHA GAS | | Interior Finish: | DRYWALL PAINT | Plumbing Fixture Cnt: | 12 | | Roof Slope: | 5" IN 12" | Roof Structure/Cover: | CJ ASPHALT |
|
| | Type | Description | Class CD | Sub Class CD | Year Built | Area |
| | BAS | BASE/MAIN FLOOR | 4 | 0 | 1987 | 1077.8 |
| | AGR | ATTACHED GARAGE | 4 | 0 | 1987 | 528.0 |
| | UPS | UPPER STORY | 4 | 0 | 1987 | 1023.0 |
| | OWC | OPEN WOOD PORCH W/STEPS/ROOF/C | 4 | 0 | 1987 | 283.6 |
Sketch
Property Image
Land
| 1 | 14 | SQ (08001-12000) | 0.0000 | 0.00 | 0.00 | 0.00 | 1.00 | $240,000 | $0 |
Roll Value History
| 2026 | N/A | N/A | N/A | N/A | N/A |
| 2025 | $361,416 | $240,000 | $0 | $601,416 | $601,416 |
| 2024 | $366,220 | $240,000 | $0 | $606,220 | $606,220 |
| 2023 | $371,022 | $240,000 | $0 | $611,022 | $611,022 |
| 2022 | $340,316 | $210,000 | $0 | $550,316 | $550,316 |
| 2021 | $299,706 | $140,000 | $0 | $439,706 | $439,706 |
| 2020 | $292,101 | $110,000 | $0 | $402,101 | $402,101 |
| 2019 | $216,245 | $170,000 | $0 | $386,245 | $386,245 |
| 2018 | $216,911 | $150,000 | $0 | $366,911 | $366,911 |
| 2017 | $201,179 | $110,000 | $0 | $311,179 | $311,179 |
| 2016 | $203,633 | $90,000 | $0 | $293,633 | $293,633 |
| 2015 | $206,084 | $70,000 | $0 | $276,084 | $276,084 |
| 2014 | $208,539 | $55,000 | $0 | $263,539 | $263,539 |
| 2013 | $210,993 | $55,000 | $0 | $265,993 | $265,993 |
| 2012 | $213,446 | $60,000 | $0 | $273,446 | $273,446 |
| 2011 | $209,822 | $50,000 | $0 | $259,822 | $259,822 |
| 2010 | $222,610 | $50,000 | $0 | $272,610 | $272,610 |
| 2009 | $231,967 | $60,000 | $0 | $291,967 | $291,967 |
| 2008 | $234,642 | $73,000 | $0 | $307,642 | $307,642 |
| 2007 | $237,319 | $73,000 | $0 | $310,319 | $310,319 |
Deed and Sales History
| 1 | 01/06/2022 | WD | Warranty Deed | WEBER, JEFFREY C | HARRIS, MICHAEL | | | $560,000.00 | 51711 | 4538243 |
| 2 | 11/08/2017 | WD | Warranty Deed | SONDERICKER, JOHN R | WEBER, JEFFREY C | | | $369,000.00 | 31886 | 4434045 |
| 3 | 06/01/1992 | WD | Warranty Deed | FIDDLER, CHRIS J | SONDERICKER, JOHN R | | | $162,700.00 | 22445 | 92011838 |
| 4 | 01/01/1987 | WD | Warranty Deed | ISLAND, SAVINGS & | FIDDLER, CHRIS J | | | $23,500.00 | 70139 | 87000903 |
| 5 | 08/01/1983 | WD | Warranty Deed | Unknown | ISLAND, SAVINGS & | | | $0.00 | 32362 | 413851 |
Payout Agreement
| No payout information available.. |