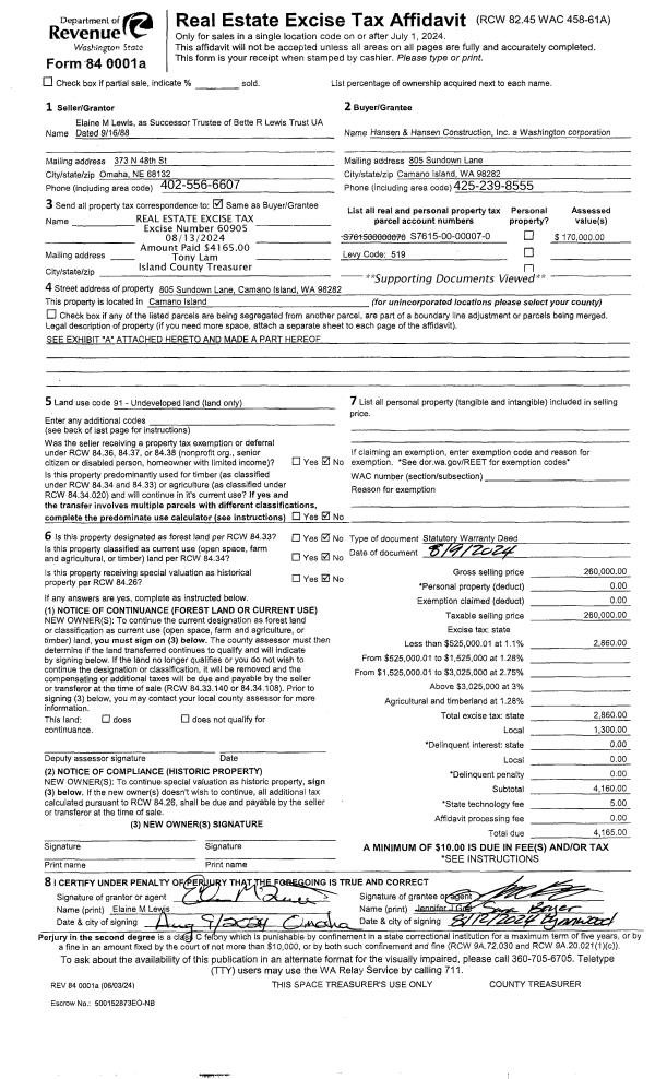
Property
Account |
| Property ID: | 593682 | Abbreviated Legal Description: | CEDAR GLEN LOT 16 |
| Geographic ID: | S6352-00-00016-0 | Agent Code: | |
| Type: | Real | | |
| Tax Area: | 100 - APPRAISER-OH Schl Dist, in OH | Land Use Code | 11 |
| Open Space: | N | DFL | N |
| Historic Property: | N | Remodel Property: | N |
| Multi-Family Redevelopment: | N | | |
| Township: | | Section: | |
| Range: | |
Location |
| Address: | 1545 NW 2ND AVE OAK HARBOR, WA 98277 | Mapsco: | |
| Neighborhood: | Cycle 1 | Map ID: | 252 |
| Neighborhood CD: | 1 |
Owner |
| Name: | SEIBEL, ROBERT W | Owner ID: | 75218 |
| Mailing Address: | 1545 NW 2ND AVE OAK HARBOR, WA 98277-8932 | % Ownership: | 100.0000000000% |
| | | Exemptions: | |
Taxes and Assessment Details
Values
| (+) Improvement Homesite Value: | + | $0 | |
| (+) Improvement Non-Homesite Value: | + | $272,567 | |
| (+) Land Homesite Value: | + | $0 | |
| (+) Land Non-Homesite Value: | + | $210,000 | |
| (+) Curr Use (HS): | + | $0 | $0 |
| (+) Curr Use (NHS): | + | $0 | $0 |
| | | -------------------------- | |
| (=) Market Value: | = | $482,567 | |
| (–) Productivity Loss: | – | $0 | |
| | | -------------------------- | |
| (=) Subtotal: | = | $482,567 | |
| (+) Senior Appraised Value: | + | $0 | |
| (+) Non-Senior Appraised Value: | + | $482,567 | |
| | | -------------------------- | |
| (=) Total Appraised Value: | = | $482,567 | |
| (–) Senior Exemption Loss: | – | $0 | |
| (–) Exemption Loss: | – | $0 | |
| | | -------------------------- | |
| (=) Taxable Value: | = | $482,567 | |
Taxing Jurisdiction
| Owner: | SEIBEL, ROBERT W | | |
| % Ownership: | 100.0000000000% | | |
| Total Value: | $482,567 | | |
| Tax Area: | 100 - APPRAISER-OH Schl Dist, in OH |
| CF | Conservation Futures | 0.0316035091 | $482,567 | $482,567 | $15.25 | | |
| CEM1 | Cemetery #1 | 0.0040320932 | $482,567 | $482,567 | $1.95 | | |
| COH | City of Oak Harbor | 2.3001546061 | $482,567 | $482,567 | $1,109.98 | | |
| OAKBOND | City of Oak Harbor BOND | 0.1926904192 | $482,567 | $482,567 | $92.99 | | |
| HOBOND | Hospital BOND | 0.1910887512 | $482,567 | $482,567 | $92.21 | | |
| HOGEN | Hospital GEN | 0.3902502903 | $482,567 | $482,567 | $188.32 | | |
| CE | County Current Expense | 0.3708482477 | $482,567 | $482,567 | $178.96 | | |
| ISLANDEMS | Hospital GEN (EMS) | 0.5000000000 | $482,567 | $482,567 | $241.28 | | |
| LIB | Library Sno-Isle GEN | 0.3153421757 | $482,567 | $482,567 | $152.17 | | |
| NWHIDPRMT | P & R N Whidbey GEN | 0.2004466701 | $482,567 | $482,567 | $96.73 | | |
| SCH201MO | School 201 Enrichment | 1.8559231640 | $482,567 | $482,567 | $895.61 | | |
| ST | State School | 1.3035497053 | $482,567 | $482,567 | $629.05 | | |
| ST2 | State School Part 2 | 0.8169543533 | $482,567 | $482,567 | $394.24 | | |
| | Total Tax Rate: | 8.4728839852 | | | | | |
| | | | | Taxes w/Current Exemptions: | $4,088.74 | | |
| | | | | Taxes w/o Exemptions: | $4,088.74 | | |
Improvement / Building
| Improvement #1: | RESIDENTIAL | State Code: | Y | 1685.0 sqft | Value: | $272,567 |
| Bathrooms: | 1.75 | Bedrooms: | 3 | | Ceiling: | DRY WALL SPRAYED | Exterior Wall/Cover: | WOOD SIDING | | Floor Covering: | CARPET/VINYL 80-20 | Floor Structure: | WOOD W/SUBFLOOR | | Foundation: | CONCRETE | Heating: | FHA ELECTRIC | | Interior Finish: | DRYWALL PAINT | Plumbing Fixture Cnt: | 9 | | Roof Slope: | 4" IN 12" | Roof Structure/Cover: | CJ ASPHALT |
|
| | Type | Description | Class CD | Sub Class CD | Year Built | Area |
| | BAS | BASE/MAIN FLOOR | 3 | 0 | 1986 | 1685.0 |
| | OP1 | OPEN PORCH SLAB | 3 | 0 | 1986 | 506.0 |
| | AGR | ATTACHED GARAGE | 3 | 0 | 1986 | 506.0 |
| | OWP | OPEN WOOD PORCH W/STEPS | 3 | 0 | 1986 | 93.3 |
| | UTY | STORAGE/UTILITY | 3 | 0 | 1986 | 320.0 |
Sketch
Property Image
Land
| 1 | 14 | SQ (08001-12000) | 0.0000 | 0.00 | 0.00 | 0.00 | 1.00 | $210,000 | $0 |
Roll Value History
| 2026 | N/A | N/A | N/A | N/A | N/A |
| 2025 | $272,567 | $210,000 | $0 | $482,567 | $482,567 |
| 2024 | $276,188 | $190,000 | $0 | $466,188 | $466,188 |
| 2023 | $272,567 | $190,000 | $0 | $462,567 | $462,567 |
| 2022 | $250,093 | $180,000 | $0 | $430,093 | $430,093 |
| 2021 | $220,324 | $120,000 | $0 | $340,324 | $340,324 |
| 2020 | $215,029 | $100,000 | $0 | $315,029 | $315,029 |
| 2019 | $158,265 | $150,000 | $0 | $308,265 | $308,265 |
| 2018 | $158,765 | $130,000 | $0 | $288,765 | $288,765 |
| 2017 | $137,158 | $110,000 | $0 | $247,158 | $247,158 |
| 2016 | $139,061 | $90,000 | $0 | $229,061 | $229,061 |
| 2015 | $140,965 | $70,000 | $0 | $210,965 | $210,965 |
| 2014 | $142,867 | $55,000 | $0 | $197,867 | $197,867 |
| 2013 | $144,770 | $55,000 | $0 | $199,770 | $199,770 |
| 2012 | $146,672 | $60,000 | $0 | $206,672 | $206,672 |
| 2011 | $148,930 | $50,000 | $0 | $198,930 | $198,930 |
| 2010 | $156,371 | $50,000 | $0 | $206,371 | $206,371 |
| 2009 | $162,863 | $75,000 | $0 | $237,863 | $237,863 |
| 2008 | $164,968 | $100,000 | $0 | $264,968 | $264,968 |
| 2007 | $158,913 | $100,000 | $0 | $258,913 | $258,913 |
Deed and Sales History
| 1 | 08/01/1986 | WD | Warranty Deed | BWB, CONSTRUCTION I | SEIBEL, ROBERT W | | | $89,000.00 | 62274 | 86010486 |
| 2 | 09/01/1984 | WD | Warranty Deed | CEDAR, GLEN | BWB, CONSTRUCTION I | | | $23,000.00 | 42850 | 84003809 |
| 3 | 03/01/1984 | QCD | Quit Claim Deed | Unknown | CEDAR, GLEN | | | $0.00 | 40737 | 422325 |
Payout Agreement
| No payout information available.. |