Property
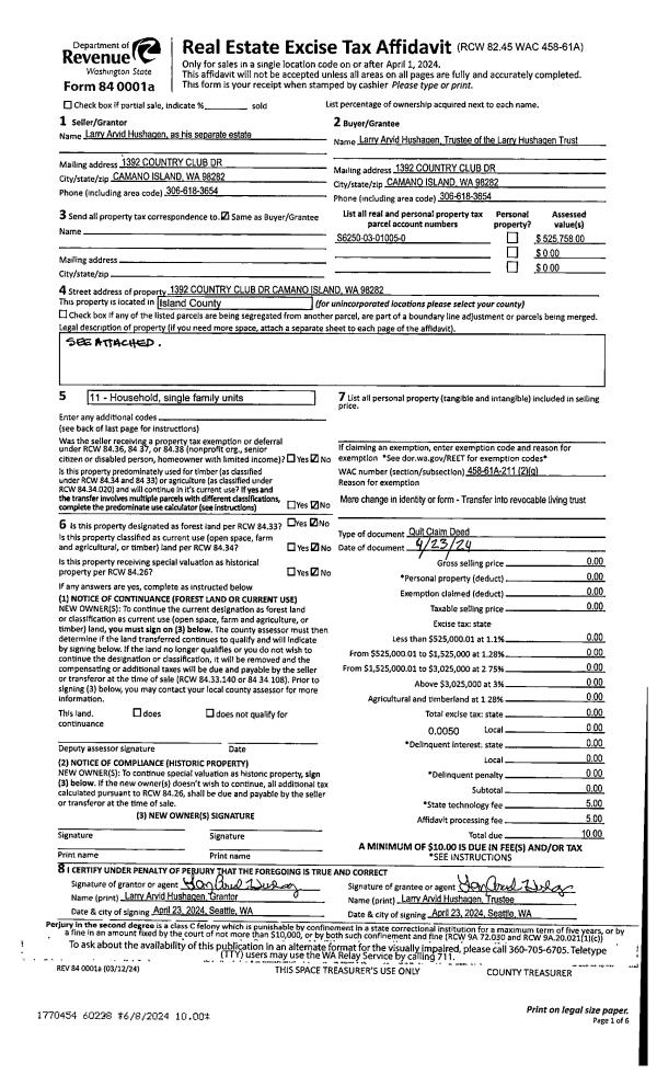
Account |
| Property ID: | 593726 | Abbreviated Legal Description: | CEDAR GLEN LOT 20 |
| Geographic ID: | S6352-00-00020-0 | Agent Code: | |
| Type: | Real | | |
| Tax Area: | 100 - APPRAISER-OH Schl Dist, in OH | Land Use Code | 11 |
| Open Space: | N | DFL | N |
| Historic Property: | N | Remodel Property: | N |
| Multi-Family Redevelopment: | N | | |
| Township: | | Section: | |
| Range: | |
Location |
| Address: | 1621 NW 2ND AVE OAK HARBOR, WA 98277 | Mapsco: | |
| Neighborhood: | Cycle 1 | Map ID: | 252 |
| Neighborhood CD: | 1 |
Owner |
| Name: | JOHNSON, DELMAR J | Owner ID: | 258805 |
| Mailing Address: | BRENDA J JOHNSON 1621 NW 2ND AVE OAK HARBOR, WA 98277-8933 | % Ownership: | 100.0000000000% |
| | | Exemptions: | |
Taxes and Assessment Details
Values
| (+) Improvement Homesite Value: | + | $0 | |
| (+) Improvement Non-Homesite Value: | + | $258,025 | |
| (+) Land Homesite Value: | + | $0 | |
| (+) Land Non-Homesite Value: | + | $210,000 | |
| (+) Curr Use (HS): | + | $0 | $0 |
| (+) Curr Use (NHS): | + | $0 | $0 |
| | | -------------------------- | |
| (=) Market Value: | = | $468,025 | |
| (–) Productivity Loss: | – | $0 | |
| | | -------------------------- | |
| (=) Subtotal: | = | $468,025 | |
| (+) Senior Appraised Value: | + | $0 | |
| (+) Non-Senior Appraised Value: | + | $468,025 | |
| | | -------------------------- | |
| (=) Total Appraised Value: | = | $468,025 | |
| (–) Senior Exemption Loss: | – | $0 | |
| (–) Exemption Loss: | – | $0 | |
| | | -------------------------- | |
| (=) Taxable Value: | = | $468,025 | |
Taxing Jurisdiction
| Owner: | JOHNSON, DELMAR J | | |
| % Ownership: | 100.0000000000% | | |
| Total Value: | $468,025 | | |
| Tax Area: | 100 - APPRAISER-OH Schl Dist, in OH |
| CF | Conservation Futures | 0.0316035091 | $468,025 | $468,025 | $14.79 | | |
| CEM1 | Cemetery #1 | 0.0040320932 | $468,025 | $468,025 | $1.89 | | |
| COH | City of Oak Harbor | 2.3001546061 | $468,025 | $468,025 | $1,076.53 | | |
| OAKBOND | City of Oak Harbor BOND | 0.1926904192 | $468,025 | $468,025 | $90.18 | | |
| HOBOND | Hospital BOND | 0.1910887512 | $468,025 | $468,025 | $89.43 | | |
| HOGEN | Hospital GEN | 0.3902502903 | $468,025 | $468,025 | $182.65 | | |
| CE | County Current Expense | 0.3708482477 | $468,025 | $468,025 | $173.57 | | |
| ISLANDEMS | Hospital GEN (EMS) | 0.5000000000 | $468,025 | $468,025 | $234.01 | | |
| LIB | Library Sno-Isle GEN | 0.3153421757 | $468,025 | $468,025 | $147.59 | | |
| NWHIDPRMT | P & R N Whidbey GEN | 0.2004466701 | $468,025 | $468,025 | $93.81 | | |
| SCH201MO | School 201 Enrichment | 1.8559231640 | $468,025 | $468,025 | $868.62 | | |
| ST | State School | 1.3035497053 | $468,025 | $468,025 | $610.09 | | |
| ST2 | State School Part 2 | 0.8169543533 | $468,025 | $468,025 | $382.36 | | |
| | Total Tax Rate: | 8.4728839852 | | | | | |
| | | | | Taxes w/Current Exemptions: | $3,965.52 | | |
| | | | | Taxes w/o Exemptions: | $3,965.52 | | |
Improvement / Building
| Improvement #1: | RESIDENTIAL | State Code: | Y | 1671.3 sqft | Value: | $258,025 |
| Bathrooms: | 2.5 | Bedrooms: | 3 | | Ceiling: | DRYWALL PAINTED | Exterior Wall/Cover: | WOOD SIDING | | Floor Covering: | CARPET/VINYL 80-20 | Floor Structure: | WOOD W/SUBFLOOR | | Foundation: | CONCRETE | Heating: | WALL HEAT ELECTRIC | | Interior Finish: | DRYWALL PAINT | Plumbing Fixture Cnt: | 12 | | Roof Slope: | 4" IN 12" | Roof Structure/Cover: | CJ ASPHALT |
|
| | Type | Description | Class CD | Sub Class CD | Year Built | Area |
| | BAS | BASE/MAIN FLOOR | 3 | 0 | 1987 | 999.3 |
| | OP1 | OPEN PORCH SLAB | 3 | 0 | 1987 | 104.0 |
| | OP1 | OPEN PORCH SLAB | 3 | 0 | 1987 | 266.0 |
| | AGR | ATTACHED GARAGE | 3 | 0 | 1987 | 576.0 |
| | UPS | UPPER STORY | 3 | 0 | 1987 | 672.0 |
Sketch
Property Image
Land
| 1 | 14 | SQ (08001-12000) | 0.0000 | 0.00 | 0.00 | 0.00 | 1.00 | $210,000 | $0 |
Roll Value History
| 2026 | N/A | N/A | N/A | N/A | N/A |
| 2025 | $258,025 | $210,000 | $0 | $468,025 | $468,025 |
| 2024 | $261,455 | $190,000 | $0 | $451,455 | $451,455 |
| 2023 | $258,025 | $190,000 | $0 | $448,025 | $448,025 |
| 2022 | $236,742 | $180,000 | $0 | $416,742 | $416,742 |
| 2021 | $208,567 | $120,000 | $0 | $328,567 | $328,567 |
| 2020 | $203,049 | $100,000 | $0 | $303,049 | $303,049 |
| 2019 | $146,968 | $150,000 | $0 | $296,968 | $296,968 |
| 2018 | $147,433 | $130,000 | $0 | $277,433 | $277,433 |
| 2017 | $133,130 | $110,000 | $0 | $243,130 | $243,130 |
| 2016 | $135,006 | $90,000 | $0 | $225,006 | $225,006 |
| 2015 | $136,880 | $70,000 | $0 | $206,880 | $206,880 |
| 2014 | $138,756 | $55,000 | $0 | $193,756 | $193,756 |
| 2013 | $140,630 | $55,000 | $0 | $195,630 | $195,630 |
| 2012 | $142,506 | $60,000 | $0 | $202,506 | $202,506 |
| 2011 | $142,622 | $50,000 | $0 | $192,622 | $192,622 |
| 2010 | $149,667 | $50,000 | $0 | $199,667 | $199,667 |
| 2009 | $156,146 | $75,000 | $0 | $231,146 | $231,146 |
| 2008 | $158,070 | $100,000 | $0 | $258,070 | $258,070 |
| 2007 | $159,994 | $100,000 | $0 | $259,994 | $259,994 |
Deed and Sales History
| 1 | 07/23/2012 | WD | Warranty Deed | HAMMONS, DAVID B | JOHNSON, DELMAR J | | | $219,000.00 | 8416 | 4320399 |
| 2 | 08/02/2002 | WD | Warranty Deed | JOHANNINGMEIER, VIRGINIA L | HAMMONS, DAVID B | | | $178,900.00 | 23066 | 4027597 |
| 3 | 07/23/2002 | ESTSEPPROP | Establish Separate Property | LIEN, VIRGINIA L | JOHANNINGMEIER, VIRGINIA L | | | $0.00 | 23065 | 4027596 |
| 4 | 06/01/1992 | WD | Warranty Deed | GEORGE, GREG L | LIEN, VIRGINIA L | | | $136,400.00 | 22419 | 92011769 |
| 5 | 06/01/1987 | WD | Warranty Deed | BLUE, RIBBON H | GEORGE, GREG L | | | $88,900.00 | 71900 | 87008781 |
| 6 | 02/01/1987 | WD | Warranty Deed | CEDAR, GLEN | BLUE, RIBBON H | | | $0.00 | 70393 | 87002537 |
| 7 | 03/01/1984 | QCD | Quit Claim Deed | Unknown | CEDAR, GLEN | | | $0.00 | 40737 | 422325 |
Payout Agreement
| No payout information available.. |