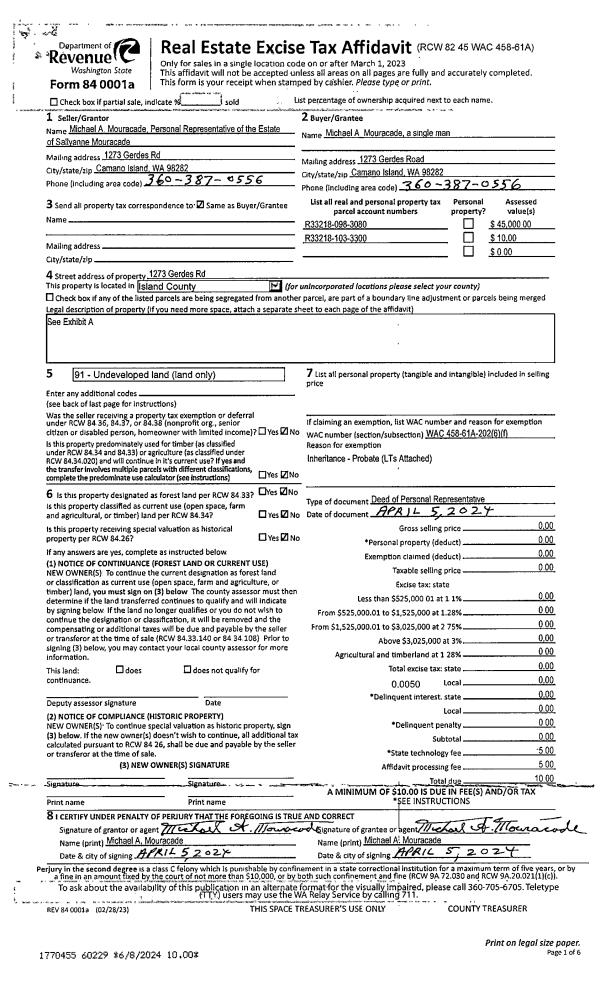
Property
Account |
| Property ID: | 593851 | Abbreviated Legal Description: | CEDAR GLEN LOT 33 |
| Geographic ID: | S6352-00-00033-0 | Agent Code: | |
| Type: | Real | | |
| Tax Area: | 100 - APPRAISER-OH Schl Dist, in OH | Land Use Code | 11 |
| Open Space: | N | DFL | N |
| Historic Property: | N | Remodel Property: | N |
| Multi-Family Redevelopment: | N | | |
| Township: | | Section: | |
| Range: | |
Location |
| Address: | 251 NW QUEST ST OAK HARBOR, WA 98277 | Mapsco: | |
| Neighborhood: | Cycle 1 | Map ID: | 252 |
| Neighborhood CD: | 1 |
Owner |
| Name: | KING, PHILOMENA MARY | Owner ID: | 75235 |
| Mailing Address: | 251 NW QUEST ST OAK HARBOR, WA 98277-8925 | % Ownership: | 100.0000000000% |
| | | Exemptions: | |
Taxes and Assessment Details
Values
| (+) Improvement Homesite Value: | + | $0 | |
| (+) Improvement Non-Homesite Value: | + | $253,735 | |
| (+) Land Homesite Value: | + | $0 | |
| (+) Land Non-Homesite Value: | + | $210,000 | |
| (+) Curr Use (HS): | + | $0 | $0 |
| (+) Curr Use (NHS): | + | $0 | $0 |
| | | -------------------------- | |
| (=) Market Value: | = | $463,735 | |
| (–) Productivity Loss: | – | $0 | |
| | | -------------------------- | |
| (=) Subtotal: | = | $463,735 | |
| (+) Senior Appraised Value: | + | $0 | |
| (+) Non-Senior Appraised Value: | + | $463,735 | |
| | | -------------------------- | |
| (=) Total Appraised Value: | = | $463,735 | |
| (–) Senior Exemption Loss: | – | $0 | |
| (–) Exemption Loss: | – | $0 | |
| | | -------------------------- | |
| (=) Taxable Value: | = | $463,735 | |
Taxing Jurisdiction
| Owner: | KING, PHILOMENA MARY | | |
| % Ownership: | 100.0000000000% | | |
| Total Value: | $463,735 | | |
| Tax Area: | 100 - APPRAISER-OH Schl Dist, in OH |
| CF | Conservation Futures | 0.0316035091 | $463,735 | $463,735 | $14.66 | | |
| CEM1 | Cemetery #1 | 0.0040320932 | $463,735 | $463,735 | $1.87 | | |
| COH | City of Oak Harbor | 2.3001546061 | $463,735 | $463,735 | $1,066.66 | | |
| OAKBOND | City of Oak Harbor BOND | 0.1926904192 | $463,735 | $463,735 | $89.36 | | |
| HOBOND | Hospital BOND | 0.1910887512 | $463,735 | $463,735 | $88.61 | | |
| HOGEN | Hospital GEN | 0.3902502903 | $463,735 | $463,735 | $180.97 | | |
| CE | County Current Expense | 0.3708482477 | $463,735 | $463,735 | $171.98 | | |
| ISLANDEMS | Hospital GEN (EMS) | 0.5000000000 | $463,735 | $463,735 | $231.87 | | |
| LIB | Library Sno-Isle GEN | 0.3153421757 | $463,735 | $463,735 | $146.24 | | |
| NWHIDPRMT | P & R N Whidbey GEN | 0.2004466701 | $463,735 | $463,735 | $92.95 | | |
| SCH201MO | School 201 Enrichment | 1.8559231640 | $463,735 | $463,735 | $860.66 | | |
| ST | State School | 1.3035497053 | $463,735 | $463,735 | $604.50 | | |
| ST2 | State School Part 2 | 0.8169543533 | $463,735 | $463,735 | $378.85 | | |
| | Total Tax Rate: | 8.4728839852 | | | | | |
| | | | | Taxes w/Current Exemptions: | $3,929.18 | | |
| | | | | Taxes w/o Exemptions: | $3,929.18 | | |
Improvement / Building
| Improvement #1: | RESIDENTIAL | State Code: | Y | 1568.0 sqft | Value: | $253,735 |
| Bathrooms: | 2.5 | Bedrooms: | 3 | | Ceiling: | DRY WALL SPRAYED | Exterior Wall/Cover: | WOOD SIDING | | Floor Covering: | HARDWOOD/CARP 60-40 | Floor Structure: | WOOD W/SUBFLOOR | | Foundation: | CONCRETE | Heating: | FHA ELECTRIC | | Interior Finish: | DRYWALL PAINT | Plumbing Fixture Cnt: | 11 | | Roof Slope: | 5" IN 12" | Roof Structure/Cover: | CJ ASPHALT |
|
| | Type | Description | Class CD | Sub Class CD | Year Built | Area |
| | BAS | BASE/MAIN FLOOR | 3 | 0 | 1985 | 868.0 |
| | OP4 | OPEN PORCH W/CEILING-ROOF | 3 | 0 | 1985 | 40.0 |
| | AGR | ATTACHED GARAGE | 3 | 0 | 1985 | 552.0 |
| | UPS | UPPER STORY | 3 | 0 | 1985 | 700.0 |
Sketch
Property Image
Land
| 1 | 14 | SQ (08001-12000) | 0.0000 | 0.00 | 0.00 | 0.00 | 1.00 | $210,000 | $0 |
Roll Value History
| 2026 | N/A | N/A | N/A | N/A | N/A |
| 2025 | $253,735 | $210,000 | $0 | $463,735 | $463,735 |
| 2024 | $257,198 | $190,000 | $0 | $447,198 | $447,198 |
| 2023 | $239,614 | $190,000 | $0 | $429,614 | $429,614 |
| 2022 | $219,980 | $180,000 | $0 | $399,980 | $399,980 |
| 2021 | $193,895 | $120,000 | $0 | $313,895 | $313,895 |
| 2020 | $188,943 | $100,000 | $0 | $288,943 | $288,943 |
| 2019 | $136,770 | $150,000 | $0 | $286,770 | $286,770 |
| 2018 | $137,218 | $130,000 | $0 | $267,218 | $267,218 |
| 2017 | $125,658 | $110,000 | $0 | $235,658 | $235,658 |
| 2016 | $127,534 | $90,000 | $0 | $217,534 | $217,534 |
| 2015 | $129,409 | $70,000 | $0 | $199,409 | $199,409 |
| 2014 | $131,285 | $55,000 | $0 | $186,285 | $186,285 |
| 2013 | $133,160 | $55,000 | $0 | $188,160 | $188,160 |
| 2012 | $135,036 | $60,000 | $0 | $195,036 | $195,036 |
| 2011 | $140,266 | $50,000 | $0 | $190,266 | $190,266 |
| 2010 | $151,070 | $50,000 | $0 | $201,070 | $201,070 |
| 2009 | $155,628 | $75,000 | $0 | $230,628 | $230,628 |
| 2008 | $157,593 | $100,000 | $0 | $257,593 | $257,593 |
| 2007 | $159,557 | $100,000 | $0 | $259,557 | $259,557 |
Deed and Sales History
| 1 | 12/30/2005 | PRD | Personal Representatives Deed | KING, THOMAS D | KING, PHILOMENA MARY | | | $0.00 | 60053 | 4158951 |
| 2 | 07/01/1986 | WD | Warranty Deed | ISLAND, PACIFIC C | KING, THOMAS D | | | $84,950.00 | 61897 | 86008922 |
| 3 | 01/01/1985 | WD | Warranty Deed | CEDAR, GLEN | ISLAND, PACIFIC C | | | $23,000.00 | 50195 | 85000924 |
| 4 | 03/01/1984 | QCD | Quit Claim Deed | Unknown | CEDAR, GLEN | | | $0.00 | 40737 | 422325 |
Payout Agreement
| No payout information available.. |