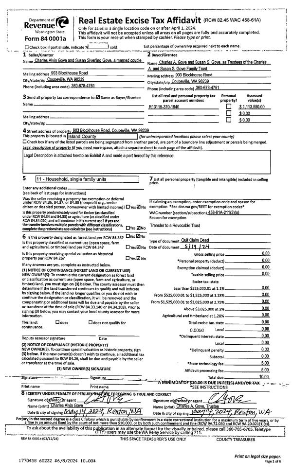
Property
Account |
| Property ID: | 593888 | Abbreviated Legal Description: | CEDAR GLEN LOT 37 |
| Geographic ID: | S6352-00-00037-0 | Agent Code: | |
| Type: | Real | | |
| Tax Area: | 100 - APPRAISER-OH Schl Dist, in OH | Land Use Code | 11 |
| Open Space: | N | DFL | N |
| Historic Property: | N | Remodel Property: | N |
| Multi-Family Redevelopment: | N | | |
| Township: | | Section: | |
| Range: | |
Location |
| Address: | 1634 NW 2ND AVE OAK HARBOR, WA 98277 | Mapsco: | |
| Neighborhood: | Cycle 1 | Map ID: | 252 |
| Neighborhood CD: | 1 |
Owner |
| Name: | SHARP, MICHAEL | Owner ID: | 273232 |
| Mailing Address: | 1634 NW 2ND AVE OAK HARBOR, WA 98277 | % Ownership: | 100.0000000000% |
| | | Exemptions: | |
Taxes and Assessment Details
Values
| (+) Improvement Homesite Value: | + | $0 | |
| (+) Improvement Non-Homesite Value: | + | $228,053 | |
| (+) Land Homesite Value: | + | $0 | |
| (+) Land Non-Homesite Value: | + | $210,000 | |
| (+) Curr Use (HS): | + | $0 | $0 |
| (+) Curr Use (NHS): | + | $0 | $0 |
| | | -------------------------- | |
| (=) Market Value: | = | $438,053 | |
| (–) Productivity Loss: | – | $0 | |
| | | -------------------------- | |
| (=) Subtotal: | = | $438,053 | |
| (+) Senior Appraised Value: | + | $0 | |
| (+) Non-Senior Appraised Value: | + | $438,053 | |
| | | -------------------------- | |
| (=) Total Appraised Value: | = | $438,053 | |
| (–) Senior Exemption Loss: | – | $0 | |
| (–) Exemption Loss: | – | $0 | |
| | | -------------------------- | |
| (=) Taxable Value: | = | $438,053 | |
Taxing Jurisdiction
| Owner: | SHARP, MICHAEL | | |
| % Ownership: | 100.0000000000% | | |
| Total Value: | $438,053 | | |
| Tax Area: | 100 - APPRAISER-OH Schl Dist, in OH |
| CF | Conservation Futures | 0.0316035091 | $438,053 | $438,053 | $13.84 | | |
| CEM1 | Cemetery #1 | 0.0040320932 | $438,053 | $438,053 | $1.77 | | |
| COH | City of Oak Harbor | 2.3001546061 | $438,053 | $438,053 | $1,007.59 | | |
| OAKBOND | City of Oak Harbor BOND | 0.1926904192 | $438,053 | $438,053 | $84.41 | | |
| HOBOND | Hospital BOND | 0.1910887512 | $438,053 | $438,053 | $83.71 | | |
| HOGEN | Hospital GEN | 0.3902502903 | $438,053 | $438,053 | $170.95 | | |
| CE | County Current Expense | 0.3708482477 | $438,053 | $438,053 | $162.45 | | |
| ISLANDEMS | Hospital GEN (EMS) | 0.5000000000 | $438,053 | $438,053 | $219.03 | | |
| LIB | Library Sno-Isle GEN | 0.3153421757 | $438,053 | $438,053 | $138.14 | | |
| NWHIDPRMT | P & R N Whidbey GEN | 0.2004466701 | $438,053 | $438,053 | $87.81 | | |
| SCH201MO | School 201 Enrichment | 1.8559231640 | $438,053 | $438,053 | $812.99 | | |
| ST | State School | 1.3035497053 | $438,053 | $438,053 | $571.02 | | |
| ST2 | State School Part 2 | 0.8169543533 | $438,053 | $438,053 | $357.87 | | |
| | Total Tax Rate: | 8.4728839852 | | | | | |
| | | | | Taxes w/Current Exemptions: | $3,711.58 | | |
| | | | | Taxes w/o Exemptions: | $3,711.58 | | |
Improvement / Building
| Improvement #1: | RESIDENTIAL | State Code: | Y | 1403.1 sqft | Value: | $228,053 |
| Bathrooms: | 1.75 | Bedrooms: | 3 | | Ceiling: | DRYWALL PAINTED | Exterior Wall/Cover: | WOOD SIDING | | Floor Covering: | CARPET/VINYL 80-20 | Floor Structure: | WOOD W/SUBFLOOR | | Foundation: | CONCRETE | Heating: | WALL HEAT ELECTRIC | | Interior Finish: | DRYWALL PAINT | Plumbing Fixture Cnt: | 9 | | Roof Slope: | 5" IN 12" | Roof Structure/Cover: | CJ ASPHALT |
|
| | Type | Description | Class CD | Sub Class CD | Year Built | Area |
| | BAS | BASE/MAIN FLOOR | 3 | 0 | 1986 | 1403.1 |
| | OP3 | OPEN PORCH W/ROOF | 3 | 0 | 1986 | 24.0 |
| | AGR | ATTACHED GARAGE | 3 | 0 | 1986 | 450.0 |
| | OWP | OPEN WOOD PORCH W/STEPS | 3 | 0 | 1986 | 526.0 |
Sketch
Property Image
Land
| 1 | 14 | SQ (08001-12000) | 0.0000 | 0.00 | 0.00 | 0.00 | 1.00 | $210,000 | $0 |
Roll Value History
| 2026 | N/A | N/A | N/A | N/A | N/A |
| 2025 | $228,053 | $210,000 | $0 | $438,053 | $438,053 |
| 2024 | $231,166 | $190,000 | $0 | $421,166 | $421,166 |
| 2023 | $234,280 | $190,000 | $0 | $424,280 | $424,280 |
| 2022 | $214,973 | $180,000 | $0 | $394,973 | $394,973 |
| 2021 | $189,378 | $120,000 | $0 | $309,378 | $309,378 |
| 2020 | $184,567 | $100,000 | $0 | $284,567 | $284,567 |
| 2019 | $133,204 | $150,000 | $0 | $283,204 | $283,204 |
| 2018 | $133,624 | $130,000 | $0 | $263,624 | $263,624 |
| 2017 | $133,610 | $110,000 | $0 | $243,610 | $243,610 |
| 2016 | $135,323 | $90,000 | $0 | $225,323 | $225,323 |
| 2015 | $118,915 | $70,000 | $0 | $188,915 | $188,915 |
| 2014 | $120,562 | $55,000 | $0 | $175,562 | $175,562 |
| 2013 | $122,209 | $55,000 | $0 | $177,209 | $177,209 |
| 2012 | $123,857 | $60,000 | $0 | $183,857 | $183,857 |
| 2011 | $124,359 | $50,000 | $0 | $174,359 | $174,359 |
| 2010 | $133,011 | $50,000 | $0 | $183,011 | $183,011 |
| 2009 | $138,676 | $75,000 | $0 | $213,676 | $213,676 |
| 2008 | $140,384 | $100,000 | $0 | $240,384 | $240,384 |
| 2007 | $142,137 | $100,000 | $0 | $242,137 | $242,137 |
Deed and Sales History
| 1 | 12/15/2015 | WD | Warranty Deed | FROMM, DAVID C | SHARP, MICHAEL | | | $245,000.00 | 22590 | 4391456 |
| 2 | 07/01/1998 | WD | Warranty Deed | FROMM, DAVID C | FROMM, DAVID C | | | $143,500.00 | 82757 | 98014321 |
| 3 | 02/01/1995 | QCD | Quit Claim Deed | FRANKE, KELLY J | WILKEY, KELLY J | | | $0.00 | 50409 | 95001914 |
| 4 | 05/01/1994 | WD | Warranty Deed | O'BLACK, STEPHEN/SANDRA S | FRANKE, KELLY J | | | $143,500.00 | 42115 | 94012180 |
| 5 | 03/01/1992 | WD | Warranty Deed | HANSHEW, RAYMOND L | O'BLACK, STEPHEN/SANDRA S | | | $120,500.00 | 21001 | 92005010 |
| 6 | 08/01/1986 | WD | Warranty Deed | BLUE, RIBBONS H | HANSHEW, RAYMOND L | | | $76,900.00 | 62257 | 86010429 |
| 7 | 05/01/1986 | WD | Warranty Deed | CEDAR, GLEN | BLUE, RIBBONS H | | | $0.00 | 61114 | 86005239 |
| 8 | 03/01/1984 | QCD | Quit Claim Deed | Unknown | CEDAR, GLEN | | | $0.00 | 40737 | 422325 |
Payout Agreement
| No payout information available.. |