Property
Account |
| Property ID: | 595056 | Abbreviated Legal Description: | LOT 3 SP 80-68.32923.144-2460 V1 SP P334 AF#85003254 TGW PT ADJ VAC CO RD R/W RES R-24-89 AF#89006535 |
| Geographic ID: | R32923-157-2560 | Agent Code: | |
| Type: | Real | | |
| Tax Area: | 710 - APPRAISER-S Whid Schl Dist, outside Langley, improved & 1 acre or less | Land Use Code | 12 |
| Open Space: | N | DFL | N |
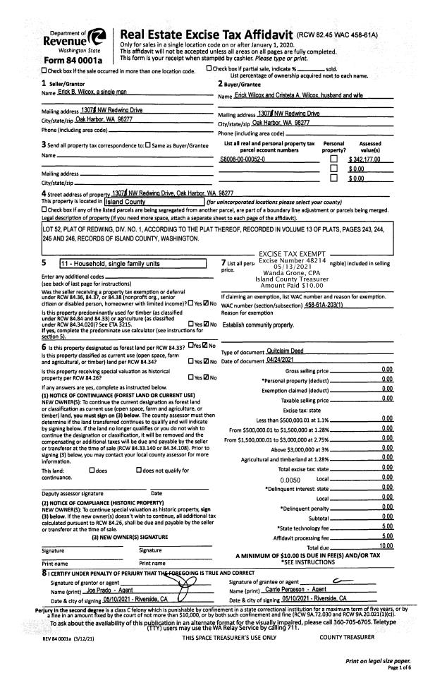
| Historic Property: | N | Remodel Property: | N |
| Multi-Family Redevelopment: | N | | |
| Township: | 29 | Section: | 23 |
| Range: | R3 |
Location |
| Address: | 4196 WINNS HOLLOW LN CLINTON, WA 98236 | Mapsco: | |
| Neighborhood: | Cycle 4 | Map ID: | 803 |
| Neighborhood CD: | 4 |
Owner |
| Name: | SATO TTEE, SHERYL J | Owner ID: | 311271 |
| Mailing Address: | 5762 SUMMERHILL DR LANGLEY, WA 98260 | % Ownership: | 100.0000000000% |
| | | Exemptions: | |
Taxes and Assessment Details
Values
| (+) Improvement Homesite Value: | + | $0 | |
| (+) Improvement Non-Homesite Value: | + | $287,466 | |
| (+) Land Homesite Value: | + | $0 | |
| (+) Land Non-Homesite Value: | + | $260,000 | |
| (+) Curr Use (HS): | + | $0 | $0 |
| (+) Curr Use (NHS): | + | $0 | $0 |
| | | -------------------------- | |
| (=) Market Value: | = | $547,466 | |
| (–) Productivity Loss: | – | $0 | |
| | | -------------------------- | |
| (=) Subtotal: | = | $547,466 | |
| (+) Senior Appraised Value: | + | $0 | |
| (+) Non-Senior Appraised Value: | + | $547,466 | |
| | | -------------------------- | |
| (=) Total Appraised Value: | = | $547,466 | |
| (–) Senior Exemption Loss: | – | $0 | |
| (–) Exemption Loss: | – | $0 | |
| | | -------------------------- | |
| (=) Taxable Value: | = | $547,466 | |
Taxing Jurisdiction
| Owner: | SATO TTEE, SHERYL J | | |
| % Ownership: | 100.0000000000% | | |
| Total Value: | $547,466 | | |
| Tax Area: | 710 - APPRAISER-S Whid Schl Dist, outside Langley, improved & 1 acre or less |
| CF | Conservation Futures | 0.0316035091 | $547,466 | $547,466 | $17.30 | | |
| FIRE3 | Fire & Rescue Dist #3 S Whidbey GEN | 1.2004855531 | $547,466 | $547,466 | $657.23 | | |
| HOBOND | Hospital BOND | 0.1910887512 | $547,466 | $547,466 | $104.61 | | |
| HOGEN | Hospital GEN | 0.3902502903 | $547,466 | $547,466 | $213.65 | | |
| CE | County Current Expense | 0.3708482477 | $547,466 | $547,466 | $203.03 | | |
| CR | County Roads | 0.4584763726 | $547,466 | $547,466 | $251.00 | | |
| ISLANDEMS | Hospital GEN (EMS) | 0.5000000000 | $547,466 | $547,466 | $273.73 | | |
| LIB | Library Sno-Isle GEN | 0.3153421757 | $547,466 | $547,466 | $172.64 | | |
| PORTWHID | Port of S Whidbey GEN | 0.1094540357 | $547,466 | $547,466 | $59.92 | | |
| SCH206BOND | School 206 BOND | 0.3161759235 | $547,466 | $547,466 | $173.10 | | |
| SCH206MO | School 206 Enrichment | 0.4547169547 | $547,466 | $547,466 | $248.94 | | |
| ST | State School | 1.3035497053 | $547,466 | $547,466 | $713.65 | | |
| ST2 | State School Part 2 | 0.8169543533 | $547,466 | $547,466 | $447.25 | | |
| SWHIDPRBD | P & R S Whidbey BOND | 0.0152817568 | $547,466 | $547,466 | $8.37 | | |
| SWHIDPRBD2 | P & R S Whidbey BOND2 | 0.0138911264 | $547,466 | $547,466 | $7.60 | | |
| SWHIDPRMT | P & R S Whidbey GEN | 0.2053334452 | $547,466 | $547,466 | $112.41 | | |
| | Total Tax Rate: | 6.6934522006 | | | | | |
| | | | | Taxes w/Current Exemptions: | $3,664.43 | | |
| | | | | Taxes w/o Exemptions: | $3,664.43 | | |
Improvement / Building
| Improvement #1: | RESIDENTIAL | State Code: | Y | 1816.8 sqft | Value: | $287,466 |
| Bathrooms: | 4 | Bedrooms: | 4 | | Ceiling: | DRYWALL PAINTED | Exterior Wall/Cover: | WOOD SIDING | | Floor Covering: | CARPET/VINYL 80-20 | Floor Structure: | WOOD W/SUBFLOOR | | Foundation: | CONCRETE | Heating: | WALL HEAT ELECTRIC | | Interior Finish: | DRYWALL PAINT | Plumbing Fixture Cnt: | 18 | | Roof Slope: | 5" IN 12" | Roof Structure/Cover: | CJ ASPHALT |
|
| | Type | Description | Class CD | Sub Class CD | Year Built | Area |
| | BAS | BASE/MAIN FLOOR | 3 | 0 | 1990 | 476.4 |
| | BAS | BASE/MAIN FLOOR | 3 | 0 | 1990 | 476.4 |
| | BIG | BUILT IN GARAGE | 3 | 0 | 1990 | 624.0 |
| | UPS | UPPER STORY | 3 | 0 | 1990 | 864.0 |
| | OWP | OPEN WOOD PORCH W/STEPS | 3 | 0 | 1990 | 280.0 |
| | OWP | OPEN WOOD PORCH W/STEPS | 3 | 0 | 1990 | 22.8 |
Sketch
Property Image
Land
| 1 | 16 | AC (00.51-01.00) | 0.0000 | 0.00 | 0.00 | 0.00 | 1.00 | $260,000 | $0 |
Roll Value History
| 2026 | N/A | N/A | N/A | N/A | N/A |
| 2025 | $287,466 | $260,000 | $0 | $547,466 | $547,466 |
| 2024 | $291,392 | $250,000 | $0 | $541,392 | $541,392 |
| 2023 | $295,315 | $240,000 | $0 | $535,315 | $535,315 |
| 2022 | $270,964 | $240,000 | $0 | $510,964 | $510,964 |
| 2021 | $238,714 | $160,000 | $0 | $398,714 | $398,714 |
| 2020 | $215,523 | $135,000 | $0 | $350,523 | $350,523 |
| 2019 | $158,191 | $180,000 | $0 | $338,191 | $338,191 |
| 2018 | $158,732 | $150,000 | $0 | $308,732 | $308,732 |
| 2017 | $158,445 | $140,000 | $0 | $298,445 | $298,445 |
| 2016 | $160,584 | $115,000 | $0 | $275,584 | $275,584 |
| 2015 | $162,724 | $100,000 | $0 | $262,724 | $262,724 |
| 2014 | $160,584 | $85,000 | $0 | $245,584 | $245,584 |
| 2013 | $164,085 | $85,000 | $0 | $249,085 | $249,085 |
| 2012 | $166,234 | $85,000 | $0 | $251,234 | $251,234 |
| 2011 | $173,106 | $100,000 | $0 | $273,106 | $273,106 |
| 2010 | $174,109 | $100,000 | $0 | $274,109 | $274,109 |
| 2009 | $181,575 | $160,000 | $0 | $341,575 | $341,575 |
| 2008 | $182,823 | $145,000 | $0 | $327,823 | $327,823 |
| 2007 | $184,983 | $145,000 | $0 | $329,983 | $329,983 |
Deed and Sales History
| 1 | 08/08/2024 | WD | Warranty Deed | SATO TRUSTEE, DONALD | SATO TTEE, SHERYL J | | | $0.00 | 60894 | 4575662 |
| 2 | 03/24/2016 | WD | Warranty Deed | LEGGETT, JIMMY D | SATO TRUSTEE, DONALD | | | $300,000.00 | 23716 | 4396732 |
| 3 | 02/18/2015 | WD | Warranty Deed | MCCAULEY, LAWRENCE M | LEGGETT, JIMMY D | | | $210,000.00 | 18538 | 4373571 |
| 4 | 07/29/2002 | WD | Warranty Deed | CYDELL, ALICE H | MCCAULEY, LAWRENCE M | | | $175,000.00 | 23013 | 4027204 |
| 5 | 03/01/1994 | QCD | Quit Claim Deed | CYDELL, ALICE H | CYDELL, ALICE H | | | $0.00 | 41166 | 94007434 |
| 6 | 08/01/1993 | WD | Warranty Deed | R, K P | CYDELL, ALICE H | | | $154,500.00 | 33227 | 93016774 |
| 7 | 11/01/1988 | WD | Warranty Deed | OZIEL, ALBERT | R, K P | | | $8,250.00 | 83791 | 88014102 |
| 8 | 09/01/1986 | QCD | Quit Claim Deed | OZIEL, ALBERT | OZIEL, ALBERT | | | $0.00 | 62571 | 86011677 |
| 9 | 05/01/1986 | QCD | Quit Claim Deed | AHEARN, MICHAEL | OZIEL, ALBERT | | | $0.00 | 61206 | 86005666 |
| 10 | 01/01/1900 | EZ | Easement | Unknown | AHEARN, MICHAEL | | | $0.00 | 12771 | 387564 |
Payout Agreement
| No payout information available.. |