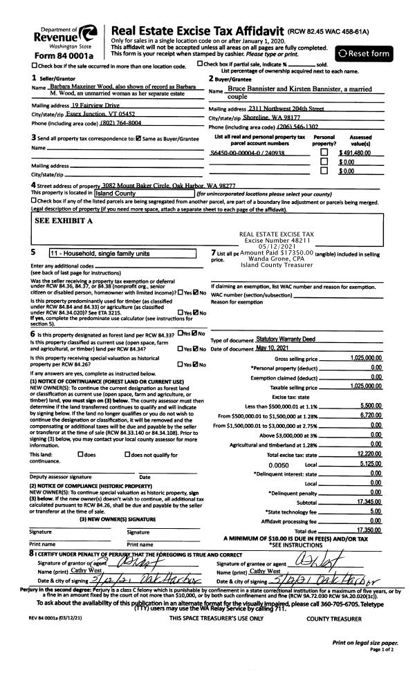
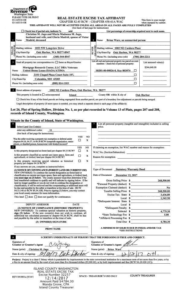
Property
Account |
| Property ID: | 595065 | Abbreviated Legal Description: | LOT 4 SP 80-76.32923.146-2920 V1 SP P333 AF#85003253 TGW S292.87' OF W20' OF SW NW SE (VAC CO RD AF#89006535) COMB 7/89 PT DRAINFIELD FOR 157-2560 AF#89008452 DRAINFIELD LOC PT 157-2560 AF#89008453 PT DRAINFIELD FOR 157-2450 AF#89008450 DRAINFIELD LOC |
| Geographic ID: | R32923-157-2670 | Agent Code: | |
| Type: | Real | | |
| Tax Area: | 710 - APPRAISER-S Whid Schl Dist, outside Langley, improved & 1 acre or less | Land Use Code | 12 |
| Open Space: | N | DFL | N |
| Historic Property: | N | Remodel Property: | N |
| Multi-Family Redevelopment: | N | | |
| Township: | 29 | Section: | 23 |
| Range: | R3 |
Location |
| Address: | 4206 WINNS HOLLOW LN CLINTON, WA 98236 | Mapsco: | |
| Neighborhood: | Cycle 4 | Map ID: | 804 |
| Neighborhood CD: | 4 |
Owner |
| Name: | SATO TTEE, SHERYL J | Owner ID: | 311271 |
| Mailing Address: | 5762 SUMMERHILL DR LANGLEY, WA 98260 | % Ownership: | 100.0000000000% |
| | | Exemptions: | |
Taxes and Assessment Details
Values
| (+) Improvement Homesite Value: | + | $0 | |
| (+) Improvement Non-Homesite Value: | + | $282,780 | |
| (+) Land Homesite Value: | + | $0 | |
| (+) Land Non-Homesite Value: | + | $260,000 | |
| (+) Curr Use (HS): | + | $0 | $0 |
| (+) Curr Use (NHS): | + | $0 | $0 |
| | | -------------------------- | |
| (=) Market Value: | = | $542,780 | |
| (–) Productivity Loss: | – | $0 | |
| | | -------------------------- | |
| (=) Subtotal: | = | $542,780 | |
| (+) Senior Appraised Value: | + | $0 | |
| (+) Non-Senior Appraised Value: | + | $542,780 | |
| | | -------------------------- | |
| (=) Total Appraised Value: | = | $542,780 | |
| (–) Senior Exemption Loss: | – | $0 | |
| (–) Exemption Loss: | – | $0 | |
| | | -------------------------- | |
| (=) Taxable Value: | = | $542,780 | |
Taxing Jurisdiction
| Owner: | SATO TTEE, SHERYL J | | |
| % Ownership: | 100.0000000000% | | |
| Total Value: | $542,780 | | |
| Tax Area: | 710 - APPRAISER-S Whid Schl Dist, outside Langley, improved & 1 acre or less |
| CF | Conservation Futures | 0.0316035091 | $542,780 | $542,780 | $17.15 | | |
| FIRE3 | Fire & Rescue Dist #3 S Whidbey GEN | 1.2004855531 | $542,780 | $542,780 | $651.60 | | |
| HOBOND | Hospital BOND | 0.1910887512 | $542,780 | $542,780 | $103.72 | | |
| HOGEN | Hospital GEN | 0.3902502903 | $542,780 | $542,780 | $211.82 | | |
| CE | County Current Expense | 0.3708482477 | $542,780 | $542,780 | $201.29 | | |
| CR | County Roads | 0.4584763726 | $542,780 | $542,780 | $248.85 | | |
| ISLANDEMS | Hospital GEN (EMS) | 0.5000000000 | $542,780 | $542,780 | $271.39 | | |
| LIB | Library Sno-Isle GEN | 0.3153421757 | $542,780 | $542,780 | $171.16 | | |
| PORTWHID | Port of S Whidbey GEN | 0.1094540357 | $542,780 | $542,780 | $59.41 | | |
| SCH206BOND | School 206 BOND | 0.3161759235 | $542,780 | $542,780 | $171.61 | | |
| SCH206MO | School 206 Enrichment | 0.4547169547 | $542,780 | $542,780 | $246.81 | | |
| ST | State School | 1.3035497053 | $542,780 | $542,780 | $707.54 | | |
| ST2 | State School Part 2 | 0.8169543533 | $542,780 | $542,780 | $443.43 | | |
| SWHIDPRBD | P & R S Whidbey BOND | 0.0152817568 | $542,780 | $542,780 | $8.29 | | |
| SWHIDPRBD2 | P & R S Whidbey BOND2 | 0.0138911264 | $542,780 | $542,780 | $7.54 | | |
| SWHIDPRMT | P & R S Whidbey GEN | 0.2053334452 | $542,780 | $542,780 | $111.45 | | |
| | Total Tax Rate: | 6.6934522006 | | | | | |
| | | | | Taxes w/Current Exemptions: | $3,633.06 | | |
| | | | | Taxes w/o Exemptions: | $3,633.06 | | |
Improvement / Building
| Improvement #1: | RESIDENTIAL | State Code: | Y | 1801.6 sqft | Value: | $282,780 |
| Bathrooms: | 4 | Bedrooms: | 4 | | Ceiling: | DRYWALL PAINTED | Exterior Wall/Cover: | PLY/HARDBOARD T-111 | | Floor Covering: | CARPET/VINYL 80-20 | Floor Structure: | WOOD W/SUBFLOOR | | Foundation: | CONCRETE | Heating: | WALL HEAT ELECTRIC | | Interior Finish: | DRYWALL PAINT | Plumbing Fixture Cnt: | 18 | | Roof Slope: | 5" IN 12" | Roof Structure/Cover: | CJ ASPHALT |
|
| | Type | Description | Class CD | Sub Class CD | Year Built | Area |
| | BAS | BASE/MAIN FLOOR | 3 | 0 | 1990 | 937.6 |
| | AGR | ATTACHED GARAGE | 3 | 0 | 1990 | 288.0 |
| | AGR | ATTACHED GARAGE | 3 | 0 | 1990 | 288.0 |
| | UPS | UPPER STORY | 3 | 0 | 1990 | 864.0 |
| | OWP | OPEN WOOD PORCH W/STEPS | 3 | 0 | 1990 | 38.8 |
| | OWP | OPEN WOOD PORCH W/STEPS | 3 | 0 | 1990 | 160.0 |
Sketch
Property Image
Land
| 1 | 16 | AC (00.51-01.00) | 0.0000 | 0.00 | 0.00 | 0.00 | 1.00 | $260,000 | $0 |
Roll Value History
| 2026 | N/A | N/A | N/A | N/A | N/A |
| 2025 | $282,780 | $260,000 | $0 | $542,780 | $542,780 |
| 2024 | $286,640 | $250,000 | $0 | $536,640 | $536,640 |
| 2023 | $290,499 | $240,000 | $0 | $530,499 | $530,499 |
| 2022 | $266,541 | $240,000 | $0 | $506,541 | $506,541 |
| 2021 | $234,814 | $160,000 | $0 | $394,814 | $394,814 |
| 2020 | $227,863 | $135,000 | $0 | $362,863 | $362,863 |
| 2019 | $166,771 | $180,000 | $0 | $346,771 | $346,771 |
| 2018 | $167,297 | $150,000 | $0 | $317,297 | $317,297 |
| 2017 | $161,176 | $140,000 | $0 | $301,176 | $301,176 |
| 2016 | $163,322 | $115,000 | $0 | $278,322 | $278,322 |
| 2015 | $165,472 | $100,000 | $0 | $265,472 | $265,472 |
| 2014 | $161,176 | $85,000 | $0 | $246,176 | $246,176 |
| 2013 | $164,348 | $48,450 | $0 | $212,798 | $212,798 |
| 2012 | $166,503 | $48,450 | $0 | $214,953 | $214,953 |
| 2011 | $173,398 | $57,000 | $0 | $230,398 | $230,398 |
| 2010 | $175,609 | $57,000 | $0 | $232,609 | $232,609 |
| 2009 | $183,156 | $91,200 | $0 | $274,356 | $274,356 |
| 2008 | $184,721 | $82,650 | $0 | $267,371 | $267,371 |
| 2007 | $186,904 | $82,650 | $0 | $269,554 | $269,554 |
Deed and Sales History
| 1 | 08/08/2024 | WD | Warranty Deed | SATO TRUSTEE, DONALD A | SATO TTEE, SHERYL J | | | $0.00 | 60893 | 4575661 |
| 2 | 12/26/2017 | WD | Warranty Deed | MCCAULEY, LAWRENCE M | SATO TRUSTEE, DONALD A | | | $347,500.00 | 32429 | 4436501 |
| 3 | 07/31/2002 | WD | Warranty Deed | R&D PARK CREEK LLC, | MCCAULEY, LAWRENCE M | | | $156,666.00 | 23070 | 4027643 |
| 4 | 04/20/2000 | QCD | Quit Claim Deed | PORTER, ROBERT K/JOAN M | R&D PARK CREEK LLC, | | | $0.00 | 1497 | 20007303 |
| 5 | 08/01/1989 | WD | Warranty Deed | R, K P | PORTER, ROBERT K | | | $20,200.00 | 93419 | 89011428 |
| 6 | 07/01/1989 | OTHER | Other - Misc. Documents | R, K P | R, K P | | | $0.00 | 63230 | 89008449 |
| 7 | 11/01/1988 | WD | Warranty Deed | OZIEL, ALBERT | R, K P | | | $8,250.00 | 83791 | 88014102 |
| 8 | 09/01/1986 | QCD | Quit Claim Deed | OZIEL, ALBERT | OZIEL, ALBERT | | | $0.00 | 62571 | 86011677 |
| 9 | 05/01/1986 | QCD | Quit Claim Deed | AHEARN, MICHAEL | OZIEL, ALBERT | | | $0.00 | 61206 | 86005666 |
| 10 | 01/01/1900 | OTHER | Other - Misc. Documents | Unknown | AHEARN, MICHAEL | | | $0.00 | 12771 | 387564 |
| 11 | 01/01/1900 | OTHER | Other - Misc. Documents | PORTER, ROBERT K | PORTER, ROBERT K/JOAN M | | | $0.00 | 0 | 0 |
Payout Agreement
| No payout information available.. |