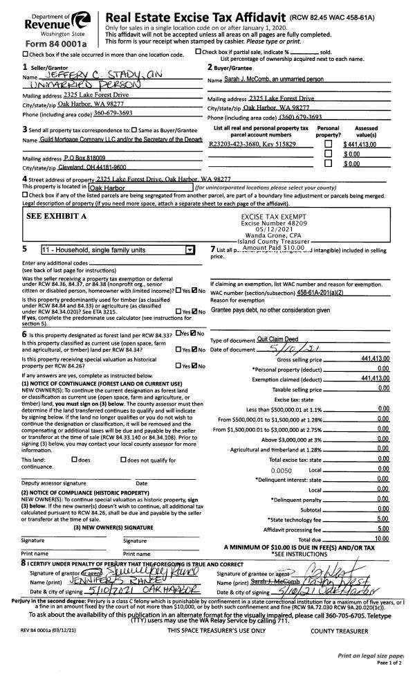
Property
Account |
| Property ID: | 595083 | Abbreviated Legal Description: | LOT 6 SP 80-76.32923.146-2920 V1 SP P333 AF#85003253 |
| Geographic ID: | R32923-157-2900 | Agent Code: | |
| Type: | Real | | |
| Tax Area: | 712 - APPRAISER-S Whid Schl Dist, outside Langley, improved, greater than 1 acre | Land Use Code | 12 |
| Open Space: | N | DFL | N |
| Historic Property: | N | Remodel Property: | N |
| Multi-Family Redevelopment: | N | | |
| Township: | 29 | Section: | 23 |
| Range: | R3 |
Location |
| Address: | 4222 WINNS HOLLOW LN CLINTON, WA 98236 | Mapsco: | |
| Neighborhood: | Cycle 4 | Map ID: | 804 |
| Neighborhood CD: | 4 |
Owner |
| Name: | DYNES, DAVID | Owner ID: | 292182 |
| Mailing Address: | JERRY BUNN 4848 ELLIS WAY MUKILTEO, WA 98275 | % Ownership: | 100.0000000000% |
| | | Exemptions: | |
Taxes and Assessment Details
Values
| (+) Improvement Homesite Value: | + | $0 | |
| (+) Improvement Non-Homesite Value: | + | $283,080 | |
| (+) Land Homesite Value: | + | $0 | |
| (+) Land Non-Homesite Value: | + | $290,000 | |
| (+) Curr Use (HS): | + | $0 | $0 |
| (+) Curr Use (NHS): | + | $0 | $0 |
| | | -------------------------- | |
| (=) Market Value: | = | $573,080 | |
| (–) Productivity Loss: | – | $0 | |
| | | -------------------------- | |
| (=) Subtotal: | = | $573,080 | |
| (+) Senior Appraised Value: | + | $0 | |
| (+) Non-Senior Appraised Value: | + | $573,080 | |
| | | -------------------------- | |
| (=) Total Appraised Value: | = | $573,080 | |
| (–) Senior Exemption Loss: | – | $0 | |
| (–) Exemption Loss: | – | $0 | |
| | | -------------------------- | |
| (=) Taxable Value: | = | $573,080 | |
Taxing Jurisdiction
| Owner: | DYNES, DAVID | | |
| % Ownership: | 100.0000000000% | | |
| Total Value: | $573,080 | | |
| Tax Area: | 712 - APPRAISER-S Whid Schl Dist, outside Langley, improved, greater than 1 acre |
| CF | Conservation Futures | 0.0316035091 | $573,080 | $573,080 | $18.11 | | |
| FIRE3 | Fire & Rescue Dist #3 S Whidbey GEN | 1.2004855531 | $573,080 | $573,080 | $687.97 | | |
| HOBOND | Hospital BOND | 0.1910887512 | $573,080 | $573,080 | $109.51 | | |
| HOGEN | Hospital GEN | 0.3902502903 | $573,080 | $573,080 | $223.64 | | |
| CE | County Current Expense | 0.3708482477 | $573,080 | $573,080 | $212.53 | | |
| CR | County Roads | 0.4584763726 | $573,080 | $573,080 | $262.74 | | |
| ISLANDEMS | Hospital GEN (EMS) | 0.5000000000 | $573,080 | $573,080 | $286.54 | | |
| LIB | Library Sno-Isle GEN | 0.3153421757 | $573,080 | $573,080 | $180.72 | | |
| PORTWHID | Port of S Whidbey GEN | 0.1094540357 | $573,080 | $573,080 | $62.73 | | |
| SCH206BOND | School 206 BOND | 0.3161759235 | $573,080 | $573,080 | $181.19 | | |
| SCH206MO | School 206 Enrichment | 0.4547169547 | $573,080 | $573,080 | $260.59 | | |
| ST | State School | 1.3035497053 | $573,080 | $573,080 | $747.04 | | |
| ST2 | State School Part 2 | 0.8169543533 | $573,080 | $573,080 | $468.18 | | |
| SWHIDPRBD | P & R S Whidbey BOND | 0.0152817568 | $573,080 | $573,080 | $8.76 | | |
| SWHIDPRBD2 | P & R S Whidbey BOND2 | 0.0138911264 | $573,080 | $573,080 | $7.96 | | |
| SWHIDPRMT | P & R S Whidbey GEN | 0.2053334452 | $573,080 | $573,080 | $117.67 | | |
| | Total Tax Rate: | 6.6934522006 | | | | | |
| | | | | Taxes w/Current Exemptions: | $3,835.88 | | |
| | | | | Taxes w/o Exemptions: | $3,835.88 | | |
Improvement / Building
| Improvement #1: | RESIDENTIAL | State Code: | Y | 1818.9 sqft | Value: | $283,080 |
| Bathrooms: | 4 | Bedrooms: | 4 | | Ceiling: | DRYWALL PAINTED | Exterior Wall/Cover: | PLY/HARDBOARD T-111 | | Floor Covering: | CARPET/VINYL 80-20 | Floor Structure: | WOOD W/SUBFLOOR | | Foundation: | CONCRETE | Heating: | WALL HEAT ELECTRIC | | Interior Finish: | DRYWALL PAINT | Plumbing Fixture Cnt: | 18 | | Roof Slope: | 5" IN 12" | Roof Structure/Cover: | CJ ASPHALT |
|
| | Type | Description | Class CD | Sub Class CD | Year Built | Area |
| | BAS | BASE/MAIN FLOOR | 3 | 0 | 1990 | 477.8 |
| | BAS | BASE/MAIN FLOOR | 3 | 0 | 1990 | 477.1 |
| | BIG | BUILT IN GARAGE | 3 | 0 | 1990 | 624.0 |
| | UPS | UPPER STORY | 3 | 0 | 1990 | 864.0 |
| | OWP | OPEN WOOD PORCH W/STEPS | 3 | 0 | 1990 | 140.0 |
| | OWP | OPEN WOOD PORCH W/STEPS | 3 | 0 | 1990 | 140.0 |
Sketch
Property Image
Land
| 1 | 17 | AC (01.01-02.00) | 0.0000 | 0.00 | 0.00 | 0.00 | 1.00 | $290,000 | $0 |
Roll Value History
| 2026 | N/A | N/A | N/A | N/A | N/A |
| 2025 | $283,080 | $290,000 | $0 | $573,080 | $573,080 |
| 2024 | $286,943 | $280,000 | $0 | $566,943 | $566,943 |
| 2023 | $290,808 | $260,000 | $0 | $550,808 | $550,808 |
| 2022 | $266,826 | $250,000 | $0 | $516,826 | $516,826 |
| 2021 | $235,078 | $175,000 | $0 | $410,078 | $410,078 |
| 2020 | $213,550 | $165,000 | $0 | $378,550 | $378,550 |
| 2019 | $156,542 | $200,000 | $0 | $356,542 | $356,542 |
| 2018 | $157,070 | $170,000 | $0 | $327,070 | $327,070 |
| 2017 | $158,016 | $150,000 | $0 | $308,016 | $308,016 |
| 2016 | $160,122 | $100,000 | $0 | $260,122 | $260,122 |
| 2015 | $162,230 | $100,000 | $0 | $262,230 | $262,230 |
| 2014 | $160,122 | $48,450 | $0 | $208,572 | $208,572 |
| 2013 | $163,088 | $48,450 | $0 | $211,538 | $211,538 |
| 2012 | $165,200 | $48,450 | $0 | $213,650 | $213,650 |
| 2011 | $171,749 | $57,000 | $0 | $228,749 | $228,749 |
| 2010 | $172,395 | $57,000 | $0 | $229,395 | $229,395 |
| 2009 | $179,779 | $88,350 | $0 | $268,129 | $268,129 |
| 2008 | $184,983 | $84,303 | $0 | $269,286 | $269,286 |
| 2007 | $187,143 | $84,303 | $0 | $271,446 | $271,446 |
Deed and Sales History
| 1 | 10/10/2019 | QCD | Quit Claim Deed | CHARLES TODD GROUP, LLC | DYNES, DAVID | | | $0.00 | 40659 | 4473205 |
| 2 | 10/22/2018 | WD | Warranty Deed | MCCAULEY, LAWRENCE M | CHARLES TODD GROUP, LLC | | | $342,000.00 | 36386 | 4453814 |
| 3 | 07/31/2002 | WD | Warranty Deed | R&D PARK CREEK LLC, | MCCAULEY, LAWRENCE M | | | $156,666.00 | 23072 | 4027645 |
| 4 | 04/20/2000 | QCD | Quit Claim Deed | PORTER, ROBERT K/JOAN M | R&D PARK CREEK LLC, | | | $0.00 | 1499 | 20007305 |
| 5 | 08/01/1989 | WD | Warranty Deed | R, K P | PORTER, ROBERT K | | | $10,000.00 | 93418 | 89011430 |
| 6 | 11/01/1988 | WD | Warranty Deed | OZIEL, ALBERT | R, K P | | | $9,700.00 | 83791 | 88014102 |
| 7 | 09/01/1986 | QCD | Quit Claim Deed | OZIEL, ALBERT | OZIEL, ALBERT | | | $0.00 | 62571 | 86011677 |
| 8 | 05/01/1986 | QCD | Quit Claim Deed | AHEARN, MICHAEL | OZIEL, ALBERT | | | $0.00 | 61206 | 86005666 |
| 9 | 01/01/1900 | OTHER | Other - Misc. Documents | Unknown | AHEARN, MICHAEL | | | $0.00 | 12771 | 387564 |
| 10 | 01/01/1900 | OTHER | Other - Misc. Documents | PORTER, ROBERT K | PORTER, ROBERT K/JOAN M | | | $0.00 | 0 | 0 |
Payout Agreement
| No payout information available.. |