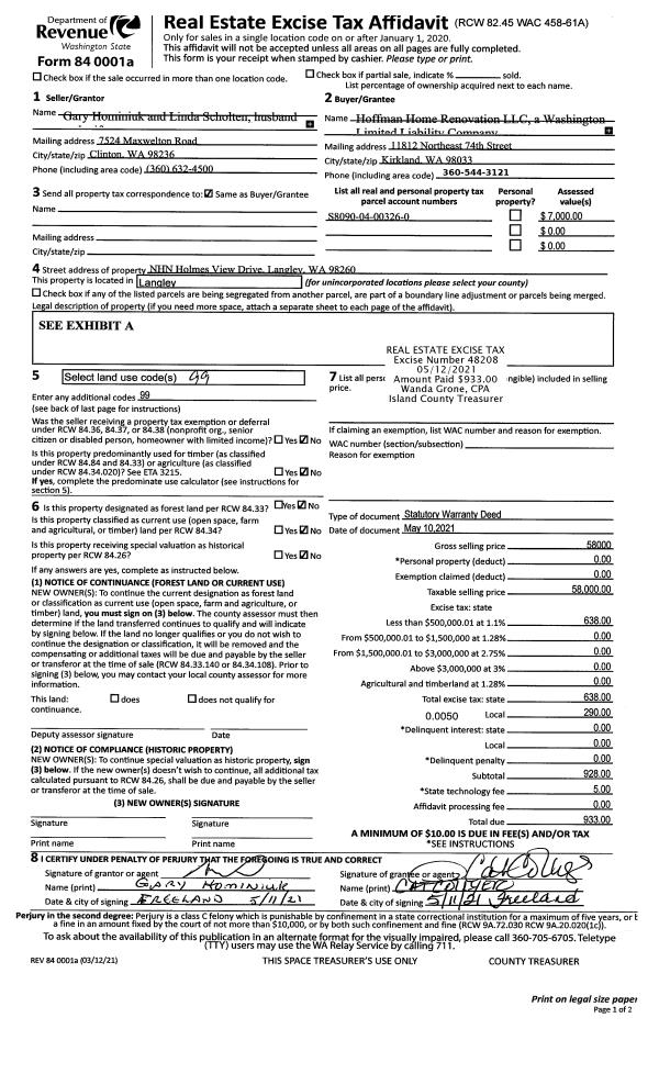
Property
Account |
| Property ID: | 595092 | Abbreviated Legal Description: | 1.3100 Acres ins Section 23s Township 29s Range R3s LOT A BLC AF#4450605 LOT 7 SP 80-76.32923-146-2920;s |
| Geographic ID: | R32923-157-3110 | Agent Code: | |
| Type: | Real | | |
| Tax Area: | 712 - APPRAISER-S Whid Schl Dist, outside Langley, improved, greater than 1 acre | Land Use Code | 12 |
| Open Space: | N | DFL | N |
| Historic Property: | N | Remodel Property: | N |
| Multi-Family Redevelopment: | N | | |
| Township: | 29 | Section: | 23 |
| Range: | R3 |
Location |
| Address: | 4234 WINNS HOLLOW LN CLINTON, WA 98236 | Mapsco: | |
| Neighborhood: | Cycle 4 | Map ID: | 804 |
| Neighborhood CD: | 4 |
Owner |
| Name: | BAIN, TRAVIS A | Owner ID: | 287642 |
| Mailing Address: | 1037 NE 65TH ST #256 SEATTLE, WA 98115 | % Ownership: | 100.0000000000% |
| | | Exemptions: | |
Taxes and Assessment Details
Values
| (+) Improvement Homesite Value: | + | $0 | |
| (+) Improvement Non-Homesite Value: | + | $276,718 | |
| (+) Land Homesite Value: | + | $0 | |
| (+) Land Non-Homesite Value: | + | $290,000 | |
| (+) Curr Use (HS): | + | $0 | $0 |
| (+) Curr Use (NHS): | + | $0 | $0 |
| | | -------------------------- | |
| (=) Market Value: | = | $566,718 | |
| (–) Productivity Loss: | – | $0 | |
| | | -------------------------- | |
| (=) Subtotal: | = | $566,718 | |
| (+) Senior Appraised Value: | + | $0 | |
| (+) Non-Senior Appraised Value: | + | $566,718 | |
| | | -------------------------- | |
| (=) Total Appraised Value: | = | $566,718 | |
| (–) Senior Exemption Loss: | – | $0 | |
| (–) Exemption Loss: | – | $0 | |
| | | -------------------------- | |
| (=) Taxable Value: | = | $566,718 | |
Taxing Jurisdiction
| Owner: | BAIN, TRAVIS A | | |
| % Ownership: | 100.0000000000% | | |
| Total Value: | $566,718 | | |
| Tax Area: | 712 - APPRAISER-S Whid Schl Dist, outside Langley, improved, greater than 1 acre |
| CF | Conservation Futures | 0.0316035091 | $566,718 | $566,718 | $17.91 | | |
| FIRE3 | Fire & Rescue Dist #3 S Whidbey GEN | 1.2004855531 | $566,718 | $566,718 | $680.34 | | |
| HOBOND | Hospital BOND | 0.1910887512 | $566,718 | $566,718 | $108.29 | | |
| HOGEN | Hospital GEN | 0.3902502903 | $566,718 | $566,718 | $221.16 | | |
| CE | County Current Expense | 0.3708482477 | $566,718 | $566,718 | $210.17 | | |
| CR | County Roads | 0.4584763726 | $566,718 | $566,718 | $259.83 | | |
| ISLANDEMS | Hospital GEN (EMS) | 0.5000000000 | $566,718 | $566,718 | $283.36 | | |
| LIB | Library Sno-Isle GEN | 0.3153421757 | $566,718 | $566,718 | $178.71 | | |
| PORTWHID | Port of S Whidbey GEN | 0.1094540357 | $566,718 | $566,718 | $62.03 | | |
| SCH206BOND | School 206 BOND | 0.3161759235 | $566,718 | $566,718 | $179.18 | | |
| SCH206MO | School 206 Enrichment | 0.4547169547 | $566,718 | $566,718 | $257.70 | | |
| ST | State School | 1.3035497053 | $566,718 | $566,718 | $738.75 | | |
| ST2 | State School Part 2 | 0.8169543533 | $566,718 | $566,718 | $462.98 | | |
| SWHIDPRBD | P & R S Whidbey BOND | 0.0152817568 | $566,718 | $566,718 | $8.66 | | |
| SWHIDPRBD2 | P & R S Whidbey BOND2 | 0.0138911264 | $566,718 | $566,718 | $7.87 | | |
| SWHIDPRMT | P & R S Whidbey GEN | 0.2053334452 | $566,718 | $566,718 | $116.37 | | |
| | Total Tax Rate: | 6.6934522006 | | | | | |
| | | | | Taxes w/Current Exemptions: | $3,793.31 | | |
| | | | | Taxes w/o Exemptions: | $3,793.31 | | |
Improvement / Building
| Improvement #1: | RESIDENTIAL | State Code: | Y | 1752.0 sqft | Value: | $276,718 |
| Bathrooms: | 3 | Bedrooms: | 4 | | Ceiling: | DRYWALL PAINTED | Exterior Wall/Cover: | PLY/HARDBOARD T-111 | | Floor Covering: | CARPET/VINYL 80-20 | Floor Structure: | WOOD W/SUBFLOOR | | Foundation: | CONCRETE | Heating: | WALL HEAT ELECTRIC | | Interior Finish: | DRYWALL PAINT | Plumbing Fixture Cnt: | 18 | | Roof Slope: | 5" IN 12" | Roof Structure/Cover: | CJ ASPHALT |
|
| | Type | Description | Class CD | Sub Class CD | Year Built | Area |
| | BAS | BASE/MAIN FLOOR | 3 | 0 | 1989 | 888.0 |
| | AGR | ATTACHED GARAGE | 3 | 0 | 1989 | 288.0 |
| | AGR | ATTACHED GARAGE | 3 | 0 | 1989 | 288.0 |
| | UPS | UPPER STORY | 3 | 0 | 1989 | 864.0 |
| | OWP | OPEN WOOD PORCH W/STEPS | 3 | 0 | 1989 | 140.0 |
| | OWP | OPEN WOOD PORCH W/STEPS | 3 | 0 | 1989 | 140.0 |
Sketch
Property Image
Land
| 1 | 17 | AC (01.01-02.00) | 0.0000 | 0.00 | 0.00 | 0.00 | 1.00 | $290,000 | $0 |
Roll Value History
| 2026 | N/A | N/A | N/A | N/A | N/A |
| 2025 | $276,718 | $290,000 | $0 | $566,718 | $566,718 |
| 2024 | $280,396 | $280,000 | $0 | $560,396 | $560,396 |
| 2023 | $284,074 | $260,000 | $0 | $544,074 | $544,074 |
| 2022 | $260,568 | $250,000 | $0 | $510,568 | $510,568 |
| 2021 | $229,478 | $175,000 | $0 | $404,478 | $404,478 |
| 2020 | $217,003 | $165,000 | $0 | $382,003 | $382,003 |
| 2019 | $158,519 | $200,000 | $0 | $358,519 | $358,519 |
| 2018 | $154,747 | $170,000 | $0 | $324,747 | $324,747 |
| 2017 | $155,787 | $150,000 | $0 | $305,787 | $305,787 |
| 2016 | $157,862 | $100,000 | $0 | $257,862 | $257,862 |
| 2015 | $159,942 | $100,000 | $0 | $259,942 | $259,942 |
| 2014 | $157,862 | $48,450 | $0 | $206,312 | $206,312 |
| 2013 | $161,946 | $48,450 | $0 | $210,396 | $210,396 |
| 2012 | $164,032 | $48,450 | $0 | $212,482 | $212,482 |
| 2011 | $170,496 | $57,000 | $0 | $227,496 | $227,496 |
| 2010 | $171,006 | $57,000 | $0 | $228,006 | $228,006 |
| 2009 | $178,305 | $88,350 | $0 | $266,655 | $266,655 |
| 2008 | $182,460 | $82,650 | $0 | $265,110 | $265,110 |
| 2007 | $184,591 | $82,650 | $0 | $267,241 | $267,241 |
Deed and Sales History
| 1 | 08/17/2018 | WD | Warranty Deed | MCCAULEY, LAWRENCE M | BAIN, TRAVIS A | | | $379,000.00 | 35721 | 4450987 |
| 2 | 08/24/2018 | QCD | Quit Claim Deed | WIERZBOWSKI, JOSEPH | MCCAULEY, LAWRENCE M | | | $0.00 | 35629 | 4450635 |
| 3 | 07/31/2002 | WD | Warranty Deed | R&D PARK CREEK LLC, | MCCAULEY, LAWRENCE M | | | $156,667.00 | 23071 | 4027647 |
| 4 | 04/20/2000 | QCD | Quit Claim Deed | PORTER, ROBERT K/JOAN M | R&D PARK CREEK LLC, | | | $0.00 | 1500 | 20007306 |
| 5 | 08/01/1989 | WD | Warranty Deed | R, K P | PORTER, ROBERT K | | | $17,800.00 | 93419 | 89011428 |
| 6 | 04/01/1989 | WD | Warranty Deed | RHOADES-AHEARN, SHARON A | R, K P | | | $17,000.00 | 91475 | 89005162 |
| 7 | 02/01/1989 | QCD | Quit Claim Deed | AHEARN, MICHAEL | RHOADES-AHEARN, SHARON A | | | $0.00 | 91474 | 89005161 |
| 8 | 01/01/1900 | OTHER | Other - Misc. Documents | Unknown | AHEARN, MICHAEL | | | $0.00 | 12771 | 387564 |
| 9 | 01/01/1900 | OTHER | Other - Misc. Documents | PORTER, ROBERT K | PORTER, ROBERT K/JOAN M | | | $0.00 | 0 | 0 |
Payout Agreement
| No payout information available.. |