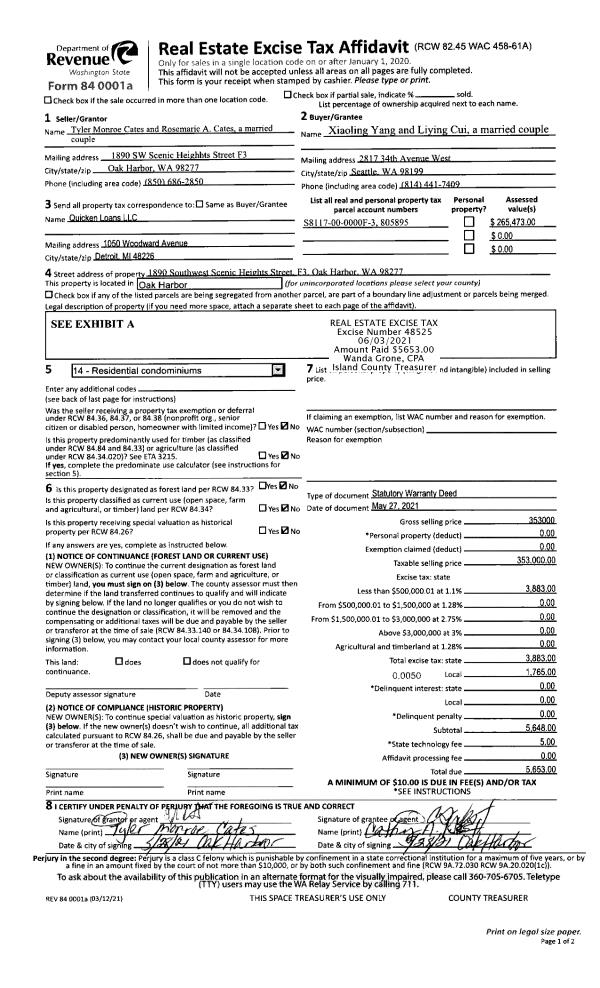
Property
Account |
| Property ID: | 595779 | Abbreviated Legal Description: | IN N/2 NW NW: PT N/2 NW NW LY NELY OF SWEDE HILL RD FR 495-0680 |
| Geographic ID: | R32809-515-1160 | Agent Code: | |
| Type: | Real | | |
| Tax Area: | 712 - APPRAISER-S Whid Schl Dist, outside Langley, improved, greater than 1 acre | Land Use Code | 11 |
| Open Space: | N | DFL | N |
| Historic Property: | N | Remodel Property: | N |
| Multi-Family Redevelopment: | N | | |
| Township: | 28 | Section: | 09 |
| Range: | R3 |
Location |
| Address: | 3253 SWEDE HILL RD CLINTON, WA 98236 | Mapsco: | |
| Neighborhood: | Cycle 4 | Map ID: | 695 |
| Neighborhood CD: | 4 |
Owner |
| Name: | DOLSTAD, DONELLE L | Owner ID: | 16154 |
| Mailing Address: | 3253 SWEDE HILL RD CLINTON, WA 98236 | % Ownership: | 100.0000000000% |
| | | Exemptions: | SNR/DSBL |
Taxes and Assessment Details
Values
| (+) Improvement Homesite Value: | + | $313,885 | |
| (+) Improvement Non-Homesite Value: | + | $0 | |
| (+) Land Homesite Value: | + | $310,000 | |
| (+) Land Non-Homesite Value: | + | $0 | |
| (+) Curr Use (HS): | + | $0 | $0 |
| (+) Curr Use (NHS): | + | $0 | $0 |
| | | -------------------------- | |
| (=) Market Value: | = | $623,885 | |
| (–) Productivity Loss: | – | $0 | |
| | | -------------------------- | |
| (=) Subtotal: | = | $623,885 | |
| (+) Senior Appraised Value: | + | $186,929 | |
| (+) Non-Senior Appraised Value: | + | $0 | |
| | | -------------------------- | |
| (=) Total Appraised Value: | = | $186,929 | |
| (–) Senior Exemption Loss: | – | $112,157 | |
| (–) Exemption Loss: | – | $0 | |
| | | -------------------------- | |
| (=) Taxable Value: | = | $74,772 | |
Taxing Jurisdiction
| Owner: | DOLSTAD, DONELLE L | | |
| % Ownership: | 100.0000000000% | | |
| Total Value: | $623,885 | | |
| Tax Area: | 712 - APPRAISER-S Whid Schl Dist, outside Langley, improved, greater than 1 acre |
| CF | Conservation Futures | 0.0316035091 | $623,885 | $74,772 | $2.36 | | |
| FIRE3 | Fire & Rescue Dist #3 S Whidbey GEN | 1.2004855531 | $623,885 | $74,772 | $89.76 | | |
| HOBOND | Hospital BOND | 0.0000000000 | $623,885 | $0 | $0.00 | | |
| HOGEN | Hospital GEN | 0.3902502903 | $623,885 | $74,772 | $29.18 | | |
| CE | County Current Expense | 0.3708482477 | $623,885 | $74,772 | $27.73 | | |
| CR | County Roads | 0.4584763726 | $623,885 | $74,772 | $34.28 | | |
| ISLANDEMS | Hospital GEN (EMS) | 0.5000000000 | $623,885 | $74,772 | $37.39 | | |
| LIB | Library Sno-Isle GEN | 0.3153421757 | $623,885 | $74,772 | $23.58 | | |
| PORTWHID | Port of S Whidbey GEN | 0.1094540357 | $623,885 | $74,772 | $8.18 | | |
| SCH206BOND | School 206 BOND | 0.3161759235 | $623,885 | $74,772 | $23.64 | | |
| SCH206MO | School 206 Enrichment | 0.0000000000 | $623,885 | $0 | $0.00 | | |
| ST | State School | 1.3035497053 | $623,885 | $74,772 | $97.47 | | |
| ST2 | State School Part 2 | 0.0000000000 | $623,885 | $0 | $0.00 | | |
| SWHIDPRBD | P & R S Whidbey BOND | 0.0000000000 | $623,885 | $0 | $0.00 | | |
| SWHIDPRBD2 | P & R S Whidbey BOND2 | 0.0000000000 | $623,885 | $0 | $0.00 | | |
| SWHIDPRMT | P & R S Whidbey GEN | 0.2053334452 | $623,885 | $74,772 | $15.35 | | |
| | Total Tax Rate: | 5.2015192582 | | | | | |
| | | | | Taxes w/Current Exemptions: | $388.92 | | |
| | | | | Taxes w/o Exemptions: | $4,175.96 | | |
Improvement / Building
| Improvement #1: | RESIDENTIAL | State Code: | Y | 1584.0 sqft | Value: | $313,885 |
| Bathrooms: | 2 | Bedrooms: | 3 | | Ceiling: | DRYWALL PAINTED | Cooling: | HEAT PUMP/CONV/V | | Exterior Wall/Cover: | WOOD SIDING | Floor Covering: | HARDWOOD/CARP 20-80 | | Floor Structure: | WOOD W/SUBFLOOR | Foundation: | CONCRETE | | Interior Finish: | DRYWALL PAINT | Plumbing Fixture Cnt: | 10 | | Roof Slope: | 12" IN 12" | Roof Structure/Cover: | CJ ASPHALT |
|
| | Type | Description | Class CD | Sub Class CD | Year Built | Area |
| | BAS | BASE/MAIN FLOOR | 3 | 0 | 1989 | 832.0 |
| | DGR | DETACHED GARAGE | 3 | 0 | 1989 | 1411.0 |
| | UPS | UPPER STORY | 3 | 0 | 1989 | 752.0 |
| | OWP | OPEN WOOD PORCH W/STEPS | 3 | 0 | 1989 | 28.0 |
| | OWR | OPEN WOOD PORCH W/STEPS/ROOF | 3 | 0 | 1989 | 48.0 |
| | OWR | OPEN WOOD PORCH W/STEPS/ROOF | 3 | 0 | 1989 | 312.0 |
Sketch
| No sketches available for this property. |
Property Image
Land
| 1 | 18 | AC (02.01-03.00) | 3.0000 | 130680.00 | 0.00 | 0.00 | 1.00 | $310,000 | $0 |
Roll Value History
| 2026 | N/A | N/A | N/A | N/A | N/A |
| 2025 | $313,885 | $310,000 | $0 | $623,885 | $74,772 |
| 2024 | $318,057 | $300,000 | $0 | $618,057 | $74,772 |
| 2023 | $322,227 | $290,000 | $0 | $612,227 | $74,772 |
| 2022 | $295,563 | $260,000 | $0 | $555,563 | $74,772 |
| 2021 | $257,264 | $175,000 | $0 | $432,264 | $73,394 |
| 2020 | $239,804 | $165,000 | $0 | $404,804 | $73,394 |
| 2019 | $175,005 | $200,000 | $0 | $375,005 | $73,394 |
| 2018 | $175,557 | $170,000 | $0 | $345,557 | $73,394 |
| 2017 | $176,500 | $150,000 | $0 | $326,500 | $73,394 |
| 2016 | $178,707 | $135,000 | $0 | $313,707 | $73,394 |
| 2015 | $180,914 | $135,000 | $0 | $315,914 | $73,394 |
| 2014 | $181,152 | $110,500 | $0 | $291,652 | $73,394 |
| 2013 | $183,408 | $110,500 | $0 | $293,908 | $73,394 |
| 2012 | $185,663 | $110,500 | $0 | $296,163 | $73,394 |
| 2011 | $187,920 | $130,000 | $0 | $317,920 | $73,394 |
| 2010 | $196,486 | $130,000 | $0 | $326,486 | $73,394 |
| 2009 | $205,190 | $154,793 | $0 | $359,983 | $73,393 |
| 2008 | $203,811 | $160,138 | $0 | $363,949 | $73,393 |
| 2007 | $200,883 | $171,122 | $0 | $372,005 | $73,393 |
Deed and Sales History
| 1 | 03/19/1999 | 5 | DNU - Marriage License/Name Change | WHITE, DONELLE L | DOLSTAD, DONELLE L | | | $0.00 | 68204 | 99003190 |
| 2 | 04/01/1987 | QCD | Quit Claim Deed | MYERS, DOROTHY L | WHITE, DONELLE L | | | $0.00 | 70899 | 87004659 |
| 3 | 03/01/1985 | DECREE | Divorce Decree/Legal Separation | DOLSTAD, GARY D | MYERS, DOROTHY L | | | $0.00 | 50610 | 85002707 |
| 4 | 01/01/1900 | OTHER | Other - Misc. Documents | Unknown | DOLSTAD, GARY D | | | $0.00 | 1911 | 369611 |
| 5 | 01/01/1900 | OTHER | Other - Misc. Documents | WHITE, DONELLE L | WHITE, DONELLE L | | | $0.00 | 0 | 0 |
Payout Agreement
| No payout information available.. |