Property
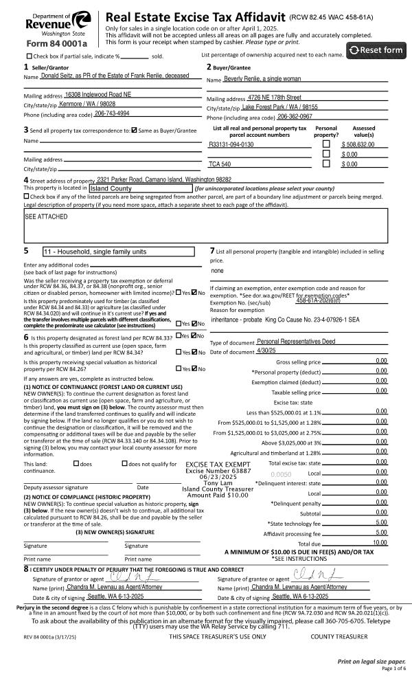
Account |
| Property ID: | 595859 | Abbreviated Legal Description: | TR 1 C-SP 85-1.13233-265-2850 V1 SP P337 AF#85003849 |
| Geographic ID: | R13233-143-2530 | Agent Code: | |
| Type: | Real | | |
| Tax Area: | 300 - APPRAISER-Cpvl Schl Dist, in Cpvl | Land Use Code | 71 |
| Open Space: | N | DFL | N |
| Historic Property: | N | Remodel Property: | N |
| Multi-Family Redevelopment: | N | | |
| Township: | 32 | Section: | 33 |
| Range: | R1 |
Location |
| Address: | 105 NW BROADWAY ST COUPEVILLE, WA 98239 | Mapsco: | |
| Neighborhood: | Area 2 Coupeville Exempt Commercial | Map ID: | 172 |
| Neighborhood CD: | 2CpvExComm |
Owner |
| Name: | FOURSQUARE GOSPEL | Owner ID: | 52090 |
| Mailing Address: | PO BOX 896 COUPEVILLE, WA 98239-0896 | % Ownership: | 100.0000000000% |
| | | Exemptions: | EX |
Taxes and Assessment Details
Property Tax Information as of
10/22/2025
Click on "Statement Details" to expand or collapse a tax statement.
* Please enter a valid date ** Please enter a valid date *
Statement Details |
| 2025 | 37589 | ST - State School | $0.00 | $0.00 | $0.00 | $0.00 | $0.00 | $0.00 |
| 2025 | 37589 | Island County - Island County General Fund | $0.00 | $0.00 | $0.00 | $0.00 | $0.00 | $0.00 |
| 2025 | 37589 | CICPVL - City: Town of Coupeville | $0.00 | $0.00 | $0.00 | $0.00 | $0.00 | $0.00 |
| 2025 | 37589 | PRTCPVL - Port of Coupeville | $0.00 | $0.00 | $0.00 | $0.00 | $0.00 | $0.00 |
| 2025 | 37589 | SCH204 - School 204 Coupeville | $0.00 | $0.00 | $0.00 | $0.00 | $0.00 | $0.00 |
| 2025 | 37589 | CEM2 - Cemetery #2 Central Whidbey | $0.00 | $0.00 | $0.00 | $0.00 | $0.00 | $0.00 |
| 2025 | 37589 | FIRE5 - Fire & Rescue Dist #5 Central Whidbey | $0.00 | $0.00 | $0.00 | $0.00 | $0.00 | $0.00 |
| 2025 | 37589 | LIB - Library Sno-Isle Regional | $0.00 | $0.00 | $0.00 | $0.00 | $0.00 | $0.00 |
| 2025 | 37589 | HOSPEMS - Whidbey Health EMS Island County | $0.00 | $0.00 | $0.00 | $0.00 | $0.00 | $0.00 |
| 2025 | 37589 | HOSP - Whidbey Health | $0.00 | $0.00 | $0.00 | $0.00 | $0.00 | $0.00 |
| 2025 | 37589 | CF - Island County Conservation Futures | $0.00 | $0.00 | $0.00 | $0.00 | $0.00 | $0.00 |
| 2025 | 37589 | TOTAL: | $0.00 | $0.00 | $0.00 | $0.00 | $0.00 | $0.00 |
|
| 2025 | 37589 | $0.00 | $0.00 | $0.00 | $0.00 | $0.00 | $0.00 |
Statement Details |
| 2016 | 38148 | WDBYCNV - Whidbey Conservation District | $0.00 | $0.00 | $0.00 | $0.00 | $0.00 | $0.00 |
| 2016 | 38148 | TOTAL: | $0.00 | $0.00 | $0.00 | $0.00 | $0.00 | $0.00 |
|
| 2016 | 38148 | $0.00 | $0.00 | $0.00 | $0.00 | $0.00 | $0.00 |
Values
| (+) Improvement Homesite Value: | + | $0 | |
| (+) Improvement Non-Homesite Value: | + | $1,105,799 | |
| (+) Land Homesite Value: | + | $0 | |
| (+) Land Non-Homesite Value: | + | $290,000 | |
| (+) Curr Use (HS): | + | $0 | $0 |
| (+) Curr Use (NHS): | + | $0 | $0 |
| | | -------------------------- | |
| (=) Market Value: | = | $1,395,799 | |
| (–) Productivity Loss: | – | $0 | |
| | | -------------------------- | |
| (=) Subtotal: | = | $1,395,799 | |
| (+) Senior Appraised Value: | + | $0 | |
| (+) Non-Senior Appraised Value: | + | $1,395,799 | |
| | | -------------------------- | |
| (=) Total Appraised Value: | = | $1,395,799 | |
| (–) Senior Exemption Loss: | – | $0 | |
| (–) Exemption Loss: | – | $1,395,799 | |
| | | -------------------------- | |
| (=) Taxable Value: | = | $0 | |
Taxing Jurisdiction
| Owner: | FOURSQUARE GOSPEL | | |
| % Ownership: | 100.0000000000% | | |
| Total Value: | $1,395,799 | | |
| Tax Area: | 300 - APPRAISER-Cpvl Schl Dist, in Cpvl |
| CF | Conservation Futures | 0.0316035091 | $1,395,799 | $0 | $0.00 | | |
| CEM2 | Cemetery #2 | 0.0095056933 | $1,395,799 | $0 | $0.00 | | |
| COUP | City: Town of Coupeville | 0.8426414490 | $1,395,799 | $0 | $0.00 | | |
| FIRE5 | Fire & Rescue Dist #5 C Whidbey GEN | 1.2008080668 | $1,395,799 | $0 | $0.00 | | |
| FIRE5BOND | Fire & Rescue Dist #5 C Whidbey BOND | 0.1400090713 | $1,395,799 | $0 | $0.00 | | |
| HOBOND | Hospital BOND | 0.1910887512 | $1,395,799 | $0 | $0.00 | | |
| HOGEN | Hospital GEN | 0.3902502903 | $1,395,799 | $0 | $0.00 | | |
| CE | County Current Expense | 0.3708482477 | $1,395,799 | $0 | $0.00 | | |
| ISLANDEMS | Hospital GEN (EMS) | 0.5000000000 | $1,395,799 | $0 | $0.00 | | |
| LIB | Library Sno-Isle GEN | 0.3153421757 | $1,395,799 | $0 | $0.00 | | |
| LIBCAP | Library Sno-Isle BOND (Cap Fac Imp Area) | 0.0543427938 | $1,395,799 | $0 | $0.00 | | |
| POCOUP | Port of Coupeville GEN | 0.1093371703 | $1,395,799 | $0 | $0.00 | | |
| POCOUPIDD | Port of Coupeville IDD | 0.3409740022 | $1,395,799 | $0 | $0.00 | | |
| COUPSDTECH | School 204 CP (TECH) | 0.7545480007 | $1,395,799 | $0 | $0.00 | | |
| SCH204MO | School 204 Enrichment | 0.6716186034 | $1,395,799 | $0 | $0.00 | | |
| ST | State School | 1.3035497053 | $1,395,799 | $0 | $0.00 | | |
| ST2 | State School Part 2 | 0.8169543533 | $1,395,799 | $0 | $0.00 | | |
| | Total Tax Rate: | 8.0434218834 | | | | | |
| | | | | Taxes w/Current Exemptions: | $0.00 | | |
| | | | | Taxes w/o Exemptions: | $11,226.98 | | |
Improvement / Building
| Improvement #1: | COMMERCIAL | State Code: | Y | 5498.0 sqft | Value: | $686,831 |
| Bathrooms: | 0 | Bedrooms: | 0 | | Ceiling: | DRYWALL PAINTED | Cooling: | HEAT PUMP/CONV/V | | Exterior Wall/Cover: | SANDWICH PAN/WD FRAM | Floor Structure: | PAN ON CONC JOIST | | Foundation: | CONCRETE | Interior Finish: | CHURCH | | Plumbing Fixture Cnt: | 1 | Roof Structure/Cover: | COMP OPEN WOOD |
|
| | Type | Description | Class CD | Sub Class CD | Year Built | Area |
| | BAS | BASE/MAIN FLOOR | 2 | 0 | 2004 | 3968.0 |
| | UPS | UPPER STORY | 2 | 0 | 2004 | 1530.0 |
| | OWP | OPEN WOOD PORCH W/STEPS | 2 | 0 | 2004 | 70.0 |
| Improvement #2: | COMMERCIAL | State Code: | Y | 4442.4 sqft | Value: | $418,968 |
| Bathrooms: | 0 | Bedrooms: | 0 | | Ceiling: | DRYWALL PAINTED | Exterior Wall/Cover: | WD/WD OR STEEL STUDS | | Floor Covering: | CARPET 100% | Floor Structure: | CONCRETE ON GROUND | | Foundation: | CONCRETE | Heating: | BASEBOARD ELECTRIC | | Interior Finish: | CHURCH | Plumbing Fixture Cnt: | 1 | | Roof Structure/Cover: | COMP OPEN WOOD |   |   |
|
| | Type | Description | Class CD | Sub Class CD | Year Built | Area |
| | BAS | BASE/MAIN FLOOR | 2 | 0 | 1988 | 4442.4 |
| | OP4 | OPEN PORCH W/CEILING-ROOF | 2 | 0 | 1988 | 80.0 |
| | OP4 | OPEN PORCH W/CEILING-ROOF | 2 | 0 | 1988 | 120.0 |
Sketch
| No sketches available for this property. |
Property Image
Land
| 1 | 77 | COMMUNITY | 2.5000 | 108900.00 | 0.00 | 0.00 | 1.00 | $290,000 | $0 |
Roll Value History
| 2026 | N/A | N/A | N/A | N/A | N/A |
| 2025 | $1,105,799 | $290,000 | $0 | $1,395,799 | $0 |
| 2024 | $780,748 | $280,000 | $0 | $1,060,748 | $0 |
| 2023 | $826,454 | $163,350 | $0 | $989,804 | $0 |
| 2022 | $658,640 | $163,350 | $0 | $821,990 | $0 |
| 2021 | $658,010 | $163,350 | $0 | $821,360 | $0 |
| 2020 | $657,935 | $163,350 | $0 | $821,285 | $0 |
| 2019 | $697,904 | $210,000 | $0 | $907,904 | $0 |
| 2018 | $697,916 | $170,000 | $0 | $867,916 | $0 |
| 2017 | $697,941 | $108,900 | $0 | $806,841 | $0 |
| 2016 | $697,991 | $108,900 | $0 | $806,891 | $0 |
| 2015 | $725,334 | $108,900 | $0 | $834,234 | $0 |
| 2014 | $738,167 | $108,900 | $0 | $847,067 | $0 |
| 2013 | $689,834 | $108,900 | $0 | $798,734 | $0 |
| 2012 | $883,487 | $121,968 | $0 | $1,005,455 | $0 |
| 2011 | $861,671 | $121,968 | $0 | $983,639 | $0 |
| 2010 | $778,842 | $121,968 | $0 | $900,810 | $0 |
| 2009 | $801,855 | $163,350 | $0 | $965,205 | $0 |
| 2008 | $816,448 | $163,350 | $0 | $979,798 | $0 |
| 2007 | $832,905 | $163,350 | $0 | $996,255 | $0 |
Deed and Sales History
| 1 | 05/01/1985 | WD | Warranty Deed | PEACEFUL, VALLEY M | INTERNATIONAL, CHURCH O | | | $28,800.00 | 51198 | 85004899 |
| 2 | 01/01/1985 | QCD | Quit Claim Deed | Unknown | PEACEFUL, VALLEY M | | | $0.00 | 50001 | 85000001 |
Payout Agreement
| No payout information available.. |