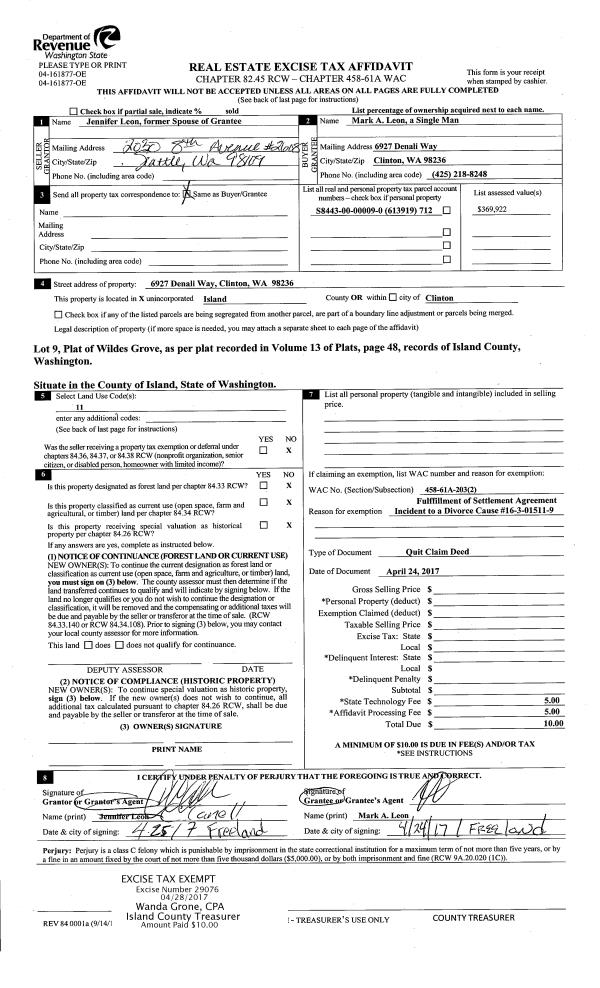
Property
Account |
| Property ID: | 595886 | Abbreviated Legal Description: | 1980 CEDARBROOK 23X56 TPO %55730 VIN# 6445 |
| Geographic ID: | M916000005020 | Agent Code: | |
| Type: | Mobile Home | | |
| Tax Area: | 110 - APPRAISER-OH Schl Dist, outside OH, improved & 1 acre or less | Land Use Code | 11 |
| Open Space: | N | DFL | N |
| Historic Property: | N | Remodel Property: | N |
| Multi-Family Redevelopment: | N | | |
| Township: | | Section: | |
| Range: | |
Location |
| Address: | 2890 N OAK HARBOR RD # 502 OAK HARBOR, WA 98277 | Mapsco: | |
| Neighborhood: | Cycle 6 | Map ID: | |
| Neighborhood CD: | 6 |
Owner |
| Name: | PHELPS, EUGENE | Owner ID: | 281187 |
| Mailing Address: | ROSEMARY SHEPARD 250 SE PIONEER OAK HARBOR, WA 98277 | % Ownership: | 100.0000000000% |
| | | Exemptions: | |
Taxes and Assessment Details
Values
| (+) Improvement Homesite Value: | + | $0 | |
| (+) Improvement Non-Homesite Value: | + | $50,472 | |
| (+) Land Homesite Value: | + | $0 | |
| (+) Land Non-Homesite Value: | + | $0 | |
| (+) Curr Use (HS): | + | $0 | $0 |
| (+) Curr Use (NHS): | + | $0 | $0 |
| | | -------------------------- | |
| (=) Market Value: | = | $50,472 | |
| (–) Productivity Loss: | – | $0 | |
| | | -------------------------- | |
| (=) Subtotal: | = | $50,472 | |
| (+) Senior Appraised Value: | + | $0 | |
| (+) Non-Senior Appraised Value: | + | $50,472 | |
| | | -------------------------- | |
| (=) Total Appraised Value: | = | $50,472 | |
| (–) Senior Exemption Loss: | – | $0 | |
| (–) Exemption Loss: | – | $0 | |
| | | -------------------------- | |
| (=) Taxable Value: | = | $50,472 | |
Taxing Jurisdiction
| Owner: | PHELPS, EUGENE | | |
| % Ownership: | 100.0000000000% | | |
| Total Value: | $50,472 | | |
| Tax Area: | 110 - APPRAISER-OH Schl Dist, outside OH, improved & 1 acre or less |
| CF | Conservation Futures | 0.0316035091 | $50,472 | $50,472 | $1.60 | | |
| CEM1 | Cemetery #1 | 0.0040320932 | $50,472 | $50,472 | $0.20 | | |
| FIRE2 | Fire & Rescue Dist #2 N Whidbey GEN | 0.5475949600 | $50,472 | $50,472 | $27.64 | | |
| HOBOND | Hospital BOND | 0.1910887512 | $50,472 | $50,472 | $9.64 | | |
| HOGEN | Hospital GEN | 0.3902502903 | $50,472 | $50,472 | $19.70 | | |
| CE | County Current Expense | 0.3708482477 | $50,472 | $50,472 | $18.72 | | |
| CR | County Roads | 0.4584763726 | $50,472 | $50,472 | $23.14 | | |
| ISLANDEMS | Hospital GEN (EMS) | 0.5000000000 | $50,472 | $50,472 | $25.24 | | |
| LIB | Library Sno-Isle GEN | 0.3153421757 | $50,472 | $50,472 | $15.92 | | |
| NWHIDPRMT | P & R N Whidbey GEN | 0.2004466701 | $50,472 | $50,472 | $10.12 | | |
| SCH201MO | School 201 Enrichment | 1.8559231640 | $50,472 | $50,472 | $93.67 | | |
| ST | State School | 1.3035497053 | $50,472 | $50,472 | $65.79 | | |
| ST2 | State School Part 2 | 0.8169543533 | $50,472 | $50,472 | $41.23 | | |
| | Total Tax Rate: | 6.9861102925 | | | | | |
| | | | | Taxes w/Current Exemptions: | $352.61 | | |
| | | | | Taxes w/o Exemptions: | $352.61 | | |
Improvement / Building
| Improvement #1: | MANUFACTURED HOME | State Code: | Y | 1288.0 sqft | Value: | $50,472 |
| Bathrooms: | 0 | Bedrooms: | 0 | | Ceiling: | PLASTER PAINTED | Cooling: | EVAP NO DUCT | | Exterior Wall/Cover: | VINYL | Floor Covering: | CARPET 100% | | Floor Structure: | SLAB ON GRADE | Foundation: | SLAB | | Heating: | FHA ELECTRIC | Interior Finish: | PLASTER | | Plumbing Fixture Cnt: | 1 | Roof Slope: | FLAT | | Roof Structure/Cover: | CJ ALUMINIUM HEAVY |   |   |
|
| | Type | Description | Class CD | Sub Class CD | Year Built | Area |
| | BAS | BASE/MAIN FLOOR | 4 | 0 | 1981 | 1288.0 |
| | OWP | OPEN WOOD PORCH W/STEPS | 4 | 0 | 1981 | 544.0 |
Sketch
Property Image
Land
No land segments exist for this property.
Roll Value History
| 2026 | N/A | N/A | N/A | N/A | N/A |
| 2025 | $50,472 | $0 | $0 | $50,472 | $50,472 |
| 2024 | $52,876 | $0 | $0 | $52,876 | $52,876 |
| 2023 | $60,084 | $0 | $0 | $60,084 | $60,084 |
| 2022 | $32,288 | $0 | $0 | $32,288 | $32,288 |
| 2021 | $29,833 | $0 | $0 | $29,833 | $29,833 |
| 2020 | $30,098 | $0 | $0 | $30,098 | $30,098 |
| 2019 | $24,600 | $0 | $0 | $24,600 | $24,600 |
| 2018 | $25,495 | $0 | $0 | $25,495 | $25,495 |
| 2017 | $26,837 | $0 | $0 | $26,837 | $26,837 |
| 2016 | $24,005 | $0 | $0 | $24,005 | $24,005 |
| 2015 | $25,084 | $0 | $0 | $25,084 | $25,084 |
| 2014 | $26,163 | $0 | $0 | $26,163 | $26,163 |
| 2013 | $27,242 | $0 | $0 | $27,242 | $27,242 |
| 2012 | $28,321 | $0 | $0 | $28,321 | $28,321 |
| 2011 | $29,400 | $0 | $0 | $29,400 | $29,400 |
| 2010 | $39,158 | $0 | $0 | $39,158 | $39,158 |
| 2009 | $40,347 | $0 | $0 | $40,347 | $40,347 |
| 2008 | $40,577 | $0 | $0 | $40,577 | $40,577 |
| 2007 | $40,808 | $0 | $0 | $40,808 | $40,808 |
Deed and Sales History
| 1 | 07/31/2017 | MANHOME | Manufactured Home | PHELPS JR, EUGENE C | PHELPS, EUGENE | | | $0.00 | 30430 | |
| 2 | 06/27/2017 | MANHOME | Manufactured Home | BRUNO, NICOLO | PHELPS JR, EUGENE C | | | $21,630.00 | 29940 | |
| 3 | 10/01/2004 | OTHER | Other - Misc. Documents | BAAS, BERNADETTE B | BRUNO, NICOLO | | | $25,600.00 | 44787 | 0 |
| 4 | 04/01/1994 | OTHER | Other - Misc. Documents | CRAW, STEVEN / | BAAS, BERNADETTE B | | | $25,600.00 | 41487 | 0 |
| 5 | 08/01/1986 | OTHER | Other - Misc. Documents | CRAW, STEVEN M | CRAW, STEVEN / | | | $0.00 | 62226 | 0 |
| 6 | 01/01/1900 | OTHER | Other - Misc. Documents | Unknown | CRAW, STEVEN M | | | $0.00 | 11111111 | 0 |
Payout Agreement
| No payout information available.. |