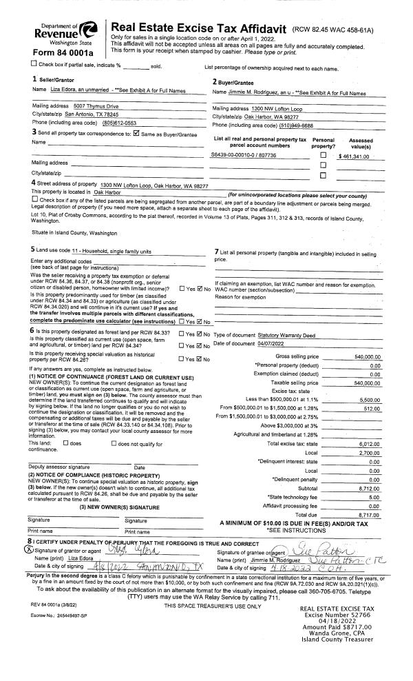
Property
Account |
| Property ID: | 59590 | Abbreviated Legal Description: | 25 - N/2 S/2 S/2 GL1 EX RD TGW: BG SWCR LOT 18 SPAHR VU S230' TPB S91.06' N87*E TO RD NE ALG RD 99' S87*W TPB TGW EZ |
| Geographic ID: | R23007-024-0640 | Agent Code: | |
| Type: | Real | | |
| Tax Area: | 312 - APPRAISER-Cpvl Schl Dist, outside Cpvl, improved, greater than 1 acre | Land Use Code | 11 |
| Open Space: | N | DFL | N |
| Historic Property: | N | Remodel Property: | N |
| Multi-Family Redevelopment: | N | | |
| Township: | 30 | Section: | 07 |
| Range: | R2 |
Location |
| Address: | 3162 SMUGGLERS COVE RD GREENBANK, WA 98253 | Mapsco: | |
| Neighborhood: | Cycle 3 | Map ID: | 361 |
| Neighborhood CD: | 3 |
Owner |
| Name: | TOO EARLY FOR FLAPJACKS | Owner ID: | 306033 |
| Mailing Address: | 1715 BARN SWALLOW DR AUSTIN, TX 78746 | % Ownership: | 100.0000000000% |
| | | Exemptions: | |
Taxes and Assessment Details
Values
| (+) Improvement Homesite Value: | + | $0 | |
| (+) Improvement Non-Homesite Value: | + | $920,375 | |
| (+) Land Homesite Value: | + | $0 | |
| (+) Land Non-Homesite Value: | + | $701,200 | |
| (+) Curr Use (HS): | + | $0 | $0 |
| (+) Curr Use (NHS): | + | $0 | $0 |
| | | -------------------------- | |
| (=) Market Value: | = | $1,621,575 | |
| (–) Productivity Loss: | – | $0 | |
| | | -------------------------- | |
| (=) Subtotal: | = | $1,621,575 | |
| (+) Senior Appraised Value: | + | $0 | |
| (+) Non-Senior Appraised Value: | + | $1,621,575 | |
| | | -------------------------- | |
| (=) Total Appraised Value: | = | $1,621,575 | |
| (–) Senior Exemption Loss: | – | $0 | |
| (–) Exemption Loss: | – | $0 | |
| | | -------------------------- | |
| (=) Taxable Value: | = | $1,621,575 | |
Taxing Jurisdiction
| Owner: | TOO EARLY FOR FLAPJACKS | | |
| % Ownership: | 100.0000000000% | | |
| Total Value: | $1,621,575 | | |
| Tax Area: | 312 - APPRAISER-Cpvl Schl Dist, outside Cpvl, improved, greater than 1 acre |
| CF | Conservation Futures | 0.0316035091 | $1,621,575 | $1,621,575 | $51.25 | | |
| CEM2 | Cemetery #2 | 0.0095056933 | $1,621,575 | $1,621,575 | $15.41 | | |
| FIRE5 | Fire & Rescue Dist #5 C Whidbey GEN | 1.2008080668 | $1,621,575 | $1,621,575 | $1,947.20 | | |
| FIRE5BOND | Fire & Rescue Dist #5 C Whidbey BOND | 0.1400090713 | $1,621,575 | $1,621,575 | $227.04 | | |
| HOBOND | Hospital BOND | 0.1910887512 | $1,621,575 | $1,621,575 | $309.86 | | |
| HOGEN | Hospital GEN | 0.3902502903 | $1,621,575 | $1,621,575 | $632.82 | | |
| CE | County Current Expense | 0.3708482477 | $1,621,575 | $1,621,575 | $601.36 | | |
| CR | County Roads | 0.4584763726 | $1,621,575 | $1,621,575 | $743.45 | | |
| ISLANDEMS | Hospital GEN (EMS) | 0.5000000000 | $1,621,575 | $1,621,575 | $810.79 | | |
| LIB | Library Sno-Isle GEN | 0.3153421757 | $1,621,575 | $1,621,575 | $511.35 | | |
| LIBCAP | Library Sno-Isle BOND (Cap Fac Imp Area) | 0.0543427938 | $1,621,575 | $1,621,575 | $88.12 | | |
| POCOUP | Port of Coupeville GEN | 0.1093371703 | $1,621,575 | $1,621,575 | $177.30 | | |
| POCOUPIDD | Port of Coupeville IDD | 0.3409740022 | $1,621,575 | $1,621,575 | $552.91 | | |
| COUPSDTECH | School 204 CP (TECH) | 0.7545480007 | $1,621,575 | $1,621,575 | $1,223.56 | | |
| SCH204MO | School 204 Enrichment | 0.6716186034 | $1,621,575 | $1,621,575 | $1,089.08 | | |
| ST | State School | 1.3035497053 | $1,621,575 | $1,621,575 | $2,113.80 | | |
| ST2 | State School Part 2 | 0.8169543533 | $1,621,575 | $1,621,575 | $1,324.75 | | |
| | Total Tax Rate: | 7.6592568070 | | | | | |
| | | | | Taxes w/Current Exemptions: | $12,420.05 | | |
| | | | | Taxes w/o Exemptions: | $12,420.05 | | |
Improvement / Building
| Improvement #1: | RESIDENTIAL | State Code: | Y | 2985.1 sqft | Value: | $920,375 |
| Bathrooms: | 2.5 | Bedrooms: | 3 | | Ceiling: | BEAM PAINTED | Cooling: | HEAT PUMP/CONV/V | | Exterior Wall/Cover: | SHINGLE | Floor Covering: | HARDWOOD/CARP 60-40 | | Floor Structure: | WOOD W/SUBFLOOR | Foundation: | CONCRETE | | Interior Finish: | DRYWALL PAINT | Plumbing Fixture Cnt: | 14 | | Roof Slope: | 8" IN 12" | Roof Structure/Cover: | CJ ASPHALT |
|
| | Type | Description | Class CD | Sub Class CD | Year Built | Area |
| | BAS | BASE/MAIN FLOOR | 6 | 0 | 1996 | 2283.1 |
| | OP2 | OPEN PORCH W/STEPS | 6 | 0 | 1996 | 666.0 |
| | OP4 | OPEN PORCH W/CEILING-ROOF | 6 | 0 | 1996 | 164.5 |
| | OP4 | OPEN PORCH W/CEILING-ROOF | 6 | 0 | 1996 | 144.0 |
| | OP4 | OPEN PORCH W/CEILING-ROOF | 6 | 0 | 1996 | 60.0 |
| | AGR | ATTACHED GARAGE | 6 | 0 | 1996 | 689.6 |
| | UPS | UPPER STORY | 6 | 0 | 1996 | 702.0 |
| | UTY | STORAGE/UTILITY | 6 | 0 | 1996 | 284.8 |
| | CPD | OPEN CARPORT DIRT FLOOR | 6 | 0 | 1996 | 140.0 |
Sketch
Property Image
Land
| 1 | HB | HIGH BLUFF | 0.0000 | 0.00 | 158.00 | 0.00 | 1.00 | $701,200 | $0 |
Roll Value History
| 2026 | N/A | N/A | N/A | N/A | N/A |
| 2025 | $920,375 | $701,200 | $0 | $1,621,575 | $1,621,575 |
| 2024 | $913,639 | $661,500 | $0 | $1,575,139 | $1,575,139 |
| 2023 | $924,746 | $630,000 | $0 | $1,554,746 | $1,554,746 |
| 2022 | $547,477 | $600,000 | $0 | $1,147,477 | $1,147,477 |
| 2021 | $482,154 | $500,000 | $0 | $982,154 | $982,154 |
| 2020 | $470,856 | $500,000 | $0 | $970,856 | $970,856 |
| 2019 | $341,923 | $550,000 | $0 | $891,923 | $891,923 |
| 2018 | $342,985 | $500,000 | $0 | $842,985 | $842,985 |
| 2017 | $343,323 | $500,000 | $0 | $843,323 | $843,323 |
| 2016 | $347,548 | $500,000 | $0 | $847,548 | $847,548 |
| 2015 | $351,772 | $500,000 | $0 | $851,772 | $851,772 |
| 2014 | $355,998 | $500,000 | $0 | $855,998 | $855,998 |
| 2013 | $355,784 | $437,897 | $0 | $793,681 | $793,681 |
| 2012 | $359,956 | $437,897 | $0 | $797,853 | $797,853 |
| 2011 | $364,128 | $437,897 | $0 | $802,025 | $802,025 |
| 2010 | $378,684 | $437,897 | $0 | $816,581 | $816,581 |
| 2009 | $395,000 | $583,864 | $0 | $978,864 | $978,864 |
| 2008 | $399,927 | $583,864 | $0 | $983,791 | $983,791 |
| 2007 | $397,348 | $393,553 | $0 | $790,901 | $790,901 |
Deed and Sales History
| 1 | 08/31/2022 | WD | Warranty Deed | SOMMERMEYER, BRETT W | TOO EARLY FOR FLAPJACKS | | | $2,850,000.00 | 54559 | 4551306 |
| 2 | 01/06/2022 | WD | Warranty Deed | SOMMERMEYER, OSA | SOMMERMEYER, BRETT W | | | $982,154.00 | 51576 | 4537351 |
| 3 | 05/31/2015 | SPWARDEED | Special Warranty Deed | SOMMERMEYER, WADE | SOMMERMEYER, OSA | | | $0.00 | 20083 | 4380481 |
| 4 | 04/20/2007 | 5 | DNU - Marriage License/Name Change | SOMMERMEYER, WADE & | SOMMERMEYER, WADE | | | $0.00 | 71333 | 4200426 |
| 5 | 01/01/1998 | QCD | Quit Claim Deed | SOMMERMEYER, WADE & | SOMMERMEYER, WADE & | | | $0.00 | 80301 | 98001554 |
| 6 | 01/01/1998 | QCD | Quit Claim Deed | SOMMERMEYER, WADE & | SOMMERMEYER, WADE & | | | $0.00 | 80710 | 98003868 |
| 7 | 09/01/1996 | QCD | Quit Claim Deed | SOMMERMEYER, WADE & | SOMMERMEYER, WADE & | | | $0.00 | 63416 | 96016796 |
| 8 | 09/01/1996 | QCD | Quit Claim Deed | SOMMERMEYER, WADE & | SOMMERMEYER, WADE & | | | $0.00 | 63437 | 96017025 |
| 9 | 06/01/1994 | WD | Warranty Deed | HAYWARD, CHARLES S | SOMMERMEYER, WADE & | | | $252,500.00 | 42772 | 94015190 |
| 10 | 07/01/1992 | WD | Warranty Deed | WAGNER, J C | HAYWARD, CHARLES S | | | $174,169.00 | 23040 | 92014811 |
| 11 | 10/01/1987 | WD | Warranty Deed | MACTURK, WILLIAM L | WAGNER, J C | | | $115,000.00 | 73466 | 87015181 |
| 12 | 01/01/1900 | OTHER | Other - Misc. Documents | Unknown | MACTURK, WILLIAM L | | | $0.00 | 0 | 0 |
Payout Agreement
| No payout information available.. |