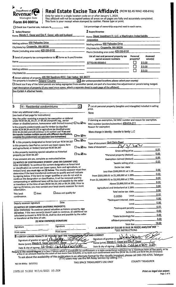
Property
Account |
| Property ID: | 595911 | Abbreviated Legal Description: | LANGLEY LOT 23 BLK 9 FR 09022-0 TGW VIEW EZ AF#92020911 |
| Geographic ID: | S7345-00-09023-0 | Agent Code: | |
| Type: | Real | | |
| Tax Area: | 700 - APPRAISER-S Whid Schl Dist, in town of Langley | Land Use Code | 11 |
| Open Space: | N | DFL | N |
| Historic Property: | N | Remodel Property: | N |
| Multi-Family Redevelopment: | N | | |
| Township: | | Section: | |
| Range: | |
Location |
| Address: | 429 3RD ST LANGLEY, WA 98260 | Mapsco: | |
| Neighborhood: | City of Langley | Map ID: | 912 |
| Neighborhood CD: | 04-L |
Owner |
| Name: | CHEA, PENG | Owner ID: | 296806 |
| Mailing Address: | MIYUKI MATSUNAGA 15614 NE 62ND CT REDMOND, WA 98052 | % Ownership: | 100.0000000000% |
| | | Exemptions: | |
Taxes and Assessment Details
Values
| (+) Improvement Homesite Value: | + | $0 | |
| (+) Improvement Non-Homesite Value: | + | $254,059 | |
| (+) Land Homesite Value: | + | $0 | |
| (+) Land Non-Homesite Value: | + | $370,000 | |
| (+) Curr Use (HS): | + | $0 | $0 |
| (+) Curr Use (NHS): | + | $0 | $0 |
| | | -------------------------- | |
| (=) Market Value: | = | $624,059 | |
| (–) Productivity Loss: | – | $0 | |
| | | -------------------------- | |
| (=) Subtotal: | = | $624,059 | |
| (+) Senior Appraised Value: | + | $0 | |
| (+) Non-Senior Appraised Value: | + | $624,059 | |
| | | -------------------------- | |
| (=) Total Appraised Value: | = | $624,059 | |
| (–) Senior Exemption Loss: | – | $0 | |
| (–) Exemption Loss: | – | $0 | |
| | | -------------------------- | |
| (=) Taxable Value: | = | $624,059 | |
Taxing Jurisdiction
| Owner: | CHEA, PENG | | |
| % Ownership: | 100.0000000000% | | |
| Total Value: | $624,059 | | |
| Tax Area: | 700 - APPRAISER-S Whid Schl Dist, in town of Langley |
| CF | Conservation Futures | 0.0316035091 | $624,059 | $624,059 | $19.72 | | |
| LANG | City of Langley | 1.0093520762 | $624,059 | $624,059 | $629.90 | | |
| LANGBOND | City of Langley BOND | 1.0326110892 | $624,059 | $624,059 | $644.41 | | |
| FIRE3 | Fire & Rescue Dist #3 S Whidbey GEN | 1.2004855531 | $624,059 | $624,059 | $749.17 | | |
| HOBOND | Hospital BOND | 0.1910887512 | $624,059 | $624,059 | $119.25 | | |
| HOGEN | Hospital GEN | 0.3902502903 | $624,059 | $624,059 | $243.54 | | |
| CE | County Current Expense | 0.3708482477 | $624,059 | $624,059 | $231.43 | | |
| ISLANDEMS | Hospital GEN (EMS) | 0.5000000000 | $624,059 | $624,059 | $312.03 | | |
| LIB | Library Sno-Isle GEN | 0.3153421757 | $624,059 | $624,059 | $196.79 | | |
| PORTWHID | Port of S Whidbey GEN | 0.1094540357 | $624,059 | $624,059 | $68.31 | | |
| SCH206BOND | School 206 BOND | 0.3161759235 | $624,059 | $624,059 | $197.31 | | |
| SCH206MO | School 206 Enrichment | 0.4547169547 | $624,059 | $624,059 | $283.77 | | |
| ST | State School | 1.3035497053 | $624,059 | $624,059 | $813.49 | | |
| ST2 | State School Part 2 | 0.8169543533 | $624,059 | $624,059 | $509.83 | | |
| SWHIDPRBD | P & R S Whidbey BOND | 0.0152817568 | $624,059 | $624,059 | $9.54 | | |
| SWHIDPRBD2 | P & R S Whidbey BOND2 | 0.0138911264 | $624,059 | $624,059 | $8.67 | | |
| SWHIDPRMT | P & R S Whidbey GEN | 0.2053334452 | $624,059 | $624,059 | $128.14 | | |
| | Total Tax Rate: | 8.2769389934 | | | | | |
| | | | | Taxes w/Current Exemptions: | $5,165.30 | | |
| | | | | Taxes w/o Exemptions: | $5,165.30 | | |
Improvement / Building
| Improvement #1: | RESIDENTIAL | State Code: | Y | 1920.0 sqft | Value: | $254,059 |
| Bathrooms: | 2 | Bedrooms: | 5 | | Ceiling: | DRYWALL PAINTED | Exterior Wall/Cover: | WOOD SIDING | | Floor Covering: | VINYL 100% | Floor Structure: | WOOD W/SUBFLOOR | | Foundation: | CONCRETE | Heating: | WALL HEAT ELECTRIC | | Interior Finish: | DRYWALL PAINT | Plumbing Fixture Cnt: | 9 | | Roof Slope: | 4" IN 12" | Roof Structure/Cover: | CJ WOOD SHAKES |
|
| | Type | Description | Class CD | Sub Class CD | Year Built | Area |
| | BAS | BASE/MAIN FLOOR | 3 | 0 | 1985 | 960.0 |
| | OCP | OPEN CARPORT | 3 | 0 | 1985 | 427.0 |
| | UTY | STORAGE/UTILITY | 3 | 0 | 1985 | 57.0 |
| | UPS | UPPER STORY | 3 | 0 | 1985 | 960.0 |
| | OWP | OPEN WOOD PORCH W/STEPS | 3 | 0 | 1985 | 320.0 |
Sketch
Property Image
Land
| 1 | 13 | SQ (06001-08000) | 0.0000 | 0.00 | 0.00 | 0.00 | 1.00 | $370,000 | $0 |
Roll Value History
| 2026 | N/A | N/A | N/A | N/A | N/A |
| 2025 | $254,059 | $370,000 | $0 | $624,059 | $624,059 |
| 2024 | $257,436 | $370,000 | $0 | $627,436 | $627,436 |
| 2023 | $260,811 | $370,000 | $0 | $630,811 | $630,811 |
| 2022 | $239,230 | $340,000 | $0 | $579,230 | $579,230 |
| 2021 | $210,674 | $285,000 | $0 | $495,674 | $495,674 |
| 2020 | $200,696 | $285,000 | $0 | $485,696 | $485,696 |
| 2019 | $148,480 | $300,000 | $0 | $448,480 | $448,480 |
| 2018 | $148,949 | $260,000 | $0 | $408,949 | $408,949 |
| 2017 | $149,885 | $250,000 | $0 | $399,885 | $399,885 |
| 2016 | $151,759 | $220,000 | $0 | $371,759 | $371,759 |
| 2015 | $153,632 | $220,000 | $0 | $373,632 | $373,632 |
| 2014 | $133,023 | $161,000 | $0 | $294,023 | $294,023 |
| 2013 | $134,898 | $169,280 | $0 | $304,178 | $304,178 |
| 2012 | $136,771 | $169,280 | $0 | $306,051 | $306,051 |
| 2011 | $138,644 | $184,000 | $0 | $322,644 | $322,644 |
| 2010 | $143,273 | $184,000 | $0 | $327,273 | $327,273 |
| 2009 | $149,563 | $241,000 | $0 | $390,563 | $390,563 |
| 2008 | $151,392 | $291,000 | $0 | $442,392 | $442,392 |
| 2007 | $153,268 | $291,000 | $0 | $444,268 | $444,268 |
Deed and Sales History
| 1 | 11/10/2020 | WD | Warranty Deed | SARKIS, CHARLIE D | CHEA, PENG | | | $560,000.00 | 45858 | 4503321 |
| 2 | 05/13/2019 | SPWARDEED | Special Warranty Deed | SARKIS, CHARLIE D | SARKIS, CHARLIE D | | | $0.00 | 38871 | 4464919 |
| 3 | 08/22/2010 | WD | Warranty Deed | BURDSAL JR, CHARLES R | SARKIS, CHARLIE D | | | $250,000.00 | 2131 | 4279656 |
| 4 | 05/01/1997 | WD | Warranty Deed | ADAMS, DEAN J | BURDSAL, CHARLES R | | | $165,000.00 | 71609 | 97007439 |
| 5 | 12/01/1989 | WD | Warranty Deed | SAVAGE, THOMAS | ADAMS, DEAN J | | | $106,200.00 | 95819 | 89018680 |
| 6 | 05/01/1985 | QCD | Quit Claim Deed | HEMENWAY, PATRICIA M | SAVAGE, THOMAS | | | $0.00 | 51264 | 85005194 |
| 7 | 01/01/1900 | OTHER | Other - Misc. Documents | Unknown | HEMENWAY, PATRICIA M | | | $0.00 | 0 | 0 |
Payout Agreement
| No payout information available.. |