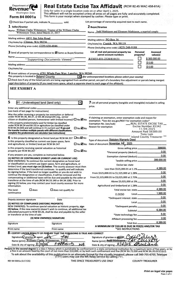
Property
Account |
| Property ID: | 596554 | Abbreviated Legal Description: | LOT 1 SP 83-13.32810.443-2400 V1 SP P350 AF#85006637 TGW WELLSITE & EZ AF#85010903 AF#93014105 |
| Geographic ID: | R32810-453-2340 | Agent Code: | |
| Type: | Real | | |
| Tax Area: | 712 - APPRAISER-S Whid Schl Dist, outside Langley, improved, greater than 1 acre | Land Use Code | 11 |
| Open Space: | N | DFL | N |
| Historic Property: | N | Remodel Property: | N |
| Multi-Family Redevelopment: | N | | |
| Township: | 28 | Section: | 10 |
| Range: | R3 |
Location |
| Address: | 7651 SCATCHET HEAD RD CLINTON, WA 98236 | Mapsco: | |
| Neighborhood: | Cycle 4 | Map ID: | 699 |
| Neighborhood CD: | 4 |
Owner |
| Name: | COLANGELA, ANNAPOORNE | Owner ID: | 316537 |
| Mailing Address: | C/O SHANTI COLANGELO-CURRAN 4936 DOGWOOD DR EVERETT, WA 98203 | % Ownership: | 100.0000000000% |
| | | Exemptions: | SNR/DSBL |
Taxes and Assessment Details
Values
| (+) Improvement Homesite Value: | + | $226,461 | |
| (+) Improvement Non-Homesite Value: | + | $0 | |
| (+) Land Homesite Value: | + | $310,000 | |
| (+) Land Non-Homesite Value: | + | $0 | |
| (+) Curr Use (HS): | + | $0 | $0 |
| (+) Curr Use (NHS): | + | $0 | $0 |
| | | -------------------------- | |
| (=) Market Value: | = | $536,461 | |
| (–) Productivity Loss: | – | $0 | |
| | | -------------------------- | |
| (=) Subtotal: | = | $536,461 | |
| (+) Senior Appraised Value: | + | $363,610 | |
| (+) Non-Senior Appraised Value: | + | $0 | |
| | | -------------------------- | |
| (=) Total Appraised Value: | = | $363,610 | |
| (–) Senior Exemption Loss: | – | $218,166 | |
| (–) Exemption Loss: | – | $0 | |
| | | -------------------------- | |
| (=) Taxable Value: | = | $145,444 | |
Taxing Jurisdiction
| Owner: | COLANGELA, ANNAPOORNE | | |
| % Ownership: | 100.0000000000% | | |
| Total Value: | $536,461 | | |
| Tax Area: | 712 - APPRAISER-S Whid Schl Dist, outside Langley, improved, greater than 1 acre |
| CF | Conservation Futures | 0.0316035091 | $536,461 | $145,444 | $4.60 | | |
| FIRE3 | Fire & Rescue Dist #3 S Whidbey GEN | 1.2004855531 | $536,461 | $145,444 | $174.60 | | |
| HOBOND | Hospital BOND | 0.0000000000 | $536,461 | $0 | $0.00 | | |
| HOGEN | Hospital GEN | 0.3902502903 | $536,461 | $145,444 | $56.76 | | |
| CE | County Current Expense | 0.3708482477 | $536,461 | $145,444 | $53.94 | | |
| CR | County Roads | 0.4584763726 | $536,461 | $145,444 | $66.68 | | |
| ISLANDEMS | Hospital GEN (EMS) | 0.5000000000 | $536,461 | $145,444 | $72.72 | | |
| LIB | Library Sno-Isle GEN | 0.3153421757 | $536,461 | $145,444 | $45.86 | | |
| PORTWHID | Port of S Whidbey GEN | 0.1094540357 | $536,461 | $145,444 | $15.92 | | |
| SCH206BOND | School 206 BOND | 0.3161759235 | $536,461 | $145,444 | $45.99 | | |
| SCH206MO | School 206 Enrichment | 0.0000000000 | $536,461 | $0 | $0.00 | | |
| ST | State School | 1.3035497053 | $536,461 | $145,444 | $189.59 | | |
| ST2 | State School Part 2 | 0.0000000000 | $536,461 | $0 | $0.00 | | |
| SWHIDPRBD | P & R S Whidbey BOND | 0.0000000000 | $536,461 | $0 | $0.00 | | |
| SWHIDPRBD2 | P & R S Whidbey BOND2 | 0.0000000000 | $536,461 | $0 | $0.00 | | |
| SWHIDPRMT | P & R S Whidbey GEN | 0.2053334452 | $536,461 | $145,444 | $29.86 | | |
| | Total Tax Rate: | 5.2015192582 | | | | | |
| | | | | Taxes w/Current Exemptions: | $756.52 | | |
| | | | | Taxes w/o Exemptions: | $3,590.76 | | |
Improvement / Building
| Improvement #1: | RESIDENTIAL | State Code: | Y | 1355.8 sqft | Value: | $226,461 |
| Bathrooms: | 2 | Bedrooms: | 3 | | Ceiling: | DRYWALL PAINTED | Exterior Wall/Cover: | WOOD SIDING | | Floor Covering: | HARDWOOD 100% | Floor Structure: | WOOD W/SUBFLOOR | | Foundation: | CONCRETE | Heating: | WALL HEAT ELECTRIC | | Interior Finish: | DRYWALL PAINT | Plumbing Fixture Cnt: | 9 | | Roof Slope: | 12" IN 12" | Roof Structure/Cover: | CJ ASPHALT |
|
| | Type | Description | Class CD | Sub Class CD | Year Built | Area |
| | BAS | BASE/MAIN FLOOR | 3 | 0 | 1986 | 954.3 |
| | OP4 | OPEN PORCH W/CEILING-ROOF | 3 | 0 | 1986 | 132.0 |
| | DGR | DETACHED GARAGE | 3 | 0 | 1986 | 576.0 |
| | UPS | UPPER STORY | 3 | 0 | 1986 | 401.5 |
Sketch
| No sketches available for this property. |
Property Image
Land
| 1 | 18 | AC (02.01-03.00) | 2.2300 | 97138.80 | 0.00 | 0.00 | 1.00 | $310,000 | $0 |
Roll Value History
| 2026 | N/A | N/A | N/A | N/A | N/A |
| 2025 | $226,461 | $310,000 | $0 | $536,461 | $145,444 |
| 2024 | $229,731 | $300,000 | $0 | $529,731 | $145,444 |
| 2023 | $233,001 | $290,000 | $0 | $523,001 | $145,444 |
| 2022 | $213,938 | $260,000 | $0 | $473,938 | $145,444 |
| 2021 | $188,610 | $175,000 | $0 | $363,610 | $145,444 |
| 2020 | $179,089 | $165,000 | $0 | $344,089 | $344,089 |
| 2019 | $129,670 | $200,000 | $0 | $329,670 | $329,670 |
| 2018 | $130,112 | $170,000 | $0 | $300,112 | $120,045 |
| 2017 | $130,998 | $150,000 | $0 | $280,998 | $112,399 |
| 2016 | $132,769 | $135,000 | $0 | $267,769 | $107,108 |
| 2015 | $134,538 | $135,000 | $0 | $269,538 | $107,815 |
| 2014 | $134,018 | $110,500 | $0 | $244,518 | $97,807 |
| 2013 | $136,687 | $110,500 | $0 | $247,187 | $98,875 |
| 2012 | $138,523 | $110,500 | $0 | $249,023 | $99,609 |
| 2011 | $140,358 | $130,000 | $0 | $270,358 | $108,143 |
| 2010 | $148,692 | $130,000 | $0 | $278,692 | $111,477 |
| 2009 | $155,299 | $155,000 | $0 | $310,299 | $124,120 |
| 2008 | $159,292 | $160,000 | $0 | $319,292 | $127,717 |
| 2007 | $157,565 | $170,000 | $0 | $327,565 | $327,565 |
Deed and Sales History
| 1 | 10/01/1987 | WD | Warranty Deed | OLIN, ROBERT F | COLANGELO, ANNAPOORNE | | | $89,950.00 | 73455 | 87015080 |
| 2 | 01/01/1900 | OTHER | Other - Misc. Documents | Unknown | OLIN, ROBERT F | | | $0.00 | 83734 | 337472 |
Payout Agreement
| No payout information available.. |