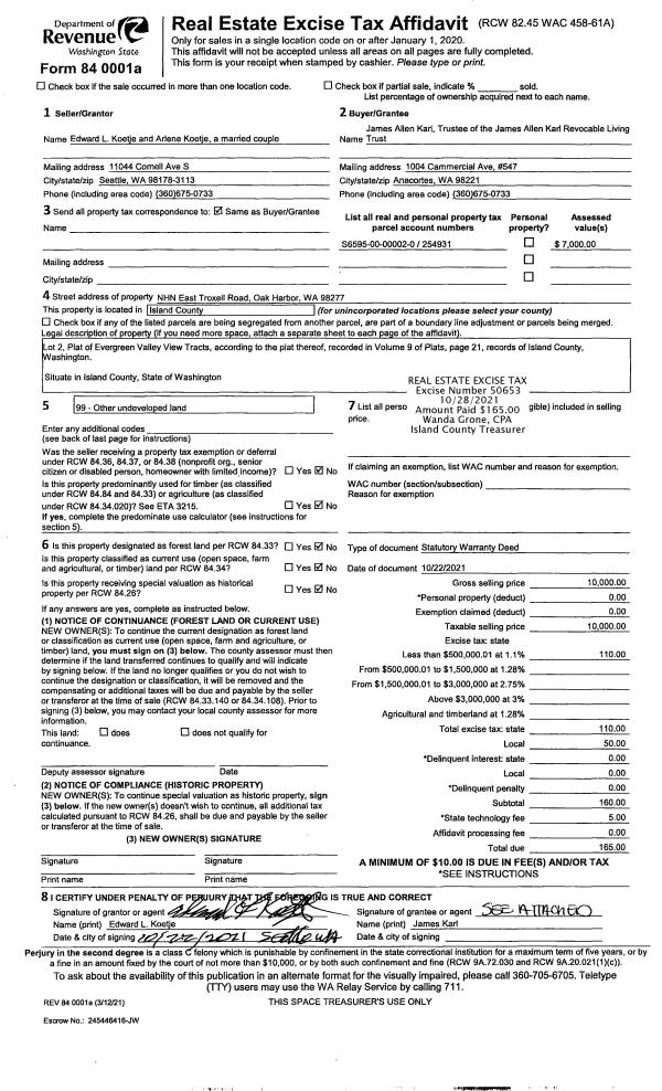
Property
Account |
| Property ID: | 59830 | Abbreviated Legal Description: | 9 - IN GL3: BG NECR GL3 S82*W668.89' S2*W196.99' TPB S2*W98.50' S83*W TO SHLN NLY ALG SHLN TO LN S83*W FR TPB N83*E TPB TGW EZ (TR C SP 73-094) |
| Geographic ID: | R23007-390-1070 | Agent Code: | |
| Type: | Real | | |
| Tax Area: | 312 - APPRAISER-Cpvl Schl Dist, outside Cpvl, improved, greater than 1 acre | Land Use Code | 11 |
| Open Space: | N | DFL | N |
| Historic Property: | N | Remodel Property: | N |
| Multi-Family Redevelopment: | N | | |
| Township: | 30 | Section: | 07 |
| Range: | R2 |
Location |
| Address: | 2920 EAGLE BLUFF RD GREENBANK, WA 98253 | Mapsco: | |
| Neighborhood: | Cycle 3 | Map ID: | 362 |
| Neighborhood CD: | 3 |
Owner |
| Name: | CHAPIN TTEE, CARY A | Owner ID: | 310453 |
| Mailing Address: | BARBARA K DOUMA TTEE 2920 EAGLKE BLUFF RD GREENBANK, WA 98253 | % Ownership: | 100.0000000000% |
| | | Exemptions: | |
Taxes and Assessment Details
Values
| (+) Improvement Homesite Value: | + | $0 | |
| (+) Improvement Non-Homesite Value: | + | $368,304 | |
| (+) Land Homesite Value: | + | $0 | |
| (+) Land Non-Homesite Value: | + | $556,500 | |
| (+) Curr Use (HS): | + | $0 | $0 |
| (+) Curr Use (NHS): | + | $0 | $0 |
| | | -------------------------- | |
| (=) Market Value: | = | $924,804 | |
| (–) Productivity Loss: | – | $0 | |
| | | -------------------------- | |
| (=) Subtotal: | = | $924,804 | |
| (+) Senior Appraised Value: | + | $0 | |
| (+) Non-Senior Appraised Value: | + | $924,804 | |
| | | -------------------------- | |
| (=) Total Appraised Value: | = | $924,804 | |
| (–) Senior Exemption Loss: | – | $0 | |
| (–) Exemption Loss: | – | $0 | |
| | | -------------------------- | |
| (=) Taxable Value: | = | $924,804 | |
Taxing Jurisdiction
| Owner: | CHAPIN TTEE, CARY A | | |
| % Ownership: | 100.0000000000% | | |
| Total Value: | $924,804 | | |
| Tax Area: | 312 - APPRAISER-Cpvl Schl Dist, outside Cpvl, improved, greater than 1 acre |
| CF | Conservation Futures | 0.0316035091 | $924,804 | $924,804 | $29.23 | | |
| CEM2 | Cemetery #2 | 0.0095056933 | $924,804 | $924,804 | $8.79 | | |
| FIRE5 | Fire & Rescue Dist #5 C Whidbey GEN | 1.2008080668 | $924,804 | $924,804 | $1,110.51 | | |
| FIRE5BOND | Fire & Rescue Dist #5 C Whidbey BOND | 0.1400090713 | $924,804 | $924,804 | $129.48 | | |
| HOBOND | Hospital BOND | 0.1910887512 | $924,804 | $924,804 | $176.72 | | |
| HOGEN | Hospital GEN | 0.3902502903 | $924,804 | $924,804 | $360.91 | | |
| CE | County Current Expense | 0.3708482477 | $924,804 | $924,804 | $342.96 | | |
| CR | County Roads | 0.4584763726 | $924,804 | $924,804 | $424.00 | | |
| ISLANDEMS | Hospital GEN (EMS) | 0.5000000000 | $924,804 | $924,804 | $462.40 | | |
| LIB | Library Sno-Isle GEN | 0.3153421757 | $924,804 | $924,804 | $291.63 | | |
| LIBCAP | Library Sno-Isle BOND (Cap Fac Imp Area) | 0.0543427938 | $924,804 | $924,804 | $50.26 | | |
| POCOUP | Port of Coupeville GEN | 0.1093371703 | $924,804 | $924,804 | $101.12 | | |
| POCOUPIDD | Port of Coupeville IDD | 0.3409740022 | $924,804 | $924,804 | $315.33 | | |
| COUPSDTECH | School 204 CP (TECH) | 0.7545480007 | $924,804 | $924,804 | $697.81 | | |
| SCH204MO | School 204 Enrichment | 0.6716186034 | $924,804 | $924,804 | $621.12 | | |
| ST | State School | 1.3035497053 | $924,804 | $924,804 | $1,205.53 | | |
| ST2 | State School Part 2 | 0.8169543533 | $924,804 | $924,804 | $755.52 | | |
| | Total Tax Rate: | 7.6592568070 | | | | | |
| | | | | Taxes w/Current Exemptions: | $7,083.32 | | |
| | | | | Taxes w/o Exemptions: | $7,083.32 | | |
Improvement / Building
| Improvement #1: | RESIDENTIAL | State Code: | Y | 1632.0 sqft | Value: | $368,304 |
| Bathrooms: | 3 | Bedrooms: | 3 | | Ceiling: | DRYWALL PAINTED | Exterior Wall/Cover: | WOOD SIDING | | Floor Covering: | HARDWOOD/CARP 20-80 | Floor Structure: | WOOD W/SUBFLOOR | | Foundation: | CONCRETE | Heating: | CEILING ELECTRIC | | Interior Finish: | DRYWALL PAINT | Plumbing Fixture Cnt: | 9 | | Roof Slope: | 6" IN 12" | Roof Structure/Cover: | CJ ALUMINIUM HEAVY |
|
| | Type | Description | Class CD | Sub Class CD | Year Built | Area |
| | BAS | BASE/MAIN FLOOR | 4 | 0 | 1995 | 1632.0 |
| | OWP | OPEN WOOD PORCH W/STEPS | 4 | 0 | 1995 | 242.0 |
| | OWC | OPEN WOOD PORCH W/STEPS/ROOF/C | 4 | 0 | 1995 | 48.0 |
| | OWC | OPEN WOOD PORCH W/STEPS/ROOF/C | 4 | 0 | 1995 | 72.0 |
| | DGR | DETACHED GARAGE | 4 | 0 | 1995 | 624.0 |
| | OP4 | OPEN PORCH W/CEILING-ROOF | 4 | 0 | 1995 | 189.0 |
| | ENP | ENCLOSED PORCH | 4 | 0 | 1995 | 351.0 |
Sketch
Property Image
Land
| 1 | HB | HIGH BLUFF | 0.0000 | 0.00 | 99.00 | 0.00 | 1.00 | $556,500 | $0 |
Roll Value History
| 2026 | N/A | N/A | N/A | N/A | N/A |
| 2025 | $368,304 | $556,500 | $0 | $924,804 | $924,804 |
| 2024 | $373,198 | $525,000 | $0 | $898,198 | $898,198 |
| 2023 | $378,092 | $500,000 | $0 | $878,092 | $878,092 |
| 2022 | $346,794 | $480,000 | $0 | $826,794 | $826,794 |
| 2021 | $305,412 | $400,000 | $0 | $705,412 | $705,412 |
| 2020 | $297,880 | $400,000 | $0 | $697,880 | $697,880 |
| 2019 | $228,957 | $450,000 | $0 | $678,957 | $678,957 |
| 2018 | $229,661 | $400,000 | $0 | $629,661 | $629,661 |
| 2017 | $231,067 | $300,000 | $0 | $531,067 | $531,067 |
| 2016 | $233,879 | $300,000 | $0 | $533,879 | $533,879 |
| 2015 | $236,693 | $300,000 | $0 | $536,693 | $536,693 |
| 2014 | $239,505 | $300,000 | $0 | $539,505 | $539,505 |
| 2013 | $207,282 | $261,764 | $0 | $469,046 | $469,046 |
| 2012 | $209,308 | $261,764 | $0 | $471,072 | $471,072 |
| 2011 | $211,334 | $261,764 | $0 | $473,098 | $473,098 |
| 2010 | $218,941 | $261,764 | $0 | $480,705 | $480,705 |
| 2009 | $227,955 | $349,019 | $0 | $576,974 | $576,974 |
| 2008 | $231,240 | $349,019 | $0 | $580,259 | $580,259 |
| 2007 | $226,930 | $235,256 | $0 | $462,186 | $462,186 |
Deed and Sales History
| 1 | 08/25/2022 | QCD | Quit Claim Deed | CHAPIN, CARY | 2920 EAGLE BLUFF ROAD, LLC | | | $0.00 | 55243 | 4554277 |
| 2 | 06/08/2021 | WD | Warranty Deed | MCGUIRE JR, TRAVIS C | CHAPIN, CARY | | | $1,750,000.00 | 48741 | 4522189 |
| 3 | 09/01/1994 | WD | Warranty Deed | BORGMAN, JAMES E | MCGUIRE, TRAVIS C | | | $185,000.00 | 44074 | 94021007 |
| 4 | 01/01/1900 | OTHER | Other - Misc. Documents | Unknown | BORGMAN, JAMES E | | | $0.00 | 0 | 0 |
Payout Agreement
| No payout information available.. |