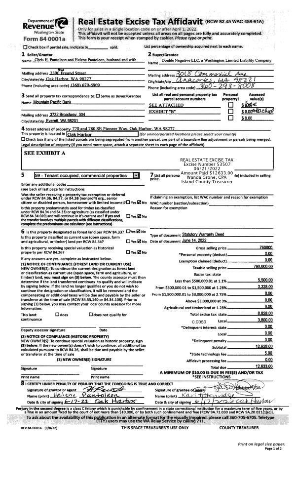
Property
Account |
| Property ID: | 599533 | Abbreviated Legal Description: | 15-2 - LOT 15 BLK 2 CCE #1 V4 SUR P88/89 AF#308040 |
| Geographic ID: | R33130-379-0670 | Agent Code: | |
| Type: | Real | | |
| Tax Area: | 512 - APPRAISER-Stan/Cam Schl Dist, improved, greater than 1 acre | Land Use Code | 11 |
| Open Space: | N | DFL | N |
| Historic Property: | N | Remodel Property: | N |
| Multi-Family Redevelopment: | N | | |
| Township: | 31 | Section: | 30 |
| Range: | R3 |
Location |
| Address: | 1704 BONNIE LN CAMANO ISLAND, WA 98282 | Mapsco: | |
| Neighborhood: | Cycle 5 | Map ID: | 938 |
| Neighborhood CD: | 5 |
Owner |
| Name: | HATLEY, RONALD L | Owner ID: | 60497 |
| Mailing Address: | 9879 ENTERPRISE LN NW APT G102 SILVERDALE, WA 98383-8762 | % Ownership: | 100.0000000000% |
| | | Exemptions: | |
Taxes and Assessment Details
Values
| (+) Improvement Homesite Value: | + | $0 | |
| (+) Improvement Non-Homesite Value: | + | $100,222 | |
| (+) Land Homesite Value: | + | $0 | |
| (+) Land Non-Homesite Value: | + | $330,000 | |
| (+) Curr Use (HS): | + | $0 | $0 |
| (+) Curr Use (NHS): | + | $0 | $0 |
| | | -------------------------- | |
| (=) Market Value: | = | $430,222 | |
| (–) Productivity Loss: | – | $0 | |
| | | -------------------------- | |
| (=) Subtotal: | = | $430,222 | |
| (+) Senior Appraised Value: | + | $0 | |
| (+) Non-Senior Appraised Value: | + | $430,222 | |
| | | -------------------------- | |
| (=) Total Appraised Value: | = | $430,222 | |
| (–) Senior Exemption Loss: | – | $0 | |
| (–) Exemption Loss: | – | $0 | |
| | | -------------------------- | |
| (=) Taxable Value: | = | $430,222 | |
Taxing Jurisdiction
| Owner: | HATLEY, RONALD L | | |
| % Ownership: | 100.0000000000% | | |
| Total Value: | $430,222 | | |
| Tax Area: | 512 - APPRAISER-Stan/Cam Schl Dist, improved, greater than 1 acre |
| CF | Conservation Futures | 0.0316035091 | $430,222 | $430,222 | $13.60 | | |
| EMS1 | Fire & Rescue Dist #1 Camano GEN (EMS) | 0.3677864386 | $430,222 | $430,222 | $158.23 | | |
| FIRE1 | Fire & Rescue Dist #1 Camano GEN | 1.2502910536 | $430,222 | $430,222 | $537.90 | | |
| FIRE1BOND | Fire & Rescue Dist #1 Camano BOND | 0.1570001679 | $430,222 | $430,222 | $67.54 | | |
| CE | County Current Expense | 0.3708482477 | $430,222 | $430,222 | $159.55 | | |
| CR | County Roads | 0.4584763726 | $430,222 | $430,222 | $197.25 | | |
| LCIB | Library Sno-Isle BOND (Camano Island) | 0.0396325772 | $430,222 | $430,222 | $17.05 | | |
| LIB | Library Sno-Isle GEN | 0.3153421757 | $430,222 | $430,222 | $135.67 | | |
| SCH205_401 | School 205-401 Enrichment | 1.2698420524 | $430,222 | $430,222 | $546.31 | | |
| SCH205BOND | School 205-401 BOND | 0.9396497583 | $430,222 | $430,222 | $404.26 | | |
| ST | State School | 1.3035497053 | $430,222 | $430,222 | $560.82 | | |
| ST2 | State School Part 2 | 0.8169543533 | $430,222 | $430,222 | $351.47 | | |
| | Total Tax Rate: | 7.3209764117 | | | | | |
| | | | | Taxes w/Current Exemptions: | $3,149.65 | | |
| | | | | Taxes w/o Exemptions: | $3,149.65 | | |
Improvement / Building
| Improvement #1: | MANUFACTURED HOME | State Code: | Y | 1620.0 sqft | Value: | $100,222 |
| Bathrooms: | 2 | Bedrooms: | 2 | | Ceiling: | PLASTER PAINTED | Cooling: | EVAP NO DUCT | | Exterior Wall/Cover: | VINYL | Floor Covering: | CARPET 100% | | Floor Structure: | SLAB ON GRADE | Foundation: | SLAB | | Heating: | FHA ELECTRIC | Interior Finish: | PLASTER | | Plumbing Fixture Cnt: | 1 | Roof Slope: | FLAT | | Roof Structure/Cover: | CJ ALUMINIUM HEAVY |   |   |
|
| | Type | Description | Class CD | Sub Class CD | Year Built | Area |
| | BAS | BASE/MAIN FLOOR | 4 | 0 | 1989 | 1620.0 |
| | OWR | OPEN WOOD PORCH W/STEPS/ROOF | 4 | 0 | 1989 | 72.0 |
| | CPD | OPEN CARPORT DIRT FLOOR | 4 | 0 | 1989 | 1152.0 |
| | UTY | STORAGE/UTILITY | 4 | 0 | 1989 | 432.0 |
Sketch
Property Image
Land
| 1 | 32 | AC (03.01-09.99) | 5.0000 | 0.00 | 0.00 | 0.00 | 1.00 | $330,000 | $0 |
Roll Value History
| 2026 | N/A | N/A | N/A | N/A | N/A |
| 2025 | $100,222 | $330,000 | $0 | $430,222 | $430,222 |
| 2024 | $104,580 | $300,000 | $0 | $404,580 | $404,580 |
| 2023 | $96,625 | $290,000 | $0 | $386,625 | $386,625 |
| 2022 | $90,932 | $290,000 | $0 | $380,932 | $380,932 |
| 2021 | $66,578 | $190,000 | $0 | $256,578 | $256,578 |
| 2020 | $67,169 | $160,000 | $0 | $227,169 | $227,169 |
| 2019 | $54,908 | $230,000 | $0 | $284,908 | $284,908 |
| 2018 | $56,903 | $175,000 | $0 | $231,903 | $231,903 |
| 2017 | $59,898 | $150,000 | $0 | $209,898 | $209,898 |
| 2016 | $61,896 | $125,000 | $0 | $186,896 | $186,896 |
| 2015 | $68,115 | $125,000 | $0 | $193,115 | $193,115 |
| 2014 | $69,497 | $125,000 | $0 | $194,497 | $194,497 |
| 2013 | $70,879 | $108,000 | $0 | $178,879 | $178,879 |
| 2012 | $72,260 | $108,000 | $0 | $180,260 | $180,260 |
| 2011 | $73,642 | $135,000 | $0 | $208,642 | $208,642 |
| 2010 | $68,972 | $135,000 | $0 | $203,972 | $203,972 |
| 2009 | $73,405 | $160,000 | $0 | $233,405 | $233,405 |
| 2008 | $76,266 | $160,000 | $0 | $236,266 | $236,266 |
| 2007 | $79,436 | $160,000 | $0 | $239,436 | $239,436 |
Deed and Sales History
| 1 | 02/01/1989 | WD | Warranty Deed | GARRISON, CO | HATLEY, RONALD L | | | $18,500.00 | 90617 | 89002167 |
| 2 | 09/01/1985 | OTHER | Other - Misc. Documents | GARRISON, CO | GARRISON, CO | | | $0.00 | 61290 | 0 |
| 3 | 01/01/1900 | OTHER | Other - Misc. Documents | Unknown | GARRISON, CO | | | $0.00 | 11137 | 381861 |
Payout Agreement
| No payout information available.. |