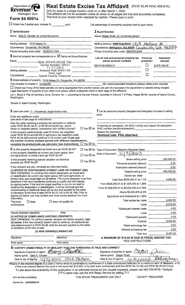
Property
Account |
| Property ID: | 599784 | Abbreviated Legal Description: | SW NE SE NW EX N30' FOR RD FR 317-2150 |
| Geographic ID: | R13327-331-2150 | Agent Code: | |
| Type: | Real | | |
| Tax Area: | 112 - APPRAISER-OH Schl Dist, outside OH, improved, greater than 1 acre | Land Use Code | 11 |
| Open Space: | N | DFL | N |
| Historic Property: | N | Remodel Property: | N |
| Multi-Family Redevelopment: | N | | |
| Township: | 33 | Section: | 27 |
| Range: | R1 |
Location |
| Address: | 1035 STARFLOWER RD OAK HARBOR, WA 98277 | Mapsco: | |
| Neighborhood: | Cycle 6 | Map ID: | 236 |
| Neighborhood CD: | 6 |
Owner |
| Name: | MCGAHA, JONATHAN | Owner ID: | 308526 |
| Mailing Address: | JULIA MCGAHA 1035 WEST STARFLOWER RD OAK HARBOR, WA 98277 | % Ownership: | 100.0000000000% |
| | | Exemptions: | |
Taxes and Assessment Details
Values
| (+) Improvement Homesite Value: | + | $0 | |
| (+) Improvement Non-Homesite Value: | + | $309,387 | |
| (+) Land Homesite Value: | + | $0 | |
| (+) Land Non-Homesite Value: | + | $250,000 | |
| (+) Curr Use (HS): | + | $0 | $0 |
| (+) Curr Use (NHS): | + | $0 | $0 |
| | | -------------------------- | |
| (=) Market Value: | = | $559,387 | |
| (–) Productivity Loss: | – | $0 | |
| | | -------------------------- | |
| (=) Subtotal: | = | $559,387 | |
| (+) Senior Appraised Value: | + | $0 | |
| (+) Non-Senior Appraised Value: | + | $559,387 | |
| | | -------------------------- | |
| (=) Total Appraised Value: | = | $559,387 | |
| (–) Senior Exemption Loss: | – | $0 | |
| (–) Exemption Loss: | – | $0 | |
| | | -------------------------- | |
| (=) Taxable Value: | = | $559,387 | |
Taxing Jurisdiction
| Owner: | MCGAHA, JONATHAN | | |
| % Ownership: | 100.0000000000% | | |
| Total Value: | $559,387 | | |
| Tax Area: | 112 - APPRAISER-OH Schl Dist, outside OH, improved, greater than 1 acre |
| CF | Conservation Futures | 0.0316035091 | $559,387 | $559,387 | $17.68 | | |
| CEM1 | Cemetery #1 | 0.0040320932 | $559,387 | $559,387 | $2.26 | | |
| FIRE2 | Fire & Rescue Dist #2 N Whidbey GEN | 0.5475949600 | $559,387 | $559,387 | $306.32 | | |
| HOBOND | Hospital BOND | 0.1910887512 | $559,387 | $559,387 | $106.89 | | |
| HOGEN | Hospital GEN | 0.3902502903 | $559,387 | $559,387 | $218.30 | | |
| CE | County Current Expense | 0.3708482477 | $559,387 | $559,387 | $207.45 | | |
| CR | County Roads | 0.4584763726 | $559,387 | $559,387 | $256.47 | | |
| ISLANDEMS | Hospital GEN (EMS) | 0.5000000000 | $559,387 | $559,387 | $279.69 | | |
| LIB | Library Sno-Isle GEN | 0.3153421757 | $559,387 | $559,387 | $176.40 | | |
| NWHIDPRMT | P & R N Whidbey GEN | 0.2004466701 | $559,387 | $559,387 | $112.13 | | |
| SCH201MO | School 201 Enrichment | 1.8559231640 | $559,387 | $559,387 | $1,038.18 | | |
| ST | State School | 1.3035497053 | $559,387 | $559,387 | $729.19 | | |
| ST2 | State School Part 2 | 0.8169543533 | $559,387 | $559,387 | $456.99 | | |
| | Total Tax Rate: | 6.9861102925 | | | | | |
| | | | | Taxes w/Current Exemptions: | $3,907.95 | | |
| | | | | Taxes w/o Exemptions: | $3,907.95 | | |
Improvement / Building
| Improvement #1: | RESIDENTIAL | State Code: | Y | 1914.0 sqft | Value: | $309,387 |
| Bathrooms: | 2.5 | Bedrooms: | 3 | | Ceiling: | DRYWALL PAINTED | Exterior Wall/Cover: | CEMENT FIBER | | Floor Covering: | CARPET/VINYL 60-40 | Floor Structure: | WOOD W/SUBFLOOR | | Foundation: | CONCRETE | Heating: | WALL HEAT ELECTRIC | | Interior Finish: | DRYWALL PAINT | Plumbing Fixture Cnt: | 13 | | Roof Slope: | 5" IN 12" | Roof Structure/Cover: | CJ ASPHALT |
|
| | Type | Description | Class CD | Sub Class CD | Year Built | Area |
| | BAS | BASE/MAIN FLOOR | 3 | 0 | 2009 | 924.0 |
| | BIG | BUILT IN GARAGE | 3 | 0 | 2009 | 440.0 |
| | UPS | UPPER STORY | 3 | 0 | 2009 | 990.0 |
| | OWC | OPEN WOOD PORCH W/STEPS/ROOF/C | 3 | 0 | 2009 | 36.0 |
Sketch
Property Image
Land
| 1 | 18 | AC (02.01-03.00) | 2.2800 | 99316.80 | 0.00 | 0.00 | 1.00 | $250,000 | $0 |
Roll Value History
| 2026 | N/A | N/A | N/A | N/A | N/A |
| 2025 | $309,387 | $250,000 | $0 | $559,387 | $559,387 |
| 2024 | $313,059 | $230,000 | $0 | $543,059 | $543,059 |
| 2023 | $316,730 | $220,000 | $0 | $536,730 | $536,730 |
| 2022 | $290,126 | $210,000 | $0 | $500,126 | $500,126 |
| 2021 | $255,187 | $160,000 | $0 | $415,187 | $415,187 |
| 2020 | $248,117 | $130,000 | $0 | $378,117 | $378,117 |
| 2019 | $184,543 | $180,000 | $0 | $364,543 | $364,543 |
| 2018 | $185,053 | $170,000 | $0 | $355,053 | $355,053 |
| 2017 | $186,075 | $150,000 | $0 | $336,075 | $336,075 |
| 2016 | $184,967 | $120,000 | $0 | $304,967 | $304,967 |
| 2015 | $186,979 | $100,000 | $0 | $286,979 | $286,979 |
| 2014 | $188,988 | $106,250 | $0 | $295,238 | $295,238 |
| 2013 | $191,000 | $106,250 | $0 | $297,250 | $297,250 |
| 2012 | $193,011 | $106,250 | $0 | $299,261 | $299,261 |
| 2011 | $195,021 | $125,000 | $0 | $320,021 | $320,021 |
| 2010 | $200,770 | $68,800 | $0 | $269,570 | $269,570 |
| 2009 | $0 | $80,000 | $0 | $80,000 | $80,000 |
| 2008 | $0 | $80,000 | $0 | $80,000 | $80,000 |
| 2007 | $0 | $45,000 | $0 | $45,000 | $45,000 |
Deed and Sales History
| 1 | 04/27/2023 | WD | Warranty Deed | HOSSFELD, KAREN MARIE | MCGAHA, JONATHAN | | | $480,000.00 | 56544 | 4559311 |
| 2 | 08/04/2009 | QCD | Quit Claim Deed | HOSSFELD, JAMES F | HOSSFELD, KAREN MARIE | | | $0.00 | 91822 | 4258000 |
| 3 | 10/01/1985 | OTHER | Other - Misc. Documents | HOSSFELD, JAMES F | HOSSFELD, JAMES F | | | $0.00 | 61324 | 0 |
| 4 | 01/01/1900 | OTHER | Other - Misc. Documents | Unknown | HOSSFELD, JAMES F | | | $0.00 | 0 | 0 |
Payout Agreement
| No payout information available.. |