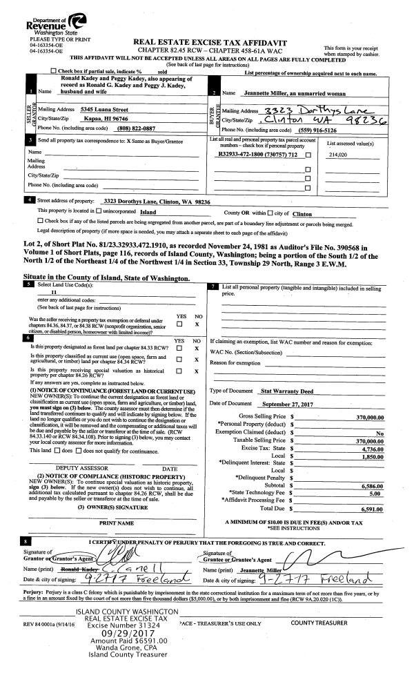
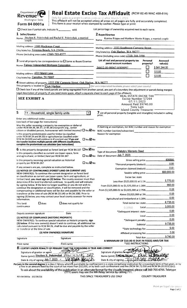
Property
Account |
| Property ID: | 600068 | Abbreviated Legal Description: | IN SE SE: BG NECR OF SE SE S1*W (DEED S) ALG ELN 386.60' N88*W (DEED W) PARA/W NLN 1301.55' (DEED 1320' M/L) TO ELN OF W20' SD SE SE SD ELN E R/W LN CO RD N1*E (DEED N) ALG SD ELN 218' S88*E (DEED E) 225' N1*E (DEED N) 110' N88*W (DEED W) 225' TO E R/W LN |
| Geographic ID: | R03224-115-4700 | Agent Code: | |
| Type: | Real | | |
| Tax Area: | 332 - APPRAISER-Cpvl Schl Dist, Special Dist, improved, greater than 1 acre | Land Use Code | 83 |
| Open Space: | Y | DFL | N |
| Historic Property: | N | Remodel Property: | N |
| Multi-Family Redevelopment: | N | | |
| Township: | 32 | Section: | 24 |
| Range: | R0 |
Location |
| Address: | 886 WEST BEACH RD COUPEVILLE, WA 98239 | Mapsco: | |
| Neighborhood: | Cycle 2 | Map ID: | 4 |
| Neighborhood CD: | 2 |
Owner |
| Name: | FLACK, KYLE | Owner ID: | 308813 |
| Mailing Address: | PAIGE MUELLER 892 W BEACH RD COUPEVILLE, WA 98239 | % Ownership: | 100.0000000000% |
| | | Exemptions: | |
Taxes and Assessment Details
Values
| (+) Improvement Homesite Value: | + | $0 | |
| (+) Improvement Non-Homesite Value: | + | $605,102 | |
| (+) Land Homesite Value: | + | $0 | |
| (+) Land Non-Homesite Value: | + | $270,000 | |
| (+) Curr Use (HS): | + | $0 | $0 |
| (+) Curr Use (NHS): | + | $126,462 | $2,781 |
| | | -------------------------- | |
| (=) Market Value: | = | $1,001,564 | |
| (–) Productivity Loss: | – | $123,681 | |
| | | -------------------------- | |
| (=) Subtotal: | = | $877,883 | |
| (+) Senior Appraised Value: | + | $0 | |
| (+) Non-Senior Appraised Value: | + | $877,883 | |
| | | -------------------------- | |
| (=) Total Appraised Value: | = | $877,883 | |
| (–) Senior Exemption Loss: | – | $0 | |
| (–) Exemption Loss: | – | $0 | |
| | | -------------------------- | |
| (=) Taxable Value: | = | $877,883 | |
Taxing Jurisdiction
| Owner: | FLACK, KYLE | | |
| % Ownership: | 100.0000000000% | | |
| Total Value: | $1,001,564 | | |
| Tax Area: | 332 - APPRAISER-Cpvl Schl Dist, Special Dist, improved, greater than 1 acre |
| CF | Conservation Futures | 0.0316035091 | $877,883 | $877,883 | $27.74 | | |
| CEM2 | Cemetery #2 | 0.0095056933 | $877,883 | $877,883 | $8.34 | | |
| FIRE2 | Fire & Rescue Dist #2 N Whidbey GEN | 0.5475949600 | $877,883 | $877,883 | $480.72 | | |
| HOBOND | Hospital BOND | 0.1910887512 | $877,883 | $877,883 | $167.75 | | |
| HOGEN | Hospital GEN | 0.3902502903 | $877,883 | $877,883 | $342.59 | | |
| CE | County Current Expense | 0.3708482477 | $877,883 | $877,883 | $325.56 | | |
| CR | County Roads | 0.4584763726 | $877,883 | $877,883 | $402.49 | | |
| ISLANDEMS | Hospital GEN (EMS) | 0.5000000000 | $877,883 | $877,883 | $438.94 | | |
| LIB | Library Sno-Isle GEN | 0.3153421757 | $877,883 | $877,883 | $276.83 | | |
| LIBCAP | Library Sno-Isle BOND (Cap Fac Imp Area) | 0.0543427938 | $877,883 | $877,883 | $47.71 | | |
| POCOUP | Port of Coupeville GEN | 0.1093371703 | $877,883 | $877,883 | $95.99 | | |
| POCOUPIDD | Port of Coupeville IDD | 0.3409740022 | $877,883 | $877,883 | $299.34 | | |
| COUPSDTECH | School 204 CP (TECH) | 0.7545480007 | $877,883 | $877,883 | $662.40 | | |
| SCH204MO | School 204 Enrichment | 0.6716186034 | $877,883 | $877,883 | $589.60 | | |
| ST | State School | 1.3035497053 | $877,883 | $877,883 | $1,144.36 | | |
| ST2 | State School Part 2 | 0.8169543533 | $877,883 | $877,883 | $717.19 | | |
| | Total Tax Rate: | 6.8660346289 | | | | | |
| | | | | Taxes w/Current Exemptions: | $6,027.55 | | |
| | | | | Taxes w/o Exemptions: | $6,027.55 | | |
Improvement / Building
| Improvement #1: | RESIDENTIAL | State Code: | Y | 0.0 sqft | Value: | $370,486 |
| | Type | Description | Class CD | Sub Class CD | Year Built | Area |
| | oUTI | UTILITY | 2 | 0 | 1900 | 384.0 |
| | oUTI | UTILITY | 3 | 0 | 1900 | 140.0 |
| | oPOL | POLE BARN | 3 | 0 | 1900 | 1296.0 |
| | oBAR | BARN | 2 | 0 | 1900 | 5824.0 |
| | oEQU | EQUIP SHED | 3 | 0 | 1900 | 3852.0 |
| | oBAR | BARN | 2 | 0 | 1900 | 5440.0 |
| | oEQU | EQUIP SHED | 3 | 0 | 1900 | 5414.0 |
| | oEQU | EQUIP SHED | 3 | 0 | 1900 | 1872.0 |
| | oPOL | POLE BARN | 2 | 0 | 1900 | 960.0 |
| | oGAR | GARAGE | 3 | 0 | 1900 | 480.0 |
| | oUTI | UTILITY | 3 | 0 | 1900 | 200.0 |
| | oPOL | POLE BARN | 3 | 0 | 1900 | 576.0 |
| | oEQU | EQUIP SHED | 3 | 0 | 1900 | 576.0 |
| | oUTI | UTILITY | 2 | 0 | 1900 | 384.0 |
| Improvement #2: | RESIDENTIAL | State Code: | Y | 1176.0 sqft | Value: | $234,616 |
| Bathrooms: | 2 | Bedrooms: | 2 | | Ceiling: | DRYWALL PAINTED | Cooling: | HEAT PUMP/CONV/V | | Exterior Wall/Cover: | CEMENT FIBER | Floor Covering: | VINYL 100% | | Floor Structure: | WOOD W/SUBFLOOR | Foundation: | CONCRETE | | Interior Finish: | DRYWALL PAINT | Plumbing Fixture Cnt: | 9 | | Roof Slope: | 8" IN 12" | Roof Structure/Cover: | CJ ASPHALT |
|
| | Type | Description | Class CD | Sub Class CD | Year Built | Area |
| | BAS | BASE/MAIN FLOOR | 3 | 0 | 2020 | 708.0 |
| | UPS | UPPER STORY | 3 | 0 | 2020 | 468.0 |
Sketch
| No sketches available for this property. |
Property Image
Land
| 1 | 83 | OPEN AGRICULTURE | 10.2600 | 446925.60 | 0.00 | 0.00 | 1.00 | $126,462 | $2,781 |
| 2 | HS | HOMESITE | 1.0000 | 43560.00 | 0.00 | 0.00 | 1.00 | $270,000 | $0 |
Roll Value History
| 2026 | N/A | N/A | N/A | N/A | N/A |
| 2025 | $605,102 | $396,462 | $2,781 | $877,883 | $877,883 |
| 2024 | $566,745 | $370,000 | $2,781 | $569,526 | $569,526 |
| 2023 | $568,622 | $350,000 | $2,781 | $571,403 | $571,403 |
| 2022 | $548,362 | $330,000 | $2,781 | $551,143 | $551,143 |
| 2021 | $523,360 | $290,000 | $2,781 | $526,141 | $526,141 |
| 2020 | $338,252 | $280,000 | $2,781 | $341,033 | $341,033 |
| 2019 | $330,252 | $300,000 | $2,781 | $333,033 | $333,033 |
| 2018 | $115,989 | $240,000 | $2,781 | $118,770 | $118,770 |
| 2017 | $115,989 | $250,000 | $2,781 | $118,770 | $118,770 |
| 2016 | $115,989 | $250,000 | $2,781 | $118,770 | $118,770 |
| 2015 | $115,989 | $300,000 | $2,781 | $118,770 | $118,770 |
| 2014 | $115,989 | $331,135 | $2,781 | $118,770 | $118,770 |
| 2013 | $115,989 | $331,135 | $2,650 | $199,389 | $199,389 |
| 2012 | $115,764 | $250,385 | $2,650 | $118,414 | $118,414 |
| 2011 | $115,764 | $294,570 | $2,650 | $118,414 | $118,414 |
| 2010 | $116,604 | $294,570 | $2,650 | $119,254 | $119,254 |
| 2009 | $118,148 | $348,735 | $2,650 | $120,798 | $120,798 |
| 2008 | $119,674 | $348,735 | $2,650 | $122,324 | $122,324 |
| 2007 | $121,464 | $316,390 | $2,650 | $124,114 | $124,114 |
Deed and Sales History
| 1 | 05/30/2023 | EZ | Easement | FLACK, KYLE | WHIDBEY CAMANO LAND TRUST | | | $0.00 | 56875 | 4560536 |
| 2 | 05/30/2023 | EZ | Easement | MUELLER, PAIGE | UNITED STATES OF AMERICA | | | $1,086,875.00 | 56874 | 4560535 |
|   | |
| 3 | 02/27/2023 | QCD | Quit Claim Deed | MUELLER, FRANK | MUELLER, PAIGE | | | $0.00 | 55959 | 4557156 |
| 4 | 10/16/2017 | PRD | Personal Representatives Deed | BELL, GERALD A | MUELLER, FRANK | | | $0.00 | 31586 | 4432458 |
| 5 | 02/26/2015 | ESTSEPPROP | Establish Separate Property | BELL, GERALD A | BELL, GERALD A | | | $0.00 | 18712 | 4374525 |
| 6 | 10/20/2005 | QCD | Quit Claim Deed | BELL, GERALD A | BELL, GERALD A | | | $2,081.00 | 70671 | 4092988 |
| 7 | 10/01/1989 | OTHER | Other - Misc. Documents | BELL, GERALD A | BELL, GERALD A | | | $0.00 | 63365 | 89013189 |
| 8 | 03/01/1989 | OTHER | Other - Misc. Documents | BELL, GERALD A | BELL, GERALD A | | | $0.00 | 63047 | 89002187 |
| 9 | 04/01/1985 | QCD | Quit Claim Deed | Unknown | BELL, GERALD A | | | $0.00 | 50977 | 85004102 |
Payout Agreement
| No payout information available.. |