Property
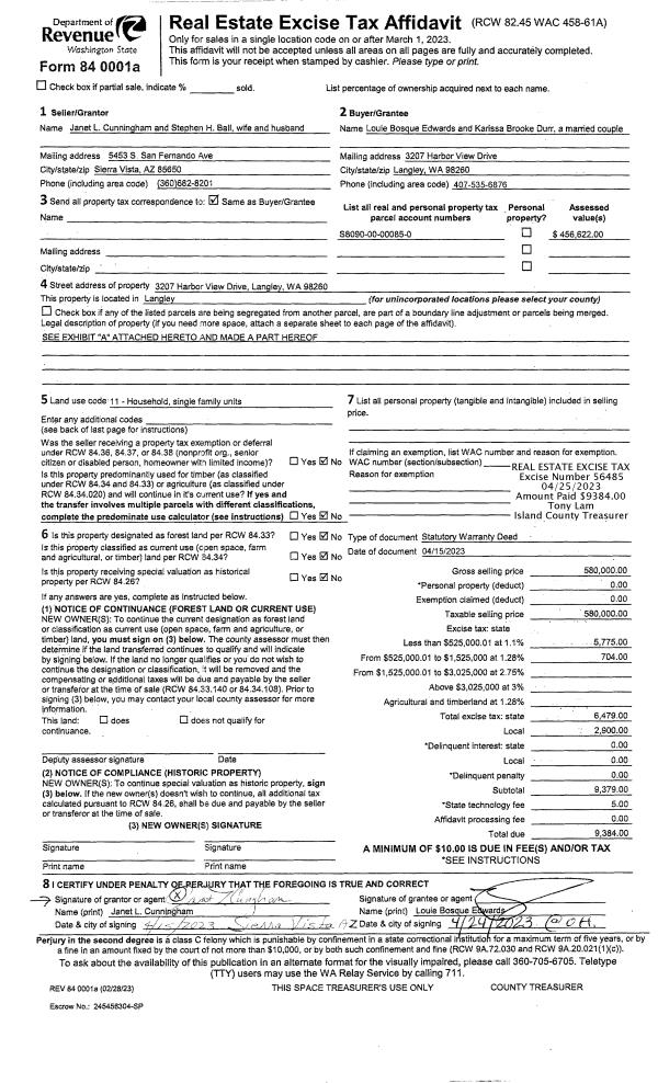
Account |
| Property ID: | 600362 | Abbreviated Legal Description: | LOT A SP 85-28.23329.309-4790 V1 SP P394 AF#85011900 ALTERATION (MISC# 80669) LOT A SP ALTERATION 304-03.23329.268-4780 & .351-4780 V4 SP P83 AF#4124106 |
| Geographic ID: | R23329-268-4780 | Agent Code: | |
| Type: | Real | | |
| Tax Area: | 112 - APPRAISER-OH Schl Dist, outside OH, improved, greater than 1 acre | Land Use Code | 11 |
| Open Space: | N | DFL | N |
| Historic Property: | N | Remodel Property: | N |
| Multi-Family Redevelopment: | N | | |
| Township: | 33 | Section: | 29 |
| Range: | R2 |
Location |
| Address: | 2974 CHAMPION LN OAK HARBOR, WA 98277 | Mapsco: | |
| Neighborhood: | Cycle 6 | Map ID: | 638 |
| Neighborhood CD: | 6 |
Owner |
| Name: | THOMAS, CHRISTOPHER | Owner ID: | 307245 |
| Mailing Address: | KELLY THOMAS 2974 CHAMPION LN OAK HARBOR, WA 98277 | % Ownership: | 100.0000000000% |
| | | Exemptions: | |
Taxes and Assessment Details
Values
| (+) Improvement Homesite Value: | + | $0 | |
| (+) Improvement Non-Homesite Value: | + | $179,786 | |
| (+) Land Homesite Value: | + | $0 | |
| (+) Land Non-Homesite Value: | + | $300,000 | |
| (+) Curr Use (HS): | + | $0 | $0 |
| (+) Curr Use (NHS): | + | $0 | $0 |
| | | -------------------------- | |
| (=) Market Value: | = | $479,786 | |
| (–) Productivity Loss: | – | $0 | |
| | | -------------------------- | |
| (=) Subtotal: | = | $479,786 | |
| (+) Senior Appraised Value: | + | $0 | |
| (+) Non-Senior Appraised Value: | + | $479,786 | |
| | | -------------------------- | |
| (=) Total Appraised Value: | = | $479,786 | |
| (–) Senior Exemption Loss: | – | $0 | |
| (–) Exemption Loss: | – | $0 | |
| | | -------------------------- | |
| (=) Taxable Value: | = | $479,786 | |
Taxing Jurisdiction
| Owner: | THOMAS, CHRISTOPHER | | |
| % Ownership: | 100.0000000000% | | |
| Total Value: | $479,786 | | |
| Tax Area: | 112 - APPRAISER-OH Schl Dist, outside OH, improved, greater than 1 acre |
| CF | Conservation Futures | 0.0316035091 | $479,786 | $479,786 | $15.16 | | |
| CEM1 | Cemetery #1 | 0.0040320932 | $479,786 | $479,786 | $1.93 | | |
| FIRE2 | Fire & Rescue Dist #2 N Whidbey GEN | 0.5475949600 | $479,786 | $479,786 | $262.73 | | |
| HOBOND | Hospital BOND | 0.1910887512 | $479,786 | $479,786 | $91.68 | | |
| HOGEN | Hospital GEN | 0.3902502903 | $479,786 | $479,786 | $187.24 | | |
| CE | County Current Expense | 0.3708482477 | $479,786 | $479,786 | $177.93 | | |
| CR | County Roads | 0.4584763726 | $479,786 | $479,786 | $219.97 | | |
| ISLANDEMS | Hospital GEN (EMS) | 0.5000000000 | $479,786 | $479,786 | $239.89 | | |
| LIB | Library Sno-Isle GEN | 0.3153421757 | $479,786 | $479,786 | $151.30 | | |
| NWHIDPRMT | P & R N Whidbey GEN | 0.2004466701 | $479,786 | $479,786 | $96.17 | | |
| SCH201MO | School 201 Enrichment | 1.8559231640 | $479,786 | $479,786 | $890.45 | | |
| ST | State School | 1.3035497053 | $479,786 | $479,786 | $625.42 | | |
| ST2 | State School Part 2 | 0.8169543533 | $479,786 | $479,786 | $391.96 | | |
| | Total Tax Rate: | 6.9861102925 | | | | | |
| | | | | Taxes w/Current Exemptions: | $3,351.83 | | |
| | | | | Taxes w/o Exemptions: | $3,351.83 | | |
Improvement / Building
| Improvement #1: | MANUFACTURED HOME | State Code: | Y | 1782.0 sqft | Value: | $179,786 |
| Bathrooms: | 0 | Bedrooms: | 0 | | Ceiling: | PLASTER PAINTED | Cooling: | EVAP NO DUCT | | Exterior Wall/Cover: | VINYL | Floor Covering: | CARPET 100% | | Floor Structure: | SLAB ON GRADE | Foundation: | SLAB | | Heating: | FHA ELECTRIC | Interior Finish: | PLASTER | | Plumbing Fixture Cnt: | 1 | Roof Slope: | FLAT | | Roof Structure/Cover: | CJ ALUMINIUM HEAVY |   |   |
|
| | Type | Description | Class CD | Sub Class CD | Year Built | Area |
| | BAS | BASE/MAIN FLOOR | 4 | 0 | 1986 | 1782.0 |
| | OWR | OPEN WOOD PORCH W/STEPS/ROOF | 4 | 0 | 1986 | 808.0 |
| | OWP | OPEN WOOD PORCH W/STEPS | 4 | 0 | 1986 | 96.0 |
| | ENP | ENCLOSED PORCH | 4 | 0 | 1986 | 240.0 |
| | UTY | STORAGE/UTILITY | 4 | 0 | 1986 | 1152.0 |
| | CPD | OPEN CARPORT DIRT FLOOR | 4 | 0 | 1986 | 128.0 |
| | CPD | OPEN CARPORT DIRT FLOOR | 4 | 0 | 1986 | 528.0 |
| | ATU | ATTIC UNFINISHED | 4 | 0 | 1986 | 1152.0 |
Sketch
Property Image
Land
| 1 | 32 | AC (03.01-09.99) | 5.9700 | 0.00 | 0.00 | 0.00 | 1.00 | $300,000 | $0 |
Roll Value History
| 2026 | N/A | N/A | N/A | N/A | N/A |
| 2025 | $179,786 | $300,000 | $0 | $479,786 | $479,786 |
| 2024 | $184,323 | $280,000 | $0 | $464,323 | $464,323 |
| 2023 | $168,723 | $270,000 | $0 | $438,723 | $438,723 |
| 2022 | $73,626 | $240,000 | $0 | $313,626 | $313,626 |
| 2021 | $68,021 | $160,000 | $0 | $228,021 | $228,021 |
| 2020 | $68,748 | $140,000 | $0 | $208,748 | $208,748 |
| 2019 | $59,495 | $200,000 | $0 | $259,495 | $259,495 |
| 2018 | $61,357 | $170,000 | $0 | $231,357 | $231,357 |
| 2017 | $63,219 | $150,000 | $0 | $213,219 | $213,219 |
| 2016 | $54,115 | $140,000 | $0 | $194,115 | $194,115 |
| 2015 | $55,754 | $120,000 | $0 | $175,754 | $175,754 |
| 2014 | $58,215 | $108,000 | $0 | $166,215 | $166,215 |
| 2013 | $59,856 | $108,000 | $0 | $167,856 | $167,856 |
| 2012 | $61,497 | $118,206 | $0 | $179,703 | $179,703 |
| 2011 | $63,137 | $131,340 | $0 | $194,477 | $194,477 |
| 2010 | $69,008 | $131,340 | $0 | $200,348 | $200,348 |
| 2009 | $83,565 | $149,250 | $0 | $232,815 | $232,815 |
| 2008 | $86,459 | $173,130 | $0 | $259,589 | $259,589 |
| 2007 | $89,234 | $132,459 | $0 | $221,693 | $221,693 |
Deed and Sales History
| 1 | 01/09/2023 | WD | Warranty Deed | ALLEN, JAMES A | THOMAS, CHRISTOPHER | | | $544,000.00 | 55581 | 4555562 |
| 2 | 08/22/2016 | WD | Warranty Deed | BAUNE, STEVEN M | ALLEN, JAMES A | | | $230,000.00 | 25920 | 4406335 |
| 3 | 02/01/1986 | OTHER | Other - Misc. Documents | BAUNE, STEVEN M | BAUNE, STEVEN M | | | $33,475.00 | 11111111 | 0 |
| 4 | 12/01/1985 | QCD | Quit Claim Deed | BAUNE, STEVEN M | BAUNE, STEVEN M | | | $0.00 | 53453 | 85013666 |
| 5 | 10/01/1981 | REC | Real Estate Contract | Unknown | BAUNE, STEVEN M | | | $42,000.00 | 13322 | 389349 |
Payout Agreement
| No payout information available.. |