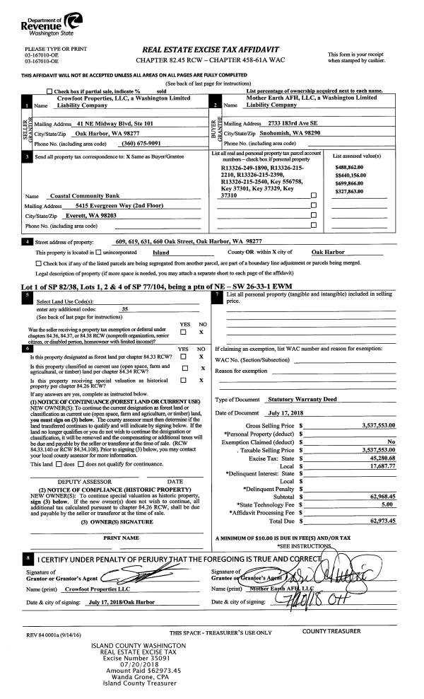
Property
Account |
| Property ID: | 600424 | Abbreviated Legal Description: | LOT 3 SP 81-48.23117.038-2100 V1 SP P318 AF#85001188 TGW & SUB EZ AF#89014437 |
| Geographic ID: | R23117-043-2520 | Agent Code: | |
| Type: | Real | | |
| Tax Area: | 312 - APPRAISER-Cpvl Schl Dist, outside Cpvl, improved, greater than 1 acre | Land Use Code | 11 |
| Open Space: | N | DFL | N |
| Historic Property: | N | Remodel Property: | N |
| Multi-Family Redevelopment: | N | | |
| Township: | 31 | Section: | 17 |
| Range: | R2 |
Location |
| Address: | 566 MUSSEL BEACH RD COUPEVILLE, WA 98239 | Mapsco: | |
| Neighborhood: | Area 2 Waterfront Eastside Res | Map ID: | 487 |
| Neighborhood CD: | 2WFTE01R |
Owner |
| Name: | HIPSKIND TTEE, R STEPHEN | Owner ID: | 286679 |
| Mailing Address: | CATHERINE E HIPSKIND TTEE 566 MUSSEL BEACH RD COUPEVILLE, WA 98239 | % Ownership: | 100.0000000000% |
| | | Exemptions: | |
Taxes and Assessment Details
Values
| (+) Improvement Homesite Value: | + | $0 | |
| (+) Improvement Non-Homesite Value: | + | $787,863 | |
| (+) Land Homesite Value: | + | $0 | |
| (+) Land Non-Homesite Value: | + | $625,000 | |
| (+) Curr Use (HS): | + | $0 | $0 |
| (+) Curr Use (NHS): | + | $0 | $0 |
| | | -------------------------- | |
| (=) Market Value: | = | $1,412,863 | |
| (–) Productivity Loss: | – | $0 | |
| | | -------------------------- | |
| (=) Subtotal: | = | $1,412,863 | |
| (+) Senior Appraised Value: | + | $0 | |
| (+) Non-Senior Appraised Value: | + | $1,412,863 | |
| | | -------------------------- | |
| (=) Total Appraised Value: | = | $1,412,863 | |
| (–) Senior Exemption Loss: | – | $0 | |
| (–) Exemption Loss: | – | $0 | |
| | | -------------------------- | |
| (=) Taxable Value: | = | $1,412,863 | |
Taxing Jurisdiction
| Owner: | HIPSKIND TTEE, R STEPHEN | | |
| % Ownership: | 100.0000000000% | | |
| Total Value: | $1,412,863 | | |
| Tax Area: | 312 - APPRAISER-Cpvl Schl Dist, outside Cpvl, improved, greater than 1 acre |
| CF | Conservation Futures | 0.0316035091 | $1,412,863 | $1,412,863 | $44.65 | | |
| CEM2 | Cemetery #2 | 0.0095056933 | $1,412,863 | $1,412,863 | $13.43 | | |
| FIRE5 | Fire & Rescue Dist #5 C Whidbey GEN | 1.2008080668 | $1,412,863 | $1,412,863 | $1,696.58 | | |
| FIRE5BOND | Fire & Rescue Dist #5 C Whidbey BOND | 0.1400090713 | $1,412,863 | $1,412,863 | $197.81 | | |
| HOBOND | Hospital BOND | 0.1910887512 | $1,412,863 | $1,412,863 | $269.98 | | |
| HOGEN | Hospital GEN | 0.3902502903 | $1,412,863 | $1,412,863 | $551.37 | | |
| CE | County Current Expense | 0.3708482477 | $1,412,863 | $1,412,863 | $523.96 | | |
| CR | County Roads | 0.4584763726 | $1,412,863 | $1,412,863 | $647.76 | | |
| ISLANDEMS | Hospital GEN (EMS) | 0.5000000000 | $1,412,863 | $1,412,863 | $706.43 | | |
| LIB | Library Sno-Isle GEN | 0.3153421757 | $1,412,863 | $1,412,863 | $445.54 | | |
| LIBCAP | Library Sno-Isle BOND (Cap Fac Imp Area) | 0.0543427938 | $1,412,863 | $1,412,863 | $76.78 | | |
| POCOUP | Port of Coupeville GEN | 0.1093371703 | $1,412,863 | $1,412,863 | $154.48 | | |
| POCOUPIDD | Port of Coupeville IDD | 0.3409740022 | $1,412,863 | $1,412,863 | $481.75 | | |
| COUPSDTECH | School 204 CP (TECH) | 0.7545480007 | $1,412,863 | $1,412,863 | $1,066.07 | | |
| SCH204MO | School 204 Enrichment | 0.6716186034 | $1,412,863 | $1,412,863 | $948.91 | | |
| ST | State School | 1.3035497053 | $1,412,863 | $1,412,863 | $1,841.74 | | |
| ST2 | State School Part 2 | 0.8169543533 | $1,412,863 | $1,412,863 | $1,154.24 | | |
| | Total Tax Rate: | 7.6592568070 | | | | | |
| | | | | Taxes w/Current Exemptions: | $10,821.48 | | |
| | | | | Taxes w/o Exemptions: | $10,821.48 | | |
Improvement / Building
| Improvement #1: | RESIDENTIAL | State Code: | Y | 3781.0 sqft | Value: | $787,863 |
| Bathrooms: | 3.5 | Bedrooms: | 4 | | Ceiling: | DRYWALL PAINTED | Exterior Wall/Cover: | CEMENT FIBER | | Floor Covering: | CERAMIC TILE/CPT 40-60 | Floor Structure: | WOOD W/SUBFLOOR | | Foundation: | SLAB | Heating: | RAD HOT WATER-GAS | | Interior Finish: | DRYWALL PAINT | Plumbing Fixture Cnt: | 15 | | Roof Slope: | 6" IN 12" | Roof Structure/Cover: | CJ ASPHALT |
|
| | Type | Description | Class CD | Sub Class CD | Year Built | Area |
| | BAS | BASE/MAIN FLOOR | 5 | 0 | 2002 | 1463.2 |
| | UB8 | BASEMENT UNFINISHED 8" | 5 | 0 | 2002 | 327.1 |
| | DWN | DOWNSTAIRS LIVING AREA | 5 | 0 | 2002 | 1068.6 |
| | OP1 | OPEN PORCH SLAB | 5 | 0 | 2002 | 1076.0 |
| | OP4 | OPEN PORCH W/CEILING-ROOF | 5 | 0 | 2002 | 40.5 |
| | AGR | ATTACHED GARAGE | 5 | 0 | 2002 | 414.6 |
| | BIG | BUILT IN GARAGE | 5 | 0 | 2002 | 148.2 |
| | UPS | UPPER STORY | 5 | 0 | 2002 | 1249.2 |
| | BAW | BALCONY WOOD RAIL | 5 | 0 | 2002 | 43.5 |
| | OWP | OPEN WOOD PORCH W/STEPS | 5 | 0 | 2002 | 977.3 |
| | oLFT | BCH LIFT | 5 | 0 | 2002 | 0.0 |
Sketch
| No sketches available for this property. |
Property Image
Land
| 1 | HB | HIGH BLUFF | 2.2700 | 98881.20 | 112.00 | 0.00 | 1.00 | $625,000 | $0 |
Roll Value History
| 2026 | N/A | N/A | N/A | N/A | N/A |
| 2025 | $787,863 | $625,000 | $0 | $1,412,863 | $1,412,863 |
| 2024 | $764,152 | $600,000 | $0 | $1,364,152 | $1,364,152 |
| 2023 | $772,772 | $575,000 | $0 | $1,347,772 | $1,347,772 |
| 2022 | $708,687 | $450,000 | $0 | $1,158,687 | $1,158,687 |
| 2021 | $622,916 | $425,000 | $0 | $1,047,916 | $1,047,916 |
| 2020 | $606,152 | $350,000 | $0 | $956,152 | $956,152 |
| 2019 | $531,954 | $400,000 | $0 | $931,954 | $931,954 |
| 2018 | $464,124 | $350,000 | $0 | $814,124 | $814,124 |
| 2017 | $466,433 | $300,000 | $0 | $766,433 | $766,433 |
| 2016 | $471,774 | $300,000 | $0 | $771,774 | $771,774 |
| 2015 | $477,115 | $300,000 | $0 | $777,115 | $777,115 |
| 2014 | $482,456 | $300,000 | $0 | $782,456 | $782,456 |
| 2013 | $487,797 | $306,871 | $0 | $794,668 | $794,668 |
| 2012 | $499,664 | $306,871 | $0 | $806,535 | $806,535 |
| 2011 | $505,004 | $306,871 | $0 | $811,875 | $811,875 |
| 2010 | $517,692 | $306,871 | $0 | $824,563 | $824,563 |
| 2009 | $544,661 | $306,871 | $0 | $851,532 | $851,532 |
| 2008 | $545,832 | $306,871 | $0 | $852,703 | $852,703 |
| 2007 | $552,262 | $253,443 | $0 | $805,705 | $805,705 |
Deed and Sales History
| 1 | 08/22/2018 | WD | Warranty Deed | BIBBY, CHRIS J | HIPSKIND TTEE, R STEPHEN | | | $925,000.00 | 35683 | 4450845 |
| 2 | 04/27/2018 | QCD | Quit Claim Deed | BIBBY, CHRISTOPHER J | BIBBY, CHRIS J | | | $0.00 | 34982 | 4447927 |
| 3 | 12/16/1998 | QCD | Quit Claim Deed | BERRY, ALAN D | BIBBY, CHRISTOPHER J | | | $118,000.00 | 85119 | 98028017 |
| 4 | 08/01/1988 | WD | Warranty Deed | CAMANO, VIEW P | BERRY, ALAN D | | | $38,000.00 | 82939 | 88010970 |
| 5 | 09/01/1983 | EZ | Easement | Unknown | CAMANO, VIEW P | | | $0.00 | 60678 | 415062 |
Payout Agreement
| No payout information available.. |