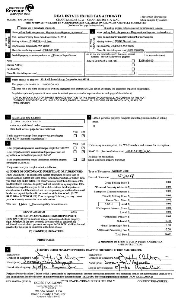
Property
Account |
| Property ID: | 600683 | Abbreviated Legal Description: | LOT A SP 85-15.13206.200-5040 V1 SP P372 AF#85008896 |
| Geographic ID: | R13206-200-4890 | Agent Code: | |
| Type: | Real | | |
| Tax Area: | 110 - APPRAISER-OH Schl Dist, outside OH, improved & 1 acre or less | Land Use Code | 11 |
| Open Space: | N | DFL | N |
| Historic Property: | N | Remodel Property: | N |
| Multi-Family Redevelopment: | N | | |
| Township: | 32 | Section: | 06 |
| Range: | R1 |
Location |
| Address: | 2118 LAVENDER LN OAK HARBOR, WA 98277 | Mapsco: | |
| Neighborhood: | Cycle 1 | Map ID: | 102 |
| Neighborhood CD: | 1 |
Owner |
| Name: | HOLBECK, AARON THOMAS | Owner ID: | 303210 |
| Mailing Address: | 1517 S YORKTOWN ST RIDGECREST, CA 93555 | % Ownership: | 100.0000000000% |
| | | Exemptions: | |
Taxes and Assessment Details
Values
| (+) Improvement Homesite Value: | + | $0 | |
| (+) Improvement Non-Homesite Value: | + | $228,591 | |
| (+) Land Homesite Value: | + | $0 | |
| (+) Land Non-Homesite Value: | + | $200,000 | |
| (+) Curr Use (HS): | + | $0 | $0 |
| (+) Curr Use (NHS): | + | $0 | $0 |
| | | -------------------------- | |
| (=) Market Value: | = | $428,591 | |
| (–) Productivity Loss: | – | $0 | |
| | | -------------------------- | |
| (=) Subtotal: | = | $428,591 | |
| (+) Senior Appraised Value: | + | $0 | |
| (+) Non-Senior Appraised Value: | + | $428,591 | |
| | | -------------------------- | |
| (=) Total Appraised Value: | = | $428,591 | |
| (–) Senior Exemption Loss: | – | $0 | |
| (–) Exemption Loss: | – | $0 | |
| | | -------------------------- | |
| (=) Taxable Value: | = | $428,591 | |
Taxing Jurisdiction
| Owner: | HOLBECK, AARON THOMAS | | |
| % Ownership: | 100.0000000000% | | |
| Total Value: | $428,591 | | |
| Tax Area: | 110 - APPRAISER-OH Schl Dist, outside OH, improved & 1 acre or less |
| CF | Conservation Futures | 0.0316035091 | $428,591 | $428,591 | $13.54 | | |
| CEM1 | Cemetery #1 | 0.0040320932 | $428,591 | $428,591 | $1.73 | | |
| FIRE2 | Fire & Rescue Dist #2 N Whidbey GEN | 0.5475949600 | $428,591 | $428,591 | $234.69 | | |
| HOBOND | Hospital BOND | 0.1910887512 | $428,591 | $428,591 | $81.90 | | |
| HOGEN | Hospital GEN | 0.3902502903 | $428,591 | $428,591 | $167.26 | | |
| CE | County Current Expense | 0.3708482477 | $428,591 | $428,591 | $158.94 | | |
| CR | County Roads | 0.4584763726 | $428,591 | $428,591 | $196.50 | | |
| ISLANDEMS | Hospital GEN (EMS) | 0.5000000000 | $428,591 | $428,591 | $214.30 | | |
| LIB | Library Sno-Isle GEN | 0.3153421757 | $428,591 | $428,591 | $135.15 | | |
| NWHIDPRMT | P & R N Whidbey GEN | 0.2004466701 | $428,591 | $428,591 | $85.91 | | |
| SCH201MO | School 201 Enrichment | 1.8559231640 | $428,591 | $428,591 | $795.43 | | |
| ST | State School | 1.3035497053 | $428,591 | $428,591 | $558.69 | | |
| ST2 | State School Part 2 | 0.8169543533 | $428,591 | $428,591 | $350.14 | | |
| | Total Tax Rate: | 6.9861102925 | | | | | |
| | | | | Taxes w/Current Exemptions: | $2,994.18 | | |
| | | | | Taxes w/o Exemptions: | $2,994.18 | | |
Improvement / Building
| Improvement #1: | RESIDENTIAL | State Code: | Y | 1150.5 sqft | Value: | $228,591 |
| Bathrooms: | 2 | Bedrooms: | 3 | | Ceiling: | DRYWALL PAINTED | Exterior Wall/Cover: | WOOD SIDING | | Floor Covering: | CARPET/VINYL 80-20 | Floor Structure: | WOOD W/SUBFLOOR | | Foundation: | CONCRETE | Heating: | BASEBOARD ELECTRIC | | Interior Finish: | DRYWALL PAINT | Plumbing Fixture Cnt: | 9 | | Roof Slope: | 4" IN 12" | Roof Structure/Cover: | CJ ASPHALT |
|
| | Type | Description | Class CD | Sub Class CD | Year Built | Area |
| | BAS | BASE/MAIN FLOOR | 3 | 0 | 1985 | 1150.5 |
| | AGR | ATTACHED GARAGE | 3 | 0 | 1985 | 534.0 |
| | OWR | OPEN WOOD PORCH W/STEPS/ROOF | 3 | 0 | 1985 | 56.0 |
Sketch
Property Image
Land
| 1 | 15 | SQ (12001-21780) | 0.3100 | 13503.60 | 0.00 | 0.00 | 1.00 | $200,000 | $0 |
Roll Value History
| 2026 | N/A | N/A | N/A | N/A | N/A |
| 2025 | $228,591 | $200,000 | $0 | $428,591 | $428,591 |
| 2024 | $236,070 | $190,000 | $0 | $426,070 | $426,070 |
| 2023 | $238,906 | $200,000 | $0 | $438,906 | $438,906 |
| 2022 | $218,904 | $175,000 | $0 | $393,904 | $393,904 |
| 2021 | $192,580 | $135,000 | $0 | $327,580 | $327,580 |
| 2020 | $187,155 | $100,000 | $0 | $287,155 | $287,155 |
| 2019 | $132,400 | $150,000 | $0 | $282,400 | $282,400 |
| 2018 | $120,773 | $130,000 | $0 | $250,773 | $250,773 |
| 2017 | $99,475 | $120,000 | $0 | $219,475 | $219,475 |
| 2016 | $100,875 | $110,000 | $0 | $210,875 | $210,875 |
| 2015 | $102,276 | $75,000 | $0 | $177,276 | $177,276 |
| 2014 | $103,678 | $63,750 | $0 | $167,428 | $167,428 |
| 2013 | $105,079 | $63,750 | $0 | $168,829 | $168,829 |
| 2012 | $106,479 | $63,750 | $0 | $170,229 | $170,229 |
| 2011 | $110,470 | $75,000 | $0 | $185,470 | $185,470 |
| 2010 | $115,319 | $75,000 | $0 | $190,319 | $190,319 |
| 2009 | $120,388 | $90,000 | $0 | $210,388 | $210,388 |
| 2008 | $122,015 | $95,500 | $0 | $217,515 | $217,515 |
| 2007 | $123,654 | $95,500 | $0 | $219,154 | $219,154 |
Deed and Sales History
| 1 | 12/30/2021 | QCD | Quit Claim Deed | HOLBECK, AARON | HOLBECK, AARON THOMAS | | | $0.00 | 52015 | 4540029 |
| 2 | 04/15/2020 | QCD | Quit Claim Deed | HOLBECK, AARON | HOLBECK, AARON | | | $0.00 | 42688 | 4485089 |
| 3 | 12/05/2018 | WD | Warranty Deed | TOMS, CHRISTOPHER B | HOLBECK, AARON | | | $299,850.00 | 36928 | 4456261 |
| 4 | 10/10/2009 | WD | Warranty Deed | MATLE, JON T | TOMS, CHRISTOPHER B | | | $216,000.00 | 92986 | 4264862 |
| 5 | 06/03/2004 | WD | Warranty Deed | SOMMER, BRYAN J | MATLE, JON T | | | $169,900.00 | 42583 | 4103792 |
| 6 | 04/06/2001 | WD | Warranty Deed | TUMELTY, TIMOTHY P | SOMMER, BRYAN J | | | $128,900.00 | 11100 | 20028991 |
| 7 | 08/01/1990 | SHERIFFD | Sheriff Deed | WAMSLEY, ROBERT L | SECRETARY, VETERANS A | | | $0.00 | 4988 | 90016607 |
| 8 | 03/01/1990 | REC | Real Estate Contract | SECRETARY, VETERANS A | TUMELTY, TIMOTHY P | | | $86,000.00 | 13590 | 91015356 |
| 9 | 03/01/1987 | WD | Warranty Deed | ISLAND, PACIFIC C | WAMSLEY, ROBERT L | | | $71,950.00 | 70745 | 87004041 |
| 10 | 11/01/1985 | PACD | Purchaser's Assignment | BEARDSLEE, DANIEL E | ISLAND, PACIFIC C | | | $17,000.00 | 53205 | 85012665 |
| 11 | 01/01/1900 | OTHER | Other - Misc. Documents | Unknown | BEARDSLEE, DANIEL E | | | $0.00 | 51398 | 85005702 |
Payout Agreement
| No payout information available.. |