Property
Account |
| Property ID: | 600736 | Abbreviated Legal Description: | LOT A SP 85-23.32920.498-4970 V1 SP P399 AF#85012264 |
| Geographic ID: | R32920-514-4980 | Agent Code: | |
| Type: | Real | | |
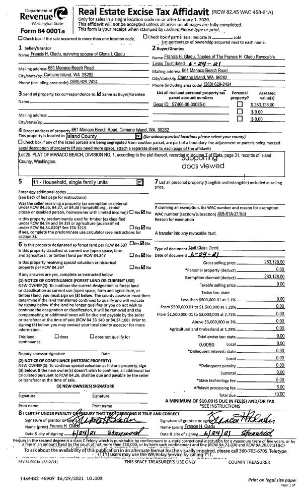
| Tax Area: | 712 - APPRAISER-S Whid Schl Dist, outside Langley, improved, greater than 1 acre | Land Use Code | 11 |
| Open Space: | N | DFL | N |
| Historic Property: | N | Remodel Property: | N |
| Multi-Family Redevelopment: | N | | |
| Township: | 29 | Section: | 20 |
| Range: | R3 |
Location |
| Address: | 6025 PIONEER PARK PLACE LANGLEY, WA 98260 | Mapsco: | |
| Neighborhood: | Cycle 4 | Map ID: | 794 |
| Neighborhood CD: | 4 |
Owner |
| Name: | SAGMEISTER, CHERYL S | Owner ID: | 18474 |
| Mailing Address: | PO BOX 966 LANGLEY, WA 98260-0966 | % Ownership: | 100.0000000000% |
| | | Exemptions: | |
Taxes and Assessment Details
Values
| (+) Improvement Homesite Value: | + | $0 | |
| (+) Improvement Non-Homesite Value: | + | $284,639 | |
| (+) Land Homesite Value: | + | $0 | |
| (+) Land Non-Homesite Value: | + | $380,000 | |
| (+) Curr Use (HS): | + | $0 | $0 |
| (+) Curr Use (NHS): | + | $0 | $0 |
| | | -------------------------- | |
| (=) Market Value: | = | $664,639 | |
| (–) Productivity Loss: | – | $0 | |
| | | -------------------------- | |
| (=) Subtotal: | = | $664,639 | |
| (+) Senior Appraised Value: | + | $0 | |
| (+) Non-Senior Appraised Value: | + | $664,639 | |
| | | -------------------------- | |
| (=) Total Appraised Value: | = | $664,639 | |
| (–) Senior Exemption Loss: | – | $0 | |
| (–) Exemption Loss: | – | $0 | |
| | | -------------------------- | |
| (=) Taxable Value: | = | $664,639 | |
Taxing Jurisdiction
| Owner: | SAGMEISTER, CHERYL S | | |
| % Ownership: | 100.0000000000% | | |
| Total Value: | $664,639 | | |
| Tax Area: | 712 - APPRAISER-S Whid Schl Dist, outside Langley, improved, greater than 1 acre |
| CF | Conservation Futures | 0.0316035091 | $664,639 | $664,639 | $21.00 | | |
| FIRE3 | Fire & Rescue Dist #3 S Whidbey GEN | 1.2004855531 | $664,639 | $664,639 | $797.89 | | |
| HOBOND | Hospital BOND | 0.1910887512 | $664,639 | $664,639 | $127.01 | | |
| HOGEN | Hospital GEN | 0.3902502903 | $664,639 | $664,639 | $259.38 | | |
| CE | County Current Expense | 0.3708482477 | $664,639 | $664,639 | $246.48 | | |
| CR | County Roads | 0.4584763726 | $664,639 | $664,639 | $304.72 | | |
| ISLANDEMS | Hospital GEN (EMS) | 0.5000000000 | $664,639 | $664,639 | $332.32 | | |
| LIB | Library Sno-Isle GEN | 0.3153421757 | $664,639 | $664,639 | $209.59 | | |
| PORTWHID | Port of S Whidbey GEN | 0.1094540357 | $664,639 | $664,639 | $72.75 | | |
| SCH206BOND | School 206 BOND | 0.3161759235 | $664,639 | $664,639 | $210.14 | | |
| SCH206MO | School 206 Enrichment | 0.4547169547 | $664,639 | $664,639 | $302.22 | | |
| ST | State School | 1.3035497053 | $664,639 | $664,639 | $866.39 | | |
| ST2 | State School Part 2 | 0.8169543533 | $664,639 | $664,639 | $542.98 | | |
| SWHIDPRBD | P & R S Whidbey BOND | 0.0152817568 | $664,639 | $664,639 | $10.16 | | |
| SWHIDPRBD2 | P & R S Whidbey BOND2 | 0.0138911264 | $664,639 | $664,639 | $9.23 | | |
| SWHIDPRMT | P & R S Whidbey GEN | 0.2053334452 | $664,639 | $664,639 | $136.47 | | |
| | Total Tax Rate: | 6.6934522006 | | | | | |
| | | | | Taxes w/Current Exemptions: | $4,448.73 | | |
| | | | | Taxes w/o Exemptions: | $4,448.73 | | |
Improvement / Building
| Improvement #1: | RESIDENTIAL | State Code: | Y | 1664.0 sqft | Value: | $280,092 |
| Bathrooms: | 2 | Bedrooms: | 2 | | Ceiling: | DRYWALL PAINTED | Exterior Wall/Cover: | WOOD SIDING | | Floor Covering: | CERAMIC TILE/CPT 40-60 | Floor Structure: | WOOD W/SUBFLOOR | | Foundation: | CONCRETE | Heating: | WALL HEAT ELECTRIC | | Interior Finish: | DRYWALL PAINT | Plumbing Fixture Cnt: | 9 | | Roof Slope: | 8" IN 12" | Roof Structure/Cover: | CJ ASPHALT |
|
| | Type | Description | Class CD | Sub Class CD | Year Built | Area |
| | BAS | BASE/MAIN FLOOR | 3 | 0 | 1990 | 832.0 |
| | UPS | UPPER STORY | 3 | 0 | 1990 | 832.0 |
| | OWP | OPEN WOOD PORCH W/STEPS | 3 | 0 | 1990 | 704.0 |
| | OWC | OPEN WOOD PORCH W/STEPS/ROOF/C | 3 | 0 | 1990 | 384.0 |
| | UTY | STORAGE/UTILITY | 3 | 0 | 1990 | 1728.0 |
| Improvement #2: | MANUFACTURED HOME | State Code: | Y | 564.0 sqft | Value: | $4,547 |
| Bathrooms: | 0 | Bedrooms: | 0 | | Ceiling: | PLASTER PAINTED | Cooling: | EVAP NO DUCT | | Exterior Wall/Cover: | VINYL | Floor Covering: | CARPET 100% | | Floor Structure: | SLAB ON GRADE | Foundation: | SLAB | | Heating: | FHA ELECTRIC | Interior Finish: | PLASTER | | Plumbing Fixture Cnt: | 1 | Roof Slope: | FLAT | | Roof Structure/Cover: | CJ ALUMINIUM HEAVY |   |   |
|
Sketch
Property Image
Land
| 1 | 32 | AC (03.01-09.99) | 4.9100 | 0.00 | 0.00 | 0.00 | 1.00 | $380,000 | $0 |
Roll Value History
| 2026 | N/A | N/A | N/A | N/A | N/A |
| 2025 | $284,639 | $380,000 | $0 | $664,639 | $664,639 |
| 2024 | $288,803 | $350,000 | $0 | $638,803 | $638,803 |
| 2023 | $292,970 | $330,000 | $0 | $622,970 | $622,970 |
| 2022 | $269,070 | $290,000 | $0 | $559,070 | $559,070 |
| 2021 | $237,248 | $230,000 | $0 | $467,248 | $467,248 |
| 2020 | $231,808 | $190,000 | $0 | $421,808 | $421,808 |
| 2019 | $171,000 | $250,000 | $0 | $421,000 | $421,000 |
| 2018 | $171,574 | $210,000 | $0 | $381,574 | $381,574 |
| 2017 | $172,722 | $190,000 | $0 | $362,722 | $362,722 |
| 2016 | $175,019 | $150,000 | $0 | $325,019 | $325,019 |
| 2015 | $177,316 | $135,000 | $0 | $312,316 | $312,316 |
| 2014 | $182,767 | $122,750 | $0 | $305,517 | $305,517 |
| 2013 | $184,688 | $132,570 | $0 | $317,258 | $317,258 |
| 2012 | $186,609 | $166,940 | $0 | $353,549 | $353,549 |
| 2011 | $188,806 | $166,940 | $0 | $355,746 | $355,746 |
| 2010 | $190,491 | $166,940 | $0 | $357,431 | $357,431 |
| 2009 | $198,753 | $216,040 | $0 | $414,793 | $414,793 |
| 2008 | $211,127 | $245,500 | $0 | $456,627 | $456,627 |
| 2007 | $214,439 | $189,035 | $0 | $403,474 | $403,474 |
Deed and Sales History
| 1 | 02/17/2009 | QCD | Quit Claim Deed | SAGMEISTER, CHERYL S | SAGMEISTER, CHERYL S | | | $0.00 | 90325 | 4244786 |
| 2 | 11/05/2002 | WD | Warranty Deed | SIMPSON, JAMES S | SAGMEISTER, CHERYL S | | | $299,000.00 | 24536 | 4037310 |
| 3 | 07/01/1987 | OTHER | Other - Misc. Documents | SIMPSON, JAMES | SIMPSON, JAMES S | | | $4,000.00 | 72054 | 0 |
| 4 | 07/01/1986 | WD | Warranty Deed | TULLUS, SAMUEL E | SIMPSON, JAMES | | | $24,000.00 | 61688 | 86007928 |
| 5 | 01/01/1900 | OTHER | Other - Misc. Documents | Unknown | TULLUS, SAMUEL E | | | $0.00 | 0 | 0 |
Payout Agreement
| No payout information available.. |