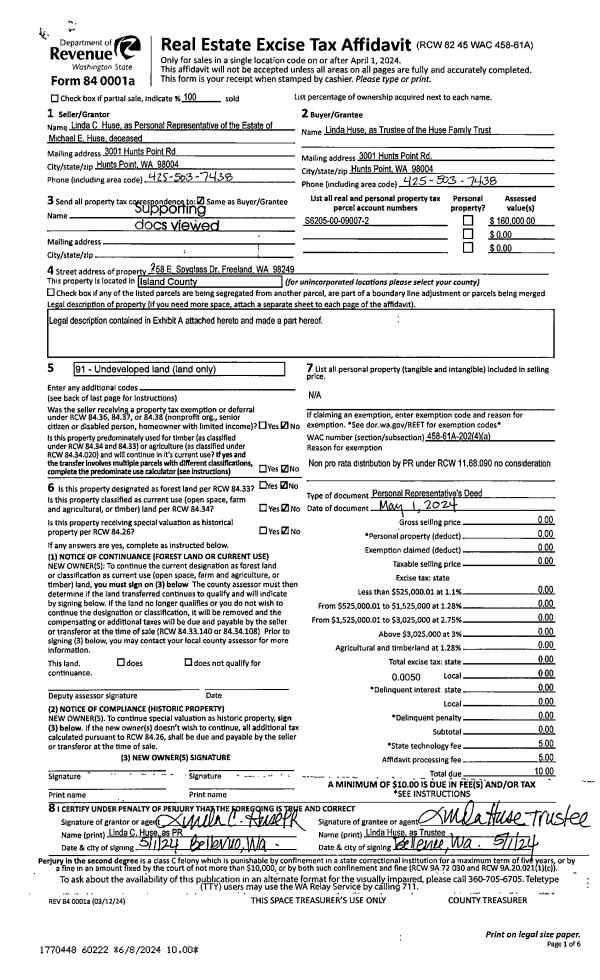
Property
Account |
| Property ID: | 600950 | Abbreviated Legal Description: | N/2 NE SE SW TGW EZS FR 058-2750 REL EZS AF#92012364 REL EZS AF#92012228 |
| Geographic ID: | R32902-126-2810 | Agent Code: | |
| Type: | Real | | |
| Tax Area: | 712 - APPRAISER-S Whid Schl Dist, outside Langley, improved, greater than 1 acre | Land Use Code | 11 |
| Open Space: | N | DFL | N |
| Historic Property: | N | Remodel Property: | N |
| Multi-Family Redevelopment: | N | | |
| Township: | 29 | Section: | 02 |
| Range: | R3 |
Location |
| Address: | 4180 WELCOME RD LANGLEY, WA 98260 | Mapsco: | |
| Neighborhood: | Cycle 4 | Map ID: | 718 |
| Neighborhood CD: | 4 |
Owner |
| Name: | BELSHE, JASON | Owner ID: | 310366 |
| Mailing Address: | JESSICA BELSHE 5280 FOXGLOVE LN LANGLEY, WA 98260 | % Ownership: | 100.0000000000% |
| | | Exemptions: | |
Taxes and Assessment Details
Values
| (+) Improvement Homesite Value: | + | $0 | |
| (+) Improvement Non-Homesite Value: | + | $152,407 | |
| (+) Land Homesite Value: | + | $0 | |
| (+) Land Non-Homesite Value: | + | $370,000 | |
| (+) Curr Use (HS): | + | $0 | $0 |
| (+) Curr Use (NHS): | + | $0 | $0 |
| | | -------------------------- | |
| (=) Market Value: | = | $522,407 | |
| (–) Productivity Loss: | – | $0 | |
| | | -------------------------- | |
| (=) Subtotal: | = | $522,407 | |
| (+) Senior Appraised Value: | + | $0 | |
| (+) Non-Senior Appraised Value: | + | $522,407 | |
| | | -------------------------- | |
| (=) Total Appraised Value: | = | $522,407 | |
| (–) Senior Exemption Loss: | – | $0 | |
| (–) Exemption Loss: | – | $0 | |
| | | -------------------------- | |
| (=) Taxable Value: | = | $522,407 | |
Taxing Jurisdiction
| Owner: | BELSHE, JASON | | |
| % Ownership: | 100.0000000000% | | |
| Total Value: | $522,407 | | |
| Tax Area: | 712 - APPRAISER-S Whid Schl Dist, outside Langley, improved, greater than 1 acre |
| CF | Conservation Futures | 0.0316035091 | $522,407 | $522,407 | $16.51 | | |
| FIRE3 | Fire & Rescue Dist #3 S Whidbey GEN | 1.2004855531 | $522,407 | $522,407 | $627.14 | | |
| HOBOND | Hospital BOND | 0.1910887512 | $522,407 | $522,407 | $99.83 | | |
| HOGEN | Hospital GEN | 0.3902502903 | $522,407 | $522,407 | $203.87 | | |
| CE | County Current Expense | 0.3708482477 | $522,407 | $522,407 | $193.73 | | |
| CR | County Roads | 0.4584763726 | $522,407 | $522,407 | $239.51 | | |
| ISLANDEMS | Hospital GEN (EMS) | 0.5000000000 | $522,407 | $522,407 | $261.20 | | |
| LIB | Library Sno-Isle GEN | 0.3153421757 | $522,407 | $522,407 | $164.74 | | |
| PORTWHID | Port of S Whidbey GEN | 0.1094540357 | $522,407 | $522,407 | $57.18 | | |
| SCH206BOND | School 206 BOND | 0.3161759235 | $522,407 | $522,407 | $165.17 | | |
| SCH206MO | School 206 Enrichment | 0.4547169547 | $522,407 | $522,407 | $237.55 | | |
| ST | State School | 1.3035497053 | $522,407 | $522,407 | $680.98 | | |
| ST2 | State School Part 2 | 0.8169543533 | $522,407 | $522,407 | $426.78 | | |
| SWHIDPRBD | P & R S Whidbey BOND | 0.0152817568 | $522,407 | $522,407 | $7.98 | | |
| SWHIDPRBD2 | P & R S Whidbey BOND2 | 0.0138911264 | $522,407 | $522,407 | $7.26 | | |
| SWHIDPRMT | P & R S Whidbey GEN | 0.2053334452 | $522,407 | $522,407 | $107.27 | | |
| | Total Tax Rate: | 6.6934522006 | | | | | |
| | | | | Taxes w/Current Exemptions: | $3,496.70 | | |
| | | | | Taxes w/o Exemptions: | $3,496.70 | | |
Improvement / Building
| Improvement #1: | RESIDENTIAL | State Code: | Y | 1260.0 sqft | Value: | $152,407 |
| Bathrooms: | 1 | Bedrooms: | 2 | | Ceiling: | DRYWALL PAINTED | Exterior Wall/Cover: | PLY/HARDBOARD T-111 | | Floor Covering: | CARPET/VINYL 80-20 | Floor Structure: | SLAB ON GRADE | | Foundation: | CONCRETE | Heating: | WALL HEAT ELECTRIC | | Interior Finish: | DRYWALL PAINT | Plumbing Fixture Cnt: | 6 | | Roof Slope: | 4" IN 12" | Roof Structure/Cover: | CJ ASPHALT |
|
| | Type | Description | Class CD | Sub Class CD | Year Built | Area |
| | BAS | BASE/MAIN FLOOR | 3 | 0 | 1993 | 1260.0 |
| | OP3 | OPEN PORCH W/ROOF | 3 | 0 | 1993 | 60.0 |
Sketch
Property Image
Land
| 1 | 32 | AC (03.01-09.99) | 5.0000 | 0.00 | 0.00 | 0.00 | 1.00 | $370,000 | $0 |
Roll Value History
| 2026 | N/A | N/A | N/A | N/A | N/A |
| 2025 | $152,407 | $370,000 | $0 | $522,407 | $522,407 |
| 2024 | $154,488 | $350,000 | $0 | $504,488 | $504,488 |
| 2023 | $156,568 | $330,000 | $0 | $486,568 | $486,568 |
| 2022 | $143,662 | $280,000 | $0 | $423,662 | $423,662 |
| 2021 | $126,561 | $230,000 | $0 | $356,561 | $356,561 |
| 2020 | $120,337 | $190,000 | $0 | $310,337 | $310,337 |
| 2019 | $86,165 | $250,000 | $0 | $336,165 | $336,165 |
| 2018 | $86,444 | $210,000 | $0 | $296,444 | $296,444 |
| 2017 | $87,001 | $190,000 | $0 | $277,001 | $277,001 |
| 2016 | $88,117 | $165,000 | $0 | $253,117 | $253,117 |
| 2015 | $89,232 | $135,000 | $0 | $224,232 | $224,232 |
| 2014 | $77,481 | $118,800 | $0 | $196,281 | $196,281 |
| 2013 | $78,449 | $118,800 | $0 | $197,249 | $197,249 |
| 2012 | $79,418 | $118,800 | $0 | $198,218 | $198,218 |
| 2011 | $80,386 | $118,800 | $0 | $199,186 | $199,186 |
| 2010 | $77,552 | $118,800 | $0 | $196,352 | $196,352 |
| 2009 | $80,927 | $193,600 | $0 | $274,527 | $274,527 |
| 2008 | $71,051 | $240,000 | $0 | $311,051 | $311,051 |
| 2007 | $72,088 | $240,000 | $0 | $312,088 | $312,088 |
Deed and Sales History
| 1 | 10/12/2023 | WD | Warranty Deed | LINSE, SAMUEL B | BELSHE, JASON | | | $494,000.00 | 58250 | 4565748 |
| 2 | 12/13/2019 | QCD | Quit Claim Deed | LINSE, SAMUEL B | LINSE, SAMUEL B | | | $0.00 | 41553 | 4477913 |
| 3 | 04/19/2010 | WD | Warranty Deed | MCFEE, CHRIS | LINSE, SAMUEL B | | | $245,000.00 | 938 | 4272550 |
| 4 | 09/07/2006 | DECREE | Divorce Decree/Legal Separation | MCFEE, CHRIS | MCFEE, CHRIS | | | $0.00 | 63934 | 4181566 |
| 5 | 09/06/2005 | QCD | Quit Claim Deed | MCFEE, CHRIS | MCFEE, CHRIS | | | $69,500.00 | 55143 | 4150450 |
| 6 | 02/23/2000 | WD | Warranty Deed | SWENSON, LINDA R | MCFEE, CHRIS | | | $139,000.00 | 679 | 20003565 |
| 7 | 12/01/1992 | WD | Warranty Deed | WINTON, MICHAEL C | SWENSON, LINDA R | | | $40,000.00 | 24679 | 92023076 |
| 8 | 04/01/1990 | WD | Warranty Deed | GREY, CHARLES F | WINTON, MICHAEL C | | | $25,000.00 | 2786 | 90009097 |
| 9 | 02/01/1986 | WD | Warranty Deed | SWENSON, LINDA R | GREY, CHARLES F | | | $14,750.00 | 60299 | 86001479 |
| 10 | 06/01/1985 | QCD | Quit Claim Deed | SWENSON, LINDA R | SWENSON, LINDA R | | | $0.00 | 51550 | 85006214 |
| 11 | 05/01/1985 | WD | Warranty Deed | RODICK, NOBUKO T | SWENSON, LINDA R | | | $0.00 | 51372 | 85005577 |
| 12 | 11/01/1983 | QCD | Quit Claim Deed | Unknown | RODICK, NOBUKO T | | | $0.00 | 33550 | 418317 |
Payout Agreement
| No payout information available.. |