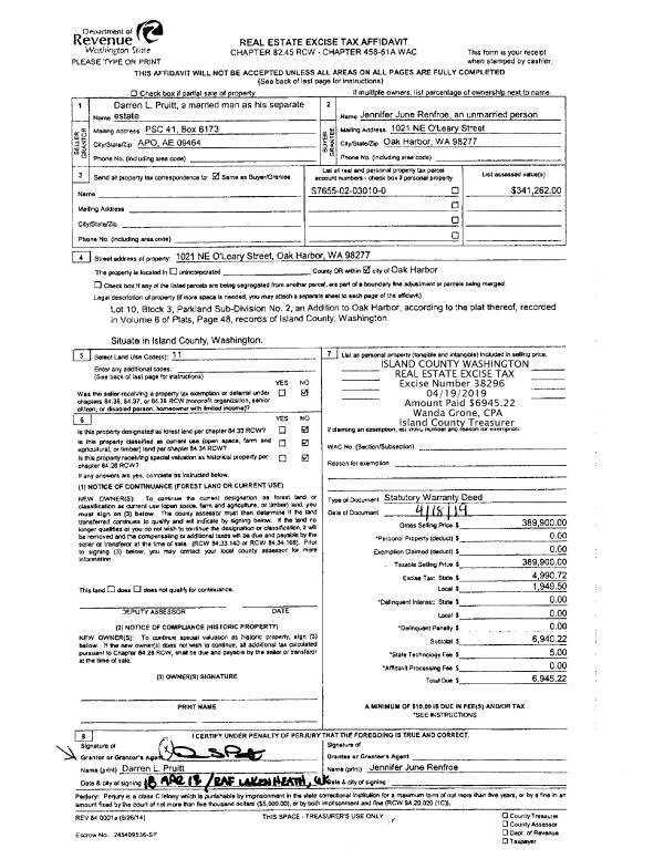
Property
Account |
| Property ID: | 600969 | Abbreviated Legal Description: | GL3 EX S654' ALSO EX PT LY N OF FOLL DESC LN: BG SECR SD SEC 23 N1*E ALG ELN SD SEC 23 2291.89' TPB N88*W1277' TO WLN GL3 & TERM SD LN ALSO EX CO RD R/W TGW & SUB EZ AF#94003262 |
| Geographic ID: | R23023-211-4640 | Agent Code: | |
| Type: | Real | | |
| Tax Area: | 712 - APPRAISER-S Whid Schl Dist, outside Langley, improved, greater than 1 acre | Land Use Code | 11 |
| Open Space: | N | DFL | N |
| Historic Property: | N | Remodel Property: | N |
| Multi-Family Redevelopment: | N | | |
| Township: | 30 | Section: | 23 |
| Range: | R2 |
Location |
| Address: | 3838 EAST HARBOR RD LANGLEY, WA 98260 | Mapsco: | |
| Neighborhood: | Cycle 3 | Map ID: | 406 |
| Neighborhood CD: | 3 |
Owner |
| Name: | LEITZ, ISAAC E | Owner ID: | 256654 |
| Mailing Address: | KAREN S LEITZ 3838 EAST HARBOR RD LANGLEY, WA 98260 | % Ownership: | 100.0000000000% |
| | | Exemptions: | |
Taxes and Assessment Details
Values
| (+) Improvement Homesite Value: | + | $0 | |
| (+) Improvement Non-Homesite Value: | + | $490,258 | |
| (+) Land Homesite Value: | + | $0 | |
| (+) Land Non-Homesite Value: | + | $1,000,000 | |
| (+) Curr Use (HS): | + | $0 | $0 |
| (+) Curr Use (NHS): | + | $0 | $0 |
| | | -------------------------- | |
| (=) Market Value: | = | $1,490,258 | |
| (–) Productivity Loss: | – | $0 | |
| | | -------------------------- | |
| (=) Subtotal: | = | $1,490,258 | |
| (+) Senior Appraised Value: | + | $0 | |
| (+) Non-Senior Appraised Value: | + | $1,490,258 | |
| | | -------------------------- | |
| (=) Total Appraised Value: | = | $1,490,258 | |
| (–) Senior Exemption Loss: | – | $0 | |
| (–) Exemption Loss: | – | $0 | |
| | | -------------------------- | |
| (=) Taxable Value: | = | $1,490,258 | |
Taxing Jurisdiction
| Owner: | LEITZ, ISAAC E | | |
| % Ownership: | 100.0000000000% | | |
| Total Value: | $1,490,258 | | |
| Tax Area: | 712 - APPRAISER-S Whid Schl Dist, outside Langley, improved, greater than 1 acre |
| CF | Conservation Futures | 0.0316035091 | $1,490,258 | $1,490,258 | $47.10 | | |
| FIRE3 | Fire & Rescue Dist #3 S Whidbey GEN | 1.2004855531 | $1,490,258 | $1,490,258 | $1,789.03 | | |
| HOBOND | Hospital BOND | 0.1910887512 | $1,490,258 | $1,490,258 | $284.77 | | |
| HOGEN | Hospital GEN | 0.3902502903 | $1,490,258 | $1,490,258 | $581.57 | | |
| CE | County Current Expense | 0.3708482477 | $1,490,258 | $1,490,258 | $552.66 | | |
| CR | County Roads | 0.4584763726 | $1,490,258 | $1,490,258 | $683.25 | | |
| ISLANDEMS | Hospital GEN (EMS) | 0.5000000000 | $1,490,258 | $1,490,258 | $745.13 | | |
| LIB | Library Sno-Isle GEN | 0.3153421757 | $1,490,258 | $1,490,258 | $469.94 | | |
| PORTWHID | Port of S Whidbey GEN | 0.1094540357 | $1,490,258 | $1,490,258 | $163.11 | | |
| SCH206BOND | School 206 BOND | 0.3161759235 | $1,490,258 | $1,490,258 | $471.18 | | |
| SCH206MO | School 206 Enrichment | 0.4547169547 | $1,490,258 | $1,490,258 | $677.65 | | |
| ST | State School | 1.3035497053 | $1,490,258 | $1,490,258 | $1,942.63 | | |
| ST2 | State School Part 2 | 0.8169543533 | $1,490,258 | $1,490,258 | $1,217.47 | | |
| SWHIDPRBD | P & R S Whidbey BOND | 0.0152817568 | $1,490,258 | $1,490,258 | $22.77 | | |
| SWHIDPRBD2 | P & R S Whidbey BOND2 | 0.0138911264 | $1,490,258 | $1,490,258 | $20.70 | | |
| SWHIDPRMT | P & R S Whidbey GEN | 0.2053334452 | $1,490,258 | $1,490,258 | $306.00 | | |
| | Total Tax Rate: | 6.6934522006 | | | | | |
| | | | | Taxes w/Current Exemptions: | $9,974.96 | | |
| | | | | Taxes w/o Exemptions: | $9,974.96 | | |
Improvement / Building
| Improvement #1: | RESIDENTIAL | State Code: | Y | 1946.0 sqft | Value: | $490,258 |
| Bathrooms: | 1.5 | Bedrooms: | 1 | | Ceiling: | DRYWALL PAINTED | Cooling: | HEAT PUMP/CONV/V | | Exterior Wall/Cover: | PLYWOOD/WOOD FRAME | Floor Covering: | HARDWOOD 100% | | Floor Structure: | SLAB ON GRADE | Foundation: | SLAB | | Interior Finish: | DRYWALL PAINT | Plumbing Fixture Cnt: | 11 | | Roof Slope: | 5" IN 12" | Roof Structure/Cover: | BEAM ALUMINUM HEAVY |
|
| | Type | Description | Class CD | Sub Class CD | Year Built | Area |
| | BAS | BASE/MAIN FLOOR | 5 | 0 | 2018 | 1946.0 |
| | UB1 | BASEMENT UNFINISHED 10" | 5 | 0 | 2018 | 1167.0 |
| | OWP | OPEN WOOD PORCH W/STEPS | 5 | 0 | 2018 | 336.0 |
Sketch
Property Image
Land
| 1 | HB | HIGH BLUFF | 0.0000 | 0.00 | 300.00 | 0.00 | 1.00 | $1,000,000 | $0 |
Roll Value History
| 2026 | N/A | N/A | N/A | N/A | N/A |
| 2025 | $490,258 | $1,000,000 | $0 | $1,490,258 | $1,490,258 |
| 2024 | $494,245 | $1,000,000 | $0 | $1,494,245 | $1,494,245 |
| 2023 | $498,230 | $1,000,000 | $0 | $1,498,230 | $1,498,230 |
| 2022 | $454,772 | $1,000,000 | $0 | $1,454,772 | $1,454,772 |
| 2021 | $398,579 | $700,000 | $0 | $1,098,579 | $1,098,579 |
| 2020 | $386,607 | $700,000 | $0 | $1,086,607 | $1,086,607 |
| 2019 | $305,122 | $300,000 | $0 | $605,122 | $605,122 |
| 2018 | $35,557 | $300,000 | $0 | $335,557 | $335,557 |
| 2017 | $0 | $250,000 | $0 | $250,000 | $250,000 |
| 2016 | $0 | $250,000 | $0 | $250,000 | $250,000 |
| 2015 | $0 | $250,000 | $0 | $250,000 | $250,000 |
| 2014 | $0 | $250,000 | $0 | $250,000 | $250,000 |
| 2013 | $0 | $202,902 | $0 | $202,902 | $202,902 |
| 2012 | $0 | $202,902 | $0 | $202,902 | $202,902 |
| 2011 | $0 | $202,902 | $0 | $202,902 | $202,902 |
| 2010 | $0 | $305,860 | $0 | $305,860 | $305,860 |
| 2009 | $0 | $394,086 | $0 | $394,086 | $394,086 |
| 2008 | $0 | $394,086 | $0 | $394,086 | $394,086 |
| 2007 | $0 | $394,086 | $0 | $394,086 | $394,086 |
Deed and Sales History
| 1 | 06/04/2011 | WD | Warranty Deed | SCHWAGER, BRUCE H | LEITZ, ISAAC E | | | $220,000.00 | 4615 | 4296293 |
| 2 | 09/01/1985 | QCD | Quit Claim Deed | SCHWAGER, JOHN A | SCHWAGER, BRUCE | | | $0.00 | 52671 | 85010576 |
| 3 | 01/01/1900 | REC | Real Estate Contract | Unknown | SCHWAGER, JOHN A | | | $0.00 | 22750 | 402675 |
Payout Agreement
| No payout information available.. |