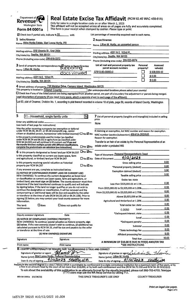
Property
Account |
| Property ID: | 601129 | Abbreviated Legal Description: | SE SW SW SE EX: BG SWCR SE SW SW SE E30' TPB N170.16' E320' S170.16' W320' TPB EX CROSBY RD FR 017-3050 & 017-3220 |
| Geographic ID: | R13328-025-3120 | Agent Code: | |
| Type: | Real | | |
| Tax Area: | 112 - APPRAISER-OH Schl Dist, outside OH, improved, greater than 1 acre | Land Use Code | 11 |
| Open Space: | N | DFL | N |
| Historic Property: | N | Remodel Property: | N |
| Multi-Family Redevelopment: | N | | |
| Township: | 33 | Section: | 28 |
| Range: | R1 |
Location |
| Address: | 1398 CROSBY RD OAK HARBOR, WA 98277 | Mapsco: | |
| Neighborhood: | Cycle 6 | Map ID: | 239 |
| Neighborhood CD: | 6 |
Owner |
| Name: | ANDERSON, KIERRA MARIE | Owner ID: | 305394 |
| Mailing Address: | KAIDEN THOMAS ANDERSON 1398 CRISBY RD OAK HARBOR, WA 98277 | % Ownership: | 100.0000000000% |
| | | Exemptions: | |
Taxes and Assessment Details
Values
| (+) Improvement Homesite Value: | + | $0 | |
| (+) Improvement Non-Homesite Value: | + | $218,911 | |
| (+) Land Homesite Value: | + | $0 | |
| (+) Land Non-Homesite Value: | + | $270,000 | |
| (+) Curr Use (HS): | + | $0 | $0 |
| (+) Curr Use (NHS): | + | $0 | $0 |
| | | -------------------------- | |
| (=) Market Value: | = | $488,911 | |
| (–) Productivity Loss: | – | $0 | |
| | | -------------------------- | |
| (=) Subtotal: | = | $488,911 | |
| (+) Senior Appraised Value: | + | $0 | |
| (+) Non-Senior Appraised Value: | + | $488,911 | |
| | | -------------------------- | |
| (=) Total Appraised Value: | = | $488,911 | |
| (–) Senior Exemption Loss: | – | $0 | |
| (–) Exemption Loss: | – | $0 | |
| | | -------------------------- | |
| (=) Taxable Value: | = | $488,911 | |
Taxing Jurisdiction
| Owner: | ANDERSON, KIERRA MARIE | | |
| % Ownership: | 100.0000000000% | | |
| Total Value: | $488,911 | | |
| Tax Area: | 112 - APPRAISER-OH Schl Dist, outside OH, improved, greater than 1 acre |
| CF | Conservation Futures | 0.0316035091 | $488,911 | $488,911 | $15.45 | | |
| CEM1 | Cemetery #1 | 0.0040320932 | $488,911 | $488,911 | $1.97 | | |
| FIRE2 | Fire & Rescue Dist #2 N Whidbey GEN | 0.5475949600 | $488,911 | $488,911 | $267.73 | | |
| HOBOND | Hospital BOND | 0.1910887512 | $488,911 | $488,911 | $93.43 | | |
| HOGEN | Hospital GEN | 0.3902502903 | $488,911 | $488,911 | $190.80 | | |
| CE | County Current Expense | 0.3708482477 | $488,911 | $488,911 | $181.31 | | |
| CR | County Roads | 0.4584763726 | $488,911 | $488,911 | $224.15 | | |
| ISLANDEMS | Hospital GEN (EMS) | 0.5000000000 | $488,911 | $488,911 | $244.46 | | |
| LIB | Library Sno-Isle GEN | 0.3153421757 | $488,911 | $488,911 | $154.17 | | |
| NWHIDPRMT | P & R N Whidbey GEN | 0.2004466701 | $488,911 | $488,911 | $98.00 | | |
| SCH201MO | School 201 Enrichment | 1.8559231640 | $488,911 | $488,911 | $907.38 | | |
| ST | State School | 1.3035497053 | $488,911 | $488,911 | $637.32 | | |
| ST2 | State School Part 2 | 0.8169543533 | $488,911 | $488,911 | $399.42 | | |
| | Total Tax Rate: | 6.9861102925 | | | | | |
| | | | | Taxes w/Current Exemptions: | $3,415.59 | | |
| | | | | Taxes w/o Exemptions: | $3,415.59 | | |
Improvement / Building
| Improvement #1: | RESIDENTIAL | State Code: | Y | 2128.0 sqft | Value: | $218,911 |
| Bathrooms: | 2 | Bedrooms: | 3 | | Ceiling: | DRYWALL PAINTED | Exterior Wall/Cover: | PLY/HARDBOARD T-111 | | Floor Covering: | HARDWOOD/CARP 60-40 | Floor Structure: | WOOD W/SUBFLOOR | | Foundation: | CONCRETE | Heating: | FHA GAS | | Interior Finish: | DRYWALL PAINT | Plumbing Fixture Cnt: | 9 | | Roof Slope: | 4" IN 12" | Roof Structure/Cover: | CJ ALUMINIUM HEAVY |
|
| | Type | Description | Class CD | Sub Class CD | Year Built | Area |
| | BAS | BASE/MAIN FLOOR | 3 | 0 | 1946 | 1036.0 |
| | UTY | STORAGE/UTILITY | 3 | 0 | 1946 | 56.0 |
| | OWP | OPEN WOOD PORCH W/STEPS | 3 | 0 | 1946 | 173.2 |
| | OWP | OPEN WOOD PORCH W/STEPS | 3 | 0 | 1946 | 129.5 |
| | DWN | DOWNSTAIRS LIVING AREA | 3 | 0 | 1946 | 1092.0 |
Sketch
Property Image
Land
| 1 | 17 | AC (01.01-02.00) | 1.1700 | 50965.20 | 0.00 | 0.00 | 1.00 | $270,000 | $0 |
Roll Value History
| 2026 | N/A | N/A | N/A | N/A | N/A |
| 2025 | $218,911 | $270,000 | $0 | $488,911 | $488,911 |
| 2024 | $222,265 | $260,000 | $0 | $482,265 | $482,265 |
| 2023 | $225,620 | $260,000 | $0 | $485,620 | $485,620 |
| 2022 | $189,118 | $220,000 | $0 | $409,118 | $409,118 |
| 2021 | $167,092 | $160,000 | $0 | $327,092 | $327,092 |
| 2020 | $163,845 | $150,000 | $0 | $313,845 | $313,845 |
| 2019 | $125,853 | $180,000 | $0 | $305,853 | $305,853 |
| 2018 | $126,335 | $160,000 | $0 | $286,335 | $286,335 |
| 2017 | $127,300 | $100,000 | $0 | $227,300 | $227,300 |
| 2016 | $114,503 | $100,000 | $0 | $214,503 | $214,503 |
| 2015 | $116,265 | $100,000 | $0 | $216,265 | $216,265 |
| 2014 | $118,027 | $90,000 | $0 | $208,027 | $208,027 |
| 2013 | $119,789 | $90,000 | $0 | $209,789 | $209,789 |
| 2012 | $121,550 | $80,750 | $0 | $202,300 | $202,300 |
| 2011 | $123,311 | $95,000 | $0 | $218,311 | $218,311 |
| 2010 | $120,201 | $95,000 | $0 | $215,201 | $215,201 |
| 2009 | $125,647 | $105,000 | $0 | $230,647 | $230,647 |
| 2008 | $132,538 | $84,700 | $0 | $217,238 | $217,238 |
| 2007 | $134,290 | $84,700 | $0 | $218,990 | $218,990 |
Deed and Sales History
| 1 | 08/08/2022 | QCD | Quit Claim Deed | ANDERSON, KIERRA MARIE | ANDERSON, KIERRA MARIE | | | $0.00 | 54077 | 4549357 |
| 2 | 04/13/2022 | PRD | Personal Representatives Deed | ANDERSON, JACOB | ANDERSON, KIERRA MARIE | | | $0.00 | 52704 | 4543343 |
| 3 | 08/15/2008 | DECREE | Divorce Decree/Legal Separation | ANDERSON, JACOB T | ANDERSON, JACOB | | | $0.00 | 82315 | 4236012 |
| 4 | 07/21/2006 | WD | Warranty Deed | REHAUME, PATRICK W | ANDERSON, JACOB T | | | $245,000.00 | 63187 | 4176878 |
| 5 | 05/12/2005 | WD | Warranty Deed | PROPERTIES, SEATREE | REHAUME, PATRICK W | | | $192,250.00 | 52064 | 4133967 |
| 6 | 11/01/2002 | 5 | DNU - Marriage License/Name Change | BYRNE, SEAN P | PROPERTIES, SEATREE | | | $0.00 | 24701 | 4038336 |
| 7 | 08/18/1999 | QCD | Quit Claim Deed | NEWMAN ET AL, ROSE M | BYRNE, SEAN P | | | $0.00 | 93386 | 99019522 |
| 8 | 07/20/1999 | QCD | Quit Claim Deed | NEWMAN, ROSE M | NEWMAN ET AL, ROSE M | | | $0.00 | 92952 | 99017385 |
| 9 | 12/01/1993 | DECREE | Divorce Decree/Legal Separation | MCCORMICK, ROSE M | MCCORMICK, ROSE M | | | $0.00 | 65686 | 0 |
| 10 | 09/01/1989 | REC | Real Estate Contract | JAMES, GOLDA M | MCCORMICK, ROSE M | | | $17,900.00 | 94167 | 89013745 |
| 11 | 09/01/1989 | QCD | Quit Claim Deed | MCCORMICK, ROSE M | MCCORMICK, ROSE M | | | $0.00 | 94168 | 89013746 |
| 12 | 10/01/1988 | TRUSTEED | Trustee's Deed | JESMER, GLEN W | JAMES, GOLDA M | | | $0.00 | 83464 | 88012948 |
| 13 | 12/01/1986 | WD | Warranty Deed | BUCHANAN, CLARENCE R | JESMER, GLEN W | | | $9,000.00 | 63819 | 86016840 |
| 14 | 12/01/1985 | OTHER | Other - Misc. Documents | BUCHANAN, CLARENCE R | BUCHANAN, CLARENCE R | | | $0.00 | 61412 | 85003790 |
| 15 | 03/01/1985 | OTHER | Other - Misc. Documents | Unknown | BUCHANAN, CLARENCE R | | | $0.00 | 61084 | 0 |
| 16 | 01/01/1900 | OTHER | Other - Misc. Documents | MCCORMICK, ROSE M | NEWMAN, ROSE M | | | $0.00 | 0 | 0 |
Payout Agreement
| No payout information available.. |