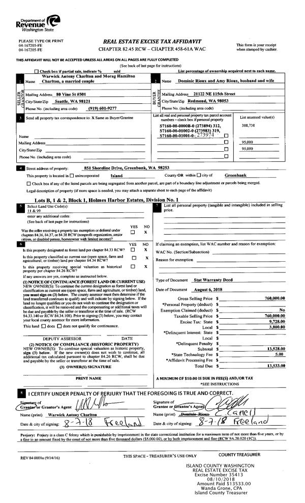
Property
Account |
| Property ID: | 601156 | Abbreviated Legal Description: | LOT 3 SP 85-17.33005.096-3850 V1 SP P388 AF#85011475 INCL ADJ TIDES TGW & SUB EZ AF#85014009 |
| Geographic ID: | R33005-078-3260 | Agent Code: | |
| Type: | Real | | |
| Tax Area: | 540 - APPRAISER-Stan/Cam Schl Dist, Special Dist, improved & less than 1 acre | Land Use Code | 11 |
| Open Space: | N | DFL | N |
| Historic Property: | N | Remodel Property: | N |
| Multi-Family Redevelopment: | N | | |
| Township: | 30 | Section: | 05 |
| Range: | R3 |
Location |
| Address: | 2740 SEA GARDEN LN CAMANO ISLAND, WA 98282 | Mapsco: | |
| Neighborhood: | Cycle 5 | Map ID: | 855 |
| Neighborhood CD: | 5 |
Owner |
| Name: | HORNER, DANIEL | Owner ID: | 285498 |
| Mailing Address: | TAMI HORNER 119 N 59TH ST SEATTLE, WA 98103 | % Ownership: | 100.0000000000% |
| | | Exemptions: | |
Taxes and Assessment Details
Values
| (+) Improvement Homesite Value: | + | $0 | |
| (+) Improvement Non-Homesite Value: | + | $360,471 | |
| (+) Land Homesite Value: | + | $0 | |
| (+) Land Non-Homesite Value: | + | $600,820 | |
| (+) Curr Use (HS): | + | $0 | $0 |
| (+) Curr Use (NHS): | + | $0 | $0 |
| | | -------------------------- | |
| (=) Market Value: | = | $961,291 | |
| (–) Productivity Loss: | – | $0 | |
| | | -------------------------- | |
| (=) Subtotal: | = | $961,291 | |
| (+) Senior Appraised Value: | + | $0 | |
| (+) Non-Senior Appraised Value: | + | $961,291 | |
| | | -------------------------- | |
| (=) Total Appraised Value: | = | $961,291 | |
| (–) Senior Exemption Loss: | – | $0 | |
| (–) Exemption Loss: | – | $0 | |
| | | -------------------------- | |
| (=) Taxable Value: | = | $961,291 | |
Taxing Jurisdiction
| Owner: | HORNER, DANIEL | | |
| % Ownership: | 100.0000000000% | | |
| Total Value: | $961,291 | | |
| Tax Area: | 540 - APPRAISER-Stan/Cam Schl Dist, Special Dist, improved & less than 1 acre |
| CF | Conservation Futures | 0.0316035091 | $961,291 | $961,291 | $30.38 | | |
| EMS1 | Fire & Rescue Dist #1 Camano GEN (EMS) | 0.3677864386 | $961,291 | $961,291 | $353.55 | | |
| FIRE1 | Fire & Rescue Dist #1 Camano GEN | 1.2502910536 | $961,291 | $961,291 | $1,201.89 | | |
| FIRE1BOND | Fire & Rescue Dist #1 Camano BOND | 0.1570001679 | $961,291 | $961,291 | $150.92 | | |
| CE | County Current Expense | 0.3708482477 | $961,291 | $961,291 | $356.49 | | |
| CR | County Roads | 0.4584763726 | $961,291 | $961,291 | $440.73 | | |
| LCIB | Library Sno-Isle BOND (Camano Island) | 0.0396325772 | $961,291 | $961,291 | $38.10 | | |
| LIB | Library Sno-Isle GEN | 0.3153421757 | $961,291 | $961,291 | $303.14 | | |
| SCH205_401 | School 205-401 Enrichment | 1.2698420524 | $961,291 | $961,291 | $1,220.69 | | |
| SCH205BOND | School 205-401 BOND | 0.9396497583 | $961,291 | $961,291 | $903.28 | | |
| ST | State School | 1.3035497053 | $961,291 | $961,291 | $1,253.09 | | |
| ST2 | State School Part 2 | 0.8169543533 | $961,291 | $961,291 | $785.33 | | |
| | Total Tax Rate: | 7.3209764117 | | | | | |
| | | | | Taxes w/Current Exemptions: | $7,037.59 | | |
| | | | | Taxes w/o Exemptions: | $7,037.59 | | |
Improvement / Building
| Improvement #1: | RESIDENTIAL | State Code: | Y | 2243.0 sqft | Value: | $360,471 |
| Bathrooms: | 2 | Bedrooms: | 2 | | Ceiling: | TONGUE & GROOVE | Cooling: | PACKAGE HEAT & COOL | | Exterior Wall/Cover: | WOOD SIDING | Floor Covering: | HARDWOOD/CARP 80-20 | | Floor Structure: | WOOD W/SUBFLOOR | Foundation: | CONCRETE | | Interior Finish: | DRYWALL PAINT | Plumbing Fixture Cnt: | 10 | | Roof Slope: | 10" IN 12" | Roof Structure/Cover: | BEAM ASPHALT |
|
| | Type | Description | Class CD | Sub Class CD | Year Built | Area |
| | BAS | BASE/MAIN FLOOR | 4 | 0 | 1988 | 968.5 |
| | DWN | DOWNSTAIRS LIVING AREA | 4 | 0 | 1988 | 968.5 |
| | OWP | OPEN WOOD PORCH W/STEPS | 4 | 0 | 1988 | 479.7 |
| | OWC | OPEN WOOD PORCH W/STEPS/ROOF/C | 4 | 0 | 1988 | 54.6 |
| | LOF | LOFT | 4 | 0 | 1988 | 306.0 |
Sketch
Property Image
Land
| 1 | HB | HIGH BLUFF | 1.0000 | 43560.00 | 82.00 | 0.00 | 1.00 | $600,000 | $0 |
| 2 | 55 | TIDES | 0.0000 | 0.00 | 82.00 | 0.00 | 1.00 | $820 | $0 |
Roll Value History
| 2026 | N/A | N/A | N/A | N/A | N/A |
| 2025 | $360,471 | $600,820 | $0 | $961,291 | $961,291 |
| 2024 | $365,137 | $600,820 | $0 | $965,957 | $965,957 |
| 2023 | $369,804 | $600,820 | $0 | $970,624 | $970,624 |
| 2022 | $339,096 | $550,820 | $0 | $889,916 | $889,916 |
| 2021 | $204,798 | $450,820 | $0 | $655,618 | $655,618 |
| 2020 | $199,391 | $385,820 | $0 | $585,211 | $585,211 |
| 2019 | $142,244 | $400,820 | $0 | $543,064 | $543,064 |
| 2018 | $124,346 | $360,820 | $0 | $485,166 | $485,166 |
| 2017 | $125,105 | $300,820 | $0 | $425,925 | $425,925 |
| 2016 | $126,729 | $300,820 | $0 | $427,549 | $427,549 |
| 2015 | $121,405 | $250,820 | $0 | $372,225 | $372,225 |
| 2014 | $123,047 | $250,820 | $0 | $373,867 | $373,867 |
| 2013 | $124,686 | $247,995 | $0 | $372,681 | $372,681 |
| 2012 | $126,327 | $247,995 | $0 | $374,322 | $374,322 |
| 2011 | $127,968 | $309,789 | $0 | $437,757 | $437,757 |
| 2010 | $134,496 | $309,789 | $0 | $444,285 | $444,285 |
| 2009 | $136,940 | $376,451 | $0 | $513,391 | $513,391 |
| 2008 | $138,618 | $376,451 | $0 | $515,069 | $515,069 |
| 2007 | $140,296 | $375,877 | $0 | $516,173 | $516,173 |
Deed and Sales History
| 1 | 06/19/2018 | WD | Warranty Deed | REESE, CARYL ANDERSON | HORNER, DANIEL | | | $650,000.00 | 34598 | 4446474 |
| 2 | 03/29/2017 | PRD | Personal Representatives Deed | REESE, WILLIAM H | REESE, CARYL ANDERSON | | | $0.00 | 29003 | 4421344 |
| 3 | 12/01/1985 | WD | Warranty Deed | RUSSELL, BROOKS P | REESE, WILLIAM H | | | $65,000.00 | 53538 | 85014008 |
| 4 | 01/01/1981 | TRUSTEED | Trustee's Deed | Unknown | RUSSELL, BROOKS P | | | $0.00 | 10284 | 378913 |
Payout Agreement
| No payout information available.. |