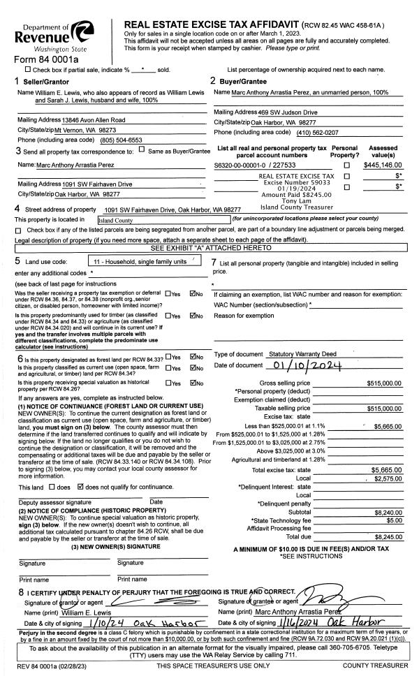
Property
Account |
| Property ID: | 601441 | Abbreviated Legal Description: | MABANA LOT 1 SP 85-05.33009.S7420-21 V1 SP P378 AF#85009746 |
| Geographic ID: | S7420-00-00021-1 | Agent Code: | |
| Type: | Real | | |
| Tax Area: | 542 - APPRAISER-Stan/Cam Schl Dist, Special Dist, improved, greater than 1 acre | Land Use Code | 11 |
| Open Space: | N | DFL | N |
| Historic Property: | N | Remodel Property: | N |
| Multi-Family Redevelopment: | N | | |
| Township: | | Section: | |
| Range: | |
Location |
| Address: | 3218 SOUTH CAMANO DR CAMANO ISLAND, WA 98282 | Mapsco: | |
| Neighborhood: | Cycle 5 | Map ID: | 862 |
| Neighborhood CD: | 5 |
Owner |
| Name: | BRAZG ET AL, ADAM | Owner ID: | 309675 |
| Mailing Address: | 2529 22ND AVE SOUTH SEATTLE, WA 98144 | % Ownership: | 100.0000000000% |
| | | Exemptions: | |
Taxes and Assessment Details
Values
| (+) Improvement Homesite Value: | + | $0 | |
| (+) Improvement Non-Homesite Value: | + | $174,272 | |
| (+) Land Homesite Value: | + | $0 | |
| (+) Land Non-Homesite Value: | + | $250,000 | |
| (+) Curr Use (HS): | + | $0 | $0 |
| (+) Curr Use (NHS): | + | $0 | $0 |
| | | -------------------------- | |
| (=) Market Value: | = | $424,272 | |
| (–) Productivity Loss: | – | $0 | |
| | | -------------------------- | |
| (=) Subtotal: | = | $424,272 | |
| (+) Senior Appraised Value: | + | $0 | |
| (+) Non-Senior Appraised Value: | + | $424,272 | |
| | | -------------------------- | |
| (=) Total Appraised Value: | = | $424,272 | |
| (–) Senior Exemption Loss: | – | $0 | |
| (–) Exemption Loss: | – | $0 | |
| | | -------------------------- | |
| (=) Taxable Value: | = | $424,272 | |
Taxing Jurisdiction
| Owner: | BRAZG ET AL, ADAM | | |
| % Ownership: | 100.0000000000% | | |
| Total Value: | $424,272 | | |
| Tax Area: | 542 - APPRAISER-Stan/Cam Schl Dist, Special Dist, improved, greater than 1 acre |
| CF | Conservation Futures | 0.0316035091 | $424,272 | $424,272 | $13.41 | | |
| EMS1 | Fire & Rescue Dist #1 Camano GEN (EMS) | 0.3677864386 | $424,272 | $424,272 | $156.04 | | |
| FIRE1 | Fire & Rescue Dist #1 Camano GEN | 1.2502910536 | $424,272 | $424,272 | $530.46 | | |
| FIRE1BOND | Fire & Rescue Dist #1 Camano BOND | 0.1570001679 | $424,272 | $424,272 | $66.61 | | |
| CE | County Current Expense | 0.3708482477 | $424,272 | $424,272 | $157.34 | | |
| CR | County Roads | 0.4584763726 | $424,272 | $424,272 | $194.52 | | |
| LCIB | Library Sno-Isle BOND (Camano Island) | 0.0396325772 | $424,272 | $424,272 | $16.81 | | |
| LIB | Library Sno-Isle GEN | 0.3153421757 | $424,272 | $424,272 | $133.79 | | |
| SCH205_401 | School 205-401 Enrichment | 1.2698420524 | $424,272 | $424,272 | $538.76 | | |
| SCH205BOND | School 205-401 BOND | 0.9396497583 | $424,272 | $424,272 | $398.67 | | |
| ST | State School | 1.3035497053 | $424,272 | $424,272 | $553.06 | | |
| ST2 | State School Part 2 | 0.8169543533 | $424,272 | $424,272 | $346.61 | | |
| | Total Tax Rate: | 7.3209764117 | | | | | |
| | | | | Taxes w/Current Exemptions: | $3,106.08 | | |
| | | | | Taxes w/o Exemptions: | $3,106.08 | | |
Improvement / Building
| Improvement #1: | RESIDENTIAL | State Code: | Y | 2223.0 sqft | Value: | $174,272 |
| Bathrooms: | 1 | Bedrooms: | 2 | | Ceiling: | DRYWALL PAINTED | Exterior Wall/Cover: | SHINGLE | | Floor Covering: | VINYL 100% | Floor Structure: | WOOD W/SUBFLOOR | | Foundation: | PIERS/CONCRETE | Heating: | WALL HEAT ELECTRIC | | Interior Finish: | DRYWALL PAINT | Plumbing Fixture Cnt: | 6 | | Roof Slope: | 3" IN 12" | Roof Structure/Cover: | ALUM LIGHT |
|
| | Type | Description | Class CD | Sub Class CD | Year Built | Area |
| | BAS | BASE/MAIN FLOOR | 2 | 0 | 1920 | 1427.0 |
| | UPS | UPPER STORY | 2 | 0 | 1920 | 796.0 |
| | UTY | STORAGE/UTILITY | 2 | 0 | 1920 | 864.0 |
| | UTY | STORAGE/UTILITY | 2 | 0 | 1920 | 1008.0 |
| | OWP | OPEN WOOD PORCH W/STEPS | 2 | 0 | 1920 | 265.5 |
| | OWP | OPEN WOOD PORCH W/STEPS | 2 | 0 | 1920 | 582.0 |
Sketch
Property Image
Land
| 1 | 17 | AC (01.01-02.00) | 1.7900 | 77972.40 | 0.00 | 0.00 | 1.00 | $250,000 | $0 |
Roll Value History
| 2026 | N/A | N/A | N/A | N/A | N/A |
| 2025 | $174,272 | $250,000 | $0 | $424,272 | $424,272 |
| 2024 | $177,741 | $230,000 | $0 | $407,741 | $407,741 |
| 2023 | $163,619 | $220,000 | $0 | $383,619 | $383,619 |
| 2022 | $150,995 | $200,000 | $0 | $350,995 | $350,995 |
| 2021 | $31,712 | $150,000 | $0 | $181,712 | $181,712 |
| 2020 | $31,489 | $150,000 | $0 | $181,489 | $181,489 |
| 2019 | $27,631 | $200,000 | $0 | $227,631 | $227,631 |
| 2018 | $27,631 | $150,000 | $0 | $177,631 | $177,631 |
| 2017 | $27,631 | $135,000 | $0 | $162,631 | $162,631 |
| 2016 | $27,631 | $75,000 | $0 | $102,631 | $102,631 |
| 2015 | $27,631 | $50,000 | $659 | $28,290 | $28,290 |
| 2014 | $27,631 | $50,000 | $659 | $28,290 | $28,290 |
| 2013 | $27,631 | $60,450 | $659 | $28,290 | $28,290 |
| 2012 | $27,631 | $60,450 | $659 | $28,290 | $28,290 |
| 2011 | $27,631 | $60,450 | $659 | $28,290 | $28,290 |
| 2010 | $27,303 | $60,450 | $659 | $27,962 | $27,962 |
| 2009 | $28,438 | $55,250 | $659 | $29,097 | $29,097 |
| 2008 | $29,518 | $55,250 | $659 | $30,177 | $30,177 |
| 2007 | $30,652 | $55,250 | $659 | $31,311 | $31,311 |
Deed and Sales History
| 1 | 08/14/2023 | WD | Warranty Deed | HEUSCHER, OTHMAR B | BRAZG ET AL, ADAM | | | $425,000.00 | 57632 | 4563549 |
| 2 | 07/11/2012 | PRD | Personal Representatives Deed | HEUSCHER, ESTATE OF LISELOTTE B | HEUSCHER, OTHMAR B | | | $0.00 | 8575 | 4321444 |
Payout Agreement
| No payout information available.. |