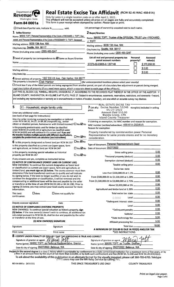
Property
Account |
| Property ID: | 601487 | Abbreviated Legal Description: | LOT A SP 84-45.33232.497-0800 V1 SP P309 AF#85000532 |
| Geographic ID: | R33232-503-0700 | Agent Code: | |
| Type: | Real | | |
| Tax Area: | 592 - APPRAISER-Stan/Cam Schl Dist, Special Dist, improved, greater than 1 acre | Land Use Code | 11 |
| Open Space: | N | DFL | N |
| Historic Property: | N | Remodel Property: | N |
| Multi-Family Redevelopment: | N | | |
| Township: | 32 | Section: | 32 |
| Range: | R3 |
Location |
| Address: | 387 N SUNRISE BLVD CAMANO ISLAND, WA 98282 | Mapsco: | |
| Neighborhood: | Cycle 5 | Map ID: | 998 |
| Neighborhood CD: | 5 |
Owner |
| Name: | CABE, JOHN T | Owner ID: | 62339 |
| Mailing Address: | CARRIE B CABE PO BOX 1574 STANWOOD, WA 98292-1574 | % Ownership: | 100.0000000000% |
| | | Exemptions: | |
Taxes and Assessment Details
Values
| (+) Improvement Homesite Value: | + | $0 | |
| (+) Improvement Non-Homesite Value: | + | $13,310 | |
| (+) Land Homesite Value: | + | $0 | |
| (+) Land Non-Homesite Value: | + | $360,000 | |
| (+) Curr Use (HS): | + | $0 | $0 |
| (+) Curr Use (NHS): | + | $0 | $0 |
| | | -------------------------- | |
| (=) Market Value: | = | $373,310 | |
| (–) Productivity Loss: | – | $0 | |
| | | -------------------------- | |
| (=) Subtotal: | = | $373,310 | |
| (+) Senior Appraised Value: | + | $0 | |
| (+) Non-Senior Appraised Value: | + | $373,310 | |
| | | -------------------------- | |
| (=) Total Appraised Value: | = | $373,310 | |
| (–) Senior Exemption Loss: | – | $0 | |
| (–) Exemption Loss: | – | $0 | |
| | | -------------------------- | |
| (=) Taxable Value: | = | $373,310 | |
Taxing Jurisdiction
| Owner: | CABE, JOHN T | | |
| % Ownership: | 100.0000000000% | | |
| Total Value: | $373,310 | | |
| Tax Area: | 592 - APPRAISER-Stan/Cam Schl Dist, Special Dist, improved, greater than 1 acre |
| CF | Conservation Futures | 0.0316035091 | $373,310 | $373,310 | $11.80 | | |
| EMS1 | Fire & Rescue Dist #1 Camano GEN (EMS) | 0.3677864386 | $373,310 | $373,310 | $137.30 | | |
| FIRE1 | Fire & Rescue Dist #1 Camano GEN | 1.2502910536 | $373,310 | $373,310 | $466.75 | | |
| FIRE1BOND | Fire & Rescue Dist #1 Camano BOND | 0.1570001679 | $373,310 | $373,310 | $58.61 | | |
| CE | County Current Expense | 0.3708482477 | $373,310 | $373,310 | $138.44 | | |
| CR | County Roads | 0.4584763726 | $373,310 | $373,310 | $171.15 | | |
| LCIB | Library Sno-Isle BOND (Camano Island) | 0.0396325772 | $373,310 | $373,310 | $14.80 | | |
| LIB | Library Sno-Isle GEN | 0.3153421757 | $373,310 | $373,310 | $117.72 | | |
| SCH205_401 | School 205-401 Enrichment | 1.2698420524 | $373,310 | $373,310 | $474.04 | | |
| SCH205BOND | School 205-401 BOND | 0.9396497583 | $373,310 | $373,310 | $350.78 | | |
| ST | State School | 1.3035497053 | $373,310 | $373,310 | $486.63 | | |
| ST2 | State School Part 2 | 0.8169543533 | $373,310 | $373,310 | $304.98 | | |
| | Total Tax Rate: | 7.3209764117 | | | | | |
| | | | | Taxes w/Current Exemptions: | $2,733.00 | | |
| | | | | Taxes w/o Exemptions: | $2,733.00 | | |
Improvement / Building
| Improvement #1: | MANUFACTURED HOME | State Code: | Y | 1152.0 sqft | Value: | $13,310 |
| Bathrooms: | 0 | Bedrooms: | 0 | | Ceiling: | PLASTER PAINTED | Cooling: | EVAP NO DUCT | | Exterior Wall/Cover: | VINYL | Floor Covering: | CARPET 100% | | Floor Structure: | SLAB ON GRADE | Foundation: | SLAB | | Heating: | FHA ELECTRIC | Interior Finish: | PLASTER | | Plumbing Fixture Cnt: | 1 | Roof Slope: | FLAT | | Roof Structure/Cover: | CJ ALUMINIUM HEAVY |   |   |
|
Sketch
Property Image
Land
| 1 | 32 | AC (03.01-09.99) | 4.9800 | 0.00 | 0.00 | 0.00 | 1.00 | $360,000 | $0 |
Roll Value History
| 2026 | N/A | N/A | N/A | N/A | N/A |
| 2025 | $13,310 | $360,000 | $0 | $373,310 | $373,310 |
| 2024 | $14,641 | $340,000 | $0 | $354,641 | $354,641 |
| 2023 | $13,889 | $320,000 | $0 | $333,889 | $333,889 |
| 2022 | $13,100 | $300,000 | $0 | $313,100 | $313,100 |
| 2021 | $10,765 | $230,000 | $0 | $240,765 | $240,765 |
| 2020 | $10,838 | $190,000 | $0 | $200,838 | $200,838 |
| 2019 | $9,146 | $220,000 | $0 | $229,146 | $229,146 |
| 2018 | $9,451 | $190,000 | $0 | $199,451 | $199,451 |
| 2017 | $10,061 | $150,000 | $0 | $160,061 | $160,061 |
| 2016 | $10,671 | $135,000 | $0 | $145,671 | $145,671 |
| 2015 | $25,558 | $135,000 | $0 | $160,558 | $160,558 |
| 2014 | $26,632 | $135,000 | $0 | $161,632 | $161,632 |
| 2013 | $27,707 | $111,552 | $0 | $139,259 | $139,259 |
| 2012 | $28,781 | $111,552 | $0 | $140,333 | $140,333 |
| 2011 | $29,855 | $139,440 | $0 | $169,295 | $169,295 |
| 2010 | $27,717 | $139,440 | $0 | $167,157 | $167,157 |
| 2009 | $29,634 | $159,360 | $0 | $188,994 | $188,994 |
| 2008 | $30,879 | $159,360 | $0 | $190,239 | $190,239 |
| 2007 | $32,124 | $159,360 | $0 | $191,484 | $191,484 |
Deed and Sales History
| 1 | 01/01/1997 | 5 | DNU - Marriage License/Name Change | CABE, JOHN T | CABE, JOHN T | | | $0.00 | 70032 | 0 |
| 2 | 04/01/1985 | OTHER | Other - Misc. Documents | CABE, JOHN T | CABE, JOHN T | | | $0.00 | 11111111 | 0 |
| 3 | 04/01/1984 | OTHER | Other - Misc. Documents | Unknown | CABE, JOHN T | | | $0.00 | 60545 | 419196 |
Payout Agreement
| No payout information available.. |