Property
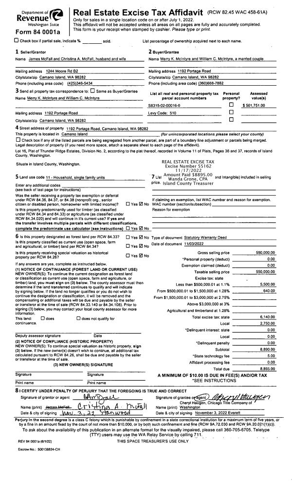
Account |
| Property ID: | 601511 | Abbreviated Legal Description: | LOT 15S SP 84-105.23113.341-4260 V1 SP P351 AF#85007295 |
| Geographic ID: | R23113-331-4250 | Agent Code: | |
| Type: | Real | | |
| Tax Area: | 512 - APPRAISER-Stan/Cam Schl Dist, improved, greater than 1 acre | Land Use Code | 11 |
| Open Space: | N | DFL | N |
| Historic Property: | N | Remodel Property: | N |
| Multi-Family Redevelopment: | N | | |
| Township: | 31 | Section: | 13 |
| Range: | R2 |
Location |
| Address: | 952 MICHAEL WAY CAMANO ISLAND, WA 98282 | Mapsco: | |
| Neighborhood: | Cycle 5 | Map ID: | 480 |
| Neighborhood CD: | 5 |
Owner |
| Name: | WAGNER, WILLIAM C | Owner ID: | 261536 |
| Mailing Address: | MILDRED M WAGNER 952 MICHAEL WAY CAMANO ISLAND, WA 98282 | % Ownership: | 100.0000000000% |
| | | Exemptions: | |
Taxes and Assessment Details
Values
| (+) Improvement Homesite Value: | + | $0 | |
| (+) Improvement Non-Homesite Value: | + | $505,884 | |
| (+) Land Homesite Value: | + | $0 | |
| (+) Land Non-Homesite Value: | + | $300,000 | |
| (+) Curr Use (HS): | + | $0 | $0 |
| (+) Curr Use (NHS): | + | $0 | $0 |
| | | -------------------------- | |
| (=) Market Value: | = | $805,884 | |
| (–) Productivity Loss: | – | $0 | |
| | | -------------------------- | |
| (=) Subtotal: | = | $805,884 | |
| (+) Senior Appraised Value: | + | $0 | |
| (+) Non-Senior Appraised Value: | + | $805,884 | |
| | | -------------------------- | |
| (=) Total Appraised Value: | = | $805,884 | |
| (–) Senior Exemption Loss: | – | $0 | |
| (–) Exemption Loss: | – | $0 | |
| | | -------------------------- | |
| (=) Taxable Value: | = | $805,884 | |
Taxing Jurisdiction
| Owner: | WAGNER, WILLIAM C | | |
| % Ownership: | 100.0000000000% | | |
| Total Value: | $805,884 | | |
| Tax Area: | 512 - APPRAISER-Stan/Cam Schl Dist, improved, greater than 1 acre |
| CF | Conservation Futures | 0.0316035091 | $805,884 | $805,884 | $25.47 | | |
| EMS1 | Fire & Rescue Dist #1 Camano GEN (EMS) | 0.3677864386 | $805,884 | $805,884 | $296.39 | | |
| FIRE1 | Fire & Rescue Dist #1 Camano GEN | 1.2502910536 | $805,884 | $805,884 | $1,007.59 | | |
| FIRE1BOND | Fire & Rescue Dist #1 Camano BOND | 0.1570001679 | $805,884 | $805,884 | $126.52 | | |
| CE | County Current Expense | 0.3708482477 | $805,884 | $805,884 | $298.86 | | |
| CR | County Roads | 0.4584763726 | $805,884 | $805,884 | $369.48 | | |
| LCIB | Library Sno-Isle BOND (Camano Island) | 0.0396325772 | $805,884 | $805,884 | $31.94 | | |
| LIB | Library Sno-Isle GEN | 0.3153421757 | $805,884 | $805,884 | $254.13 | | |
| SCH205_401 | School 205-401 Enrichment | 1.2698420524 | $805,884 | $805,884 | $1,023.35 | | |
| SCH205BOND | School 205-401 BOND | 0.9396497583 | $805,884 | $805,884 | $757.25 | | |
| ST | State School | 1.3035497053 | $805,884 | $805,884 | $1,050.51 | | |
| ST2 | State School Part 2 | 0.8169543533 | $805,884 | $805,884 | $658.37 | | |
| | Total Tax Rate: | 7.3209764117 | | | | | |
| | | | | Taxes w/Current Exemptions: | $5,899.86 | | |
| | | | | Taxes w/o Exemptions: | $5,899.86 | | |
Improvement / Building
| Improvement #1: | RESIDENTIAL | State Code: | Y | 2194.3 sqft | Value: | $505,884 |
| Bathrooms: | 2 | Bedrooms: | 3 | | Ceiling: | DRYWALL PAINTED | Exterior Wall/Cover: | CEMENT FIBER | | Floor Covering: | HARDWOOD/CARP 60-40 | Floor Structure: | WOOD W/SUBFLOOR | | Foundation: | CONCRETE | Heating: | FHA ELECTRIC | | Interior Finish: | DRYWALL PAINT | Plumbing Fixture Cnt: | 10 | | Roof Slope: | 6" IN 12" | Roof Structure/Cover: | CJ ASPHALT |
|
| | Type | Description | Class CD | Sub Class CD | Year Built | Area |
| | BAS | BASE/MAIN FLOOR | 4 | 0 | 2012 | 2194.3 |
| | OP1 | OPEN PORCH SLAB | 4 | 0 | 2012 | 300.0 |
| | OWC | OPEN WOOD PORCH W/STEPS/ROOF/C | 4 | 0 | 2012 | 234.0 |
| | AGR | ATTACHED GARAGE | 4 | 0 | 2012 | 594.5 |
| | UTY | STORAGE/UTILITY | 4 | 0 | 2012 | 264.0 |
Sketch
Property Image
Land
| 1 | 18 | AC (02.01-03.00) | 0.0000 | 0.00 | 0.00 | 0.00 | 1.00 | $300,000 | $0 |
Roll Value History
| 2026 | N/A | N/A | N/A | N/A | N/A |
| 2025 | $505,884 | $300,000 | $0 | $805,884 | $805,884 |
| 2024 | $509,997 | $280,000 | $0 | $789,997 | $789,997 |
| 2023 | $514,110 | $270,000 | $0 | $784,110 | $784,110 |
| 2022 | $469,250 | $260,000 | $0 | $729,250 | $729,250 |
| 2021 | $392,066 | $180,000 | $0 | $572,066 | $572,066 |
| 2020 | $381,007 | $150,000 | $0 | $531,007 | $531,007 |
| 2019 | $287,382 | $200,000 | $0 | $487,382 | $487,382 |
| 2018 | $288,152 | $150,000 | $0 | $438,152 | $438,152 |
| 2017 | $289,694 | $135,000 | $0 | $424,694 | $424,694 |
| 2016 | $292,776 | $100,000 | $0 | $392,776 | $392,776 |
| 2015 | $295,415 | $89,600 | $0 | $385,015 | $385,015 |
| 2014 | $298,441 | $89,600 | $0 | $388,041 | $388,041 |
| 2013 | $290,523 | $112,000 | $0 | $402,523 | $402,523 |
| 2012 | $221,292 | $112,000 | $0 | $333,292 | $333,292 |
| 2011 | $0 | $112,000 | $0 | $112,000 | $112,000 |
| 2010 | $0 | $112,000 | $0 | $112,000 | $112,000 |
| 2009 | $0 | $135,000 | $0 | $135,000 | $135,000 |
| 2008 | $0 | $145,000 | $0 | $145,000 | $145,000 |
| 2007 | $0 | $140,000 | $0 | $140,000 | $140,000 |
Deed and Sales History
| 1 | 04/10/2013 | WD | Warranty Deed | GA POWELL CONSTRUCTION INC | WAGNER, WILLIAM C | | | $359,000.00 | 11048 | 4337982 |
| 2 | 02/12/2010 | WD | Warranty Deed | SMERSH, JULIE | GA POWELL CONSTRUCTION INC, | | | $95,000.00 | 430 | 4269418 |
| 3 | 03/10/2006 | DECREE | Divorce Decree/Legal Separation | BURGER, FREDERICK F | SMERSH, JULIE | | | $0.00 | 61813 | 4172643 |
| 4 | 10/01/1988 | WD | Warranty Deed | MCDOUGALL, W J | BURGER, FREDERICK F | | | $22,250.00 | 83767 | 88014012 |
| 5 | 01/01/1900 | OTHER | Other - Misc. Documents | Unknown | MCDOUGALL, W J | | | $0.00 | 0 | 0 |
Payout Agreement
| No payout information available.. |