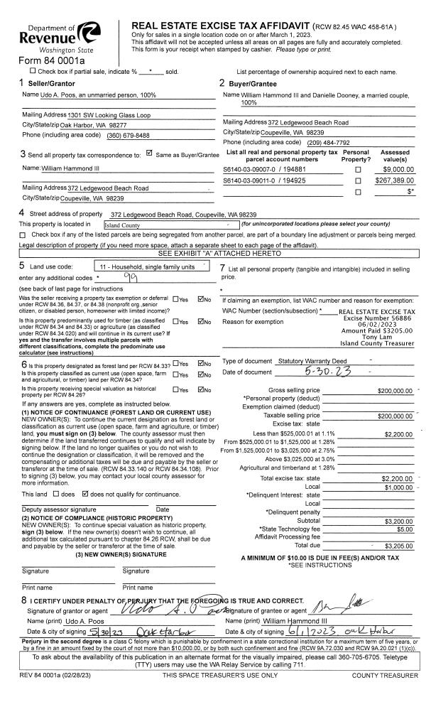
Property
Account |
| Property ID: | 601593 | Abbreviated Legal Description: | LOT A SP 84-127.33218.013-2440 V1 SP P361 AF#85007909 |
| Geographic ID: | R33218-021-2580 | Agent Code: | |
| Type: | Real | | |
| Tax Area: | 510 - APPRAISER-Stan/Cam Schl Dist, improved & 1 acre or less | Land Use Code | 11 |
| Open Space: | N | DFL | N |
| Historic Property: | N | Remodel Property: | N |
| Multi-Family Redevelopment: | N | | |
| Township: | 32 | Section: | 18 |
| Range: | R3 |
Location |
| Address: | 182 UTSALADY RD CAMANO ISLAND, WA 98282 | Mapsco: | |
| Neighborhood: | North Camano | Map ID: | 957 |
| Neighborhood CD: | 06-C |
Owner |
| Name: | DAHL, JAMIE M | Owner ID: | 295303 |
| Mailing Address: | CHRISTOPHER B DAHL 4508 PURDUE AVE NE SEATTLE, WA 98105 | % Ownership: | 100.0000000000% |
| | | Exemptions: | |
Taxes and Assessment Details
Values
| (+) Improvement Homesite Value: | + | $0 | |
| (+) Improvement Non-Homesite Value: | + | $854,093 | |
| (+) Land Homesite Value: | + | $0 | |
| (+) Land Non-Homesite Value: | + | $420,000 | |
| (+) Curr Use (HS): | + | $0 | $0 |
| (+) Curr Use (NHS): | + | $0 | $0 |
| | | -------------------------- | |
| (=) Market Value: | = | $1,274,093 | |
| (–) Productivity Loss: | – | $0 | |
| | | -------------------------- | |
| (=) Subtotal: | = | $1,274,093 | |
| (+) Senior Appraised Value: | + | $0 | |
| (+) Non-Senior Appraised Value: | + | $1,274,093 | |
| | | -------------------------- | |
| (=) Total Appraised Value: | = | $1,274,093 | |
| (–) Senior Exemption Loss: | – | $0 | |
| (–) Exemption Loss: | – | $0 | |
| | | -------------------------- | |
| (=) Taxable Value: | = | $1,274,093 | |
Taxing Jurisdiction
| Owner: | DAHL, JAMIE M | | |
| % Ownership: | 100.0000000000% | | |
| Total Value: | $1,274,093 | | |
| Tax Area: | 510 - APPRAISER-Stan/Cam Schl Dist, improved & 1 acre or less |
| CF | Conservation Futures | 0.0316035091 | $1,274,093 | $1,274,093 | $40.27 | | |
| EMS1 | Fire & Rescue Dist #1 Camano GEN (EMS) | 0.3677864386 | $1,274,093 | $1,274,093 | $468.59 | | |
| FIRE1 | Fire & Rescue Dist #1 Camano GEN | 1.2502910536 | $1,274,093 | $1,274,093 | $1,592.99 | | |
| FIRE1BOND | Fire & Rescue Dist #1 Camano BOND | 0.1570001679 | $1,274,093 | $1,274,093 | $200.03 | | |
| CE | County Current Expense | 0.3708482477 | $1,274,093 | $1,274,093 | $472.50 | | |
| CR | County Roads | 0.4584763726 | $1,274,093 | $1,274,093 | $584.14 | | |
| LCIB | Library Sno-Isle BOND (Camano Island) | 0.0396325772 | $1,274,093 | $1,274,093 | $50.50 | | |
| LIB | Library Sno-Isle GEN | 0.3153421757 | $1,274,093 | $1,274,093 | $401.78 | | |
| SCH205_401 | School 205-401 Enrichment | 1.2698420524 | $1,274,093 | $1,274,093 | $1,617.90 | | |
| SCH205BOND | School 205-401 BOND | 0.9396497583 | $1,274,093 | $1,274,093 | $1,197.20 | | |
| ST | State School | 1.3035497053 | $1,274,093 | $1,274,093 | $1,660.84 | | |
| ST2 | State School Part 2 | 0.8169543533 | $1,274,093 | $1,274,093 | $1,040.88 | | |
| | Total Tax Rate: | 7.3209764117 | | | | | |
| | | | | Taxes w/Current Exemptions: | $9,327.62 | | |
| | | | | Taxes w/o Exemptions: | $9,327.62 | | |
Improvement / Building
| Improvement #1: | RESIDENTIAL | State Code: | Y | 3395.0 sqft | Value: | $854,093 |
| Bathrooms: | 2.5 | Bedrooms: | 2 | | Ceiling: | DRYWALL PAINTED | Exterior Wall/Cover: | CEMENT FIBER | | Floor Covering: | CERAMIC TILE/HWD 40/60 | Floor Structure: | WOOD W/SUBFLOOR | | Foundation: | CONCRETE | Heating: | FHA GAS | | Interior Finish: | DRYWALL PAINT | Plumbing Fixture Cnt: | 16 | | Roof Slope: | 5" IN 12" | Roof Structure/Cover: | CJ ASPHALT |
|
| | Type | Description | Class CD | Sub Class CD | Year Built | Area |
| | BAS | BASE/MAIN FLOOR | 5 | 0 | 2018 | 1808.0 |
| | UPS | UPPER STORY | 5 | 0 | 2018 | 672.0 |
| | BIG | BUILT IN GARAGE | 5 | 0 | 2018 | 506.0 |
| | DWN | DOWNSTAIRS LIVING AREA | 5 | 0 | 2018 | 915.0 |
| | OCP | OPEN CARPORT | 5 | 0 | 2018 | 288.0 |
| | BIG | BUILT IN GARAGE | 5 | 0 | 2018 | 672.0 |
| | OWP | OPEN WOOD PORCH W/STEPS | 5 | 0 | 2018 | 184.0 |
| | OWC | OPEN WOOD PORCH W/STEPS/ROOF/C | 5 | 0 | 2018 | 252.0 |
| | OP4 | OPEN PORCH W/CEILING-ROOF | 5 | 0 | 2018 | 72.0 |
| | OP1 | OPEN PORCH SLAB | 5 | 0 | 2018 | 272.0 |
| | BAI | BALCONY IRON RAIL | 5 | 0 | 2018 | 96.0 |
Sketch
Property Image
Land
| 1 | 15 | SQ (12001-21780) | 0.0000 | 0.00 | 0.00 | 0.00 | 1.00 | $420,000 | $0 |
Roll Value History
| 2026 | N/A | N/A | N/A | N/A | N/A |
| 2025 | $854,093 | $420,000 | $0 | $1,274,093 | $1,274,093 |
| 2024 | $860,983 | $410,000 | $0 | $1,270,983 | $1,270,983 |
| 2023 | $867,870 | $400,000 | $0 | $1,267,870 | $1,267,870 |
| 2022 | $792,116 | $360,000 | $0 | $1,152,116 | $1,152,116 |
| 2021 | $696,011 | $240,000 | $0 | $936,011 | $936,011 |
| 2020 | $593,856 | $200,000 | $0 | $793,856 | $793,856 |
| 2019 | $484,470 | $250,000 | $0 | $734,470 | $734,470 |
| 2018 | $215,357 | $150,000 | $0 | $365,357 | $365,357 |
| 2017 | $0 | $150,000 | $0 | $150,000 | $150,000 |
| 2016 | $0 | $150,000 | $0 | $150,000 | $150,000 |
| 2015 | $0 | $100,000 | $0 | $100,000 | $100,000 |
| 2014 | $0 | $100,000 | $0 | $100,000 | $100,000 |
| 2013 | $0 | $100,000 | $0 | $100,000 | $100,000 |
| 2012 | $0 | $100,000 | $0 | $100,000 | $100,000 |
| 2011 | $0 | $125,000 | $0 | $125,000 | $125,000 |
| 2010 | $0 | $125,000 | $0 | $125,000 | $125,000 |
| 2009 | $0 | $150,000 | $0 | $150,000 | $150,000 |
| 2008 | $0 | $150,000 | $0 | $150,000 | $150,000 |
| 2007 | $0 | $150,000 | $0 | $150,000 | $150,000 |
Deed and Sales History
| 1 | 07/20/2020 | WD | Warranty Deed | NICKELSON, DAN R | DAHL, JAMIE M | | | $837,000.00 | 43910 | 4491932 |
| 2 | 06/01/2007 | WD | Warranty Deed | HAFFT, DOREEN A | NICKELSON, DAN R | | | $155,000.00 | 71848 | 4203645 |
| 3 | 02/01/1998 | OTHER | Other - Misc. Documents | HAFFT, EDWARD B | HAFFT, DOREEN A | | | $0.00 | 67814 | 0 |
| 4 | 11/01/1984 | QCD | Quit Claim Deed | Unknown | HAFFT, EDWARD B | | | $0.00 | 43426 | 0 |
Payout Agreement
| No payout information available.. |