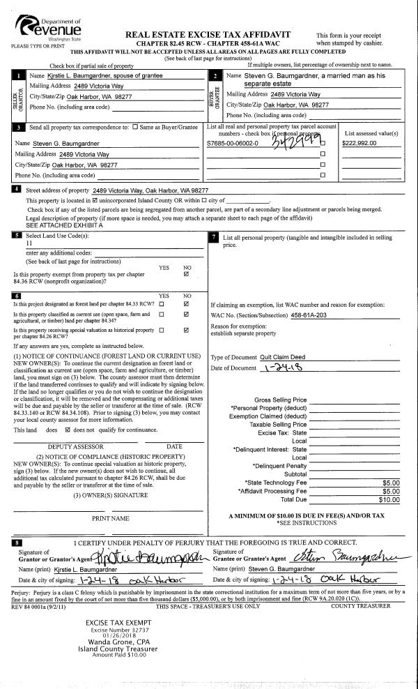
Property
Account |
| Property ID: | 601664 | Abbreviated Legal Description: | LOT 2 SP 83-50.23227.375-4150 V1 SP P386 AF#85011360 |
| Geographic ID: | R23227-385-4180 | Agent Code: | |
| Type: | Real | | |
| Tax Area: | 512 - APPRAISER-Stan/Cam Schl Dist, improved, greater than 1 acre | Land Use Code | 11 |
| Open Space: | N | DFL | N |
| Historic Property: | N | Remodel Property: | N |
| Multi-Family Redevelopment: | N | | |
| Township: | 32 | Section: | 27 |
| Range: | R2 |
Location |
| Address: | 681 SCANDIA PKWY CAMANO ISLAND, WA 98282 | Mapsco: | |
| Neighborhood: | North Camano | Map ID: | 571 |
| Neighborhood CD: | 06-C |
Owner |
| Name: | HUNT, STUART R | Owner ID: | 283505 |
| Mailing Address: | AGNES E HUNT 681 SCANDIA PARKWAY CAMANO ISLAND, WA 98282 | % Ownership: | 100.0000000000% |
| | | Exemptions: | |
Taxes and Assessment Details
Values
| (+) Improvement Homesite Value: | + | $0 | |
| (+) Improvement Non-Homesite Value: | + | $526,103 | |
| (+) Land Homesite Value: | + | $0 | |
| (+) Land Non-Homesite Value: | + | $300,000 | |
| (+) Curr Use (HS): | + | $0 | $0 |
| (+) Curr Use (NHS): | + | $0 | $0 |
| | | -------------------------- | |
| (=) Market Value: | = | $826,103 | |
| (–) Productivity Loss: | – | $0 | |
| | | -------------------------- | |
| (=) Subtotal: | = | $826,103 | |
| (+) Senior Appraised Value: | + | $0 | |
| (+) Non-Senior Appraised Value: | + | $826,103 | |
| | | -------------------------- | |
| (=) Total Appraised Value: | = | $826,103 | |
| (–) Senior Exemption Loss: | – | $0 | |
| (–) Exemption Loss: | – | $0 | |
| | | -------------------------- | |
| (=) Taxable Value: | = | $826,103 | |
Taxing Jurisdiction
| Owner: | HUNT, STUART R | | |
| % Ownership: | 100.0000000000% | | |
| Total Value: | $826,103 | | |
| Tax Area: | 512 - APPRAISER-Stan/Cam Schl Dist, improved, greater than 1 acre |
| CF | Conservation Futures | 0.0316035091 | $826,103 | $826,103 | $26.11 | | |
| EMS1 | Fire & Rescue Dist #1 Camano GEN (EMS) | 0.3677864386 | $826,103 | $826,103 | $303.83 | | |
| FIRE1 | Fire & Rescue Dist #1 Camano GEN | 1.2502910536 | $826,103 | $826,103 | $1,032.87 | | |
| FIRE1BOND | Fire & Rescue Dist #1 Camano BOND | 0.1570001679 | $826,103 | $826,103 | $129.70 | | |
| CE | County Current Expense | 0.3708482477 | $826,103 | $826,103 | $306.36 | | |
| CR | County Roads | 0.4584763726 | $826,103 | $826,103 | $378.75 | | |
| LCIB | Library Sno-Isle BOND (Camano Island) | 0.0396325772 | $826,103 | $826,103 | $32.74 | | |
| LIB | Library Sno-Isle GEN | 0.3153421757 | $826,103 | $826,103 | $260.51 | | |
| SCH205_401 | School 205-401 Enrichment | 1.2698420524 | $826,103 | $826,103 | $1,049.02 | | |
| SCH205BOND | School 205-401 BOND | 0.9396497583 | $826,103 | $826,103 | $776.25 | | |
| ST | State School | 1.3035497053 | $826,103 | $826,103 | $1,076.87 | | |
| ST2 | State School Part 2 | 0.8169543533 | $826,103 | $826,103 | $674.89 | | |
| | Total Tax Rate: | 7.3209764117 | | | | | |
| | | | | Taxes w/Current Exemptions: | $6,047.90 | | |
| | | | | Taxes w/o Exemptions: | $6,047.90 | | |
Improvement / Building
| Improvement #1: | RESIDENTIAL | State Code: | Y | 3619.4 sqft | Value: | $526,103 |
| Bathrooms: | 3.5 | Bedrooms: | 5 | | Ceiling: | DRYWALL PAINTED | Exterior Wall/Cover: | VINYL | | Floor Covering: | HARDWOOD/CARP 20-80 | Floor Structure: | WOOD W/SUBFLOOR | | Foundation: | CONCRETE | Heating: | FHA GAS | | Interior Finish: | DRYWALL PAINT | Plumbing Fixture Cnt: | 16 | | Roof Slope: | 10" IN 12" | Roof Structure/Cover: | CJ ASPHALT |
|
| | Type | Description | Class CD | Sub Class CD | Year Built | Area |
| | BAS | BASE/MAIN FLOOR | 3 | 0 | 2004 | 1325.8 |
| | DWN | DOWNSTAIRS LIVING AREA | 3 | 0 | 2004 | 1146.8 |
| | AGR | ATTACHED GARAGE | 3 | 0 | 2004 | 751.4 |
| | UPS | UPPER STORY | 3 | 0 | 2004 | 1146.8 |
| | ENP | ENCLOSED PORCH | 3 | 0 | 2004 | 224.0 |
| | OWR | OPEN WOOD PORCH W/STEPS/ROOF | 3 | 0 | 2004 | 558.2 |
| | OWP | OPEN WOOD PORCH W/STEPS | 3 | 0 | 2004 | 448.0 |
Sketch
Property Image
Land
| 1 | 17 | AC (01.01-02.00) | 1.2300 | 53578.80 | 0.00 | 0.00 | 1.00 | $300,000 | $0 |
Roll Value History
| 2026 | N/A | N/A | N/A | N/A | N/A |
| 2025 | $526,103 | $300,000 | $0 | $826,103 | $826,103 |
| 2024 | $532,275 | $290,000 | $0 | $822,275 | $822,275 |
| 2023 | $538,444 | $290,000 | $0 | $828,444 | $828,444 |
| 2022 | $480,664 | $260,000 | $0 | $740,664 | $740,664 |
| 2021 | $422,866 | $190,000 | $0 | $612,866 | $612,866 |
| 2020 | $412,777 | $150,000 | $0 | $562,777 | $562,777 |
| 2019 | $340,058 | $180,000 | $0 | $520,058 | $520,058 |
| 2018 | $341,021 | $150,000 | $0 | $491,021 | $491,021 |
| 2017 | $299,360 | $120,000 | $0 | $419,360 | $419,360 |
| 2016 | $271,481 | $130,000 | $0 | $401,481 | $401,481 |
| 2015 | $274,601 | $74,400 | $0 | $349,001 | $349,001 |
| 2014 | $277,722 | $74,400 | $0 | $352,122 | $352,122 |
| 2013 | $280,844 | $74,400 | $0 | $355,244 | $355,244 |
| 2012 | $283,964 | $74,400 | $0 | $358,364 | $358,364 |
| 2011 | $287,085 | $93,000 | $0 | $380,085 | $380,085 |
| 2010 | $292,327 | $93,000 | $0 | $385,327 | $385,327 |
| 2009 | $307,674 | $113,730 | $0 | $421,404 | $421,404 |
| 2008 | $307,730 | $100,000 | $0 | $407,730 | $407,730 |
| 2007 | $310,942 | $100,000 | $0 | $410,942 | $410,942 |
Deed and Sales History
| 1 | 01/05/2018 | WD | Warranty Deed | O KEEFE, DENNIS / DEBORAH | HUNT, STUART R | | | $520,000.00 | 32529 | 4437038 |
| 2 | 04/07/2003 | WD | Warranty Deed | FAMILY LLC, LOREN RANKIN | O KEEFE, DENNIS | | | $58,400.00 | 31508 | 4054925 |
| 3 | 12/30/1997 | QCD | Quit Claim Deed | LOREN, RANKIN F | FAMILY LLC, LOREN RANKIN | | | $0.00 | 82774 | 98014388 |
| 4 | 11/01/1982 | OTHER | Other - Misc. Documents | Unknown | LUNDIN, MARK S | | | $0.00 | 22815 | 402936 |
| 5 | 01/01/1900 | OTHER | Other - Misc. Documents | LUNDIN, MARK S | LOREN, RANKIN F | | | $0.00 | 82774 | 98014388 |
Payout Agreement
| No payout information available.. |