Property
Account |
| Property ID: | 60178 | Abbreviated Legal Description: | 4.4900 Acres ins Section 08s Township 30s Range R2s LOT A BLC AF#4516938;s |
| Geographic ID: | R23008-117-1020 | Agent Code: | |
| Type: | Real | | |
| Tax Area: | 312 - APPRAISER-Cpvl Schl Dist, outside Cpvl, improved, greater than 1 acre | Land Use Code | 11 |
| Open Space: | N | DFL | N |
| Historic Property: | N | Remodel Property: | N |
| Multi-Family Redevelopment: | N | | |
| Township: | 30 | Section: | 08 |
| Range: | R2 |
Location |
| Address: | 498 BAKKEN RD GREENBANK, WA 98253 | Mapsco: | |
| Neighborhood: | Cycle 3 | Map ID: | 363 |
| Neighborhood CD: | 3 |
Owner |
| Name: | BAKKEN, JOAN T | Owner ID: | 280640 |
| Mailing Address: | JOAN T BAKKEN TRUSTEE 1162 16TH AVE E SEATTLE, WA 98122 | % Ownership: | 100.0000000000% |
| | | Exemptions: | |
Taxes and Assessment Details
Values
| (+) Improvement Homesite Value: | + | $0 | |
| (+) Improvement Non-Homesite Value: | + | $76,455 | |
| (+) Land Homesite Value: | + | $0 | |
| (+) Land Non-Homesite Value: | + | $350,000 | |
| (+) Curr Use (HS): | + | $0 | $0 |
| (+) Curr Use (NHS): | + | $0 | $0 |
| | | -------------------------- | |
| (=) Market Value: | = | $426,455 | |
| (–) Productivity Loss: | – | $0 | |
| | | -------------------------- | |
| (=) Subtotal: | = | $426,455 | |
| (+) Senior Appraised Value: | + | $0 | |
| (+) Non-Senior Appraised Value: | + | $426,455 | |
| | | -------------------------- | |
| (=) Total Appraised Value: | = | $426,455 | |
| (–) Senior Exemption Loss: | – | $0 | |
| (–) Exemption Loss: | – | $0 | |
| | | -------------------------- | |
| (=) Taxable Value: | = | $426,455 | |
Taxing Jurisdiction
| Owner: | BAKKEN, JOAN T | | |
| % Ownership: | 100.0000000000% | | |
| Total Value: | $426,455 | | |
| Tax Area: | 312 - APPRAISER-Cpvl Schl Dist, outside Cpvl, improved, greater than 1 acre |
| CF | Conservation Futures | 0.0316035091 | $426,455 | $426,455 | $13.48 | | |
| CEM2 | Cemetery #2 | 0.0095056933 | $426,455 | $426,455 | $4.05 | | |
| FIRE5 | Fire & Rescue Dist #5 C Whidbey GEN | 1.2008080668 | $426,455 | $426,455 | $512.09 | | |
| FIRE5BOND | Fire & Rescue Dist #5 C Whidbey BOND | 0.1400090713 | $426,455 | $426,455 | $59.71 | | |
| HOBOND | Hospital BOND | 0.1910887512 | $426,455 | $426,455 | $81.49 | | |
| HOGEN | Hospital GEN | 0.3902502903 | $426,455 | $426,455 | $166.42 | | |
| CE | County Current Expense | 0.3708482477 | $426,455 | $426,455 | $158.15 | | |
| CR | County Roads | 0.4584763726 | $426,455 | $426,455 | $195.52 | | |
| ISLANDEMS | Hospital GEN (EMS) | 0.5000000000 | $426,455 | $426,455 | $213.23 | | |
| LIB | Library Sno-Isle GEN | 0.3153421757 | $426,455 | $426,455 | $134.48 | | |
| LIBCAP | Library Sno-Isle BOND (Cap Fac Imp Area) | 0.0543427938 | $426,455 | $426,455 | $23.17 | | |
| POCOUP | Port of Coupeville GEN | 0.1093371703 | $426,455 | $426,455 | $46.63 | | |
| POCOUPIDD | Port of Coupeville IDD | 0.3409740022 | $426,455 | $426,455 | $145.41 | | |
| COUPSDTECH | School 204 CP (TECH) | 0.7545480007 | $426,455 | $426,455 | $321.78 | | |
| SCH204MO | School 204 Enrichment | 0.6716186034 | $426,455 | $426,455 | $286.42 | | |
| ST | State School | 1.3035497053 | $426,455 | $426,455 | $555.91 | | |
| ST2 | State School Part 2 | 0.8169543533 | $426,455 | $426,455 | $348.39 | | |
| | Total Tax Rate: | 7.6592568070 | | | | | |
| | | | | Taxes w/Current Exemptions: | $3,266.33 | | |
| | | | | Taxes w/o Exemptions: | $3,266.33 | | |
Improvement / Building
| Improvement #1: | RESIDENTIAL | State Code: | Y | 655.7 sqft | Value: | $76,455 |
| Bathrooms: | 1 | Bedrooms: | 1 | | Ceiling: | DRYWALL PAINTED | Cooling: | HEAT PUMP/CONV/V | | Exterior Wall/Cover: | PLY/HARDBOARD T-111 | Floor Covering: | VINYL 100% | | Floor Structure: | WOOD W/SUBFLOOR | Foundation: | CONCRETE | | Interior Finish: | DRYWALL PAINT | Plumbing Fixture Cnt: | 5 | | Roof Slope: | 4" IN 12" | Roof Structure/Cover: | CJ ASPHALT |
|
| | Type | Description | Class CD | Sub Class CD | Year Built | Area |
| | BAS | BASE/MAIN FLOOR | 2 | 0 | 1961 | 655.7 |
| | UB6 | BASEMENT UNFINISHED 6" | 2 | 0 | 1961 | 655.7 |
| | OWP | OPEN WOOD PORCH W/STEPS | 2 | 0 | 1961 | 666.2 |
Sketch
Property Image
Land
| 1 | 32 | AC (03.01-09.99) | 4.4900 | 195584.40 | 0.00 | 0.00 | 1.00 | $350,000 | $0 |
Roll Value History
| 2026 | N/A | N/A | N/A | N/A | N/A |
| 2025 | $76,455 | $350,000 | $0 | $426,455 | $426,455 |
| 2024 | $78,072 | $340,000 | $0 | $418,072 | $418,072 |
| 2023 | $74,419 | $320,000 | $0 | $394,419 | $394,419 |
| 2022 | $65,282 | $260,000 | $0 | $325,282 | $325,282 |
| 2021 | $57,898 | $230,000 | $0 | $287,898 | $287,898 |
| 2020 | $56,760 | $180,000 | $0 | $236,760 | $236,760 |
| 2019 | $34,402 | $220,000 | $0 | $254,402 | $254,402 |
| 2018 | $34,588 | $170,000 | $0 | $204,588 | $204,588 |
| 2017 | $34,935 | $160,000 | $0 | $194,935 | $194,935 |
| 2016 | $33,474 | $120,000 | $0 | $153,474 | $153,474 |
| 2015 | $34,171 | $130,000 | $0 | $164,171 | $164,171 |
| 2014 | $34,870 | $125,000 | $0 | $159,870 | $159,870 |
| 2013 | $36,953 | $110,322 | $0 | $147,275 | $147,275 |
| 2012 | $37,677 | $110,322 | $0 | $147,999 | $147,999 |
| 2011 | $38,402 | $122,580 | $0 | $160,982 | $160,982 |
| 2010 | $45,599 | $122,580 | $0 | $168,179 | $168,179 |
| 2009 | $46,979 | $177,060 | $0 | $224,039 | $224,039 |
| 2008 | $47,748 | $153,225 | $0 | $200,973 | $200,973 |
| 2007 | $48,517 | $118,040 | $0 | $166,557 | $166,557 |
Deed and Sales History
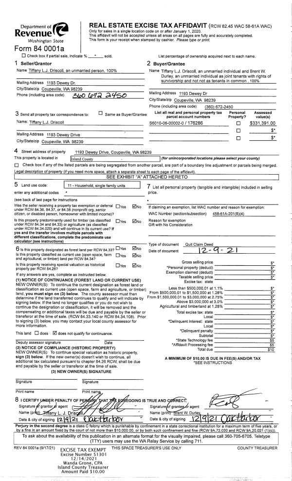
| 1 | 07/16/2021 | QCD | Quit Claim Deed | ESTATE OF PAUL BAKKEN | BAKKEN, PAUL R | | | $0.00 | 49472 | 4526003 |
| 2 | 06/07/2017 | QCD | Quit Claim Deed | BAKKEN TRUSTEE, JOAN T | BAKKEN, JOAN T | | | $0.00 | 29980 | 4425286 |
| 3 | 10/05/2007 | QCD | Quit Claim Deed | BAKKEN, HULDAH A | BAKKEN TRUSTEE, JOAN T | | | $0.00 | 73548 | 4214896 |
| 4 | 06/01/1985 | OTHER | Other - Misc. Documents | BAKKEN, STANLEY J | BAKKEN, HULDAH A | | | $0.00 | 61199 | 0 |
| 5 | 01/01/1900 | OTHER | Other - Misc. Documents | Unknown | BAKKEN, STANLEY J | | | $0.00 | 0 | 0 |
Payout Agreement
| No payout information available.. |