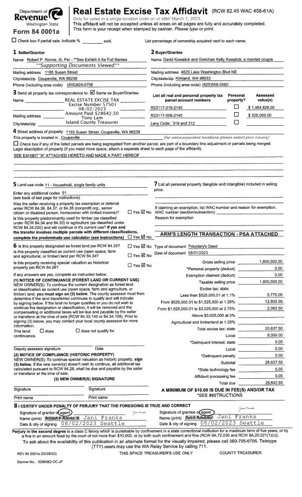
Property
Account |
| Property ID: | 601860 | Abbreviated Legal Description: | WOODSIDE NORTH CONDO APT 1211 1.08% INT |
| Geographic ID: | S8495-00-01211-0 | Agent Code: | |
| Type: | Real | | |
| Tax Area: | 100 - APPRAISER-OH Schl Dist, in OH | Land Use Code | 14 |
| Open Space: | N | DFL | N |
| Historic Property: | N | Remodel Property: | N |
| Multi-Family Redevelopment: | N | | |
| Township: | | Section: | |
| Range: | |
Location |
| Address: | 690 NW ATALANTA WAY BLDG E, UNIT E106 OAK HARBOR, WA 98277 | Mapsco: | |
| Neighborhood: | 4B*OH-woodside n | Map ID: | 253 |
| Neighborhood CD: | 4B*OHwdsdn |
Owner |
| Name: | BRIDGES, JESSE | Owner ID: | 305002 |
| Mailing Address: | 100 JOHNSON AVE PORT TOWNSEND, WA 98368 | % Ownership: | 100.0000000000% |
| | | Exemptions: | |
Taxes and Assessment Details
Values
| (+) Improvement Homesite Value: | + | $0 | |
| (+) Improvement Non-Homesite Value: | + | $160,011 | |
| (+) Land Homesite Value: | + | $0 | |
| (+) Land Non-Homesite Value: | + | $85,000 | |
| (+) Curr Use (HS): | + | $0 | $0 |
| (+) Curr Use (NHS): | + | $0 | $0 |
| | | -------------------------- | |
| (=) Market Value: | = | $245,011 | |
| (–) Productivity Loss: | – | $0 | |
| | | -------------------------- | |
| (=) Subtotal: | = | $245,011 | |
| (+) Senior Appraised Value: | + | $0 | |
| (+) Non-Senior Appraised Value: | + | $245,011 | |
| | | -------------------------- | |
| (=) Total Appraised Value: | = | $245,011 | |
| (–) Senior Exemption Loss: | – | $0 | |
| (–) Exemption Loss: | – | $0 | |
| | | -------------------------- | |
| (=) Taxable Value: | = | $245,011 | |
Taxing Jurisdiction
| Owner: | BRIDGES, JESSE | | |
| % Ownership: | 100.0000000000% | | |
| Total Value: | $245,011 | | |
| Tax Area: | 100 - APPRAISER-OH Schl Dist, in OH |
| CF | Conservation Futures | 0.0316035091 | $245,011 | $245,011 | $7.74 | | |
| CEM1 | Cemetery #1 | 0.0040320932 | $245,011 | $245,011 | $0.99 | | |
| COH | City of Oak Harbor | 2.3001546061 | $245,011 | $245,011 | $563.56 | | |
| OAKBOND | City of Oak Harbor BOND | 0.1926904192 | $245,011 | $245,011 | $47.21 | | |
| HOBOND | Hospital BOND | 0.1910887512 | $245,011 | $245,011 | $46.82 | | |
| HOGEN | Hospital GEN | 0.3902502903 | $245,011 | $245,011 | $95.62 | | |
| CE | County Current Expense | 0.3708482477 | $245,011 | $245,011 | $90.86 | | |
| ISLANDEMS | Hospital GEN (EMS) | 0.5000000000 | $245,011 | $245,011 | $122.51 | | |
| LIB | Library Sno-Isle GEN | 0.3153421757 | $245,011 | $245,011 | $77.26 | | |
| NWHIDPRMT | P & R N Whidbey GEN | 0.2004466701 | $245,011 | $245,011 | $49.11 | | |
| SCH201MO | School 201 Enrichment | 1.8559231640 | $245,011 | $245,011 | $454.72 | | |
| ST | State School | 1.3035497053 | $245,011 | $245,011 | $319.38 | | |
| ST2 | State School Part 2 | 0.8169543533 | $245,011 | $245,011 | $200.16 | | |
| | Total Tax Rate: | 8.4728839852 | | | | | |
| | | | | Taxes w/Current Exemptions: | $2,075.94 | | |
| | | | | Taxes w/o Exemptions: | $2,075.94 | | |
Improvement / Building
| Improvement #1: | RESIDENTIAL | State Code: | A1 | 1008.0 sqft | Value: | $160,011 |
| Bathrooms: | 2 | Bedrooms: | 2 | | Ceiling: | DRY WALL SPRAYED | Exterior Wall/Cover: | PLY/HARDBOARD T-111 | | Floor Covering: | CARPET/VINYL 80-20 | Floor Structure: | WOOD W/SUBFLOOR | | Foundation: | CONCRETE | Heating: | BASEBOARD ELECTRIC | | Interior Finish: | DRYWALL PAINT | Plumbing Fixture Cnt: | 9 | | Roof Slope: | 4" IN 12" | Roof Structure/Cover: | CJ ASPHALT |
|
| | Type | Description | Class CD | Sub Class CD | Year Built | Area |
| | BAS | BASE/MAIN FLOOR | 3 | 0 | 1985 | 1008.0 |
| | OP1 | OPEN PORCH SLAB | 3 | 0 | 1985 | 32.0 |
| | COMA | Common Area Improvement | 3 | 0 | 1985 | 0.0 |
Sketch
Property Image
Land
| 1 | 61 | MULTIPLE RESIDENCES | 0.0000 | 2424.00 | 0.00 | 0.00 | 1.00 | $85,000 | $0 |
Roll Value History
| 2026 | N/A | N/A | N/A | N/A | N/A |
| 2025 | $160,011 | $85,000 | $0 | $245,011 | $245,011 |
| 2024 | $165,363 | $90,000 | $0 | $255,363 | $255,363 |
| 2023 | $167,517 | $75,000 | $0 | $242,517 | $242,517 |
| 2022 | $153,745 | $60,000 | $0 | $213,745 | $213,745 |
| 2021 | $135,532 | $50,000 | $0 | $185,532 | $185,532 |
| 2020 | $89,650 | $35,000 | $0 | $124,650 | $124,650 |
| 2019 | $62,684 | $70,000 | $0 | $132,684 | $132,684 |
| 2018 | $62,907 | $65,000 | $0 | $127,907 | $127,907 |
| 2017 | $63,354 | $7,000 | $0 | $70,354 | $70,354 |
| 2016 | $64,248 | $7,000 | $0 | $71,248 | $71,248 |
| 2015 | $65,141 | $7,000 | $0 | $72,141 | $72,141 |
| 2014 | $57,773 | $6,968 | $0 | $64,741 | $64,741 |
| 2013 | $58,553 | $7,000 | $0 | $65,553 | $65,553 |
| 2012 | $60,111 | $7,000 | $0 | $67,111 | $67,111 |
| 2011 | $67,540 | $16,968 | $0 | $84,508 | $84,508 |
| 2010 | $70,254 | $13,429 | $0 | $83,683 | $83,683 |
| 2009 | $73,254 | $24,240 | $0 | $97,494 | $97,494 |
| 2008 | $75,123 | $31,512 | $0 | $106,635 | $106,635 |
| 2007 | $76,018 | $31,512 | $0 | $107,530 | $107,530 |
Deed and Sales History
| 1 | 02/15/2023 | WD | Warranty Deed | BLANCHARD, ALICE L | BRIDGES, JESSE | | | $0.00 | 55950 | 4557113 |
| 2 | 07/01/2022 | WD | Warranty Deed | BLANCHARD, ALICE | BRIDGES, JESSE | | | $0.00 | 53760 | 4548030 |
| 3 | 12/19/2001 | WD | Warranty Deed | DAUGHERTY, BURDON R | BLANCHARD, ALICE | | | $51,706.00 | 14795 | 4006289 |
| 4 | 11/01/1994 | QCD | Quit Claim Deed | DAUGHERTY, BURDON R | DAUGHERTY, BURDON R | | | $0.00 | 44804 | 94024531 |
| 5 | 03/01/1992 | QCD | Quit Claim Deed | DAUGHERTY, BURDON R | DAUGHERTY, BURDON R | | | $0.00 | 20925 | 92004730 |
| 6 | 12/01/1985 | WD | Warranty Deed | ALPHA, GROUP, I | DAUGHERTY, BURDON R | | | $38,250.00 | 53517 | 85013913 |
| 7 | 04/01/1983 | OTHER | Other - Misc. Documents | Unknown | ALPHA, GROUP, I | | | $0.00 | 31076 | 408757 |
Payout Agreement
| No payout information available.. |