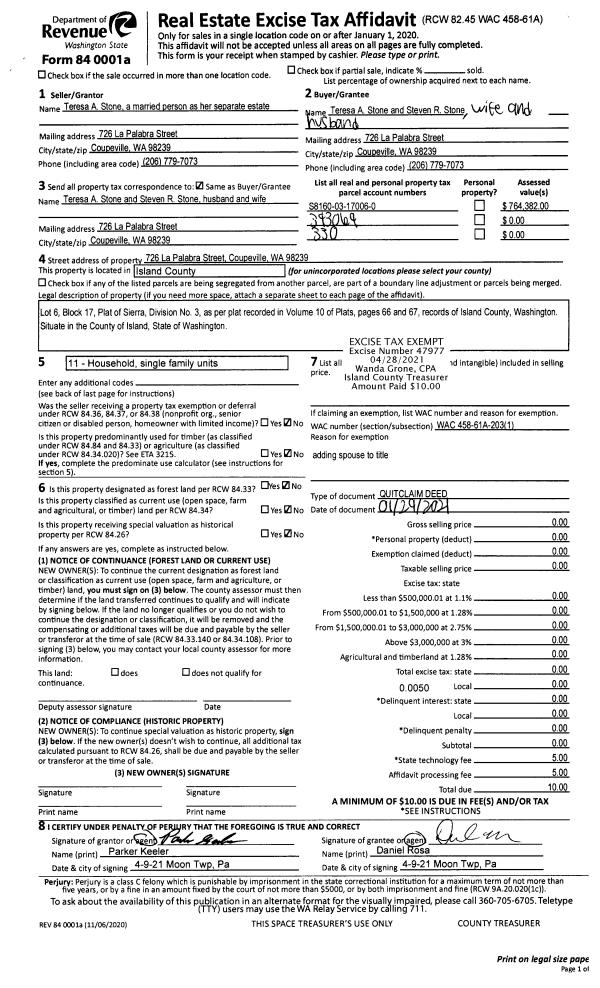
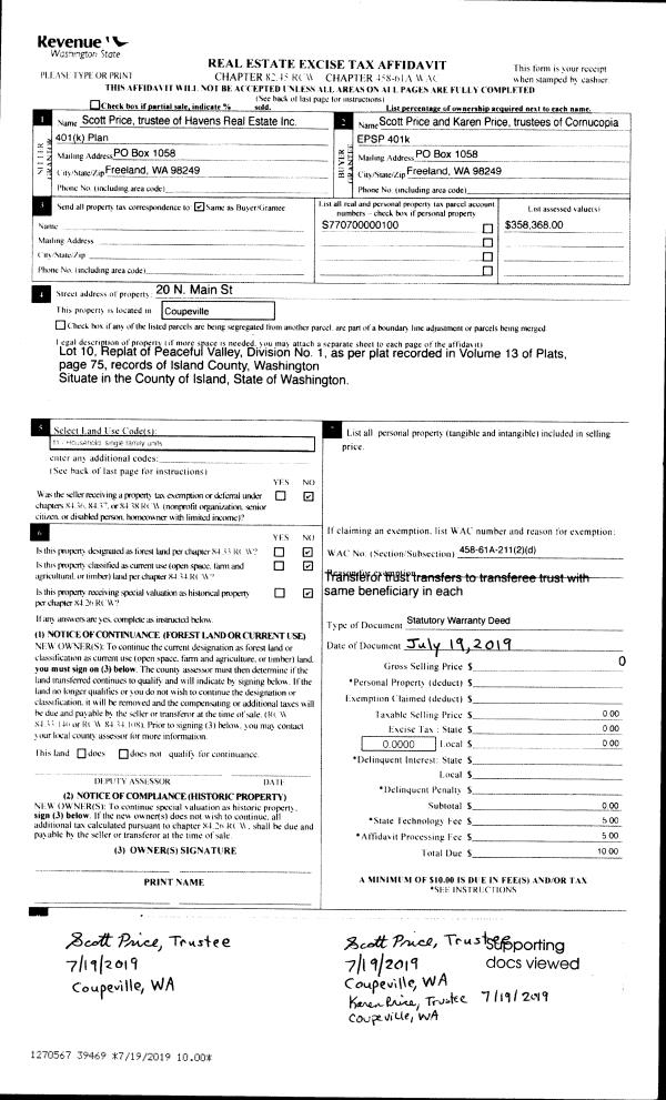
Property
Account |
| Property ID: | 601913 | Abbreviated Legal Description: | WOODSIDE NORTH CONDO APT 1304 2.04% INT |
| Geographic ID: | S8495-00-01304-0 | Agent Code: | |
| Type: | Real | | |
| Tax Area: | 100 - APPRAISER-OH Schl Dist, in OH | Land Use Code | 14 |
| Open Space: | N | DFL | N |
| Historic Property: | N | Remodel Property: | N |
| Multi-Family Redevelopment: | N | | |
| Township: | | Section: | |
| Range: | |
Location |
| Address: | 690 NW ATALANTA WAY BLDG B, UNIT B4 OAK HARBOR, WA 98277 | Mapsco: | |
| Neighborhood: | 4B*OH-woodside n | Map ID: | 253 |
| Neighborhood CD: | 4B*OHwdsdn |
Owner |
| Name: | NOREIKA, STEPHEN | Owner ID: | 290388 |
| Mailing Address: | 690 NW ATALANTA WAY #B4 OAK HARBOR, WA 98277 | % Ownership: | 100.0000000000% |
| | | Exemptions: | |
Taxes and Assessment Details
Values
| (+) Improvement Homesite Value: | + | $0 | |
| (+) Improvement Non-Homesite Value: | + | $215,603 | |
| (+) Land Homesite Value: | + | $0 | |
| (+) Land Non-Homesite Value: | + | $85,000 | |
| (+) Curr Use (HS): | + | $0 | $0 |
| (+) Curr Use (NHS): | + | $0 | $0 |
| | | -------------------------- | |
| (=) Market Value: | = | $300,603 | |
| (–) Productivity Loss: | – | $0 | |
| | | -------------------------- | |
| (=) Subtotal: | = | $300,603 | |
| (+) Senior Appraised Value: | + | $0 | |
| (+) Non-Senior Appraised Value: | + | $300,603 | |
| | | -------------------------- | |
| (=) Total Appraised Value: | = | $300,603 | |
| (–) Senior Exemption Loss: | – | $0 | |
| (–) Exemption Loss: | – | $0 | |
| | | -------------------------- | |
| (=) Taxable Value: | = | $300,603 | |
Taxing Jurisdiction
| Owner: | NOREIKA, STEPHEN | | |
| % Ownership: | 100.0000000000% | | |
| Total Value: | $300,603 | | |
| Tax Area: | 100 - APPRAISER-OH Schl Dist, in OH |
| CF | Conservation Futures | 0.0316035091 | $300,603 | $300,603 | $9.50 | | |
| CEM1 | Cemetery #1 | 0.0040320932 | $300,603 | $300,603 | $1.21 | | |
| COH | City of Oak Harbor | 2.3001546061 | $300,603 | $300,603 | $691.43 | | |
| OAKBOND | City of Oak Harbor BOND | 0.1926904192 | $300,603 | $300,603 | $57.92 | | |
| HOBOND | Hospital BOND | 0.1910887512 | $300,603 | $300,603 | $57.44 | | |
| HOGEN | Hospital GEN | 0.3902502903 | $300,603 | $300,603 | $117.31 | | |
| CE | County Current Expense | 0.3708482477 | $300,603 | $300,603 | $111.48 | | |
| ISLANDEMS | Hospital GEN (EMS) | 0.5000000000 | $300,603 | $300,603 | $150.30 | | |
| LIB | Library Sno-Isle GEN | 0.3153421757 | $300,603 | $300,603 | $94.79 | | |
| NWHIDPRMT | P & R N Whidbey GEN | 0.2004466701 | $300,603 | $300,603 | $60.25 | | |
| SCH201MO | School 201 Enrichment | 1.8559231640 | $300,603 | $300,603 | $557.90 | | |
| ST | State School | 1.3035497053 | $300,603 | $300,603 | $391.85 | | |
| ST2 | State School Part 2 | 0.8169543533 | $300,603 | $300,603 | $245.58 | | |
| | Total Tax Rate: | 8.4728839852 | | | | | |
| | | | | Taxes w/Current Exemptions: | $2,546.96 | | |
| | | | | Taxes w/o Exemptions: | $2,546.96 | | |
Improvement / Building
| Improvement #1: | RESIDENTIAL | State Code: | A1 | 1609.6 sqft | Value: | $215,603 |
| Bathrooms: | 3 | Bedrooms: | 2 | | Ceiling: | DRY WALL SPRAYED | Exterior Wall/Cover: | PLY/HARDBOARD T-111 | | Floor Covering: | CARPET/VINYL 80-20 | Floor Structure: | WOOD W/SUBFLOOR | | Foundation: | CONCRETE | Heating: | BASEBOARD ELECTRIC | | Interior Finish: | DRYWALL PAINT | Plumbing Fixture Cnt: | 11 | | Roof Slope: | 4" IN 12" | Roof Structure/Cover: | CJ ASPHALT |
|
| | Type | Description | Class CD | Sub Class CD | Year Built | Area |
| | BAS | BASE/MAIN FLOOR | 3 | 0 | 1984 | 689.8 |
| | OP1 | OPEN PORCH SLAB | 3 | 0 | 1984 | 40.0 |
| | BIG | BUILT IN GARAGE | 3 | 0 | 1984 | 230.0 |
| | UPS | UPPER STORY | 3 | 0 | 1984 | 919.8 |
| | COMA | Common Area Improvement | 3 | 0 | 1984 | 0.0 |
Sketch
Property Image
Land
| 1 | 61 | MULTIPLE RESIDENCES | 0.0000 | 4602.00 | 0.00 | 0.00 | 1.00 | $85,000 | $0 |
Roll Value History
| 2026 | N/A | N/A | N/A | N/A | N/A |
| 2025 | $215,603 | $85,000 | $0 | $300,603 | $300,603 |
| 2024 | $223,054 | $90,000 | $0 | $313,054 | $313,054 |
| 2023 | $225,967 | $75,000 | $0 | $300,967 | $300,967 |
| 2022 | $207,338 | $60,000 | $0 | $267,338 | $267,338 |
| 2021 | $182,718 | $50,000 | $0 | $232,718 | $232,718 |
| 2020 | $191,493 | $35,000 | $0 | $226,493 | $226,493 |
| 2019 | $138,024 | $70,000 | $0 | $208,024 | $208,024 |
| 2018 | $138,513 | $65,000 | $0 | $203,513 | $203,513 |
| 2017 | $139,423 | $32,214 | $0 | $171,637 | $171,637 |
| 2016 | $141,379 | $32,214 | $0 | $173,593 | $173,593 |
| 2015 | $111,980 | $32,214 | $0 | $144,194 | $144,194 |
| 2014 | $103,473 | $32,214 | $0 | $135,687 | $135,687 |
| 2013 | $104,864 | $32,214 | $0 | $137,078 | $137,078 |
| 2012 | $107,645 | $32,214 | $0 | $139,859 | $139,859 |
| 2011 | $107,645 | $32,214 | $0 | $139,859 | $139,859 |
| 2010 | $112,777 | $25,495 | $0 | $138,272 | $138,272 |
| 2009 | $117,600 | $46,020 | $0 | $163,620 | $163,620 |
| 2008 | $121,865 | $59,826 | $0 | $181,691 | $181,691 |
| 2007 | $123,319 | $59,826 | $0 | $183,145 | $183,145 |
Deed and Sales History
| 1 | 06/21/2019 | WD | Warranty Deed | HARPER, JON A | NOREIKA, STEPHEN | | | $206,000.00 | 39122 | 4466035 |
| 2 | 07/25/2014 | WD | Warranty Deed | WHITSON, GARRETT M | HARPER, JON A | | | $147,000.00 | 16237 | 4363294 |
| 3 | 03/29/2005 | WD | Warranty Deed | HALLING, WILLIAM G | WHITSON, GARRETT M | | | $127,000.00 | 51346 | 4129992 |
| 4 | 02/25/2003 | WD | Warranty Deed | IKARD, EDDIE P | HALLING, WILLIAM G | | | $96,000.00 | 30779 | 4049319 |
| 5 | 10/01/1994 | QCD | Quit Claim Deed | IKARD, EDDIE P | IKARD, EDDIE P | | | $0.00 | 44580 | 94023583 |
| 6 | 06/01/1994 | WD | Warranty Deed | SULLIVAN, JAMES L | IKARD, EDDIE P | | | $76,500.00 | 42462 | 94013710 |
| 7 | 05/01/1985 | WD | Warranty Deed | ALPHA, GROUP, I | SULLIVAN, JAMES L | | | $65,950.00 | 51129 | 85004605 |
| 8 | 04/01/1983 | OTHER | Other - Misc. Documents | Unknown | ALPHA, GROUP, I | | | $0.00 | 31076 | 408757 |
Payout Agreement
| No payout information available.. |