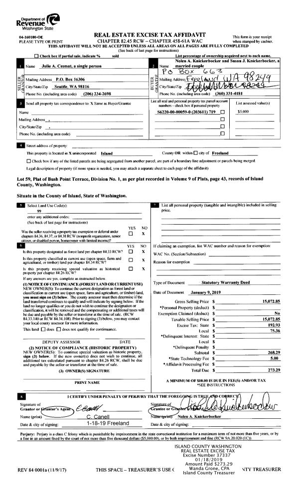
Property
Account |
| Property ID: | 601977 | Abbreviated Legal Description: | WOODSIDE NORTH CONDO APT 1310 1.68% INT |
| Geographic ID: | S8495-00-01310-0 | Agent Code: | |
| Type: | Real | | |
| Tax Area: | 100 - APPRAISER-OH Schl Dist, in OH | Land Use Code | 14 |
| Open Space: | N | DFL | N |
| Historic Property: | N | Remodel Property: | N |
| Multi-Family Redevelopment: | N | | |
| Township: | | Section: | |
| Range: | |
Location |
| Address: | 690 NW ATALANTA WAY BLDG B, UNIT B10 OAK HARBOR, WA 98277 | Mapsco: | |
| Neighborhood: | 4B*OH-woodside n | Map ID: | 253 |
| Neighborhood CD: | 4B*OHwdsdn |
Owner |
| Name: | BIESHELT, ROBERT | Owner ID: | 310850 |
| Mailing Address: | 690 NW ATALENTA WAY #B10 OAK HARBOR, WA 98277 | % Ownership: | 100.0000000000% |
| | | Exemptions: | |
Taxes and Assessment Details
Values
| (+) Improvement Homesite Value: | + | $0 | |
| (+) Improvement Non-Homesite Value: | + | $182,296 | |
| (+) Land Homesite Value: | + | $0 | |
| (+) Land Non-Homesite Value: | + | $85,000 | |
| (+) Curr Use (HS): | + | $0 | $0 |
| (+) Curr Use (NHS): | + | $0 | $0 |
| | | -------------------------- | |
| (=) Market Value: | = | $267,296 | |
| (–) Productivity Loss: | – | $0 | |
| | | -------------------------- | |
| (=) Subtotal: | = | $267,296 | |
| (+) Senior Appraised Value: | + | $0 | |
| (+) Non-Senior Appraised Value: | + | $267,296 | |
| | | -------------------------- | |
| (=) Total Appraised Value: | = | $267,296 | |
| (–) Senior Exemption Loss: | – | $0 | |
| (–) Exemption Loss: | – | $0 | |
| | | -------------------------- | |
| (=) Taxable Value: | = | $267,296 | |
Taxing Jurisdiction
| Owner: | BIESHELT, ROBERT | | |
| % Ownership: | 100.0000000000% | | |
| Total Value: | $267,296 | | |
| Tax Area: | 100 - APPRAISER-OH Schl Dist, in OH |
| CF | Conservation Futures | 0.0316035091 | $267,296 | $267,296 | $8.45 | | |
| CEM1 | Cemetery #1 | 0.0040320932 | $267,296 | $267,296 | $1.08 | | |
| COH | City of Oak Harbor | 2.3001546061 | $267,296 | $267,296 | $614.82 | | |
| OAKBOND | City of Oak Harbor BOND | 0.1926904192 | $267,296 | $267,296 | $51.51 | | |
| HOBOND | Hospital BOND | 0.1910887512 | $267,296 | $267,296 | $51.08 | | |
| HOGEN | Hospital GEN | 0.3902502903 | $267,296 | $267,296 | $104.31 | | |
| CE | County Current Expense | 0.3708482477 | $267,296 | $267,296 | $99.13 | | |
| ISLANDEMS | Hospital GEN (EMS) | 0.5000000000 | $267,296 | $267,296 | $133.65 | | |
| LIB | Library Sno-Isle GEN | 0.3153421757 | $267,296 | $267,296 | $84.29 | | |
| NWHIDPRMT | P & R N Whidbey GEN | 0.2004466701 | $267,296 | $267,296 | $53.58 | | |
| SCH201MO | School 201 Enrichment | 1.8559231640 | $267,296 | $267,296 | $496.08 | | |
| ST | State School | 1.3035497053 | $267,296 | $267,296 | $348.43 | | |
| ST2 | State School Part 2 | 0.8169543533 | $267,296 | $267,296 | $218.37 | | |
| | Total Tax Rate: | 8.4728839852 | | | | | |
| | | | | Taxes w/Current Exemptions: | $2,264.78 | | |
| | | | | Taxes w/o Exemptions: | $2,264.78 | | |
Improvement / Building
| Improvement #1: | RESIDENTIAL | State Code: | A1 | 1317.0 sqft | Value: | $182,296 |
| Bathrooms: | 2 | Bedrooms: | 2 | | Ceiling: | DRY WALL SPRAYED | Exterior Wall/Cover: | PLY/HARDBOARD T-111 | | Floor Covering: | CARPET/VINYL 80-20 | Floor Structure: | WOOD W/SUBFLOOR | | Foundation: | CONCRETE | Heating: | BASEBOARD ELECTRIC | | Interior Finish: | DRYWALL PAINT | Plumbing Fixture Cnt: | 8 | | Roof Slope: | 4" IN 12" | Roof Structure/Cover: | CJ ASPHALT |
|
| | Type | Description | Class CD | Sub Class CD | Year Built | Area |
| | BAS | BASE/MAIN FLOOR | 3 | 0 | 1984 | 543.5 |
| | OP1 | OPEN PORCH SLAB | 3 | 0 | 1984 | 64.0 |
| | BIG | BUILT IN GARAGE | 3 | 0 | 1984 | 206.0 |
| | UPS | UPPER STORY | 3 | 0 | 1984 | 773.5 |
| | COMA | Common Area Improvement | 3 | 0 | 1984 | 0.0 |
Sketch
Property Image
Land
| 1 | 61 | MULTIPLE RESIDENCES | 0.0000 | 3794.00 | 0.00 | 0.00 | 1.00 | $85,000 | $0 |
Roll Value History
| 2026 | N/A | N/A | N/A | N/A | N/A |
| 2025 | $182,296 | $85,000 | $0 | $267,296 | $267,296 |
| 2024 | $188,672 | $90,000 | $0 | $278,672 | $278,672 |
| 2023 | $191,132 | $75,000 | $0 | $266,132 | $266,132 |
| 2022 | $175,398 | $60,000 | $0 | $235,398 | $235,398 |
| 2021 | $154,581 | $50,000 | $0 | $204,581 | $204,581 |
| 2020 | $163,355 | $35,000 | $0 | $198,355 | $198,355 |
| 2019 | $117,120 | $70,000 | $0 | $187,120 | $187,120 |
| 2018 | $117,536 | $65,000 | $0 | $182,536 | $182,536 |
| 2017 | $118,367 | $26,558 | $0 | $144,925 | $144,925 |
| 2016 | $120,029 | $26,558 | $0 | $146,587 | $146,587 |
| 2015 | $95,071 | $26,558 | $0 | $121,629 | $121,629 |
| 2014 | $96,369 | $26,558 | $0 | $122,927 | $122,927 |
| 2013 | $97,667 | $26,558 | $0 | $124,225 | $124,225 |
| 2012 | $100,265 | $26,558 | $0 | $126,823 | $126,823 |
| 2011 | $100,265 | $26,558 | $0 | $126,823 | $126,823 |
| 2010 | $104,698 | $21,019 | $0 | $125,717 | $125,717 |
| 2009 | $109,188 | $37,940 | $0 | $147,128 | $147,128 |
| 2008 | $114,115 | $49,322 | $0 | $163,437 | $163,437 |
| 2007 | $115,479 | $49,322 | $0 | $164,801 | $164,801 |
Deed and Sales History
| 1 | 07/01/2023 | QCD | Quit Claim Deed | BIESHELT, ROBERT | BIESHELT, ROBERT | | | $0.00 | 58688 | 4567348 |
| 2 | 05/10/2023 | WD | Warranty Deed | RUDOLPH, BUAPANG | BIESHELT, ROBERT | | | $315,000.00 | 56725 | 4560001 |
| 3 | 10/05/2022 | WD | Warranty Deed | SANDOVAL, ANEDA MARIE | RUDOLPH, BUAPANG | | | $249,900.00 | 54904 | 4552742 |
| 4 | 02/11/2019 | WD | Warranty Deed | MOUNT, PAUL C | SANDOVAL, ANEDA MARIE | | | $205,000.00 | 37549 | 4459070 |
| 5 | 04/05/2007 | WD | Warranty Deed | MORGAN, JAMES T | MOUNT, PAUL C | | | $170,000.00 | 71177 | 4199089 |
| 6 | 10/19/2005 | QCD | Quit Claim Deed | HENRY, AARON S | MORGAN, JAMES T | | | $0.00 | 55303 | 4151570 |
| 7 | 06/30/2004 | WD | Warranty Deed | MORGAN, JAMES T | HENRY, AARON S | | | $78,000.00 | 42835 | 4105061 |
| 8 | 01/28/1999 | WD | Warranty Deed | IKARD, EDDIE P | MORGAN, JAMES T | | | $77,000.00 | 10035 | 20022940 |
| 9 | 10/01/1994 | QCD | Quit Claim Deed | IKARD, EDDIE | IKARD, EDDIE P | | | $0.00 | 44580 | 94023583 |
| 10 | 08/01/1985 | REC | Real Estate Contract | ALPHA, GROUP, I | IKARD, EDDIE | | | $43,213.00 | 52326 | 85009156 |
| 11 | 04/01/1983 | OTHER | Other - Misc. Documents | Unknown | ALPHA, GROUP, I | | | $0.00 | 31076 | 408757 |
Payout Agreement
| No payout information available.. |