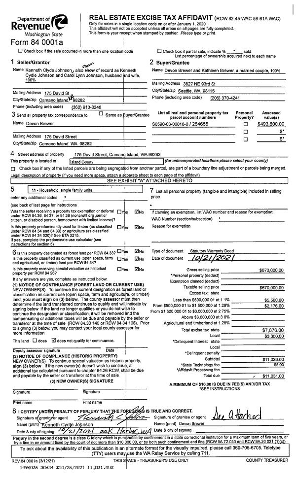
Property
Account |
| Property ID: | 602191 | Abbreviated Legal Description: | LOT 3 OH SP 18-85.13202.333-2380 V1 SP P410 AF#85013665 |
| Geographic ID: | R13202-329-2320 | Agent Code: | |
| Type: | Real | | |
| Tax Area: | 100 - APPRAISER-OH Schl Dist, in OH | Land Use Code | 12 |
| Open Space: | N | DFL | N |
| Historic Property: | N | Remodel Property: | N |
| Multi-Family Redevelopment: | N | | |
| Township: | 32 | Section: | 02 |
| Range: | R1 |
Location |
| Address: | 701 SE 8TH AVE OAK HARBOR, WA 98277 | Mapsco: | |
| Neighborhood: | 12cOH-se 8th av | Map ID: | 88 |
| Neighborhood CD: | 12cOHse8th |
Owner |
| Name: | MITTEN, ERIC | Owner ID: | 300193 |
| Mailing Address: | ALESHIA MITTEN & JASON L MCFADYEN TTEE 1471 SE 8TH AVE OAK HARBOR, WA 98277 | % Ownership: | 100.0000000000% |
| | | Exemptions: | |
Taxes and Assessment Details
Values
| (+) Improvement Homesite Value: | + | $0 | |
| (+) Improvement Non-Homesite Value: | + | $338,596 | |
| (+) Land Homesite Value: | + | $0 | |
| (+) Land Non-Homesite Value: | + | $235,224 | |
| (+) Curr Use (HS): | + | $0 | $0 |
| (+) Curr Use (NHS): | + | $0 | $0 |
| | | -------------------------- | |
| (=) Market Value: | = | $573,820 | |
| (–) Productivity Loss: | – | $0 | |
| | | -------------------------- | |
| (=) Subtotal: | = | $573,820 | |
| (+) Senior Appraised Value: | + | $0 | |
| (+) Non-Senior Appraised Value: | + | $573,820 | |
| | | -------------------------- | |
| (=) Total Appraised Value: | = | $573,820 | |
| (–) Senior Exemption Loss: | – | $0 | |
| (–) Exemption Loss: | – | $0 | |
| | | -------------------------- | |
| (=) Taxable Value: | = | $573,820 | |
Taxing Jurisdiction
| Owner: | MITTEN, ERIC | | |
| % Ownership: | 100.0000000000% | | |
| Total Value: | $573,820 | | |
| Tax Area: | 100 - APPRAISER-OH Schl Dist, in OH |
| CF | Conservation Futures | 0.0316035091 | $573,820 | $573,820 | $18.13 | | |
| CEM1 | Cemetery #1 | 0.0040320932 | $573,820 | $573,820 | $2.31 | | |
| COH | City of Oak Harbor | 2.3001546061 | $573,820 | $573,820 | $1,319.87 | | |
| OAKBOND | City of Oak Harbor BOND | 0.1926904192 | $573,820 | $573,820 | $110.57 | | |
| HOBOND | Hospital BOND | 0.1910887512 | $573,820 | $573,820 | $109.65 | | |
| HOGEN | Hospital GEN | 0.3902502903 | $573,820 | $573,820 | $223.93 | | |
| CE | County Current Expense | 0.3708482477 | $573,820 | $573,820 | $212.80 | | |
| ISLANDEMS | Hospital GEN (EMS) | 0.5000000000 | $573,820 | $573,820 | $286.91 | | |
| LIB | Library Sno-Isle GEN | 0.3153421757 | $573,820 | $573,820 | $180.95 | | |
| NWHIDPRMT | P & R N Whidbey GEN | 0.2004466701 | $573,820 | $573,820 | $115.02 | | |
| SCH201MO | School 201 Enrichment | 1.8559231640 | $573,820 | $573,820 | $1,064.97 | | |
| ST | State School | 1.3035497053 | $573,820 | $573,820 | $748.00 | | |
| ST2 | State School Part 2 | 0.8169543533 | $573,820 | $573,820 | $468.78 | | |
| | Total Tax Rate: | 8.4728839852 | | | | | |
| | | | | Taxes w/Current Exemptions: | $4,861.89 | | |
| | | | | Taxes w/o Exemptions: | $4,861.89 | | |
Improvement / Building
| Improvement #1: | COMMERCIAL | State Code: | B4 | 3040.0 sqft | Value: | $338,596 |
| Bathrooms: | 4 | Bedrooms: | 8 | | Ceiling: | DRYWALL PAINTED | Exterior Wall/Cover: | WOOD SIDING | | Floor Covering: | CARPET/VINYL 80-20 | Floor Structure: | WOOD W/SUBFLOOR | | Foundation: | CONCRETE | Heating: | WALL HEAT ELECTRIC | | Interior Finish: | DRYWALL PAINT | Plumbing Fixture Cnt: | 24 | | Roof Slope: | 4" IN 12" | Roof Structure/Cover: | CJ ASPHALT |
|
| | Type | Description | Class CD | Sub Class CD | Year Built | Area |
| | BAS | BASE/MAIN FLOOR | 3 | 0 | 1986 | 1520.0 |
| | OP1 | OPEN PORCH SLAB | 3 | 0 | 1986 | 48.0 |
| | OP1 | OPEN PORCH SLAB | 3 | 0 | 1986 | 48.0 |
| | UTY | STORAGE/UTILITY | 3 | 0 | 1986 | 24.0 |
| | UTY | STORAGE/UTILITY | 3 | 0 | 1986 | 24.0 |
| | UPS | UPPER STORY | 3 | 0 | 1986 | 1520.0 |
| | OWP | OPEN WOOD PORCH W/STEPS | 3 | 0 | 1986 | 36.0 |
| | OWP | OPEN WOOD PORCH W/STEPS | 3 | 0 | 1986 | 36.0 |
| | OWR | OPEN WOOD PORCH W/STEPS/ROOF | 3 | 0 | 1986 | 60.0 |
| | OP2 | OPEN PORCH W/STEPS | 3 | 0 | 1986 | 30.0 |
| | OP2 | OPEN PORCH W/STEPS | 3 | 0 | 1986 | 30.0 |
| | oPV1 | PV/ASPH 2" | 3 | 0 | 1986 | 2600.0 |
Sketch
Property Image
Land
| 1 | 61 | MULTIPLE RESIDENCES | 0.1800 | 7840.80 | 0.00 | 0.00 | 1.00 | $235,224 | $0 |
Roll Value History
| 2026 | N/A | N/A | N/A | N/A | N/A |
| 2025 | $338,596 | $235,224 | $0 | $573,820 | $573,820 |
| 2024 | $342,864 | $233,280 | $0 | $576,144 | $576,144 |
| 2023 | $338,596 | $233,280 | $0 | $571,876 | $571,876 |
| 2022 | $267,725 | $233,280 | $0 | $501,005 | $501,005 |
| 2021 | $266,916 | $233,280 | $0 | $500,196 | $500,196 |
| 2020 | $231,446 | $233,280 | $0 | $464,726 | $464,726 |
| 2019 | $218,246 | $233,280 | $0 | $451,526 | $451,526 |
| 2018 | $218,262 | $250,000 | $0 | $468,262 | $468,262 |
| 2017 | $219,759 | $62,208 | $0 | $281,967 | $281,967 |
| 2016 | $219,759 | $62,208 | $0 | $281,967 | $281,967 |
| 2015 | $219,759 | $86,858 | $0 | $306,617 | $306,617 |
| 2014 | $219,759 | $86,858 | $0 | $306,617 | $306,617 |
| 2013 | $219,759 | $86,858 | $0 | $306,617 | $306,617 |
| 2012 | $219,759 | $86,858 | $0 | $306,617 | $306,617 |
| 2011 | $219,759 | $86,858 | $0 | $306,617 | $306,617 |
| 2010 | $216,096 | $86,858 | $0 | $302,954 | $302,954 |
| 2009 | $218,814 | $127,449 | $0 | $346,263 | $346,263 |
| 2008 | $221,531 | $134,136 | $0 | $355,667 | $355,667 |
| 2007 | $224,249 | $134,136 | $0 | $358,385 | $358,385 |
Deed and Sales History
| 1 | 06/29/2021 | QCD | Quit Claim Deed | MITTEN, ERIC | MITTEN, ERIC | | | $0.00 | 49140 | 4524300 |
| 2 | 04/12/2021 | WD | Warranty Deed | UPCHURCH TRUSTEE, DAVID | MITTEN, ERIC | | | $584,000.00 | 47726 | 4516274 |
| 3 | 12/29/2015 | TRUSTEED | Trustee's Deed | UPCHURCH, DAVID | UPCHURCH TRUSTEE, DAVID | | | $0.00 | 22683 | 4391834 |
| 4 | 08/28/2014 | WD | Warranty Deed | BROWN, VIRGINIA B | UPCHURCH, DAVID | | | $307,000.00 | 16825 | 4365605 |
| 5 | 06/10/2013 | PRD | Personal Representatives Deed | BROWN, VIRGINIA B | BROWN, VIRGINIA B | | | $0.00 | 11726 | 4342392 |
| 6 | 01/30/2013 | TOD | Transfer On Death Deed | BROWN, DAVID F / VIRGINIA A | BROWN, VIRGINIA B | | | | 82617 | |
| 7 | 09/01/1996 | WD | Warranty Deed | HUMBARGER, DONALD H | BROWN, DAVID F | | | $212,000.00 | 63446 | 96016934 |
| 8 | 09/01/1986 | WD | Warranty Deed | ISLAND, PACIFIC C | HUMBARGER, DONALD H | | | $149,950.00 | 62711 | 86012241 |
| 9 | 01/01/1900 | OTHER | Other - Misc. Documents | Unknown | ISLAND, PACIFIC C | | | $0.00 | 53474 | 85013720 |
Payout Agreement
| No payout information available.. |